
Bungalow gelijkvloers met terras Nature Views
Project: Residentie Nature Views
Gelijkvloerse bungalow in prachtig wooncomplex
Korte beschrijving:
Deze eigentijdse bungalows op de begane vloer biedt 3 slaapkamers en 3 badkamers, een open keuken, ruime woonkamer, inbouwkasten, terras, privé solarium en ondergrondse parkeerplaats. Geniet van luxe voorzieningen, waaronder tuinen, tuin-gym, speeltuin, en 2 gemeenschappelijke zwembaden. Gunstig gelegen nabij Torrevieja, staat deze regio bekend om zijn mediterrane klimaat, prachtige kustlijn en rijke geschiedenis. Ontdek de perfecte mix van modern comfort en natuurlijke schoonheid in dit exclusieve complex.
U bent nog niet aangemeld!
 Geef ons uw mening...
Vanaf: €290.000
Ref: KIMP-PROP-2366
Uitgebreide beschrijving:
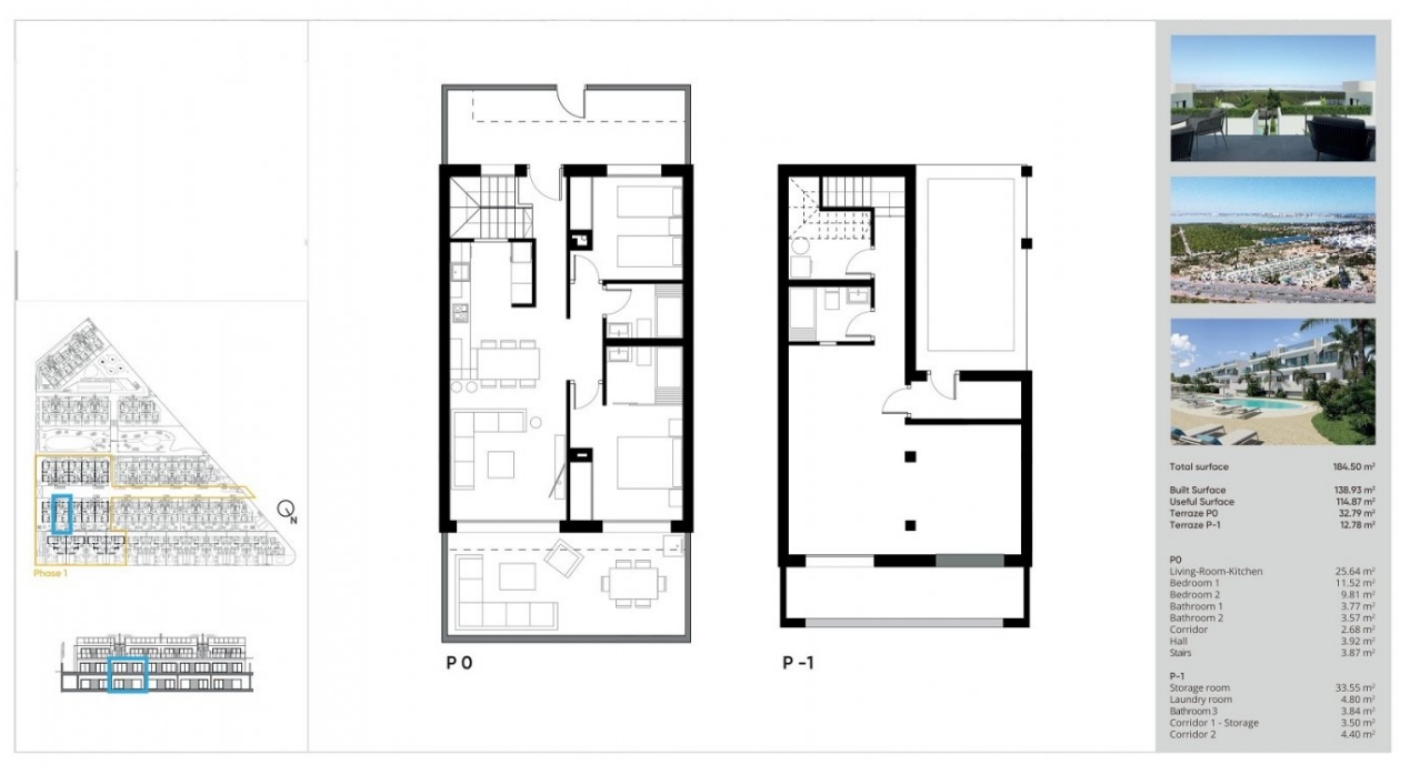
Deze gelijkvloerse bungalow heeft 3 slaapkamers en 3 badkamers. Deze woning is gelegen in een gesloten wooncomplex, die 24/24u beveiligd wordt door camera's. Je kan enkel het wooncomplex betreden, indien je de gepaste sleutel hebt. Aan de ingang is overigens ook jouw brievenbus te vinden.
Alle huizen hebben energielabel B dankzij de aerothermische pomp die individueel warm water voorziet. Hierdoor gaat jouw energiefactuur dalen. De gehele woning is betegeld met een porseleinen tegels. In de badkamer is de muur betegeld van vloer tot plafond met een keramische tegel. De badkamer is voorzien van een douchescherm, wastafelmeubel, spiegel met verlichting én toilet.
Deze woning is verdeeld over 2 verdiepingen. Er is een kelderverdieping ( onderbouw ) voorzien, die op -1 gelegen is. Op die kelderverdieping is de hoofdslaapkamer gelegen met badkamer. Er is ook een ruime leefruimte voorzien die je kan inrichten naar jouw wensen bijvoorbeeld fitnessruimte, ... Naast de badkamer is er een wasruimte voorzien. Dankzij een horizontale patio die langs de slaapkamer en leefruimte gaat, maak je optimaal gebruik van het natuurlijke lichtinval. Hierdoor voelt de onderbouw helemaal niet aan als een kelderverdieping. Integendeel, de onderbouw is een ware aanvulling, die heel veel extra ruimte geeft.
Op de begane vloer zijn de overige 2 slaapkamers en 2 badkamers gelegen. Alle slaapkamers zijn voorzien van inbouwkasten. Er is een ruime leefruimte voorzien, met een open keuken. De keuken is volledig uitgerust. De keuken is voorzien van de volgende apparaten: oven, magnetron, vaatwasser, keramische kookplaat, dampkap, wasmachine en koelkast. Alle lades zijn voorzien van een gedempt systeem. Als je naar buiten gaat op de begane vloer vind je jouw terras van bijna 40m².
De verlichting op het terras is inbegrepen, alsook de LED-strips binnen. De gehele woning is voorzien van voldoende stopcontacten. Er is een alarmsysteem inbegrepen met 3 binnendectoren. Je kan het alarmsysteem via een app bedienen. De gehele woning is uitgerust met een ventilatiesysteem. De airconditioning pré-geïnstalleerd. Er is een oplaadplunt voorzien vanuit jouw woning voor de elektrische wagen. Er is een ondergrondse parkeerplaats voorzien die je kan bereiken via een elektrische poort.
Deze woning heeft ook heel wat gemeenschappelijke voorzieningen; er is een overdekte fietsenstalling, bio-gezondheidsruimte, mogelijkheid tot buitenspelen voor kinderen, aangelegde gemeenschappelijke tuin met irrigatiesysteem, ... Er zijn ook gemeenschappelijke zwembaden van 900m² tesamen, een zwembad voor volwassenen en voor kinderen. Aan het zwembad is er WIFI voorzien.
Los Balcones is uitgegroeid tot een kleine stad, gelegen nabij het zuidelijke Torrevieja, biedt de perfecte locatie. Torrevieja, aan de Costa Blanca, staat bekend om zijn mediterrane klimaat en schilderachtige kustlijn met resorts langs de uitgestrekte zandstranden. Ontdek de rijke visserij- en zoutgeschiedenis van de stad in het Museum van de Zee en het Zout. Het nabijgelegen natuurpark Lagunas de La Mata-Torrevieja biedt prachtige paden en twee zoutlagunes, elk met een unieke kleur - roze en groen. Met de luchthaven van Alicante op slechts 40 minuten afstand en Murcia op ongeveer 1 uur, is deze locatie perfect bereikbaar. Ervaar het beste van modern wonen in dit schitterende wooncomplex. Ontdek vandaag nog jouw toekomstige thuis aan de Costa Blanca!
Kenmerken:
Aantal slaapkamers | 3 | |
Aantal badkamers | 3 | |
Pré installatie airco | Ja | |
Led verlichting buiten | Ja | |
Led verlichting binnen | Ja | |
parking ondergronds | Ja | |
Telefoon Data aansluiting | Ja | |
Videofonie | Ja | |
Inbouwkasten | Ja | |
Aero thermische warmtepomp | Ja | |
Douche schermen | Ja | |
Poort | Ja | |
Pre installatie elektrisch laadpunt | Ja | |
Terras | Ja | |
Gedeeld zwembad | Ja | |
Alle keuken apparatuur volledig inbegrepen | Ja | |
Nabij kinder speeltuin | Ja | |
Fitness ruimte | Ja | |
Kookplaat Dampkap Magnetron & Oven | Ja | |
Gedeelde tuin | Ja | |
Alarmsysteem | Ja | |
Golfresort afstand in km | 5-10 km | |
Ziekenhuis afstand in km | 5-10 km | |
Nabij Commercieel centrum | Ja | |
Luchthaven Alicante afstand | 20-30 km | |
Luchthaven Murcia afstand | 40-50 km | |
Uitzicht tuin | Ja | |
Gedeelde kosten | Ja | |
Oppervlakte perceel rond het huis | 0 m² | |
Bebouwde oppervlakte | 138 m² | |
Bewoonbare oppervlakte | 75 m² | |
Afstand naar het strand | 4 km | |
Terras oppervlakte | 45 m² | |
Nabij Scholen | Ja | |
Hangend badkamer meubel | Ja | |
Uitzicht op het zwembad | Ja | |
Uitzicht zoutmeren | Ja | |
Cameradeur met intercom terminal | Ja | |
Badkamer meubel en spiegels | Ja | |
Tuin met kunstgras, palmbomen, druppelirrigatie | Ja | |
Grote ramen van vloer tot plafond | Ja | |
Fietsafstand van het strand | Ja | |
Goede prijs-kwaliteit verhouding | Ja | |
Kunstgras | Ja | |
Ondergronds parking | Ja | |
Gelijkvloers | Ja | |
Penthouse | Ja | |
Luxe nieuwbouw | Ja | |
e-bike oplaadstation | Ja | |
Kijkwoning | Ja | |
Extra verdieping ondergronds (basement) | Ja | |
Fietsberging | Ja | |
Energielabel | B | |
Afgewerkte badkamer | Ja | |
Gesloten urbanisatie | Ja |
Meer info?
Ontdek wat we nog meer te bieden hebben!

Bungalow op de bovenste verdieping in Torrevieja
Project: Residentie Nature views 2
Stad: Torrevieja-Alicante
2   2   78 m²   20 m²  

AN Home Appartement in Torrevieja
Project: AN Home appartementen vlakbij zee in Torrevieja
Stad: Torrevieja-Alicante
1   1     55 m²   8 m²  

Penthouse met terras in residentie Rodas Playas
Project: Residentie Rodas Playas in Torrevieja
Stad: Torrevieja-Alicante
2   1   69 m²   20 m²  

Penthouse met solarium in La Hoya
Project: Residentie La Hoya in Torrevieja
Stad: Torrevieja-Alicante
2   2   77 m²   20 m²  

Penthouse in Neptuno II
Project: Edificio Neptuno II: appartementen in Torrevieja
Stad: Torrevieja-Alicante
1   2   69 m²   14 m²  

Penthouse op 200 meter van de zee
Project: Residentie Panorama Beach
Stad: Torrevieja-Alicante
2   1   58 m²   15 m²  

Penthouse met terras in Torrevieja
Project: Residentie Soprano in Torrevieja
Stad: Torrevieja-Alicante
2   2   59 m²   14 m²  

Penthouse met terras in residentie Anamar
Project: Residentie Anamar in Torrevieja
Stad: Torrevieja-Alicante
3   2   107 m²   22 m²  

Eden Beach-Torrevieja-Alicante
Project: Eden Beach-Torrevieja-Alicante
Stad: Torrevieja-Alicante
3   2     129 m²   162 m²  

Sfeervol appartement met groot terras Punta prima
Project: Wonen aan zee in stijl: Corallia Resort Torrevieja
Stad: Torrevieja-Alicante
3   2     87 m²   17 m²  

Luxe Penthouse Torrevieja – Zoutmeerzicht
Project: Nature Views - Volledig ingericht Penthouse
Stad: Torrevieja-Alicante
2   2   178 m²   22 m²  

Appartement kopen in Torrevieja? Bekijk Victoria I
Project: Edificio Victoria I-Playa Del Cura
Stad: Torrevieja-Alicante
3   3     122 m²   54 m²  
Casas Kimpencio leert je alles wat je moet weten:

Villa of appartement
Ontdek de perfecte woning voor jou: villa's bieden ruimte en privacy met buitenruimtes, terwijl appartementen functioneel en gemakkelijk te onderhouden zijn.
Bij Casas Kimpencio hebben we prachtige villa's met zeezicht in Benidorm en adembenemende appartementen met uitzicht op zee. Laat on...
Martine