Home Lopende projecten Alle Panden Over ons Ons team Ons kantoor Onze werkwijze Contacteer ons Blog Cookies

Wereld van luxe en rustiek wonen in Fuente Álamo, Murcia

 Project: Sleutelklare villa in Spanje met Spaans karakter

Genieten - ontspan in tuinen en zwembaden in Fuente Álamo

Korte beschrijving:

Ontdek het perfecte samenspel van rustiek design en moderne luxe in de sleutelklare villa's van Fuente Álamo, Murcia. Deze gemeenschap biedt niet alleen prachtige woningen, maar ook gemeenschappelijke tuinen en zwembaden voor gedeeld plezier. Fuente Álamo, gelegen in het zonnige Zuid-Spanje, natuurlijke natuurlijke pracht met stadscomfort.

Ontsnap naar dit idyllische toevluchtsoord, omgeven door bergen en stromend bergwater. Op slechts 30 minuten van de luchthaven Murcia - Corvera, is jouw droomwoning binnen handbereik. 

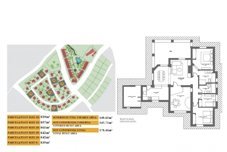
De Azalea villa: Ruimte en comfort in Mediterrane stijl

Deze prachtige villa, het Azalea-model, beschikt over drie slaapkamers en twee badkamers. Het ontwerp is doordrenkt van de traditionele mediterrane charme, waarbij het buitenleven optimaal wordt benut. De woning heeft een grote overdekte porch bij de ingang en een royale overdekte veranda die leidt naar de tuin, waar je kunt genieten van de buitenlucht. Een bijzonder kenmerk is het deels overdekte dakterras, een ideale plek om te ontspannen en te genieten van het panoramische uitzicht. Deze villa biedt niet alleen comfort en ruimte, maar ook de perfecte omgeving voor een ontspannen leven. Een ideale keuze voor wie de mediterrane levensstijl wil omarmen!

  • Oppervlakte specificaties van de villa:
  • Gebruikbare oppervlakte: 146,77 m²
  • Totale gebouwde oppervlakte: 180,49 m²
  • Overdekte gebouwde oppervlakte: 159,23 m²

Deze villa biedt een uitstekende balans tussen binnen- en buitenruimte, waardoor je volop kunt genieten van het comfort en de luxe van je nieuwe woning. De ruime indeling en goed doordachte afmetingen maken het de perfecte plek voor een ontspannen leven!

U bent nog niet aangemeld!

Na invullen van onderstaande gegevens wordt u aangemeld, indien er nog geen account bestaat kan deze aangemaakt worden!



 Geef ons uw mening...

 Momenteel nog geen reviews voor dit pand.

Uitgebreide beschrijving:

De bewoners van deze gemeenschap genieten exclusief niet alleen van prachtige, ruime woningen, maar ook van hun eigen gemeenschappelijke tuinen en zwembaden.

De Spaanse villa, met een uniek ontwerp, beschikt over 3 slaapkamers en 2 badkamers, een onafhankelijke keuken, en een woonkamer met openslaande deuren naar een overdekte veranda. Voor wie de ultieme luxe zoeken is er zelfs de mogelijkheid tot een privé zwembad tegen een meerprijs.

Fuente Álamo de Murcia, gelegen in het zonnige Zuid-Spanje, is een stad doordrenkt van charme. Omringd door de majestueuze bergen Algarrobo, Los Gómez, Los Victorias en de Carrascoy, biedt de stad een prachtig landschap. De Mar Menor, in de nabijheid, biedt een praktische sereniteit toe aan de omgeving. De Rambla de Fuente Álamo, waar het bergwater doorheen stroomt, draagt ​​bij aan de natuurlijke pracht.

Los Altos de Las Palas project – Perfect gelegen in het hart van de regio Los Altos de Las Palas heeft een fantastische locatie met uitstekende bereikbaarheid!

Dankzij de nabijheid van de noord-zuid snelweg ben je binnen enkele minuten op de mooiste plekken in de omgeving. Geniet van de zon op de stranden van Mazarrón.Ga heerlijk winkelen in het historische Cartagena.Sla een balletje op de golfbaan van Hacienda el Álamo.Ontspan aan de idyllische wateren van de Mar Menor.Of haal je familie gemakkelijk op van de nieuwe luchthaven van Corvera.Met zijn centrale ligging en gemakkelijke toegang tot talloze voorzieningen, is Los Altos de Las Palas dé plek om te genieten van comfort, natuur en een zorgeloze levensstijl. Hier ervaar je het beste wat de regio te bieden heeft!

Los Altos de Las Palas – Altijd iets te beleven!

In Los Altos de Las Palas zul je je nooit vervelen. Het complex beschikt over een eigen clubhuis en prachtige zwembaden, ideaal om te ontspannen en nieuwe mensen te ontmoeten.

Daarnaast biedt de omgeving een enorm aanbod aan activiteiten voor jong en oud. Trek eropuit voor een wandeling door de heuvels, ontdek de regio te paard, geniet van zeilen of duiken in de Middellandse zee, maak een fietstocht door het prachtige landschap, of probeer een van de vele andere sporten.

Bovendien ben je slechts een korte rit verwijderd van steden zoals Cartagena, Murcia, Mazarrón en Águilas. Hier kun je genieten van een breed scala aan activiteiten, zoals concerten, musea, winkelcentra, wekelijkse markten en levendige lokale festiviteiten.

In Los Altos de Las Palas ervaar je het beste van zowel natuur als cultuur – elke dag opnieuw!

Op korte afstand van de residentie vind je talloze prachtige stranden met kristalhelder water, zoals

  • Playa Negra in Mazarrón (22 minuten rijden)
  • Playa La Azohía (32 minuten rijden).

Of je nu wilt ontspannen aan zee of winkelen in moderne centra zoals Centro Comercial Cenit of Espacio Mediterráneo in Cartagena (beide slechts 33 minuten rijden), alles is binnen handbereik. Daarnaast zijn er in de buurt diverse gezondheidscentra, zoals die in Mazarrón (26 minuten) en Fuente Álamo (14 minuten), voor jouw gemoedsrust.

Voor dagelijkse boodschappen zijn er volop supermarkten, en de charmante wekelijkse markten maken winkelen niet alleen gemakkelijk, maar ook leuk en sfeervol.

Los Altos de Las Palas biedt je niet alleen een prachtige woonomgeving, maar ook alle voorzieningen die je nodig hebt om comfortabel en zorgeloos te leven, waar je ook bent!

Golfbanen in de buurt De locatie van dit gebied biedt een uitstekende toegang tot verschillende golfbanen en is ideaal voor liefhebbers van de sport.

  • Hacienda del Álamo Golfclub (18 holes) - slechts 15 minuten rijden.
  • Altorreal Golfclub (18 holes) - 55 minuten rijden.
  • La Manga Club (54 holes) - 40 minuten rijden.
  • Corvera Country Club (18 holes) - 30 minuten rijden.
  • Camposol Golf (18 holes) - 27 minuten rijden.

Daarnaast is de woning slechts 1 uur en 26 minuten rijden van de luchthaven van Alicante, waardoor het ideaal is voor vluchten en reizen. Luchthaven Corvera: Slechts 30 minuten rijden..

Los Altos de Las Palas – De start van een nieuw leven Het moment is aangebroken om jouw nieuwe thuis te kiezen.

Je hebt de keuze uit twee prachtige opties: Los Altos del Almendro en Los Altos del Limonar. Beide ontwikkelingen zijn ontworpen met oog voor detail en voldoen aan de hoogste eisen, zelfs van de meest veeleisende bewoners. Twee unieke stijlen, elk met hun eigen karakter, maar met één gemeenschappelijke eigenschap: de ongeëvenaarde kwaliteit en het streven naar perfectie die Los Altos de Las Palas kenmerken. Kies jouw droomhuis en begin aan een nieuw hoofdstuk in een omgeving waar excellentie centraal staat!

Los Altos del Almendro – Een uniek woonconcept

Perfect geïntegreerd in de prachtige omgeving van Los Altos de Las Palas vind je een buitengewoon woonconcept: 35 unieke en exclusieve vrijstaande villa’s, elk gelegen op royale percelen van meer dan 800 m².

Deze eerste fase, genaamd Los Altos del Almendro, biedt zeven verschillende modellen om uit te kiezen, zodat er voor iedere smaak een perfect ontwerp beschikbaar is. De villa’s combineren een rustieke stijl met moderne ontwerpen, hoogwaardige materialen en veel aandacht voor comfortabel wonen. Met respect voor de traditionele architectuur van de regio, straalt dit project karakter en kwaliteit uit. Hier woon je in stijl, midden in de natuur, met alle ruimte om van het leven te genieten!

Kies jouw droomhuis en ervaar de harmonie van rustiek en modern in Los Altos del Almendro.

Tweede fase, Los Altos del Limonar biedt je een ware oase van luxe om van de zon te genieten. Een kans die je niet mag missen!

Dit exclusieve project bestaat uit verschillende woningtypes, zowel geschakelde als halfvrijstaande woningen. De bewoners van deze besloten gemeenschap kunnen genieten van ruime woningen en hebben toegang tot de prachtige gemeenschappelijke tuinen en zwembaden, waar ze in alle rust kunnen ontspannen. De woningen zijn gebouwd in rijen van 2, 4 of 5 huizen en bieden alle moderne gemakken, met de rust en het comfort van het platteland. Een ideale plek om te genieten van het beste van het buitenleven in alle privacy en luxe.

Los Altos de Las Palas - Kwaliteiten en technische gegevens

De fundering bestaat uit betonplaatjes en goten van gewapend beton, wat zorgt voor een solide basis voor het hele huis.

Structuur De dragende muren zijn gemaakt van 29 cm dikke thermische klei blokken en de verlaagde delen, zoals de veranda's, hebben metalen pilaren.

De begane grond is voorzien van een sanitair vloersysteem, met dragende muren van thermische klei en prefab betonnen balken die zelfdragend zijn, samen met betonnen bovendelen en bijbehorende verstevigingselementen.

De bovenverdieping is voorzien van een unidirectionale vloer, bestaande uit semi-voorgetensioneerde betonnen balken en thermische klei bovendelen. Het dak heeft houten balken en een isolerende bovenlaag van Donpól-platen in de slaapkamers.

De buitenmuren zijn gebouwd met thermische klei blokken van 29 cm dik, afgewerkt met een monocouche mortel in aardetinten.

Binnenwanden zijn gemaakt van dubbele holle bakstenen.

Binnenwanden hebben een mooie gipsafwerking met een getextureerde afwerking. Valse plafonds van gipsplaat worden gebruikt in de badkamers en toiletten.

Dakbedekking Het schuine dak wordt bedekt met gebakken dakpannen, met isolatie in de vloerconstructie, behalve in de veranda.

Deze villa biedt de perfecte combinatie van stevigheid, stijl en comfort met hoogwaardige materialen en duurzame afwerkingen die zijn ontworpen om te voldoen aan de eisen van het mediterrane klimaat.

Vloeren De vloeren in de woning zijn bedekt met keramische tegels die de uitstraling van natuursteen in een terracotta kleur nabootsen, met bijpassende plinten van hetzelfde materiaal. De buitenvloeren, waaronder de stoep, veranda's, droogzones en solarium, zijn voorzien van antislip keramische tegels van 31x31 cm, ook met bijpassende plinten.

De badkamers  de muren zijn betegeld met keramische tegels tot een hoogte van 1,30 m, afgewerkt met een sierlijst langs de randen. De tegels rond het bad en de douche zijn tot het plafond doorgetrokken. Tussen de douche en de wastafel zijn er marmeren scheidingswanden.

In de keukens worden de muren betegeld met keramische tegels tot het plafond.Keuken wordt uitgerust met  ingebouwde kasten, een granieten werkblad, apparatuur en een gootsteen

Binnenafwerking (Houtwerk) De voordeur is een dubbele houten paneeldeur van rustiek grenenhout, met een traditionele zwarte ijzeren deurknop en een beveiligingsslot.

De binnendeuren zijn ook van rustiek grenenhout, 35 mm dik, met zwarte ijzeren deurknoppen. De fronten van de inbouwkasten zijn van rustiek grenenhout, met openslaande deuren zonder bekleding, voorzien van een houten plank voor opslag en een hangrail. I

In de veranda's en de woonkamer zijn decoratieve houten balken aanwezig, afhankelijk van het model.

Buitenschrijnwerk Het buitenschrijnwerk wordt uitgevoerd in gelakte aluminium profielen in de kleur wit, met schuif- of openslaande deuren en ramen, afhankelijk van het ontwerp.

De beglazing bestaat uit driedubbel glas met een 4+6+4 opbouw. Er zijn rolluiken op de aluminium deuren en ramen, behalve in de badkamers.

Sanitaire apparatuur

De sanitaire voorzieningen zijn in wit geglazuurd porselein, met verchroomde mengkranen met één hendel. Het warme water wordt geleverd door een elektrische boiler van 150 liter.

De douche is voorzien van een op maat gemaakte bak die is afgewerkt met mozaïektegels.

Elektrische Installatie De elektrische installatie is voorzien van een verhoogde beschermingskast, met schakelaars, lichtpunten en stopcontacten in alle kamers, exclusief lampen, lampenkappen en dergelijke.

Telecommunicatie 

  • Telefooninstallatie De telefooninstallatie voldoet aan de geldende wetgeving voor telecommunicatie-infrastructuren. Er zijn telefoonaansluitingen in de woonkamer, keuken en slaapkamers, volgens de norm. Er is ook een pre-installatie in de overige ruimtes. De woning is uitgerust met een videofoon.
  • Televisie-installatie De woning is voorbereid op een kabeltelevisie-infrastructuur voor verschillende signalen. In de woonkamer, keuken en slaapkamers worden er aansluitingen voor radio en televisie aangebracht, volgens de geldende normen. Pre-installatie is ook voorzien in de overige ruimtes.

Schilderwerk De binnenmuren zijn afgewerkt met kunststof verf, wat zorgt voor een nette en onderhoudsvriendelijke afwerking in alle ruimtes.

Wijk en tuinen De perceelgrens is omheind met een muur van 40 cm hoog van betonnen blokken, met gaashekwerk aan de voorkant en een afsluiting met gegalvaniseerd gaas.

Er is een privé parkeerplaats binnen het perceel, en er zijn openbare parkeerplaatsen in de straten van de urbanisatie. De tuin is individueel ingericht met geotextiel en grind, en wordt verfraaid met een palmera (palmboom), twee pijnbomen, twee loofbomen en twee bloemperken, wat zorgt voor een groene en aangename omgeving.

Deze villa is ontworpen met zorgvuldige aandacht voor detail en comfort, met hoogwaardige materialen en afwerkingen die zowel esthetisch aantrekkelijk als functioneel zijn, en met moderne voorzieningen voor een aangename woonervaring. Deze voorzieningen dragen bij aan het comfort en de veiligheid van de bewoners, en versterken de aantrekkelijkheid van de woning en de woonomgeving


Kenmerken:

Aantal slaapkamers 3
Aantal badkamers 2
Privaat zwembad Optioneel
Oppervlakte perceel rond het huis 850 m²
Bebouwde oppervlakte 178 m²
Bewoonbare oppervlakte 148 m²
Afstand naar het strand 7.5 km
Terras oppervlakte 30 m²
Private Tuin Ja
Poort Ja
Fietsafstand van het strand Ja
Terras Ja
Douche schermen Ja
Gedeeld zwembad Ja
Nabij bushalte Ja
Solarium Ja
Solarium oppervlakte in m2 50-60 m²
Pré installatie airco Ja
Elektrische rolluiken Ja
privé parkeerplaats Ja
Telefoon Data aansluiting Ja
Videofonie Ja
Inbouwkasten Ja
Aero thermische warmtepomp Ja
Badkamer spiegels Ja
Alle keuken apparatuur volledig inbegrepen Ja
Nabij kinder speeltuin Ja
Berging Ja
Gedeelde tuin Ja
Oriëntatie Zuid
Golfresort afstand in km 5-10 km
Ziekenhuis afstand in km 5-10 km
Luchthaven Alicante afstand 50+ km
Luchthaven Murcia afstand 20-30 km
Uitzicht tuin Ja
Uitzicht bergen Ja
Ontspanning ruimte buiten Ja
Hangend badkamer meubel Ja
Security glas met uv filter Ja
Volledig ingerichte keuken Ja
Gepantserde toegangsdeur met veiligheidsslot Ja
Kunstgras Ja
Bioklimatologische pergola Ja
Hoogwaardige afwerking Ja
Goede prijs-kwaliteit verhouding Ja
Aerothermische boiler Ja
Meubelpakket Optioneel
Gelijkvloers Ja
Gelijkvloers met tuin Ja
Aangelegde tuin met grind, gras en planten. Ja
Kijkwoning Ja
Goed gebied voor rentabiliteit van huur Ja
Pergola Ja
Fietsberging Ja
Afgewerkte badkamer Ja

Meer info?


Beschikbare documenten

Schermopname_26-11-2024_17811_www.redsp.net.jpeg

document-Schermopname_26-11-2024_17811_www.redsp.net.jpeg

download

Ondek en droom mee met het nieuwste van de markt

Studio met verhuurlicentie in Finestrat
Studio met verhuurlicentie in Finestrat

Project: Appartement met verhuurlicentie Costa Blanca

Stad: Finestrat-Benidorm

0   1     36 m²   1 m²  

Opbrengst-appartement in Aguilas
Opbrengst-appartement in Aguilas

Project: Investeren in appartementen vlak bij zee Águilas

Stad: Aguilas

2   1     61 m²   6 m²  

Appartement met solarium in residentie Lolm
Appartement met solarium in residentie Lolm

Project: Residentie Lolm in Hondon de las Nieves

Stad: Hondón de las Nieves

2   1   71.8 m²  

Penthouse Galena met 2 slaapkamers in Herrerias
Penthouse Galena met 2 slaapkamers in Herrerias

Project: Residentie Galena woningen met zwembad in Almería

Stad: Cuevas Del Almanzora

2   2     84 m²   32 m²  

Penthouse met solarium in Costa Blanca
Penthouse met solarium in Costa Blanca

Project: Penthouse Benejúzar Boutique wonen Costa Blanca

Stad: Benejúzar

3   3     56 m²   12 m²  

3-slaapkamerappartement in hartje Avileses
3-slaapkamerappartement in hartje Avileses

Project: AVILESES-VIRGEN DEL CARMEN appartementen

Stad: Avileses

3   2     96 m²   3 m²  

Gelijkvloerse bungalow San Pedro del Pinatar
Gelijkvloerse bungalow San Pedro del Pinatar

Project: Woning Spanje kopen? Bella Salina vanaf €149.900

Stad: San Pedro del Pinatar - Mar-Menor

1   1     51 m²   7 m²  

La Vista Algorfa
La Vista Algorfa

Project: Wonen in Algorfa: Nieuwbouwappartementen !

Stad: Algorfa

2   2     71 m²   6 m²  

Exclusieve herverkoop: penthouse in res. Veleta
Exclusieve herverkoop: penthouse in res. Veleta

Project: Residentie Veleta in San Miguel de Salinas

Stad: Wonen in San Miguel: rust en zon aan zee

2   2   99 m²   5 m²  

Residentie Larrosa 43: woning nabij Guardamar
Residentie Larrosa 43: woning nabij Guardamar

Project: Residentie Larrosa 43: betaalbaar in San Fulgencio

Stad: San Fulgencio

2   2     80 m²   6 m²  

AN Home Appartement in Torrevieja
AN Home Appartement in Torrevieja

Project: AN Home appartementen vlakbij zee in Torrevieja

Stad: Torrevieja-Alicante

1   1     55 m²   8 m²  

Appartement met terras in residentie Vistalago
Appartement met terras in residentie Vistalago

Project: Residentie Vistalago in San Miguel de Salinas

Stad: Wonen in San Miguel: rust en zon aan zee

2   1   70 m²   7 m²  

Lees geamuseerd onze nieuwtje en tips mee....

Nieuwbouw vs bestaande woning Spanje kiezen
Nieuwbouw vs bestaande woning Spanje kiezen

Nieuwbouw of bestaande woning kopen in Spanje lijkt een eenvoudige keuze… tot je er écht induikt.

Want wat op het eerste zicht goedkoper lijkt, kan op lange termijn duurder uitvallen. En wat duurder lijkt, kan net de slimste investering zijn.

Bij Casas Kimpencio zien we dagelij...

Martine

Casas Kimpencio specialist vastgoed Spanje!
Casas Kimpencio specialist vastgoed Spanje!

Casas Kimpencio Vastgoed Spanje groeit uit tot dé referentie voor wie een huis wil kopen in Spanje

Huis kopen in Spanje met Casas Kimpencio Nederlandstalige makelaar


...

Martine

Vliegschow Los Alcázares beleven in Spanje
Vliegschow Los Alcázares beleven in Spanje

Het spektakel van de vliegfeesten, de unieke ligging aan de Mar Menor en de aantrekkelijke vastgoedkansen in de regio. 

De vliegfeesten in Los Alcázares zijn een uniek spektakel boven de Mar Menor, met internationale airshows, historische roots en een levendige sfeer.

Wat wei...

Martine

square-box
Tine
Vragen over panden, projecten en onze content
Snel starten:

Hallo, ik ben Tine je kan bij mij terecht met al je vragen over panden, projecten en onze content. Ik antwoord alleen op basis van de beschikbare website-inhoud.