Home Lopende projecten Alle Panden Over ons Ons team Ons kantoor Onze werkwijze Contacteer ons Blog Cookies

Bovenste bungalow in residentie Luisa

 Project: Residentie Luisa bungalow in Ciudad Quesada

Moderne mediterrane appartementen in Ciudad Quesada

Korte beschrijving:

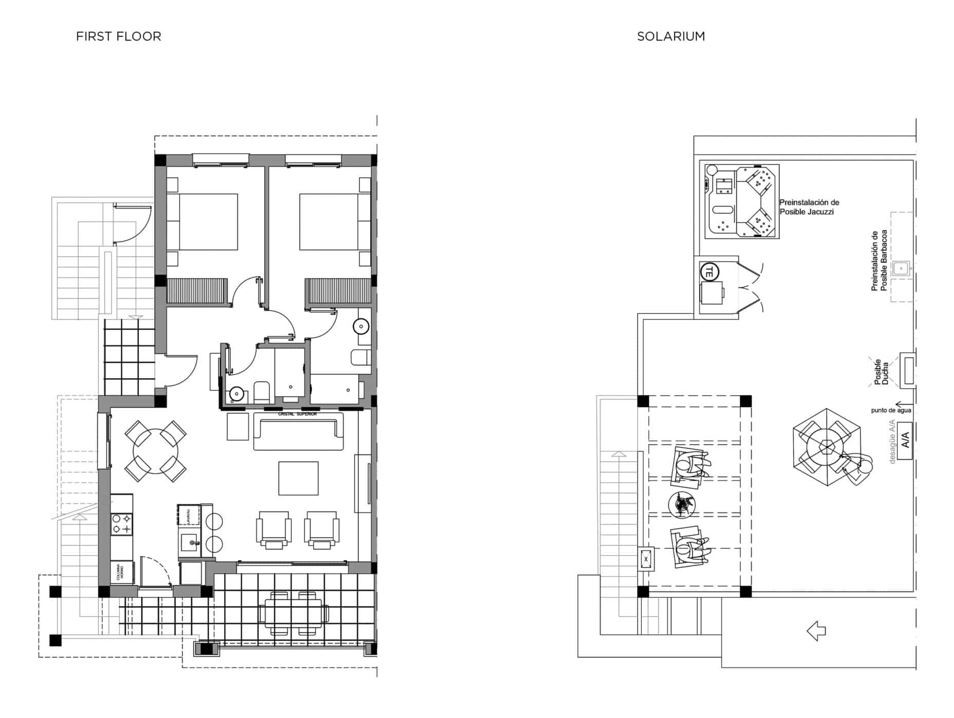
BOVENSTE BUNGALOW – 2 SLAAPKAMERS – 2 BADKAMERS – TERRAS EN SOLARIUM – ROJALES

Deze bungalow bevindt zich op de eerste verdieping en beschikt over slaapkamers en 2 badkamers. Via een buitentrap bereik je de woning, waar een ruime leefruimte met open keuken op je wacht. De keuken heeft een pré-installatie zonder toestellen, zodat je zelf je voorkeuren kunt bepalen. Grote schuiframen verbinden de woonkamer met het terras van 10m², een ideale plek om te ontspannen en te genieten van het Spaanse klimaat.

De hoofdslaapkamer heeft een ensuite badkamer. Beide badkamers zijn volledig afgewerkt met douche, meubel, wastafel, toilet, spiegel, doucheschermen en vloerverwarming. De slaapkamers zijn uitgerust met inbouwkasten met hangrekken en lades. Via een buitentrap bereik je het solarium van 75 m², afgewerkt met anti-sliptegels en voorzien van een pré-installatie voor een buitenkeuken. Er is ook een optie om een jacuzzi te plaatsen en een pergola zorgt voor extra schaduw en comfort.

De residentie beschikt over een gemeenschappelijk zwembad met groene zones, ligbedden en parasols, afgewerkt in een charmante Spaanse en Arabische stijl die zorgt voor een tropische sfeer. Het complex is beveiligd met camerabewaking en één centrale toegang, wat zorgt voor maximale rust en veiligheid. Elke woning heeft bovendien een privéparkeerplaats. Dankzij de ligging in Rojales, op korte afstand van La Marquesa Golf en de stranden van Guardamar en La Mata, combineert dit appartement kwaliteit, rust en een authentieke mediterrane levensstijl.

U bent nog niet aangemeld!

Na invullen van onderstaande gegevens wordt u aangemeld, indien er nog geen account bestaat kan deze aangemaakt worden!



 Geef ons uw mening...

 Momenteel nog geen reviews voor dit pand.

Uitgebreide beschrijving:

Deze bungalow is gelegen op de eerste verdieping en heeft 2 slaapkamers met 2 badkamers. Via een buitentrap bereik je de eerste verdieping. Er is een ruime leefruimte met open keuken voorzien. De keuken kent een pré-installatie, zonder elektrische apparaten. Vanuit de woonkamer kijk je via grote schuiframen uit op jouw ruim terras van 10m². 

Er zijn 2 slaapkamers met 2 badkamers. De hoofdslaapkamer heeft een badkamer-ensuite. Elke badkamer is uitgerust met een toilet, spiegel, badkamermeubel, wastafel, douche, doucheschermen én vloerverwarming. Alle slaapkamers zijn voorzien van inbouwkasten met hangrekken en lades. 

Via een andere buitentrap bereik je het solarium van 75m². Het solarium is volledig afgewerkt in anti-slip tegels. Op het solarium is er een pré-installatie van een buitenkeuken voorzien, met een spoelbak. Er is een mogelijkheid tegen een meerprijs om een privéjacuzzi te installeren op het solarium. Er is een pergola voorzien op het solarium, zo geniet je keer op keer van aangename temperaturen. Geniet van de zon de hele dag door op het dakterras!

In het complex is er een privéparkeerplaats voorbehouden voor jouw appartement. 

DUS CONCREET:

  • 2 slaapkamers
  • 2 badkamers
  • Open keuken 
  • Ruime leefruimte
  • Berging met technische installaties 
  • Solarium van 75m²

Er is een ruim gemeenschappelijk zwembad voorzien met groene gebieden. Bij het zwembad zijn er ligbedden en parasols zodat je optimaal kan genieten van een dagje zonnekloppen. Het gehele complex is afgewerkt in de authentieke Spaanse / Arabische stijl, wat tropische sferen geeft. Kom helemaal tot rust in deze kwaliteitsvolle residentie. De residentie is perfect beveiligd, het gehele wooncomplex komt binnen via 1 centrale ingang, waar er beveiligingscamera's hangen. Hierdoor is jouw veiligheid optimaal verzekerd! 

TECHNISCHE KENMERKEN:

  • Pré-installatie airconditioning
  • 2 zonnepanelen voor sanitair warm water
  • Elektrische rolluiken
  • Video-intercom

Ciudad Quesada, gelegen binnen de gemeente Rojales, is een verzorgde en levendige woonomgeving die de rust van het binnenland combineert met de nabijheid van zee en natuur. Vanaf de hoger gelegen delen heb je uitzicht op de zoutmeren van Torrevieja en La Mata, terwijl de stranden van Guardamar del Segura op slechts een korte rit liggen. Brede lanen, goed onderhouden tuinen en een groene omgeving zorgen voor een aangename uitstraling waar het mediterrane buitenleven centraal staat.

Het dagelijks leven in Ciudad Quesada is comfortabel en compleet. In het centrum vind je winkels, supermarkten, restaurants, apotheken, sportfaciliteiten en gezellige bars waar zowel locals als internationale bewoners samenkomen. De sfeer is ontspannen, gemoedelijk en toch levendig, zeker op zomeravonden wanneer terrassen volstromen en de temperatuur uitnodigt om tot laat buiten te blijven. Alles wat je nodig hebt ligt binnen handbereik, zonder dat het massatoeristische gevoel overheerst.

Een bijzonder kenmerk van deze plek is de golfbaan La Marquesa Golf, die zich door de vallei van Rojales slingert. De baan vormt een groen hart in de omgeving en biedt niet alleen sportmogelijkheden, maar ook mooie vergezichten over glooiend landschap en karakteristieke villa’s. Op korte afstand ligt het natuurpark van La Mata, met wandel- en fietspaden langs de zoutmeren waar flamingo’s en andere vogels leven. Ook de stranden van Guardamar, met hun duinen, pijnboombossen en kilometers aan zand, zijn gemakkelijk te bereiken.

Wat veel mensen niet weten, is dat Rojales onder de urbanisatie een netwerk van grothuizen herbergt. Deze oude woningen, uitgehouwen in de rotsen door arbeiders in de vorige eeuwen, worden tegenwoordig gebruikt door kunstenaars en ambachtslieden. In de wijk El Rodeo kun je deze grothuizen bezoeken en binnenlopen bij ateliers waar keramiek, schilderkunst en handwerk tot leven komen.

Daarnaast heeft Ciudad Quesada een onverwachte traditie van kleinschalige, lokale festiviteiten. Ondanks de internationale gemeenschap worden Spaanse gewoontes hier met trots in ere gehouden. Tijdens patronale feesten zie je optochten, vuurwerk, muziek en inwoners die samenkomen op pleinen om traditionele gerechten te delen. In de vroege ochtend wandelen bewoners richting de zoutmeren of door de sinaasappelvelden net buiten Rojales, terwijl ’s avonds de terrassen zich vullen met het zachte geroezemoes van gesprekken en het licht van lantaarns. Dat dagelijkse ritme, tussen natuur, comfort en gemeenschap, maakt Ciudad Quesada zo bijzonder.

AFSTANDEN: 

  • Golfbaan La Marquesa op een paar minuten 
  • Stranden van Guardamar, La Mata en Torrevieja: 15km 
  • Luchthaven van Alicante: 40km 

Onze visie binnen Casas Kimpencio;

  • Bij Casas Kimpencio ben je niet zomaar iemand, wij willen een persoonlijke relatie aangaan.
  • We behandelen jullie zoals we zelf behandeld willen worden, met de nodige betrokkenheid, precisie en details.
  • Geen enkele vraag is ons te veel, we staan elke dag telefonisch voor jou klaar.
  • Wij hebben de gedachte dat een huis kopen niet zomaar een huis kopen is, maar een nieuwe thuis kopen.
  • Iedereen dient een eigen verhaal te krijgen, met verschillende hoofdstukken. 
  • Wij willen helpen aan het Spaanse hoofdstuk, een hoofdstuk van een nieuwe thuis, vakantiewoning of een investering.
  • En dit doen we met open, duidelijke communicatie  en daarmee geraken we er altijd, zo vinden we jouw ideale woning gebaseerd op meerdere gesprekken.
  • We helpen vanaf het begin tot aan de sleuteloverdracht, en ver daarbuiten. 

Wij vinden deze woning bijzonder omdat; 

  • De woning voorzien is van 2 slaapkamers en 2 badkamers, afgewerkt in een stijlvolle Moorse look die authenticiteit en modern comfort combineert.

  • De ruime leefruimte met open keuken veel natuurlijk licht krijgt via grote schuiframen en uitkijkt op de privébuitenruimte.

  • De keuken klaarstaat met pré-installatie, zodat je zelf toestellen kan kiezen en plaatsen.

  • De hoofdslaapkamer beschikt over een ensuite badkamer, en beide badkamers zijn uitgerust met douche, wastafelmeubel, toilet, spiegel, doucheschermen en vloerverwarming.

  • Elke slaapkamer ingebouwde kasten heeft met hangrekken en lades, waardoor alle ruimte efficiënt benut wordt.

  • Rondom de woning veel buitenruimte aanwezig is met terras, aangelegde tuin, bioklimatologische pergola en een aparte berging/technische ruimte.

  • De residentie een groot gemeenschappelijk zwembad biedt met ligbedden, parasols en groene zones in authentieke Spaanse/Arabische stijl, ideaal om volledig tot rust te komen.

  • Extra comfort aanwezig is dankzij parkeerplaats op eigen perceel, beveiligde toegang met camerabewaking, elektrische rolluiken, video-intercom, zonnepanelen en pré-installatie voor airconditioning.

WONINGEN IN RESIDENTIE LUISA: 

Type woning  Aantal slaapkamers / badkamers  Terras in m² Bebouwde oppervlakte  Prijs 
Gelijkvloerse bungalow  2/2 11m² 80m² €314.000
Bovenste bungalow  2/2 85m² 79m² €321.000

GROEI EN TRENDS IN CIUDAD QUESADA: 

Jaar  Prijs per m² Jaarlijkse stijging 
2023 €2.105 -
2024 €2.304 +9.5%
2025 €2.518 +9.3%


Kenmerken:

Aantal slaapkamers 2
Aantal badkamers 2
Bebouwde oppervlakte 79 m²
Bewoonbare oppervlakte 73 m²
Afstand naar het strand 6 km
Terras oppervlakte 10 m²
Gedeeld zwembad Ja
Poort Ja
Nabij Scholen Ja
Nabij Commercieel centrum Ja
Terras Ja
Fietsafstand van het strand Ja
Vloerverwarming badkamer Ja
Douche schermen Ja
Solarium Ja
Solarium oppervlakte in m2 70-80 m²
Pré installatie airco Ja
Elektrische rolluiken Ja
Led verlichting buiten Ja
Led verlichting binnen Ja
privé parkeerplaats Ja
Telefoon Data aansluiting Ja
Videofonie Ja
Inbouwkasten Ja
Elektrische poort Ja
Badkamer spiegels Ja
Pre installatie keuken Ja
Nabij kinder speeltuin Ja
Berging Ja
Gedeelde tuin Ja
Uitzicht tuin Ja
Golfresort afstand in km 2-5 km
Ziekenhuis afstand in km 5-10 km
Luchthaven Alicante afstand 30-40 km
Luchthaven Murcia afstand 50+ km
Gedeelde kosten Ja
Ontspanning ruimte buiten Ja
Hangend toilet Ja
Hangend badkamer meubel Ja
Zonnepanelen Ja
Uitzicht op het zwembad Ja
Gepantserde toegangsdeur met veiligheidsslot Ja
Kunstgras Ja
Bioklimatologische pergola Ja
Hoogwaardige afwerking Ja
Goede prijs-kwaliteit verhouding Ja
Aerothermische boiler Ja
Bungalow Ja
Kijkwoning Ja
Automatische irrigatie in de tuin. Ja
Energielabel B
Afgewerkte badkamer Ja
Gesloten urbanisatie Ja

Meer info?


Beschikbare documenten

penthouse.jpeg

document-penthouse.jpeg

download

Ontdek wat we nog meer voor jou in petto hebben!

Villa op een groot perceel met uitzicht op natuur
Villa op een groot perceel met uitzicht op natuur

Project: Herverkoop van villa op groot perceel nabij golf

Stad: Ciudad Quesada

4   3   300 m²  

Villa Catherine in Ciudad Quesada
Villa Catherine in Ciudad Quesada

Project: Residentie villa Catherine in Ciudad Quesada

Stad: Ciudad Quesada

4   3     244 m²   32 m²  

Villa Laura in Ciudad Quesada
Villa Laura in Ciudad Quesada

Project: Residentie villa Laura in Ciudad Quesada

Stad: Ciudad Quesada

3   2     288 m²   45 m²  

Bovenste bungalow in residentie Luisa
Bovenste bungalow in residentie Luisa

Project: Residentie Luisa bungalow in Ciudad Quesada

Stad: Ciudad Quesada

3   2   114 m²   10 m²  

Exclusieve nieuwbouwwoningen in Ciudad Quesada
Exclusieve nieuwbouwwoningen in Ciudad Quesada

Project: AREA BEACH V LO MARABU

Stad: Ciudad Quesada

2   2     73 m²    

Prachtige losstaande villa op groot perceel
Prachtige losstaande villa op groot perceel

Project: Residentie Numa 2 in Ciudad Quesada

Stad: Ciudad Quesada

3   3     258 m²   20 m²  

Moderne villa met zwembad in Julieta 5
Moderne villa met zwembad in Julieta 5

Project: Villa's Julieta 5 in Ciudad Quesada

Stad: Ciudad Quesada

4   4     257 m²   126 m²  

Villa Cibeles in Ciudad Quesada
Villa Cibeles in Ciudad Quesada

Project: Villas in Ciudad Quesada met zicht op de bergen

Stad: Ciudad Quesada

4   3     245 m²   95 m²  

Villa Leonor in Ciudad Quesada
Villa Leonor in Ciudad Quesada

Project: Villa's Leonor in Ciudad Quesada

Stad: Ciudad Quesada

3   2     140 m²   68 m²  

Moderne GIRALDA Villa in Ciudad Quesada
Moderne GIRALDA Villa in Ciudad Quesada

Project: GIRALDA villas in Ciudad Quesada

Stad: Ciudad Quesada

3   2     214 m²   93 m²  

Prachtige losstaande villa op groot perceel
Prachtige losstaande villa op groot perceel

Project: Residentie Numa 3 in Ciudad Quesada

Stad: Ciudad Quesada

3   3     258 m²   20 m²  

Gelijkvloers appartement met tuin - Jazmin Garden
Gelijkvloers appartement met tuin - Jazmin Garden

Project: Residentie Adhara appartementen in Ciudad Quesada

Stad: Ciudad Quesada

3   2   162 m²   150 m²  

Lees mee met onze nieuwste blogs!

Ijsconsumptie in Spanje
Ijsconsumptie in Spanje
Martine

Wat zijn de drukste Spaanse snelwegen?
Wat zijn de drukste Spaanse snelwegen?

Spanje heeft een van de drukste wegennetten van Europa. In deze gids ontdek je waar de files het zwaarst zijn, waarom bepaalde snelwegen vastlopen en hoe jij slim reist.

...

Martine

Spanje is leider van hernieuwbare energie in EU
Spanje is leider van hernieuwbare energie in EU

Dankzij de verschillende troeven die het Spaanse land heeft, zoals zon én wind, is Spanje koploper in hernieuwbare energie in de Europese Unie. Spanje investeert in hernieuwbare energie zowel op nationaal niveau, als individueel thuis. Dankzij een ambitieus beleid en stimulerende regelgeving wor...

Juliette

square-box
Tine
Vragen over panden, projecten en onze content
Snel starten:

Hallo, ik ben Tine je kan bij mij terecht met al je vragen over panden, projecten en onze content. Ik antwoord alleen op basis van de beschikbare website-inhoud.