Home Lopende projecten Alle Panden Over ons Ons team Ons kantoor Onze werkwijze Contacteer ons Blog Cookies

Moderne appartementen in Hondón de las Nieves

 Project: Moderne appartementen in Hondón de las Nieves

Moderne appartementen met prachtig uitzicht op de wijngaard

Korte beschrijving:

Moderne appartementen in Hondón de las Nieves – Omringd door natuur en rust

Gelegen in het charmante dorpje Hondón de las Nieves, bieden deze stijlvolle appartementen een perfecte combinatie van modern comfort en de rust van het Spaanse binnenland.

Geniet van een adembenemend panoramisch uitzicht over uitgestrekte wijngaarden en de omliggende natuur.

🔹 Keuze uit 1, 2 of 3 slaapkamers – ideaal voor zowel singles, koppels als gezinnen

🔹 Hoogwaardige afwerking en energie-efficiënte voorzieningen

🔹 Ruim terras om optimaal te genieten van de mediterrane sfeer

🔹 Slechts 30 minuten van de kust en dichtbij alle nodige voorzieningen

🔹 Uitstekende investeringskans in een opkomende regio

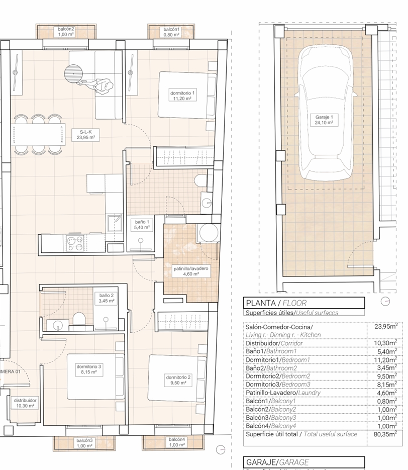
Dit prachtige appartement met 3 slaapkamer en 2 badkamer heeft een slimme indeling  van 92m² met een open leefruimte, moderne keuken en een terras van 4m².

Perfect voor een tweede verblijf of als rendabele investering.

📅 Opleverdatum: 1 mei 2025

💰 Prijs vanaf: €250.000

Wil jij genieten van rust, natuur en modern wooncomfort in een idyllische setting?

Neem contact met ons op voor meer info of een bezichtiging! 🌿🏡

U bent nog niet aangemeld!

Na invullen van onderstaande gegevens wordt u aangemeld, indien er nog geen account bestaat kan deze aangemaakt worden!



 Geef ons uw mening...

 Momenteel nog geen reviews voor dit pand.

Uitgebreide beschrijving:

Moderne appartementen met panoramisch uitzicht op de wijngaarden van Hondón de las Nieves

Welkom in het exclusieve CIERNA-gebouw, een moderne woonontwikkeling in het charmante Hondón de las Nieves.

Dit exclusieve wooncomplex biedt appartementen met 1, 2 en 3 slaapkamers, allemaal ontworpen om comfort, energie-efficiëntie en een adembenemend uitzicht op de wijngaarden van de Vinalopó te bieden.

Dit rustige gebied ligt in de regio Vinalopó Medio

En is perfect voor wie op zoek is naar een ontspannen mediterrane levensstijl met gemakkelijke toegang tot de natuur en essentiële diensten.Het is een plantaardige vallei, omgeven door uitgestrekte olijf- en amandelboomgaarden, biedt dit project een unieke woonervaring in een rustige en authentieke Spaanse omgeving.

Wonen in stijl en comfort

Deze stijlvolle nieuwbouwappartementen zijn ontworpen voor een optimale woonbeleving en zijn beschikbaar in diverse indelingen:

✔1 slaapkamer en 1 badkamer

✔ 2 slaapkamers & 2 badkamers

✔ 3 slaapkamers en 2 badkamers

Elk appartement is uitgerust met een grote garage en biedt een prachtig uitzicht op de uitgestrekte wijngaarden van de Vinalopó-streek en is perfect voor wie houdt van rust, natuur en de mediterranese klimaat

Hoogwaardige afwerking en moderne faciliteiten

Elk appartement is gebouwd met eersteklas materialen en afwerkingen, waardoor zowel stijl als functionaliteit gegarandeerd zijn

Bovendien zijn er zonnepanelen geïnstalleerd op het dak om de energie-efficiëntie te verbeteren en de energiekosten te verlagen.

De woningen in dit project worden gebouwd met oog voor kwaliteit en energie-efficiëntie. Een greep uit de kenmerken:

✅ Ruime interieurs met open indelingen

✅ Volledig ingerichte keukens met granieten werkbladen.

✅ Hoogwaardige badkamers met ingebouwde reservoirs en sanitair van topkwaliteit.

✅ Energie-efficiënt ontwerp met aerothermische waterverwarming.

✅  Vooraf geïnstalleerde airconditioning voor comfort het hele jaar door.

✅Aluminium ramen met dubbele beglazing en thermische isolatie.

✅ Versterkte beveiligde toegangsdeur voor extra gemoedsrust.

✅ Privégarage op de begane grond inbegrepen.

✅Lift toegang voor gemak.

✅zonnepanelen geïnstalleerd op het dak om de energie-efficiëntie te verbeteren en de energiekosten te verlagen.

✅Individuele afgesloten garage

Een toplocatie in de regio Vinalopó Medio

De plaats ligt in het zuidwesten van de provincie Alicante, in de regio Vinalopó Medio In deze vallei, beschermd door het Crevillente-gebergte, groeit de heerlijke tafeldruif met de oorsprongsbenaming "Vinalopó bagged table grape". Daarnaast biedt de stad diverse natuurgebieden en gebouwen van historische en culturele waarde die zeker een bezoek waard zijn.

Hondón de las Nieves, een charmant stadje in een schilderachtige vallei omringd door olijfbomen en amandelbomen en een idyllisch dorp dat bekend staat om zijn wijntraditie en prachtige natuur..Het ligt in het verborgen van de provincie Alicante en omvat drie gezellige woonkernen:

1:Hondón de las Nieves:

 Een stad in volle groei! Profiteer nu van de beste lanceringsprijzen en investeer slim in een regio met enorme potentie.

Dit is hét moment om in te stappen! 

https://casas-kimpencio.com/website/projects/residentie-lolm-in-hondon-de-las-nieves-851

https://casas-kimpencio.com/website/projects/grape-town-villa-hondon-de-los-nieves-488

https://casas-kimpencio.com/website/projects/villas-en-hondon-de-las-nieves-498

https://casas-kimpencio.com/website/projects/la-montanosa

2:La Canalosa

(waar de bouwheer ook een andere fantastische ontwikkeling heeft gebouwd) https://casas-kimpencio.com/website/projects/la-canalosa-hondon-de-los-nieves-135

3:El Rebalso.

Ontdek deze moderne appartementen in Hondón de las Nieves, een charmant stadje in een schilderachtige vallei omringd door olijfbomen en amandelbomen. Dit exclusieve wooncomplex biedt appartementen met 1, 2 en 3 slaapkamers, allemaal ontworpen om comfort, energie-efficiëntie en een adembenemend uitzicht op de wijngaarden van de Vinalopó te bieden. Dit rustige gebied ligt in de regio Vinalopó Medio en is perfect voor wie op zoek is naar een ontspannen mediterrane levensstijl met gemakkelijke toegang tot de natuur en essentiële diensten. 

Dit charmante gebied biedt niet alleen een ontspannen sfeer, maar ook toegang tot belangrijke bezienswaardigheden.

📍 Luchthaven Alicante– 30 km (30 minuten rijden)

📍Stranden van Alicante – 35km (35 minuten rijden)

📍 *Elx – 20km (20 minuten rijden)

📍Natuurpark Crevillente – 10 km (15 minuten rijden)

📍 Golfbanen – 25 km (30 minuten rijden)

Hoogwaardige afwerking en materialen van de woningen

Buitengevels en binnenmuren

  • Buitengevel: Keramisch baksteenmetselwerk (½-steen dik) met thermische isolatie en een binnenafwerking van holle bakstenen.

  • Binnenmuren tussen woningen: Dubbele keramische bakstenen met 50 mm rotswol isolatie voor extra geluids- en warmte-isolatie.

  • Buitenafwerking: Monolaag mortelcoating voor een strakke en duurzame afwerking.

Vloeren en wandbekleding

  • Grote porseleinen vloertegels door de hele woning (AENOR-gecertificeerd) of optioneel hoogwaardig laminaatparket (Parador-type).

  • In natte ruimtes: Vloer-tot-plafond keramische wandtegels (AENOR-gecertificeerd).

  • Verlaagd plafond in de gehele woning voor een strakke afwerking.

Interieurafwerking

  • Witte gelakte binnendeuren.

  • Versterkte voordeur met veiligheidslot.

  • Ingebouwde kasten met textiel melamine afwerking en schuifdeuren.

Buitenramen en Deuren

  • Geanodiseerd aluminium ramen met thermische onderbreking en dubbel glas voor energie-efficiëntie.

  • Houten luiken van het traditionele Alicante-type voor een sfeervolle uitstraling.

Schilderwerk

  • Glad geschilderde muren en plafonds in neutrale tinten voor een moderne en lichte uitstraling.

Elektrische Installatie

  • Installatie volgens de Spaanse regelgeving (R.E.B.T. – Laagspanningsreglement).

  • Hoog niveau van elektrificatie voor optimaal comfort.

  • Stopcontacten en schakelaars van Efapel of gelijkwaardig.

  • Video-intercom en glasvezelaansluiting voor snelle internetverbinding.

Sanitair en Warmwaterinstallatie

  • Hoogwaardig sanitair met ingebouwd waterreservoir.

  • Luxe kranen en afwerkingen.

  • Warmwatervoorziening via een energiezuinig aerothermisch systeem conform de CTE-normen.


  • Keuken

    • Moderne, ingerichte keukens met werkbladen van graniet, Silestone of een vergelijkbaar materiaal.

    • Uitgerust met een afzuigkap voor optimale ventilatie.

    Dakterras

    • Bewandelbaar plat dak met omgekeerde dakconstructie.

    • Afwerking met hydraulische tegels voor een duurzame en stijlvolle uitstraling.

    Liften

    • Elektrische liften geschikt voor 6 personen.

    • Automatische deuren op zowel verdiepingen als in de cabine.

    • Afwerking in roestvrij staal voor een luxe uitstraling.

    Klimaatregeling

    • Voorzien van een pre-installatie voor airconditioning via luchtkanalen, waardoor koeling en verwarming eenvoudig te integreren zijn.

    Duurzame Energie

    • Fotovoltaïsche zonnepanelen op het dak voor energiebesparing en een lagere energierekening.

    Deze woningen combineren moderne luxe met duurzaamheid en comfort! 🌿🏡✨

    Deze woningen combineren comfort, stijl en duurzaamheid, met hoogwaardige materialen en moderne afwerkingen! 


    Een investering in kwaliteit en levensgenot


    Of je nu op zoek bent naar een vakantiehuis, een vastgoedbelegging of een rustige plek om het hele jaar door te wonen, deze moderne appartementen zijn de perfecte keuze. Neem vandaag nog contact met ons op voor meer informatie of om een bezichtiging te plannen!

    📩 Wil je meer informatie of een bezichtiging plannen?Neem contact op met Casas Kimpencio!

    Je perfecte thuis in het hart van het platteland van Alicante

    Geniet van de rust van de Hondón Vallei terwijl je dicht bij de bruisende steden Alicante en Elche verblijft.


Kenmerken:

Aantal slaapkamers 3
Aantal badkamers 2
Privaat zwembad Nee
Oppervlakte perceel rond het huis 0 m²
Bebouwde oppervlakte 92 m²
Bewoonbare oppervlakte 71 m²
Afstand naar het strand 37 km
Terras oppervlakte 4 m²
Nabij Scholen Ja
Terras Nee
Fietsafstand van het strand Nee
Douche schermen Ja
Nabij bushalte Ja
Pré installatie airco Ja
privé parkeerplaats Ja
Garage Ja
Telefoon Data aansluiting Ja
Videofonie Ja
Badkamer spiegels Ja
Volledig bemeubeld Nee
Alle keuken apparatuur volledig inbegrepen Ja
Golfresort afstand in km 10-15 km
Ziekenhuis afstand in km 5-10 km
Luchthaven Alicante afstand 40-50 km
Uitzicht bergen Ja
Lift Ja
Hangend toilet Ja
Hangend badkamer meubel Ja
Security glas met uv filter Ja
Volledig ingerichte keuken Ja
Gepantserde toegangsdeur met veiligheidsslot Ja
Hoogwaardige afwerking Ja
Goede prijs-kwaliteit verhouding Ja
Aerothermische boiler Ja
Meubelpakket Optioneel
Kijkwoning Ja
Fietsberging Ja
Energielabel A
Afgewerkte badkamer Ja

Meer info?


Beschikbare documenten

Schermopname_6-6-2025_203349_.jpeg

document-Schermopname_6-6-2025_203349_.jpeg

download

Ontdek en droom mee van al het nieuws in Spanje!

Nieuwbouwappartement in Avileses
Nieuwbouwappartement in Avileses

Project: AVILESES-VIRGEN DEL CARMEN appartementen

Stad: Avileses

1   1     44 m²  

Instapklaar 2-slpk appartement in hartje Avileses
Instapklaar 2-slpk appartement in hartje Avileses

Project: AVILESES-VIRGEN DEL CARMEN appartementen

Stad: Avileses

2   1     52 m²  

Toeristisch appartement met rendement Finestrat
Toeristisch appartement met rendement Finestrat

Project: Appartement met verhuurlicentie Costa Blanca

Stad: Finestrat-Benidorm

1   1     34 m²   1 m²  

Casas Kimpencio leert je alles wat je moet weten:

Nieuwbouw vs bestaande woning Spanje kiezen
Nieuwbouw vs bestaande woning Spanje kiezen

Nieuwbouw of bestaande woning kopen in Spanje lijkt een eenvoudige keuze… tot je er écht induikt.

Want wat op het eerste zicht goedkoper lijkt, kan op lange termijn duurder uitvallen. En wat duurder lijkt, kan net de slimste investering zijn.

Bij Casas Kimpencio zien we dagelij...

Martine

Casas Kimpencio specialist vastgoed Spanje!
Casas Kimpencio specialist vastgoed Spanje!

Casas Kimpencio Vastgoed Spanje groeit uit tot dé referentie voor wie een huis wil kopen in Spanje

Huis kopen in Spanje met Casas Kimpencio Nederlandstalige makelaar


...

Martine

Vliegschow Los Alcázares beleven in Spanje
Vliegschow Los Alcázares beleven in Spanje

Het spektakel van de vliegfeesten, de unieke ligging aan de Mar Menor en de aantrekkelijke vastgoedkansen in de regio. 

De vliegfeesten in Los Alcázares zijn een uniek spektakel boven de Mar Menor, met internationale airshows, historische roots en een levendige sfeer.

Wat wei...

Martine

square-box
Tine
Vragen over panden, projecten en onze content
Snel starten:

Hallo, ik ben Tine je kan bij mij terecht met al je vragen over panden, projecten en onze content. Ik antwoord alleen op basis van de beschikbare website-inhoud.