Gelijkvloerse bungalow met tuin in Alba Salina 5

 Project: Residentie Alba Salina 5 in Rojales

Nieuwbouwbungalows in Rojales nabij alle voorzieningen

Korte beschrijving:

GELIJKVLOERSE BUNGALOW MET TUIN – 2 SLAAPKAMERS – ROJALES

Deze gelijkvloerse bungalow is volledig op één niveau ingedeeld en beschikt over 2 slaapkamers en 2 badkamers, ideaal voor comfortabel en toegankelijk wonen. Bij het betreden van de woning kom je terecht in de open leefruimte met een U-vormige keuken, uitgerust met alle elektrische toestellen en een gezellige ontbijtbar. De woonkamer sluit via grote schuiframen rechtstreeks aan op het terras en de tuin, waardoor binnen en buiten moeiteloos in elkaar overlopen. In de woning is bovendien een aparte berging voorzien met aerothermische boiler en wasmachine.

Beide slaapkamers zijn voorzien van ingebouwde kasten en een eigen badkamer. De hoofdslaapkamer beschikt over een badkamer-ensuite en heeft directe toegang tot het terras. De badkamers zijn volledig afgewerkt met douche, doucheschermen, wastafelmeubel, toilet en vloerverwarming, wat zorgt voor extra comfort het hele jaar door. Dankzij de gelijkvloerse indeling en de slimme ruimteverdeling voelt deze bungalow praktisch, ruim en aangenaam aan.

Buiten geniet je van een private tuin van maar liefst 46 m², perfect om te zonnen, te ontspannen of optioneel een jacuzzi te plaatsen. De woning beschikt over een ondergrondse parkeerplaats met pré-installatie voor een laadpunt voor elektrische wagens. Met zonnepanelen, zonwerende beglazing, elektrische rolluiken in de slaapkamers en pré-installatie voor airconditioning is deze bungalow energiezuinig en toekomstgericht. Gelegen in Rojales combineert deze woning rustig wonen met nabijheid van winkels, golf, natuur en de stranden van Guardamar.

U bent nog niet aangemeld!

Na invullen van onderstaande gegevens wordt u aangemeld, indien er nog geen account bestaat kan deze aangemaakt worden!



 Geef ons uw mening...

 Momenteel nog geen reviews voor dit pand.

Uitgebreide beschrijving:

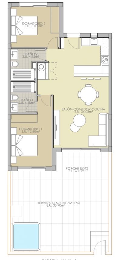
Deze woning is gelegen op de begane vloer en voorzien van 2 slaapkamers met 2 badkamers. We nemen even een kijkje doorheen de woning, zodat je een duidelijk beeld hebt van hoe de bungalow in elkaar zit. We betreden de woning via een ruime inkomdeur en komen terecht in de open keuken met ruime woonkamer. 
De keuken kent een U-vorm, zodat je compact kan koken met alles dichtbij. Aan de keuken is er ook een ontbijtbar gelegen met barstoelen, zodat je gezellig kan ontbijten. De keuken is voorzien van een dampkap, keramische kookplaat, koelkast, oven, vaatwasser. Ideaal dus om zorgeloos in te stappen!

In de woonkamer is er ook een afgesloten berging gelegen met aerothermische boiler én wasmachine. De woonkamer kijkt via grote schuiframen uit op het ruime terras. 

De bungalow is voorzien van 2 slaapkamers met 2 badkamers. De hoofdslaapkamer heeft een badkamer-ensuite én directe toegang tot het terras via schuiframen. De andere slaapkamer heeft ook een eigen badkamer, maar geen ensuite. 

Elke slaapkamers zijn voorzien van inbouwkasten met hangrekken, legplanken en lades. Alle badkamers zijn uitgerust met wastafel, bijpassend meubel, spiegel met verlichting, douche met doucheschermen, toilet én vloerverwarming. 

DUS CONCREET: 

  • 2 slaapkamers
  • 2 badkamers
  • Berging met wasmachine en aerothermische boiler
  • Uitgeruste keuken met toestellen 
  • Afgewerkte badkamers met vloerverwarming 

Deze woning is gelegen op de gelijkvloerse verdieping, hierdoor geniet je van een ruime tuin van maar liefst 46m². Dankzij de tuin geniet je van voldoende buitenruimte om te genieten van de Spaanse zon. Er is een mogelijkheid om een jacuzzi te plaatsen op jouw terras. 

Elke woning heeft een ondergrondse parkeerplaats, bereikbaar via de gemeenschappelijke garageingang met afstandsbediening. Bij de parkeerplaats is er een pré-installatie voorzien van een laadpunt voor de elektrische wagen. 

TECHNISCHE KENMERKEN: 

  • Elektrische rolluiken in de slaapkamers
  • Beglazing met zonnewering 
  • Pré-installatie airconditioning 
  • Beveiligde voordeur
  • Zonnepanelen voor elektrische verbruik
  • Pré-installatie jacuzzi

Deze woning is gelegen in Rojales. Rojales, gelegen in het zuiden van de provincie Alicante, is een karaktervolle gemeente aan de rand van de Vega Baja del Segura waar traditie, cultuur en natuur samenkomen. Het dorp ligt iets landinwaarts, maar blijft sterk verbonden met de kust dankzij de nabijheid van Guardamar del Segura. Rojales ademt een authentieke Spaanse sfeer, met een historisch centrum dat zich uitstrekt langs de rivier de Segura en wordt gekenmerkt door bruggen, pleinen en statige gebouwen. Hier leeft het dagelijkse leven nog op een rustig en menselijk tempo.

Het centrum van Rojales biedt een aangename mix van lokale winkels, cafés, restaurants en voorzieningen. De gemeente bestaat uit verschillende wijken en urbanisaties, waaronder ook Ciudad Quesada, wat zorgt voor een dynamische en diverse gemeenschap. Cultureel heeft Rojales veel te bieden: musea, kunstgalerijen en vooral de bekende grotwoningen in de wijk El Rodeo, waar kunstenaars en ambachtslieden hun ateliers hebben gevestigd. Dit geeft het dorp een creatieve en bijna bohemien uitstraling die je zelden vindt in deze regio.

De omgeving van Rojales is ideaal voor wie houdt van natuur en buitenleven. Langs de rivier lopen wandel- en fietspaden, terwijl de nabijgelegen zoutmeren en duingebieden van Guardamar zorgen voor prachtige natuuruitstappen. Ook golfers komen hier aan hun trekken, met meerdere golfbanen in de directe omgeving. Dankzij het milde mediterrane klimaat met veel zonuren is het hele jaar door buitenleven mogelijk, zonder de drukte van de grotere kuststeden.

Wat veel mensen niet weten, is dat Rojales een van de meest cultureel actieve dorpen van de regio is. De grotwoningen van El Rodeo zijn niet alleen historisch, maar vormen vandaag een levendig centrum voor kunst, muziek en lokale evenementen. Regelmatig worden hier tentoonstellingen, workshops en kleine concerten georganiseerd, vaak gratis toegankelijk en sterk verbonden met de lokale gemeenschap.

Daarnaast heeft Rojales een sterke band met het landschap en de landbouw. De irrigatiesystemen rond de rivier de Segura stammen deels uit de Moorse periode en worden nog steeds gebruikt. In de vroege ochtend hangt er een bijzondere rust over de velden en boomgaarden rondom het dorp, wanneer het licht zacht over het landschap valt en het dagelijkse leven langzaam op gang komt. Het zijn precies die momenten die Rojales zijn warme, authentieke karakter geven.

AFSTANDEN: 

  • Strand Guardamar del Segura: ca. 7 km

  • Winkels en supermarkten: ca. 1 km

  • Restaurants en cafés: ca. 500 m

  • Golfbaan La Marquesa: ca. 2 km

  • Zoutmeren La Mata en Torrevieja: ca. 6 km

  • Centrum Ciudad Quesada: ca. 3 km

  • Ziekenhuis Torrevieja: ca. 10 km

  • Luchthaven Alicante: ca. 38 km

Onze visie binnen Casas Kimpencio;

  • Bij Casas Kimpencio ben je niet zomaar iemand, wij willen een persoonlijke relatie aangaan.
  • We behandelen jullie zoals we zelf behandeld willen worden, met de nodige betrokkenheid, precisie en details.
  • Geen enkele vraag is ons te veel, we staan elke dag telefonisch voor jou klaar.
  • Wij hebben de gedachte dat een huis kopen niet zomaar een huis kopen is, maar een nieuwe thuis kopen.
  • Iedereen dient een eigen verhaal te krijgen, met verschillende hoofdstukken. 
  • Wij willen helpen aan het Spaanse hoofdstuk, een hoofdstuk van een nieuwe thuis, vakantiewoning of een investering.
  • En dit doen we met open, duidelijke communicatie  en daarmee geraken we er altijd, zo vinden we jouw ideale woning gebaseerd op meerdere gesprekken.
  • We helpen vanaf het begin tot aan de sleuteloverdracht, en ver daarbuiten. 

Wij vinden deze woning bijzonder omdat;

  • Gelijkvloerse bungalow met tuin van 46m² – geen trappen, directe buitenbeleving en voldoende ruimte om te loungen, zonnen of een jacuzzi te plaatsen

  • Twee slaapkamers met elk een eigen badkamer – ideaal voor privacy, zowel voor vaste bewoning als comfortabel logeren

  • Hoofdslaapkamer met directe toegang tot het terras – wakker worden en meteen buiten stappen onder de Spaanse zon

  • Volledig uitgeruste U-vormige keuken met ontbijtbar – compact, praktisch en gezellig, alles binnen handbereik tijdens het koken

  • Badkamers met vloerverwarming en doucheschermen – dagelijks comfort dat je écht voelt, ook tijdens de wintermaanden

  • Inpandige berging met aerothermische boiler en wasmachine – slim weggewerkt, geen verloren ruimte en extra gebruiksgemak

  • Ondergrondse parkeerplaats met pré-installatie laadpunt – veilig parkeren én klaar voor elektrisch rijden

  • Zonnepanelen voor lager energieverbruik – toekomstgericht wonen met lagere vaste kosten

  • Beveiligde voordeur en zonwerende beglazing – extra wooncomfort, veiligheid en een aangenaam binnenklimaat

  • Gelegen in Rojales, vlak bij natuur, golf en kust – een perfecte balans tussen authentiek dorpsleven en vlotte bereikbaarheid

WONINGEN BINNEN ALBA SALINA 5:

Type woning  Aantal slaapkamers / badkamers Bebouwde oppervlakte  Terras in m²
Prijs 
Gelijkvloerse bungalow  2/2 76m² 46m² €260.900
Bovenste bungalow  2/2 76m² 80m² €280.900

TRENDS EN GROEI IN ROJALES: 

Jaar  Prijs per m² Jaarlijkse stijging 
2023 €1.822 -
2024 €2.242 +23.1%
2025 €2.304 +2.8%



Kenmerken:

Aantal slaapkamers 2
Aantal badkamers 2
Bebouwde oppervlakte 76 m²
Bewoonbare oppervlakte 70 m²
Afstand naar het strand 7 km
Terras oppervlakte 46 m²
Poort Ja
Nabij Scholen Ja
Nabij Commercieel centrum Ja
Nabij bushalte Ja
Terras Ja
Fietsafstand van het strand Ja
Vloerverwarming badkamer Ja
Douche schermen Ja
Jaccuzi Optioneel
Pré installatie airco Ja
Elektrische rolluiken Ja
Led verlichting buiten Ja
Led verlichting binnen Ja
privé parkeerplaats Ja
Ondergrondse parking Ja
Telefoon Data aansluiting Ja
Videofonie Ja
Inbouwkasten Ja
Elektrische poort Ja
Pre installatie elektrisch laadpunt Ja
Badkamer spiegels Ja
Alle keuken apparatuur volledig inbegrepen Ja
Kookplaat Dampkap Magnetron & Oven Ja
Nabij kinder speeltuin Ja
Private Tuin Ja
Uitzicht tuin Ja
Golfresort afstand in km 0-2 km
Ziekenhuis afstand in km 0-5 km
Luchthaven Alicante afstand 30-40 km
Luchthaven Murcia afstand 50+ km
Gedeelde kosten Ja
Lift Ja
Ontspanning ruimte buiten Ja
Hangend toilet Ja
Hangend badkamer meubel Ja
Zonnepanelen Ja
Volledig ingerichte keuken Ja
Dampkap Ja
Gepantserde toegangsdeur met veiligheidsslot Ja
Hoogwaardige afwerking Ja
Goede prijs-kwaliteit verhouding Ja
Aerothermische boiler Ja
Gelijkvloers Ja
Bungalow Ja
Energielabel B
Afgewerkte badkamer Ja
Gesloten urbanisatie Ja

Meer info?


Beschikbare documenten

gelijkvloers 2-2.jpeg

document-gelijkvloers 2-2.jpeg

download

Ontdek wat we nog meer voor jou in petto hebben!

Gelijkvloerse bungalow San Pedro del Pinatar
Gelijkvloerse bungalow San Pedro del Pinatar

Project: Woning Spanje kopen? Bella Salina vanaf €149.900

Stad: San Pedro del Pinatar - Mar-Menor

1   1     51 m²   7 m²  

Moderne penthouse in Thiar Village V
Moderne penthouse in Thiar Village V

Project: Residentie Thiar Village V in Pilar de La Horadada

Stad: Pilar de la Horadada - Alicante

3   2     76 m²   86 m²  

Luxe bungalows in Pueblo, San Miguel de Salinas
Luxe bungalows in Pueblo, San Miguel de Salinas

Project: Luxe bungalows Horizon II, San Miguel de Salinas

Stad: Wonen in San Miguel: rust en zon aan zee

3   2     86 m²   11 m²  

Bungalow met privézwembad in RES Alma
Bungalow met privézwembad in RES Alma

Project: Res. Alma Bungalows 4 in Pilar de la Horadada

Stad: Pilar de la Horadada - Alicante

3   2     101 m²   15 m²  

Residentie Las Dunas - Fase 3
Residentie Las Dunas - Fase 3

Project: Residentie Las Dunas fase 3

Stad: San Pedro del Pinatar - Mar-Menor

2   2     84 m²   77 m²  

Grecia III Bungalows in La Finca Golf, Algorfa
Grecia III Bungalows in La Finca Golf, Algorfa

Project: Grecia III Bungalows in La Finca Golf, Algorfa

Stad: Algorfa

3   2     96 m²   99 m²  

Nieuwbouw penthouse met solarium in Costa Blanca
Nieuwbouw penthouse met solarium in Costa Blanca

Project: Investeren in Spanje? SEVEN HOUSES BUNGALOWS IV

Stad: San Pedro del Pinatar - Mar-Menor

3   2     93 m²   96 m²  

nieuwbouw Spanje, Lo Romero Golf, Costa Blanca
nieuwbouw Spanje, Lo Romero Golf, Costa Blanca

Project: VISTA AZUL XXXIV LO ROMERO GOLF

Stad: Pilar de la Horadada - Alicante

Bovenste bungalow met solarium in SAGA Resort
Bovenste bungalow met solarium in SAGA Resort

Project: SAGA Nieuwbouw bungalows in San Miguel de Salinas

Stad: Wonen in San Miguel: rust en zon aan zee

2   2   152 m²   16 m²  

Bovenste bungalow met solarium in Horizon Resort
Bovenste bungalow met solarium in Horizon Resort

Project: Luxe bungalows in San Miguel de Salinas - F2

Stad: Wonen in San Miguel: rust en zon aan zee

2   2   152 m²   16 m²  

Bovenste bungalow met tuin in Alma de Salinas
Bovenste bungalow met tuin in Alma de Salinas

Project: Residentie Alma de Salinas - Fase 2

Stad: San Pedro del Pinatar - Mar-Menor

2   2   70 m²   6 m²  

Bovenste bungalow met solarium in San Javier
Bovenste bungalow met solarium in San Javier

Project: Residentie Villas Don Pedro 4 in San Javier

Stad: San Javier-Murcia-Mar-Menor

2   2   74 m²   17 m²  

Lees mee met onze nieuwste blogs!

Pensioen in Spanje: wat je moet weten
Pensioen in Spanje: wat je moet weten

Droom je van een zorgeloos leven onder de Spaanse zon? Ontdek waarom steeds meer gepensioneerden kiezen voor Spanje. Met een gemiddeld pensioen van €1.500 per maand geniet je hier van rust, comfort en een hoge levenskwaliteit. Betaalbaar wonen, een mild klimaat, uitstekende gezondheidszorg en e...

Martine

Advocaat in Spanje
Advocaat in Spanje

Ontdek waarom een Nederlandstalige advocaat in Spanje niet zomaar handig is, maar essentieel voor jouw gemoedsrust en zekerheid onder de zon.


...

Martine

De levenskwaliteit in Spanje
De levenskwaliteit in Spanje

De levenskwaliteit in Spanje blijft stijgen. Volgens het Spaanse statistiekbureau bereikt het land opnieuw een recordscore dankzij een gezonder, veiliger en evenwichtiger levensritme. Ontdek waarom zoveel mensen kiezen voor een leven onder de zon.

...

Juliette

square-box