Gelijkvloerse villa met zwembad in Los Alcazares

 Project: Residentie Sun Serenity in Los Alcazares

Eigentijdse villa nabij La Serena Golf en stranden

Korte beschrijving:

MODERNE GELIJKVLOERSE VILLA – 2 SLAAPKAMERS – PRIVÉZWEMBAD & SOLARIUM – LOS ALCÁZARES

Ontdek deze nieuwbouwvilla in het charmante Los Alcázares, waar comfort, licht en ruimte centraal staan. Van zodra je het volledig omheinde perceel betreedt, ervaar je de rust en privacy die deze woning typeert. De lichtrijke leefruimte met open keuken vormt het hart van de woning, waar grote raampartijen zorgen voor een naadloze overgang naar het terras en het privézwembad. Binnenin werd gekozen voor een moderne, hoogwaardige afwerking met oog voor detail. De open keuken met kwalitatieve toestellen en strak design sluit perfect aan bij de leefruimte, terwijl de twee slaapkamers en twee badkamers garant staan voor comfort en functionaliteit. Met onder andere ingebouwde kasten en stijlvolle badkamers is deze woning ontworpen om dagelijks genieten vanzelfsprekend te maken. Ook buiten komt deze villa volledig tot haar recht. Met meerdere terrassen en een privézwembad geniet je hier volop van het mediterrane klimaat, vlak bij de Mar Menor en de golfbanen van La Serena Golf. De combinatie van een rustige ligging, moderne architectuur en doordachte voorzieningen maakt dit een plek waar binnen- en buitenleven perfect samenkomen.

U bent nog niet aangemeld!

Na invullen van onderstaande gegevens wordt u aangemeld, indien er nog geen account bestaat kan deze aangemaakt worden!



 Geef ons uw mening...

 Momenteel nog geen reviews voor dit pand.

Uitgebreide beschrijving:

Ontdek samen met Casas Kimpencio deze vrijstaande nieuwbouwvilla met 2 slaapkamers en 2 badkamers.

Wanneer we het ruime perceel betreden worden we direct verwelkomt door de aangelegde buitenruimtes. De woning is volledig omheind voor maximale veiligheid en discretie. Via een elegante toegang met video-intercom en een gemotoriseerde schuifpoort betreden we deze villa.

Als we de woning betreden komen we binnen in de lichtrijke leefruimte waar de woonkamer en de open keuken zich bevinden. Jouw blik wordt als vanzelf naar het uitnodigende privézwembad getrokken dat onmiddellijk zichtbaar is op het terras bij binnenkomst. We zien een lichte, open leefruimte waar wonen, eten en koken naadloos in elkaar overvloeien. Grote raampartijen laten het mediterrane daglicht overvloedig binnenstromen en creëren een directe verbinding met het terras en de tuin. De geavanceerde, gelaagde beglazing garandeert niet alleen optimale isolatie, maar ook een verhoogde veiligheid. Binnen en buiten lopen hier moeiteloos in elkaar over, perfect voor lange, zwoele avonden of gezellige momenten met familie en vrienden.

De moderne keuken vormt het hart van de woning en is uitgerust met kwalitatieve toestellen, waardoor functionaliteit en design hand in hand gaan. Alles is hier ontworpen met oog voor detail en comfort, van de hoogwaardige afwerking enerzijds tot de praktische indeling anderzijds. De keuken is ontworpen volgens de nieuwste trends, met strakke horizontale lijnen en een doordachte indeling, vaak aangevuld met een centraal eiland in hoogwaardige materialen zoals Silestone of gelijkwaardig. De combinatie van satijn gelakte kasten, geïntegreerde toestellen van BOSCH® (oven, microgolf, inductiekookplaat, koelkast en vaatwasser) en een stijlvolle dampkap zorgt voor een perfect samenspel tussen design en functionaliteit. Het aanrecht met inox spoelbak en mengkraan van ROCA® maakt het geheel compleet, terwijl subtiele LED-verlichting het geheel elegant accentueert.

Verder in de woning ontdekken we de slaapkamers, waar rust en sereniteit centraal staan. Deze villa beschikt over een indeling met twee slaapkamers, telkens met ingebouwde kasten en een doordachte inrichting die optimaal gebruik maakt van de ruimtes. De ingebouwde kasten zijn volledig afgewerkt met hoogwaardige materialen, bieden praktische opbergruimte en zijn voorzien van lades, legplanken en hangruimte. 

Naast 2 slaapkamers, zijn er ook 2 badkamers aanwezig. De badkamers zijn stijlvol en modern ingericht met kwalitatieve materialen van ROCA. Je geniet hier van ruime inloopdouches met extra vlakke douchebakken, glazen douchewanden en ingebouwde kranen met een laag waterverbruik. De wastafels zijn geïntegreerd in elegant badkamermeubilair en de afwerking met grootformaat porseleinen tegels en LED-verlichting zorgt voor een serene en hedendaagse uitstraling.

Dus concreet: 

  • 2 slaapkamers 
  • 2 badkamers
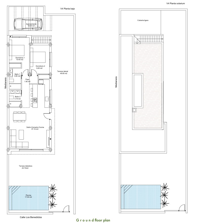
  • Hoofdterras met privézwembad van 17.5 m2
  • Open en lichtrijke leefruimte met zicht op het terras
  • Volledig ingerichte keuken met nodige toestellen 
  • Solarium van 44 m2

Ook op technisch vlak werd aan alles gedacht. Zo is de woning uitgerust met een energiezuinig aerothermisch systeem voor warm water en is er een volledige pre-installatie voorzien voor airconditioning via kanalen in alle ruimtes (behalve de badkamers). De elektriciteitsinstallatie is modern en gebruiksvriendelijk met hoogwaardige schakelaars, tv- en data-aansluitingen in alle belangrijke ruimtes en voorbereid op digitale en breedbandverbindingen. De vloeren zijn afgewerkt met elegante, grootformaat porseleinen tegels die binnen en buiten naadloos in elkaar overlopen, wat het gevoel van ruimte en eenheid versterkt. De terrassen zijn voorzien van een aangepaste antislipafwerking, ideaal voor buitengebruik.

Wanneer we opnieuw naar buiten stappen, ontdekken we het ruime terras. Het terras met zwembad is dé plek is om te ontspannen onder de Spaanse zon, omringd door rust en comfort.

De ruimtes in deze villa zijn allemaal op de gelijkvloerse verdieping, wat bij voorkeur voor een extra comfort kan zorgen. Doch is er op het dak nog een bijkomend solarium voorzien van ongeveer 44 m2.

De buitenruimtes zijn ruim opgevat en bieden tal van mogelijkheden, inclusief voorbereidende voorzieningen voor bijvoorbeeld een elektrische zonwering of zwembadverwarming. De tuin en terrassen zijn voorzien van sfeervolle buitenverlichting en praktische aansluitingen, zodat je hier op elk moment van de dag kunt genieten.

Ook een praktisch pluspunt is het gegeven dat er naast de woning, een parkeergelegenheid is op eigen terrein. Dit is discreet en geïntegreerd in het geheel. 

Technische kenmerken: 

  • Aerothermisch systeem voor warm water
  • Pre-installatie airconditioning
  • Geïntegreerde LED-verlichting
  • Grote raampartijen voor maximale lichtinval
  • Hoogwaardige isolerende beglazing
  • Volledig omheind privéterrein
  • Gemotoriseerde schuifpoort
  • Video-intercomsysteem

Graag willen we ook nog even stilstaan bij hoe uniek deze locatie is. Op wandelafstand bevindt zich de golfbaan, terwijl het levendige centrum van Los Alcázares jou verwelkomt met restaurants, winkels en gezellige cafés. En op slechts 1,5 kilometer liggen de stranden van de Mar Menor, bekend om hun warme, kalme wateren en uitgestrekte promenade.

Aan de oevers van de rustige lagune van de Mar Menor ligt het charmante kuststadje Los Alcázares, een plek waar het Spaanse leven nog authentiek en ontspannen aanvoelt. Hier geen massatoerisme, maar een warme, gastvrije sfeer waarin zon, zee en natuur centraal staan. De brede promenades, palmbomen en gezellige pleinen nodigen uit tot lange wandelingen bij zonsondergang, terwijl de zachte zeebries het hele jaar door voor een aangenaam klimaat zorgt.

In de buurt van de prestigieuze La Serena Golf ontvouwt zich een omgeving die perfect in balans is: enerzijds rust en open ruimte, anderzijds een levendige lokale cultuur. De golfbaan zelf, bekend om zijn vlakke maar technisch uitdagende ontwerp met waterpartijen, trekt zowel beginnende als ervaren golfers aan. Tegelijk bevindt u zich op korte afstand van het centrum, waar tapasbars, boetieks en markten het dagelijkse leven kleur geven. Wat Los Alcázares zo bijzonder maakt, is de unieke ligging aan de Mar Menor. Deze ondiepe binnenzee staat bekend om haar warme, kalme wateren, ideaal om te zwemmen, zeilen of gewoon te ontspannen aan het strand.

Wat minder mensen weten, is dat deze regio een lange geschiedenis heeft als wellnessbestemming. Al sinds de Romeinse tijd werden de mineraalrijke modderbaden van de Mar Menor geroemd om hun heilzame werking voor huid en gewrichten. Vandaag de dag zoeken kenners nog steeds deze natuurlijke “spa” op, ver weg van de grote toeristische centra om in alle discretie te genieten van deze eeuwenoude traditie.

Wat ook weinig mensen weten is dat Los Alcázares een belangrijke rol heeft gespeeld in de vroege Spaanse luchtvaart. Vlakbij ligt de historische militaire basis van San Javier Air Base, waar één van de eerste opleidingsscholen voor piloten in Spanje gevestigd was. Dankzij de stabiele weersomstandigheden en vlakke omgeving was dit een ideale locatie voor trainingsvluchten, een traditie die de regio jarenlang heeft gevormd.

Afstanden: 

  • Strand (Mar Menor): ca. 1,5 km
  • La Serena Golf: ca. 0,5 – 1 km
  • Restaurants & bars (centrum Los Alcázares): ca. 1 – 2 km
  • Supermarkten: ca. 1 – 3 km
  • Región de Murcia International Airport: ca. 35 km
  • Alicante Airport: ca. 90 km
  • Ziekenhuis (bv. Hospital Los Arcos del Mar Menor): ca. 7 km
  • Steden: Cartagena: ca. 25 km of Murcia: ca. 50 km

Visie van Casas Kimpencio: 

Bij Casas Kimpencio ben je niet zomaar iemand, wij willen een persoonlijke relatie aangaan. We behandelen jullie zoals we zelf behandeld willen worden, met de nodige betrokkenheid, precisie en details. Geen enkele vraag is ons te veel, we staan elke dag telefonisch voor jou klaar. Wij hebben de gedachte dat een huis kopen niet zomaar een huis kopen is, maar een nieuwe thuis kopen. Iedereen dient een eigen verhaal te krijgen, met verschillende hoofdstukken.  Wij willen helpen aan het Spaanse hoofdstuk, een hoofdstuk van een nieuwe thuis, vakantiewoning of een investering. En dit doen we met open, duidelijke communicatie en daarmee geraken we er altijd, zo vinden we jouw ideale woning gebaseerd op meerdere gesprekken. We helpen vanaf het begin tot aan de sleuteloverdracht, en ver daarbuiten.

Wij vinden deze woning bijzonder omdat:

  • Gelegen in een rustige en exclusieve zone nabij La Serena Golf, met een perfecte balans tussen privacy, natuur en nabijheid van het levendige centrum van Los Alcázares
  • Moderne villa met meerdere volwaardige slaapkamers, ontworpen met oog voor comfort, rust en functionaliteit (inclusief ingebouwde kasten en optionele dressing)
  • Ruim privéperceel, volledig omheind, met een sterke focus op veiligheid en discretie
  • Aantrekkelijke buitenruimtes met een privézwembad, zonnige terrassen en een solarium om optimaal te genieten van het mediterrane klimaat
  • Naadloze overgang tussen binnen- en buitenleven dankzij grote schuiframen en doorlopende vloeren
  • Hoogwaardige afwerking en materialen, inclusief designkeuken met geïntegreerde toestellen en stijlvolle badkamers
  • Energiezuinige en toekomstgerichte woning met moderne technieken zoals aerothermie en voorbereid airconditioningsysteem
  • Kleinschalig project met slechts acht villa’s, wat zorgt voor een exclusieve woonbeleving en extra rust

Woningen in residentie Sun Serenity:

Type woning Aantal slaapkamers / badkamers Bebouwde oppervlakte Buitenruimte in m2 Prijs
Villa (met 2 verdiepingen) 3/3 115 m2 75 m2 €429.000
Gelijkvloerse villa 2/2 90 m2 104 m2 €439.000
Gelijkvloerse villa 3/2 111 m2 84 m2 €489.000


Groei en trends in Los Alcazares: 

Jaar Prijs per m2 Jaarlijkse stijging
2023 €2.350 -
2024 €2.270 -3.5%
2025 €2.815 +24%



Kenmerken:

Kenmerken van Gelijkvloerse villa met zwembad in Los Alcazares
Aantal slaapkamers 2
Aantal badkamers 2
Privaat zwembad Ja
Oppervlakte perceel rond het huis 225 m²
Bebouwde oppervlakte 90 m²
Bewoonbare oppervlakte 80 m²
Afstand naar het strand 1.5 km
Terras oppervlakte 104 m²
Private Tuin Ja
Poort Ja
Nabij Commercieel centrum Ja
Verwarmd zwembad optioneel
Terras Ja
Fietsafstand van het strand Ja
Douche schermen Ja
Solarium Ja
Solarium oppervlakte in m2 40-50 m²
Pré installatie airco Ja
Led verlichting buiten Ja
Led verlichting binnen Ja
privé parkeerplaats Ja
Telefoon Data aansluiting Ja
Videofonie Ja
Inbouwkasten Ja
Badkamer spiegels Ja
Oriëntatie Zuid
Golfresort afstand in km 0-2 km
Luchthaven Alicante afstand 50+ km
Luchthaven Murcia afstand 30-40 km
Hangend toilet Ja
Hangend badkamer meubel Ja
Uitzicht op het zwembad Ja
Volledig ingerichte keuken Ja
Gepantserde toegangsdeur met veiligheidsslot Ja
Grote ramen van vloer tot plafond Ja
Hoogwaardige afwerking Ja
Kunstgras Ja
Aerothermische boiler Ja
Gelijkvloers met tuin Ja
Energielabel B
Afgewerkte badkamer Ja

Meer info?


Beschikbare documenten

Plan V4.jpg

Document bij Gelijkvloerse villa met zwembad in Los Alcazares

download
Plan 1.webp

Document bij Gelijkvloerse villa met zwembad in Los Alcazares

download
Plan 2.webp

Document bij Gelijkvloerse villa met zwembad in Los Alcazares

download
Plan 1.jpg

Document bij Gelijkvloerse villa met zwembad in Los Alcazares

download

Laat je verrassen, er wacht nog meer op je!

Foto van Gelijkvloerse villa met zwembad in San Javier
Gelijkvloerse villa met zwembad in San Javier

Project: Residentie Olmo - nieuwbouwvilla's in San Javier

Stad: San Javier-Murcia-Mar-Menor

3   1     71 m²   120 m²  

Foto van Villa met onderbouw in La Nucia
Villa met onderbouw in La Nucia

Project: Residentie Vila Natura in La Nucia

Stad: La Nucia

3   3     183 m²   48 m²  

Foto van Villa met zwembad in residentie Mar de Granada
Villa met zwembad in residentie Mar de Granada

Project: Coming soon: Mar de Granada - Pilar de la Horadada

Stad: Pilar de la Horadada - Alicante

3   2    

Foto van VISTAS DE BIGASTRO quad house kopen Bigastro
VISTAS DE BIGASTRO quad house kopen Bigastro

Project: Villas de Bigastro Costa Blanca Zuid met ruimte

Stad: Bigastro

3   2     142 m²   58 m²  

Foto van Nieuwbouw golfvilla Costa Cálida met solarium
Nieuwbouw golfvilla Costa Cálida met solarium

Project: Wonen op de golfbaan: villa in Hacienda del Álamo

Stad: Fuente Álamo de Murcia

2   2     80 m²   50 m²  

Foto van Nieuwbouwvilla Puerto de Mazarrón met solarium
Nieuwbouwvilla Puerto de Mazarrón met solarium

Project: Alondra Villa’s in Puerto de Mazarrón Spanje

Stad: Puerto de Mazarrón

3   2     88 m²   110 m²  

Foto van Instapklare villa met 5 slpk in Los Montesinos
Instapklare villa met 5 slpk in Los Montesinos

Project: Laguna Azul

Stad: Los Montesinos

3   3     116 m²   52 m²  

Foto van Villa kopen Mazarrón Country Club Costa Cálida
Villa kopen Mazarrón Country Club Costa Cálida

Project: LOS COLLADOS DEL COUNTRY Mazarrón Country Club

Stad: Mazarron

3   2     151 m²   94 m²  

Foto van Exclusieve resortvilla aan Costa Cálida
Exclusieve resortvilla aan Costa Cálida

Project: LAKE VIEW VILLAS Santa Rosalía villa kopen

Stad: Santa Rosalia

3   4     217 m²   77 m²  

Foto van Luxe villa met zwembad in Altea Hills
Luxe villa met zwembad in Altea Hills

Project: Luxe villa OASIS 005 met zwembad in Altea Hills

Stad: Altea Hills

4   3     496 m²   289 m²  

Foto van Villa Menorca Santa Rosalía Lake and Life Resort
Villa Menorca Santa Rosalía Lake and Life Resort

Project: Villa Menorca Santa Rosalía Lake and Life Resort

Stad: Santa Rosalia

3   3     229 m²   111 m²  

Foto van Residencial Carmen VI villa kopen San Javier
Residencial Carmen VI villa kopen San Javier

Project: Residencial Carmen VI nieuwbouw villa San Javier

Stad: Santiago de la Ribera

3   3     120 m²   120 m²  

Laat je inspireren door onze laatste blogs

Afbeelding bij AOW en emigreren naar Spanje uitgelegd
AOW en emigreren naar Spanje uitgelegd

Steeds meer Nederlanders verhuizen naar Spanje, maar vergeten dat hun AOW-opbouw kan stoppen bij emigratie.

Elk jaar buiten Nederland zonder vrijwillige verzekering kost later 2% AOW.

Met de juiste voorbereiding en advies kan je echter zorgeloos genieten van wonen onder de Spaanse zo...

Martine

Afbeelding bij Vakantie in Spanje met hond praktische gids 2026
Vakantie in Spanje met hond praktische gids 2026

Een vakantie in Spanje met je hond vraagt goede voorbereiding, maar wordt steeds populairder.

Spanje biedt meer hondvriendelijke stranden, accommodaties en wandelroutes.

Met de juiste documenten, bescherming tegen hitte en goede planning geniet je zorgeloos samen onder de zon.

...

Martine

Afbeelding bij Hoe werkt een vereniging van eigenaars in Spanje?
Hoe werkt een vereniging van eigenaars in Spanje?

Bij aankoop van vastgoed in Spanje krijg je vaak te maken met een comunidad de propietarios.

Deze vereniging beheert onderhoud, kosten en regels van gemeenschappelijke delen en heeft grote invloed op comfort, verhuur en vastgoedwaarde.

...

Martine