Home Lopende projecten Alle Panden Over ons Ons team Ons kantoor Onze werkwijze Contacteer ons Blog Cookies

Geschakelde luxe woning in Mojácar Nature

 Project: MOJACAR NATURE residentie in Mojacar

Solarium en zeezicht op 30 meter van het strand!

Korte beschrijving:

Vivienda 2 is zo’n woning waar je binnenstapt en meteen voelt: dit klopt. Het zachte licht, de open leefruimte, de rustige kleuren… alles ademt sereniteit. En dan weet je nog niet eens dat het strand letterlijk op 30 meter ligt.

Dit is een thuis met charme: drie warme slaapkamers, een leefruimte die naar de tuin toe opent, terrassen waar je dagen eindeloos worden en bovenaan een solarium van 64,87 m² waar je elke avond de hemel ziet verkleuren. Elke hoek is met aandacht ontworpen, elke ruimte straalt dezelfde mediterrane rust uit.

Het is precies het soort woning waar je niet alleen komt wonen, maar waar je je leven écht groter maakt.

U bent nog niet aangemeld!

Na invullen van onderstaande gegevens wordt u aangemeld, indien er nog geen account bestaat kan deze aangemaakt worden!



 Geef ons uw mening...

 Momenteel nog geen reviews voor dit pand.

Uitgebreide beschrijving:

Een warm welkom in jouw nieuwe geschakelde woning aan zee

Een eerste ontmoeting met Vivienda 2

Een geschakelde woning waar rust, licht en mediterrane elegantie samenkomen.

Vivienda 2 in Mojácar Nature is zo’n woning die meteen een bepaald gevoel oproept: ruimte, zachtheid en een soort stille luxe die je niet vaak tegenkomt aan de Spaanse kust. Dit is geen standaard nieuwbouwwoning. Dit is een architectonisch boutique huis dat je verwelkomt met licht, serene kleuren en een natuurlijke flow tussen binnen en buiten.

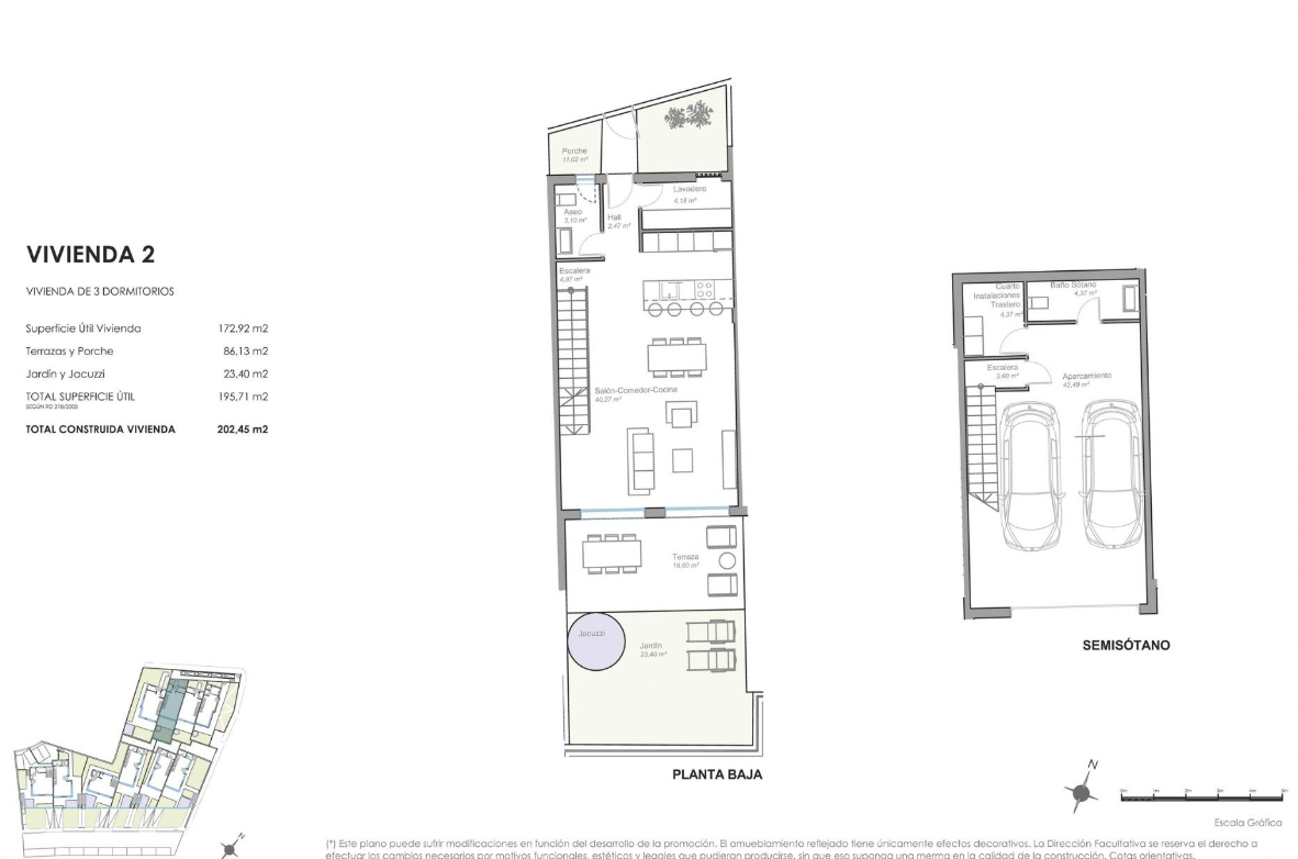
Met een totale bruikbare oppervlakte van 195,71 m² en een totale gebouwde oppervlakte van 202,45 m², verdeeld over drie niveaus, krijg je hier een woning die tegelijk ruim, praktisch en verfijnd is. En daarbovenop geniet je van:

  • 86,13 m² terrassen & porch

  • 23,43 m² tuinzone

  • 64,87 m² solarium

Samen maakt dit van Vivienda 2 een van de meest royale geschakelde woningen op de eerste lijn van Mojácar Playa.

Wat je bij binnenkomst meteen merkt, is de rust. De zachte, neutrale kleuren, de materialen zoals natuursteen, hout en porcellanato, en de grote raampartijen zorgen dat dit huis ademt. Elk detail is ontworpen om licht binnen te laten, warmte te creëren en een thuisgevoel te geven dat je zelden in nieuwbouwprojecten vindt.

Het is geen woning die indruk probeert te maken, ze heeft gewoon indruk.

Je ziet onmiddellijk dat deze woning gemaakt is voor mensen die echt van het leven aan zee willen genieten:

  • de grote leefruimte voor dagelijks comfort

  • de keuken die je volledig naar eigen stijl kan afwerken

  • de slaapkamers die hotelwaardig aanvoelen

  • de badkamers met hoogwaardige materialen

  • de tuin die een verlengde van je living wordt

  • het solarium dat als een privéterras boven de wereld zweeft

En dat alles in een exclusief project van slechts 10 woningen, op 30 meter van het strand.

Vivienda 2 is een combinatie van elegantie, mediterrane eenvoud, licht en ruimte, precies wat zoveel toekomstige bewoners zoeken, maar bijna niemand vindt.


Het gelijkvloers: waar wonen, licht en buitenleven samenkomen

Het gelijkvloers van Vivienda 2 is het hart van de woning. Het is de plek waar je leeft, kookt, ontspant, ontvangt, en waar de mediterrane levensstijl echt voelbaar wordt. Deze verdieping heeft een bijzonder sterke indeling: open, ruim en doordacht, maar tegelijk warm en huiselijk. Alles is ontworpen met één doel: een leefruimte creëren die elke dag comfortabel en inspirerend voelt.

Een royale leefruimte die het huis opent

Wanneer je de woning binnenstapt via de inkomhal, word je onmiddellijk geleid naar de grote open leefruimte. Dit is een van de sterkste troeven van Vivienda 2: een ruime, lichte, vloeiende leefzone die intelligent in elkaar zit.

De leefruimte omvat:

  • een zitgedeelte met directe toegang tot het terras

  • een eetruimte in verbinding met keuken en buitenruimte

  • een open trap naar de slaapverdieping

  • grote raampartijen van vloer tot plafond

Het effect is een ruimte die breed, luchtig en uitnodigend aanvoelt. De visuals tonen zachte rondingen, natuurlijke materialen, warme beige tinten en texturen die meteen rust brengen, precies de vibe die zoveel mensen zoeken aan de Middellandse Zee.

De leefruimte is ontworpen zodat je hier gemakkelijk meerdere zones creëert: een leeshoek, een ruime sofa-opstelling, een TV-muur of zelfs een stille werkplek met uitzicht op de tuin.

En het allerbelangrijkste: dankzij de grote schuiframen vloeit deze leefruimte naadloos over in het terras en de tuin. Dit is één van die woningen waar je ’s ochtends de ramen open schuift en letterlijk het buitenleven binnenhaalt.


De keuken: jouw maatwerkruimte, volledig gepersonaliseerd

De keuken ligt in open verbinding met de eetruimte, maar is slim geplaatst zodat ze niet volledig zichtbaar is vanuit de zitruimte. Hierdoor behoud je zowel openheid als structuur.

Hier krijg je niet zomaar een keuken, je krijgt een compleet interieur- en decoratieproject inbegrepen, met renders en begeleiding, waardoor je de keuken volledig op maat kan laten afwerken.

Je kiest zelf:

  • fronten

  • werkblad

  • kastenindeling

  • verlichting

  • apparatuur

  • kleurenpalet

  • stijlrichting

De plannen tonen:

  • een brede kastenwand

  • een centrale werkzone

  • een eiland of peninsula met zitruimte

  • voldoende ruimte voor geïntegreerde toestellen

Deze combinatie maakt de keuken ideaal voor dagelijks koken, maar ook voor gezellige avonden waarbij vrienden of familie rondom het eiland zitten terwijl jij kookt. Alles is georganiseerd met ergonomie en esthetiek in gedachten.


De eetruimte: licht, uitzicht en mediterrane sfeer

De eetruimte ligt op het perfecte punt van de benedenverdieping: aan de rand van het terras, dicht bij de keuken en open naar de woonkamer. Hierdoor voelt de eetplek nooit afgesloten, maar eerder als een centraal verzamelpunt.

Dankzij de grote ramen heb je:

  • licht vanaf de ochtend tot de late namiddag

  • uitzicht op je eigen tuin

  • een directe link met het mediterrane buitenleven

De ruimte is groot genoeg voor een tafel van 6 tot 8 personen zonder verlies van bewegingsruimte, ideaal voor diners, feestjes of lange zomerlunches.

En in de warmere maanden?
Je schuift de ramen open en je eetruimte wordt in één beweging een half overdekt buitenterras. Dat is precies de charme van deze woning: binnen en buiten zijn nooit echte tegenpolen, maar één doorlopend verhaal.


De tuin & het terras: jouw eerste buitenruimte

Aansluitend op de woonkamer vind je de eerste buitenzone: een terras dat overloopt in een privé tuin van 23,43 m². Deze ruimte is perfect om te loungen, te brunchen, te zonnen of gewoon even stil te zijn.

De materialen volgens de technische fiche:

  • antislip porseleinen tegels

  • natuursteen accenten

  • kunstgras of inheemse beplanting afhankelijk van de zone

  • hoogwaardige balustrades en buitenschermen

Het terras maakt deel uit van de 86,13 m² totale buitenruimte die bij deze woning hoort, een uitzonderlijke oppervlakte voor een geschakelde woning aan de eerste lijn.

Je kan hier gerust:

  • een eettafel zetten

  • een loungehoek maken

  • potten met mediterrane planten plaatsen

  • een kleine buitenkeuken integreren

  • een ontspanningshoek creëren met ligstoelen

De tuin voelt intiem, maar niet opgesloten. Door de lichte helling van het project heb je privacy zonder je uitzicht te verliezen.


Het gastentoilet & praktische ruimtes

Op de benedenverdieping vind je ook een elegant gastentoilet, volledig afgewerkt met:

  • hoogwaardige porseleinen tegels

  • moderne wastafel

  • premium kraanwerk

  • subtiele en zachte verlichting

Er zijn ook discreet ingewerkte bergruimtes, absoluut noodzakelijk in een woning waar je het hele jaar door of lange periodes wil verblijven. Deze zones zijn ideaal voor opbergdozen, poetsspullen, drankvoorraden of strandmateriaal.


Een gelijkvloers dat leeft zoals jij leeft

Het gelijkvloers van Vivienda 2 is ontworpen voor mensen die van ruimte houden, maar vooral van mooie ruimte. Van licht, openheid en rust. Niets voelt hier chaotisch of druk. Alles is gebouwd met dat ene mediterrane doel: leven op je gemak, met stijl, met comfort, met vrijheid.

Elke dag begint hier met licht.
Elke avond eindigt hier met de buitenlucht binnen handbereik.
En elke keer dat je hier binnenwandelt, voelt het als thuiskomen.


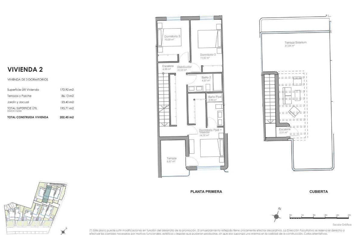
De slaapverdieping: drie kamers, twee badkamers en pure sereniteit

Een verdieping waar elke kamer voelt als een rustige mediterrane suite

De eerste verdieping van Vivienda 2 is volledig gewijd aan rust, privacy en comfort. Dit is de plek waar je je terugtrekt na een lange zonnige dag, waar je ontwaakt met licht en stilte, en waar elke ruimte ontworpen is om je te omringen met zachtheid, lucht en een gevoel van geborgenheid.

In tegenstelling tot veel klassieke geschakelde woningen is deze verdieping royaler en slimmer ingedeeld. Niets voelt gehaast of benauwd. Alle kamers hebben licht, lucht en mooie verhoudingen. Hier krijg je het gevoel van een boutiquehotel, maar dan volledig privé.

De indeling bestaat uit:

  • Master bedroom met en-suite badkamer

  • Twee gastenslaapkamers, beide met ingebouwde kasten

  • Tweede volledige badkamer

  • Circulatiezone met natuurlijke lichtinval

  • Privéterras van 6,67 m² (aan master bedroom)

Laten we kamer per kamer ingaan op de details.


Het solarium: 64,87 m² pure mediterrane vrijheid

Het solarium van Vivienda 2 is één van de absolute hoogtepunten van deze woning. Met 64,87 m² aan volledig privé dakterras krijg je een buitenruimte die aanvoelt als een extra verdieping onder de open lucht. Zodra je boven komt, merk je meteen hoe licht en ruimte hier de hoofdrol spelen. Het uitzicht opent zich rondom je, de lucht voelt zachter, en de stilte van Mojácar Nature krijgt hier een bijna magische kwaliteit.

Dankzij de royale oppervlakte kan je het solarium in verschillende zones indelen: een loungehoek voor lange middagen, een ruime eetplek voor warme avonden, ligzetels voor de zon, of een chill-out corner waar je even ontsnapt aan alles. De aansluitingen voor een optionele jacuzzi zijn al voorzien, waardoor je het dakterras ook kan omtoveren tot een private wellnessruimte onder de sterren.

De afwerking is volledig ontworpen voor het mediterrane klimaat: lichte antislip porseleinen tegels die koel blijven aan de voeten, duurzame balustrades die privacy combineren met open zichtlijnen, en voorbereidingen voor verlichting en buitenkeuken. Dit is een plek waar je ’s ochtends rustig ontbijt, waar de namiddagzon je huid warm maakt, en waar de avonden gevuld zijn met de geur van zee en zachte wind.

Het solarium wordt zo niet alleen een extra buitenruimte, maar één van de meest geliefde plekken van de hele woning, een plek waar je echt voelt waarom je hier woont.


De onderbouw & garage: ruimte, comfort en mogelijkheden

De onderbouw van Vivienda 2 is een van die ruimtes die je misschien niet meteen ziet op foto, maar die in het dagelijks leven een enorme meerwaarde vormt. Hier vind je niet zomaar een technische kelder, maar een volledig geïntegreerde, royale semisouterrainverdieping die rechtstreeks verbinding maakt met jouw woning. Het is de plek waar comfort, veiligheid en flexibiliteit samenkomen, precies wat een moderne woning aan zee nodig heeft.

Wanneer je de garage binnenrijdt, merk je meteen hoe ruim en praktisch deze verdieping is opgevat. De dubbele garage biedt moeiteloos plaats aan twee wagens, met daarnaast nog voldoende ruimte voor fietsen, surfboards, paddleboards, strandtassen, koffers of sportmateriaal. Dankzij de brede indeling manoeuvreer je hier makkelijk, zonder dat het krap aanvoelt, zelfs niet bij grote voertuigen.

Maar deze verdieping is meer dan opslag. De ruimte is zo ontworpen dat je er veel meer mee kan doen dan enkel parkeren. De structuur, de afmetingen en de voorbereiding maken het mogelijk om hier een extra functie aan te geven. Denk aan een kleine werkhoek voor telewerk, een plaats voor fitnessmateriaal, een rek voor wijnopslag, of simpelweg een georganiseerde bergruimte die ervoor zorgt dat de rest van je woning altijd rustig en minimalistisch aanvoelt.

De afwerking volgt dezelfde kwaliteitsstandaard als de rest van de woning: goede ventilatie, duurzame materialen en een slimme indeling die ervoor zorgt dat deze verdieping netjes, droog en praktisch blijft. Hier bewaar je alles wat je niet dagelijks nodig hebt maar wel binnen handbereik wil hebben. En dat maakt het verschil in wooncomfort. 

De interne trap verbindt deze onderbouw direct met het woongedeelte boven. Je hoeft dus nooit buitenom of via een gemeenschappelijke garage te gaan. Alles voelt privé, veilig en logisch, een grote troef voor wie hier het hele jaar door wil wonen of langere periodes verblijft. Het zorgt ervoor dat dit huis aanvoelt als een volwaardige villa, zelfs in geschakelde vorm.

De onderbouw van Vivienda 2 is daardoor niet alleen een functioneel fundament, maar een extra laag van mogelijkheden. Het is de ruimte die je leven makkelijker maakt, je woning georganiseerder houdt, en je de vrijheid geeft om alles te bewaren wat jouw mediterrane leefstijl compleet maakt.


Materialen & afwerking: kwaliteit die je elke dag voelt

Porseleinen vloeren van topkwaliteit
Grote gres porcellánico tegels in zachte zand- en aardetinten zorgen voor een warme, rustige uitstraling doorheen de hele woning. Duurzaam, onderhoudsvriendelijk en perfect voor het mediterrane klimaat.

Antislip buitentegels op terrassen en solarium
Lichte, kleurvaste buitentegels die koel blijven en binnen en buiten visueel één geheel maken.

Hoogrendementsramen in aluminium
Vloer-tot-plafond glaspartijen met thermische en akoestische isolatie. Maximale lichtinval, uitstekende stilte, en een helder, luchtig karakter.

Semi-massieve binnendeuren in moderne stijl
Strakke lijnen en kwalitatieve afwerking die elke kamer een luxueuze, tijdloze look geven.

Keuken volledig personaliseerbaar
Dankzij het inbegrepen interieur- en decoratieproject kies je zelf fronten, werkblad, kleuren, indeling en verlichting. Een keuken die jouw exacte stijl volgt.

Badkamers met boutique uitstraling
Inloopdouches met glaswand, grote tegels, premium kranen, elegante wastafelmeubels en zachte indirecte verlichting.

Aerothermisch klimaatsysteem (A+)
Energiezuinig, stil en comfortabel in elk seizoen. Moderne warmte- en koeltechnologie die de woning duurzaam maakt.

Uitstekende isolatie en ventilatie
Goede warmte- en geluidsisolatie, moderne ventilatie en efficiënte energieopbouw doorheen het hele huis.

Pre-installatie voor domotica
Voorbereid voor slimme verlichting, klimaatregeling en andere smart home toepassingen.

Mediterrane gevelafwerking
Combinatie van wit stucwerk, natuursteen en subtiele houtaccenten: een zachte, elegante look die perfect past in de omgeving van Mojácar.


De woning binnen het project Mojácar Nature

Vivienda 2 maakt deel uit van Mojácar Nature, een exclusief boutiqueproject van slechts 10 woningen aan één van de mooiste kuststroken van Mojácar. Het project is ontworpen met een diepe eerbied voor de omgeving: zachte mediterrane lijnen, natuursteen, houtaccenten en een lichte architectuur die perfect opgaat in het landschap van La Mena.

De sfeer van het project is rustig, elegant en volwassen: geen massabouw, geen drukke urbanisatie, maar een kleinschalige enclave van kwaliteitswoningen op amper 30 meter van het strand. De ontwikkeling is bewust opgebouwd in verschillende niveaus, waardoor elke woning privacy én licht behoudt, en de hogere units zoals Vivienda 2 uitzonderlijke buitenruimtes krijgen, inclusief een volledig privé solarium.

Alle woningen delen dezelfde premium kenmerken:

  • A+ energieprestatie

  • aerothermie

  • grote glaspartijen & mediterrane lichtinval

  • designer buitenruimtes

  • harmonie tussen natuur, architectuur en zee

Met een mix van geschakelde woningen met solarium en halfvrijstaande villa’s met zwembad voelt dit project aan als een boutique resort, maar dan volledig residentieel en uiterst sereen.

Binnen dit geheel heeft Vivienda 2 een bevoorrechte positie: royale binnenruimtes, meer buitenoppervlakte dan de meeste units, een schitterend solarium, en de perfecte balans tussen privacy en openheid. Het maakt deze woning tot één van de meest aantrekkelijke keuzes binnen een project dat nu al als zeldzaam wordt beschouwd in Mojácar.


La Mena in Mojácar: een plek waar de kust nog puur aanvoelt

Er bestaan kustplaatsen die zich in de loop der jaren hebben laten vormen door toerisme, drukte en snelle groei. En er bestaan plaatsen die zich precies andersom ontwikkelen: ze worden mooier met de tijd, authentieker, verfijnder, en blijven trouw aan hun natuurlijke charme.
La Mena in Mojácar hoort resoluut bij die tweede categorie.

Wie hier woont, merkt het meteen: er hangt een andere energie.
Een zachtere.
Een elegantere.
Een die moeilijk te beschrijven is, tenzij je er geweest bent.

De kustlijn van La Mena: de kleur van het zuiden

De locatie van Mojácar Nature bevindt zich letterlijk op de eerste lijn, op slechts 30 meter van het strand. Maar niet zomaar een strand. Dit is een kuststrook die het DNA van Mojácar perfect belichaamt: rustige golven, fijn goudkleurig zand, rotsformaties die het uitzicht karakter geven, en een zee die zo helder is dat je de lijnen van de zeebodem kan volgen.

De Paseo del Mediterráneo verbindt het project met de rest van Mojácar Playa.
Een prachtige, brede kustpromenade waar je ’s ochtends wandelt, ’s middags flaneert en ’s avonds dineert met zicht op de horizon. Maar ondanks de nabijheid van alles, heerst er hier een soort stille luxe. Het is geen druk toeristisch punt. Je voelt vooral rust en openheid.

Alles dichtbij, maar nooit overweldigend

Binnen een straal van enkele honderden meters vind je fijne strandbars waar locals en vaste bezoekers elkaar kennen. Restaurants die heerlijke vis serveren, loungespots met zachte muziek, beachclubs waar je hele middagen kan blijven hangen zonder dat het luid of chaotisch wordt.

Je zit bovendien op amper 3 kilometer van Mojácar Playa en de Parador van Mojácar, een landmark in de regio, omringd door groene zones, sportfaciliteiten en stijlvolle terrassen.

Dat betekent dat je alles binnen handbereik hebt:

  • gezellige winkels en boetieks

  • supermarkten

  • restaurants en tapasbars

  • sportclubs

  • apotheken en medische voorzieningen

  • strandclubs met ligbedden en service aan zee

Maar zodra je terug wandelt naar Mojácar Nature, valt de rust als een deken rondom je heen. Dat is het grote verschil met veel kustplaatsen in Spanje: je woont hier in de luwte, maar nooit in de leegte.

Een regio vol cultuur, geschiedenis en karakter

Mojácar zelf is een van de meest schilderachtige dorpen van Andalusië. Het ligt bovenop een heuvel, met witte huisjes die zich vastklampen aan de rotswand, smalle straatjes vol pergola’s en uitzichtpunten die je de adem benemen.
’s Avonds kleurt het dorp warm oranje en blauw. De terrassen lopen vol, de lucht ruikt naar tijm, wijn en zee. Het is het soort plek waar je telkens weer naartoe wil, zelfs als je er al tientallen keren bent geweest.

De regio is rijk aan geschiedenis: Moorse invloeden, oude wachttorens langs de kust, traditionele feesten en een lokale cultuur die bewust gekoesterd wordt. Je woont hier in een modern project, maar omringd door een omgeving waar traditie nog écht leeft.

Natuur die je elke dag uitnodigt

De natuur rondom Mojácar is ruig, zonovergoten en divers. Rijd je tien minuten landinwaarts, dan verandert het landschap in zachte heuvels, amandelgaarden en oude muurtjes. Ga je richting kust, dan vind je kleine baaien, rotsplateaus en uitzichtpunten die bijna surrealistisch lijken.

Voor wie houdt van wandelen, fietsen of kleine roadtrips, is dit gebied een paradijs.
En dan hebben we Cabo de Gata nog niet genoemd, het natuurpark dat wereldwijd bekend staat om zijn ongerepte stranden, vulkanische rotsformaties en turquoise water. Van Mojácar tot Cabo de Gata is het één van de mooiste ritten van Almería.

Vlot bereikbaar, hoe je ook reist

Hoewel Mojácar een serene, intieme sfeer heeft, is het verrassend goed bereikbaar:

  • Luchthaven Almería: ongeveer 50 minuten

  • Luchthaven Murcia (Corvera): ongeveer 1u25

  • Luchthaven Alicante: ongeveer 1u50

Grote wegen, rustige routes en mooie landschappen maken elke rit aangenaam. Voor wie pendelt tussen Noord-Europa en Spanje is dit een locatie die perfect werkt: niet te ver, niet te druk en altijd bereikbaar.

Een locatie die je leven verandert

Veel mensen komen naar Mojácar om uit te rusten.
Maar ze blijven er omdat ze beseffen dat dit een plek is waar ze elke dag beter leven.
Meer zon.
Meer licht.
Meer natuur.
Meer rust.
Meer ruimte om jezelf te zijn.

Mojácar Nature past perfect in dat verhaal.
Wonen op deze plek betekent leven op een van de meest geliefde kuststroken van Almería, maar dan in een setting die heel bewust klein, luxe en kwalitatief is gehouden.

Hier ben je niet zomaar aan zee.
je bént onderdeel van de kust, het licht en het ritme van de Middellandse Zee.


Een thuis voor mensen die niet alleen aan zee willen wonen, maar er willen léven

Niet elke woning is voor iedereen. En dat is precies wat Mojácar Nature zo bijzonder maakt. Deze plek trekt een zeer specifiek type koper aan, iemand die niet op zoek is naar zomaar een nieuwbouw aan de kust, maar naar een woning die iets in hem of haar raakt.
Een plek die klopt.
Een plek met ziel, met rust, met ritme.

Voor levensgenieters die eenvoud verkiezen boven drukte

Mojácar Nature is perfect voor wie de luxe van rust waardeert. Voor mensen die liever een zachte ochtendwandeling maken op het strand dan in een overvolle boulevard terechtkomen. Voor koppels die willen thuiskomen in stilte, in licht, in zachtheid.

Dit project is geen vakantiepark, geen toeristische hot spot, geen massacomplex.
Het is kleinschalig, elegant en bewust ontworpen voor wie geen compromis wil tussen schoonheid en sereniteit.

Voor mensen die wakker willen worden met zeezicht élke dag

Je koopt hier niet alleen een woning, je koopt een beleving.
De zee wordt een deel van je dagelijkse leven:
het uitzicht vanuit je leefruimte, het licht dat door je woning glijdt, het geluid van golven dat ’s avonds rust brengt.

Wie dit eenmaal heeft, wil nooit meer anders.

Voor mensen die een tweede verblijf willen dat écht voelt als thuis

Sommige tweede verblijven voelen afstandelijk.
Hier is dat onmogelijk.

De warme materialen, de tuinen, de terrassen, de zachte architectuur… alles voelt gemaakt om in te leven, niet alleen om af en toe te gebruiken. Het is een plek waar je na een drukke periode opnieuw kan opladen, herademen, jezelf terugvinden.

Voor gezinnen die ruimte, comfort en veiligheid willen

Met drie slaapkamers, royale leefruimtes, private terrassen, tuinen en een ondergrondse garage voor twee wagens is Mojácar Nature ook ideaal voor gezinnen.
Kinderen lopen hier veilig binnen en buiten, spelen op het strand, fietsen op de Paseo… en groeien op in een omgeving die gezond, zonnig en vrij voelt.

Voor investeerders die op zoek zijn naar duurzame waarde

In eerste-lijns projecten van deze kwaliteit zit altijd toekomstwaarde.
Je koopt hier niet alleen een woning, maar ook een locatie die zeldzaam is, een energieprestatie die vooruit loopt op de markt, en een ontwerp dat tijdloos is.

Het is een investering die meegroeit met de vraag naar kwalitatief, duurzaam en rustig kustleven.

Voor mensen die bewust, duurzaam en comfortabel willen wonen

De energieprestatie A+, de aerothermie, de inheemse beplanting, het slimme lichtgebruik… dit is wonen voor mensen die geloven dat comfort en duurzaamheid perfect samen kunnen gaan.

Je voelt het in alles:
dit is een project dat respect heeft voor zijn omgeving én voor jou.

Voor wie verlangt naar een leven met meer licht, meer lucht, meer momentjes

Mojácar Nature is voor mensen die verlangen naar:

  • ochtendkoffie op een terras waar de zon net opkomt

  • avonden op een solarium met zicht op de sterren

  • zomerdagen die vanzelf langer lijken

  • weekends die naar zout, tijm en vrijheid ruiken

  • rust, schoonheid en een thuis dat klopt

Het is voor wie een woning wil die niet alleen functioneel is, maar je leven mooier maakt. Een plek die je écht voelt.


Waarom wij bij Casas kimpencio Mojácar nature aanbevelen:

Exclusief boutiqueproject met slechts 10 luxe woningen, perfect voor wie rust, privacy en kwaliteit zoekt.

Eerstelijns zeezicht op 30 meter van het strand van La Mena, een zeldzame locatie met directe toegang tot zand en zee.

Keuze uit geschakelde woningen met solarium of halfvrijstaande villa’s met privézwembad, elk ontworpen voor een andere levensstijl.

Mediterrane architectuur met natuursteen, hout en zachte lijnen, volledig geïntegreerd in het kustlandschap.

Royale leefruimte met grote glaspartijen en een naadloze overgang naar terrassen en tuin.

Drie stijlvolle slaapkamers en drie moderne badkamers met inloopdouches en verfijnde materialen.

Keuken volgens jouw smaak, dankzij het inbegrepen decoratieproject, volledig personaliseerbaar.

Ruime terrassen, tuinen en zonnige dakterrassen, ideaal voor ontbijt, loungen of avonden onder de sterren.

Energieprestatie A+, hoogwaardige isolatie, slim lichtgebruik en duurzame materialen.

Volledig geïnstalleerde aerothermische klimaatregeling, stil, efficiënt en uiterst comfortabel.

Ondergrondse garage voor twee wagens en extra ruimte voor opslag of hobby’s.

Inheemse tuinarchitectuur die weinig onderhoud vraagt en perfect past bij de mediterrane omgeving.

Rustige én centrale ligging: strandclubs, restaurants en Mojácar Playa (3 km) binnen handbereik.

Uitstekende bereikbaarheid via Almería, Murcia en Alicante Airport.

Een unieke lifestyle aan de Costa de Almería, waar natuur, zeezicht en kwaliteit elke dag samenkomen.


Onze visie bij Casas Kimpencio

  • Bij Casas Kimpencio ben je niet zomaar iemand, wij willen een persoonlijke relatie aangaan.
  • We behandelen jullie zoals we zelf behandeld willen worden, met de nodige betrokkenheid, precisie en details.
  • Geen enkele vraag is ons te veel, we staan elke dag telefonisch voor jou klaar.
  • Wij hebben de gedachte dat een huis kopen niet zomaar een huis kopen is, maar een nieuwe thuis kopen.
  • Iedereen dient een eigen verhaal te krijgen, met verschillende hoofdstukken. 
  • Wij willen helpen aan het Spaanse hoofdstuk, een hoofdstuk van een nieuwe thuis, vakantiewoning of een investering.
  • En dit doen we met open, duidelijke communicatie  en daarmee geraken we er altijd, zo vinden we jouw ideale woning gebaseerd op meerdere gesprekken.
  • We helpen vanaf het begin tot aan de sleuteloverdracht, en ver daarbuiten. 


Investeren in Mojácar Nature: De nieuwe boutique toplocatie van de costa de Almería

Mojácar Nature ligt in La Mena, één van de meest geliefde en stabielste kustzones van de hele Costa de Almería. Dit gebied staat bekend om zijn onwaarschijnlijk mooie kustlijn, zijn rustige, volwassen woonomgeving en een vastgoedmarkt die de laatste jaren opvallend sterk groeit. Hier vind je geen overbebouwde stroken of experimentele urbanisaties, maar een verfijnde, perfect onderhouden en internationaal geliefde woonregio waar het hele jaar door vraag is naar kwaliteitsvolle nieuwbouw.

Het grootste voordeel?
De kust van Mojácar, zeker de zone La Mena, is bijna volledig ontwikkeld. Nieuwe percelen, laat staan eerstelijns gronden, komen bijna nooit meer op de markt. De schaarste is enorm. En precies daarom zijn projecten zoals Mojácar Nature zó interessant: 10 exclusieve woningen aan de eerste lijn, op 30 meter van het strand, met uitzicht, privacy en een stijl die perfect aansluit bij wat de moderne internationale koper zoekt.

Dit is geen gebied in opkomst. Dit is een gebied dat zich al bewezen heeft.
De mix van strand, restaurants, golf, natuur, welzijn, internationale gemeenschap en uitstekende bereikbaarheid (drie luchthavens binnen 2 uur) zorgt ervoor dat zowel residenten als tweede-verblijvers heel bewust voor Mojácar kiezen.

De markt groeit hier niet impulsief, maar constant en stabiel, precies omwille van die unieke combinatie van rust, levenskwaliteit en schaarste. En dat maakt Mojácar Nature één van de meest zekere investeringskansen in de regio.


Waarom Mojácar Nature een uitzonderlijk investeringsproject is

Mojácar Nature biedt exact die elementen die vastgoed waardevol én waardevast maken, vandaag én over tien jaar.

1. Een eerstelijns locatie die bijna niet meer bestaat

30 meter van het strand, direct aan de Paseo del Mediterráneo, met onbelemmerd uitzicht en een volwassen, rustige kustsfeer.
Dergelijke posities zijn schaars, vast in waarde en altijd aantrekkelijk voor kopers én huurders.

2. Kleinschaligheid verhoogt exclusiviteit

Slechts 10 woningen, volledig boutique, met een luxueuze uitstraling en een doelgroep die bereid is meer te betalen voor privacy, design en rust.
Schaarste = sterke waardestijging.

3. Moderne architectuur sluit perfect aan bij internationale vraag

Geschakelde woningen met solarium, optionele jacuzzi en zeezicht.
Halfvrijstaande villa’s met privézwembad.
Mediterrane warme lijnen, natural materials, grote glaspartijen.
Dit is exact het type woning dat de hedendaagse koper zoekt.

4. Energie-efficiëntie en duurzaamheid

Energieprestatie A+, aerothermische klimaatregeling, hoogwaardige isolatie, inheemse beplanting, doordacht lichtgebruik.
Dit verhoogt niet alleen het comfort, maar ook de toekomstige waarde én de verhuurcapaciteit.

5. Grote vraag, klein aanbod

De vraag naar luxe nieuwbouw aan de Costa de Almería stijgt explosief, vooral in eerstelijns projecten.
Maar de zone La Mena laat amper nieuwe bouwgrond toe.
De markt beweegt in één richting: omhoog.

6. Hoog rendementspotentieel

Mojácar kent een zeer sterke markt voor:

  • overwinteraars

  • lifestyle-kopers

  • golfliefhebbers (met Marina de la Torre op enkele minuten)

  • internationale huurders die eerstelijn zoeken

  • gezinnen die rust én strand willen

De combinatie van zeezicht, luxe en privacy creëert hogere verhuurprijzen én een langere verhuurseizoen.

7. Een woning die alle ‘must-haves’ van 2025–2030 bezit

Mojácar Nature biedt:

  • luxe architectuur

  • grote terrassen

  • privétuin

  • solarium of zwembad

  • 3 slaapkamers, 3 badkamers

  • energiezuil (A+ & aerothermie)

  • gepersonaliseerde keuken

  • ondergrondse garage voor 2 wagens

  • premium locatie

Dit zijn precies de elementen die de internationale markt voortaan verwacht en waar de herverkoopwaarde het sterkst op stijgt.


Prijsontwikkeling Mojácar – La Mena (indicatief marktbeeld)

Jaar
Gemiddelde prijs per m²
Jaarlijkse stijging
2023
€1.850

2024
€1.960
+5,9 %
2025
€2.080
+6,1 %

Opmerking: Eerstelijns nieuwbouwprojecten zoals Mojácar Nature zitten ruim boven dit gemiddelde, en dat is precies waarom ze zulke sterke waardedragers zijn.


Waarom dit project zo’n slimme keuze is

• Boutiqueproject van slechts 10 woningen, extreem schaars op deze toplocatie.
• Eerstelijns zeezicht op 30 meter van het strand, gegarandeerde waardeverhogende factor.
• Sterke internationale vraag naar moderne, energiezuinige designwoningen aan zee.
• Perfecte combinatie van luxe, rust en mediterrane levenskwaliteit.
• Hoogwaardige bouw met A+ energieprestatie en aerothermie.
• Privézwembad (villa’s) of solarium + jacuzzi-optie (geschakelde woningen).
• Ondergrondse garage voor 2 wagens, zeldzaam in eerstelijns projecten.
• Strategische ligging vlak bij stranden, horeca, winkels, sport en drie luchthavens.
• Uitstekend verhuurpotentieel door uitzicht, luxe en ligging.
• Een veilige, elegante en volwassen woonomgeving met stabiele vraag.
• Schaarste aan nieuwe percelen maakt dit project extra waardevast.

Mojácar Nature spreekt kopers aan die zoeken naar rust, licht, uitzicht en kwaliteit, maar even sterk investeerders die mikken op zekerheid, lage risico’s en een vastgoedmarkt die jaar na jaar aantrekt.


Mojácar Nature moet je voelen en dat tonen wij je graag

Bij Casas Kimpencio begeleiden we je niet enkel tijdens het bezoek aan de woning, maar door de hele kustlijn van Mojácar, het dorpje boven op de heuvel, de strandclubs, de wandelroutes, de restaurants, de sfeer en het dagelijkse leven dat deze plek zo uniek maakt.

We tonen je hoe het echt voelt om hier te wonen , niet alleen hoe het eruitziet.

Jouw nieuwe leven aan de Costa de Almería kan hier beginnen.
En wij lopen met je mee, tot de sleutel in je hand ligt.


Kenmerken:

Aantal slaapkamers 3
Aantal badkamers 3
Privaat zwembad Optioneel
Gedeeld zwembad Nee
Terras Ja
Bebouwde oppervlakte 172 m²
Oppervlakte perceel rond het huis 34 m²
Bewoonbare oppervlakte 160 m²
Fietsafstand van het strand Ja
Terras oppervlakte 75 m²
Vloerverwarming badkamer Nee
Douche schermen Ja
Jaccuzi Optioneel
Afstand naar het strand 0,3 km
Nabij bushalte Ja
Solarium Ja
Solarium oppervlakte in m2 50-60 m²
Volledige airco installatie Ja
Elektrische rolluiken Ja
Led verlichting buiten Ja
Led verlichting binnen Ja
Zeezicht Ja
privé parkeerplaats Ja
Ondergrondse parking Ja
Garage Ja
Telefoon Data aansluiting Ja
Videofonie Ja
Inbouwkasten Ja
Aero thermische warmtepomp Ja
Poort Ja
Elektrische poort Ja
Badkamer spiegels Ja
Alle keuken apparatuur volledig inbegrepen Ja
Buitenkeuken Optioneel
Kookplaat Dampkap Magnetron & Oven Ja
Nabij kinder speeltuin Ja
Nabij Scholen Ja
Berging Ja
Kelder Ja
Private Tuin Ja
Uitzicht tuin Ja
Oriëntatie Zuid-oost
Golfresort afstand in km 5-10 km
Ziekenhuis afstand in km 30+ km
Nabij Commercieel centrum Ja
Luchthaven Alicante afstand 50+ km
Luchthaven Murcia afstand 50+ km
Ontspanning ruimte buiten Ja
Ontspanning ruimte binnen Ja
Hangend toilet Ja
Hangend badkamer meubel Ja
Security glas met uv filter Ja
Volledig ingerichte keuken Ja
Dampkap Ja
Gepantserde toegangsdeur met veiligheidsslot Ja
Grote ramen van vloer tot plafond Ja
Hoogwaardige afwerking Ja
Goede prijs-kwaliteit verhouding Ja
Aerothermische boiler Ja
Hoge plafonds Ja
Meubelpakket Optioneel
Luxe nieuwbouw Ja
Aangelegde tuin met grind, gras en planten. Ja
Goed gebied voor rentabiliteit van huur Ja
Wandelafstand van het strand Ja
Geschakelde woning Ja
Dubbele garage Ja
Extra verdieping ondergronds (basement) Ja
Fietsberging Ja
Energielabel B
Afgewerkte badkamer Ja

Meer info?


Beschikbare documenten

plan vivenda 2 gelijkvloers en kelder.png

document-plan vivenda 2 gelijkvloers en kelder.png

download
plan vivenda 2.png

document-plan vivenda 2.png

download

Benieuwd naar meer? Ontdek onze nieuwste parels!

DUNAS DE VERA appartement kopen Vera Playa
DUNAS DE VERA appartement kopen Vera Playa

Project: Toeristisch appartement met privéstrand Vera

Stad: Vera- regio Costa Almeria Andalusië

2   1     55 m²   29 m²  

Ruim toeristisch appartement in Vera Playa
Ruim toeristisch appartement in Vera Playa

Project: Toeristisch vastgoed Spanje investering Vera Playa

Stad: Vera- regio Costa Almeria Andalusië

3   2     93 m²   12 m²  

Penthouse Galena met 2 slaapkamers in Herrerias
Penthouse Galena met 2 slaapkamers in Herrerias

Project: Residentie Galena woningen met zwembad in Almería

Stad: Cuevas Del Almanzora

2   2     84 m²   32 m²  

Luxe nieuwbouwvilla met terras en tuin
Luxe nieuwbouwvilla met terras en tuin

Project: Moderne villa's op slechts 800m van het strand

Stad: San Juan de los Terreros

2   2     105 m²   79 m²  

Vivienda 7 – Mediterrane villa Mojácar Nature
Vivienda 7 – Mediterrane villa Mojácar Nature

Project: MOJACAR NATURE residentie in Mojacar

Stad: Mojacar

3   3     176 m²    

Villa El Paso 2 - villa op golfresort
Villa El Paso 2 - villa op golfresort

Project: Villa's op Golfresort Desert Spring Resort

Stad: Cuevas Del Almanzora

4   3     141 m²   52 m²  

Penthouse met 3 slaapkamers, Vera Playa
Penthouse met 3 slaapkamers, Vera Playa

Project: Levansur Home Eight - bungalows in Vera Playa

Stad: Vera- regio Costa Almeria Andalusië

3   2   95 m²   14 m²  

Vrijstaande villa met zwembad en solarium in Vera
Vrijstaande villa met zwembad en solarium in Vera

Project: Residentie Aura, mediterraanse villa's in Vera

Stad: Vera- regio Costa Almeria Andalusië

3   2     98 m²   64 m²  

Unieke villa op eerstelijn van het strand
Unieke villa op eerstelijn van het strand

Project: Residentie Maren: eerstelijn villa's in Almeria

Stad: Cuevas Del Almanzora

4   3     217 m²   83 m²  

Gelijkvloers appartement met tuin in Almerimar
Gelijkvloers appartement met tuin in Almerimar

Project: Residentie Houseas - eerstelijn zee in Almerimar

Stad: Almerimar

4   2   156 m²   49 m²  

Villa met dubbele garage én solarium
Villa met dubbele garage én solarium

Project: Residentie El Yado in Mar de Pulpi

Stad: San Juan de los Terreros

3   3   253 m²   126 m²  

Levansur Home Eight - Villa met 3 slaapkamers
Levansur Home Eight - Villa met 3 slaapkamers

Project: Levansur Home Eight - villa's in Vera Playa

Stad: Vera- regio Costa Almeria Andalusië

3   2     98 m²   411 m²  

Slim kopen in Spanje? Lees onze inzichten!

Vastgoed in Spanje
Vastgoed in Spanje

De aankoop van een woning in Spanje verloopt anders dan in België of Nederland. Hier spelen advocaat en notaris elk hun eigen, onmisbare rol. De één waakt over jouw rechten en documenten, de ander over de officiële handtekening. Samen vormen ze jouw juridische zekerheid, zodat jij met vertrou...

Martine

Erfbelasting in Spanje: Regels & vrijstellingen
Erfbelasting in Spanje: Regels & vrijstellingen

Erfbelasting in Spanje varieert per regio, met verschillende vrijstellingen en kortingen. Directe familieleden betalen vaak minder, terwijl tarieven oplopen tot 34 procent.

Sommige regio’s, zoals Murcia, bieden bijna volledige vrijstelling. Slimme planning helpt erfbelasting te minimali...

Martine

Tweede verblijf belastingaangifte Spanje: hoe?
Tweede verblijf belastingaangifte Spanje: hoe?

Je Spaanse droomwoning gekocht?

Dan komt er ook wat administratie bij kijken.

Ontdek hier stap voor stap hoe je je tweede verblijf correct aangeeft bij de Belgische fiscus en wat je moet ...

Martine

square-box
Tine
Vragen over panden, projecten en onze content
Snel starten:

Hallo, ik ben Tine je kan bij mij terecht met al je vragen over panden, projecten en onze content. Ik antwoord alleen op basis van de beschikbare website-inhoud.