Vrijstaande villa met zwembad en solarium in Vera

 Project: Residentie Aura, mediterraanse villa's in Vera

Moderne nieuwbouwwoningen met privézwembad nabij golfresort

Korte beschrijving:

VILLA – 3 SLAAPKAMERS – 2 BADKAMERS – PRIVÉZWEMBAD – SOLARIUM – LUXUEUZE AFWERKING

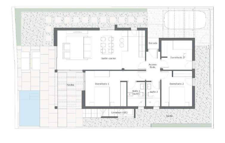
Deze stijlvolle gelijkvloerse villa maakt deel uit van een nieuwe residentie van 33 moderne woningen in Valle del Este (Vera). Alles bevindt zich op één niveau, wat zorgt voor maximaal comfort en een logische indeling. Bij het betreden van de woning kom je via de inkomhal in de ruime leefruimte met open keuken. De keuken beschikt over een kookeiland met toestellen en is ontworpen met oog voor functionaliteit en elegantie. Dankzij de grote schuiframen geniet je van overvloedig natuurlijk licht en directe toegang tot de tuin, waardoor binnen- en buitenleven naadloos in elkaar overlopen.

De villa biedt 3 slaapkamers en 2 badkamers, waarvan de hoofdslaapkamer beschikt over een badkamer-ensuite en directe toegang tot de tuin. De overige twee slaapkamers delen een tweede badkamer. Alle badkamers zijn volledig uitgerust met wastafel, meubel, douche, toilet en spiegel. Elke slaapkamer beschikt over inbouwkasten met hangrekken, legplanken en lades, en alle kamers hebben rechtstreeks toegang tot de buitenruimte - ideaal om te genieten van licht, lucht en privacy.

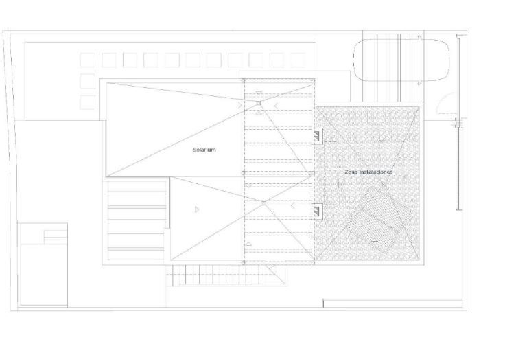
De woning staat op een perceel van 236 m² met een aangelegde tuin, pergola en privézwembad met zoutwaterfilter. Op de begane grond is een praktische wasruimte voorzien, terwijl het solarium van 55 m² op de bovenverdieping uitnodigt tot ontspanning met panoramisch uitzicht over de golfbaan. Hier geniet je van zon, rust en de mediterrane levensstijl in alle comfort. De villa beschikt verder over pré-installatie airconditioning, elektrische garagepoort en hoogwaardige afwerkingen. Met een privéparkeerplaats op het perceel en een locatie op slechts 10 minuten van de stranden van Vera, Garrucha en Mojácar, biedt deze woning een unieke combinatie van luxe, rust en nabijheid van zee en golf.

U bent nog niet aangemeld!

Na invullen van onderstaande gegevens wordt u aangemeld, indien er nog geen account bestaat kan deze aangemaakt worden!



 Geef ons uw mening...

 Momenteel nog geen reviews voor dit pand.

Uitgebreide beschrijving:

Deze woning maakt onderdeel van een nieuwe residentie van 33 nieuwbouwwoningen. De woning is gebouwd over 1 verdieping met een solarium bovenop. Bij het betreden van de woning, bereik je de inkomhal. Alle ruimtes worden afgesloten met deuren, zodat de woning onderverdeeld wordt in ruime ruimtes. 

1 deur leidt naar de woonkamer met open keuken. De keuken is voorzien van een kookeiland met toestellen. Via grote ramen, bereik je de tuin. Dankzij deze grote schuiframen wordt jouw leefruimte overspoeld aan natuurlijk lichtinval. 

Er zijn 3 slaapkamers gelegen met 2 badkamers. De hoofdslaapkamer heeft een badkamer-ensuite én toegang tot de tuin. De andere 2 slaapkamers, delen een badkamer. Elke badkamer is voorzien van wastafel, bijpassend meubel, douche, toilet, ... 

Elke slaapkamer is voorzien van inbouwkasten met hangrekken, legplanken én lades. Elke slaapkamer heeft rechtstreeks toegang tot de tuin. Hierdoor voorzie je elke slaapkamer met verse buitenlucht én de nodige lichtinval. 

DUS CONCREET: 

  • 3 slaapkamers
  • 2 badkamers
  • Open keuken met toestellen 
  • Ruime leefruimte met zicht op de tuin
  • Solarium 

Deze woning is gelegen op een perceel van 236m². Dit geeft meer dan voldoende buitenruimte, zodat je optimaal kan ontspannen onder de Spaanse zon. Aansluitend aan de woonkamer, is er een aangelegd terras. Op het terras is er een pergola voorzien, zodat je telkens kan genieten van aangename temperaturen. Op de begane vloer is er een wasruimte voorzien van 2m².

In de tuin is er een privézwembad gelegen zodat je heerlijk kan ontspannen na zonnebaden. Een verdieping hoger, bereik je het solarium van 55m². Hier kan je de hele dag door genieten van de zon én van de meest prachtige zichten over de golfbaan. 

Elke woning heeft een parkeerplaats voorzien op het eigen perceel. 

TECHNISCHE KENMERKEN: 

  • Privézwembad met zoutwaterfilter
  • Solarium met pergola
  • Elektrische garagepoort
  • Pré-installatie airconditioning 

Valle del Este, gelegen in Vera, in de provincie Almería, is een prachtige en rustige woonomgeving die luxe, natuur en ontspanning op een harmonieuze manier combineert. Het resort ligt iets landinwaarts, op korte afstand van de kust, waardoor je geniet van een vredige sfeer met de zee altijd binnen handbereik. De stranden van Vera Playa, Garrucha en Mojácar liggen op slechts tien minuten rijden en bieden een indrukwekkende kustlijn met helder water, fijn zand en sfeervolle strandrestaurants waar je tot zonsondergang kunt genieten van de mediterrane keuken.

Het hart van Valle del Este wordt gevormd door de 18-holes golfbaan, ontworpen door José Canales. De baan is fraai geïntegreerd in het glooiende landschap en staat bekend om zijn brede fairways, strategische waterpartijen en panoramische uitzichten op de bergen van de Sierra Cabrera. Rondom de baan ligt een luxe hotel met spa en wellnesscentrum, waar ontspanning centraal staat. Hier kun je terecht voor massages, sauna’s, schoonheidsbehandelingen en een verfrissende duik in het zwembad, alles met uitzicht op de golfbaan en het mediterrane landschap.

De omgeving van Valle del Este ademt rust en elegantie. Brede lanen, groene zones en goed onderhouden tuinen zorgen voor een gevoel van ruimte en balans. Er zijn sportfaciliteiten, een fitnessruimte, een padel- en tenniscentrum, en diverse restaurants waar Spaanse en internationale gerechten worden geserveerd. De sfeer is ontspannen maar levendig, met een aangename mix van internationale bewoners die de liefde voor de zon, golf en natuur delen.

Wat veel mensen niet weten, is dat de regio rond Vera een van de gezondste klimaten van Europa heeft. Dankzij de ligging tussen zee en bergen geniet het gebied van milde winters en warme, droge zomers met een lage luchtvochtigheid – ideaal voor wie houdt van het buitenleven. ’s Ochtends hoor je enkel het zachte geruis van de wind over de heuvels en het tikken van sprinklers die de golfbaan bevochtigen, terwijl de zon langzaam de horizon verlicht. Het is een serene start van de dag, typerend voor de rustige energie van Valle del Este.

Daarnaast kent deze regio een rijke historische en culturele achtergrond. In het nabijgelegen stadje Vera vind je een levendig centrum met wekelijkse markten, traditionele tapasbars en pleinen vol leven. De kustplaats Garrucha staat bekend om haar verse garnalen en authentieke vissershaven, terwijl Mojácar Pueblo, hoog op een heuvel gelegen, betovert met zijn witgekalkte huizen, kronkelende straatjes en uitzicht over zee. Samen maken deze plaatsen van Valle del Este een uitzonderlijke locatie – waar comfort, natuur en mediterrane rust samenkomen in een omgeving die nog steeds trouw is aan haar Andalusische ziel.

AFSTANDEN: 

  • Valle del Este Golf: 300 meter
  • Stranden van Vera: 7km 
  • Mojacar: 10km 
  • Garrucha: 10km 
  • Luchthaven van Almeria: 75km 
  • Luchthaven van Murcia: 140km 
  • Luchthaven van Alicante: 200km 

Onze visie binnen Casas Kimpencio;

  • Bij Casas Kimpencio ben je niet zomaar iemand, wij willen een persoonlijke relatie aangaan.
  • We behandelen jullie zoals we zelf behandeld willen worden, met de nodige betrokkenheid, precisie en details.
  • Geen enkele vraag is ons te veel, we staan elke dag telefonisch voor jou klaar.
  • Wij hebben de gedachte dat een huis kopen niet zomaar een huis kopen is, maar een nieuwe thuis kopen.
  • Iedereen dient een eigen verhaal te krijgen, met verschillende hoofdstukken. 
  • Wij willen helpen aan het Spaanse hoofdstuk, een hoofdstuk van een nieuwe thuis, vakantiewoning of een investering.
  • En dit doen we met open, duidelijke communicatie  en daarmee geraken we er altijd, zo vinden we jouw ideale woning gebaseerd op meerdere gesprekken.
  • We helpen vanaf het begin tot aan de sleuteloverdracht, en ver daarbuiten. 

Wij vinden deze woning bijzonder omdat; 

  • Alles zich op één niveau bevindt, waardoor de woning praktisch en comfortabel is, met een logische indeling en ruime leefzones die naadloos in elkaar overlopen.

  • De open keuken met kookeiland het hart van de woning vormt, uitgerust met moderne toestellen en ontworpen voor gezellig samenzijn en dagelijks comfort.

  • Grote schuiframen de leefruimte overspoelen met natuurlijk licht, terwijl ze een directe verbinding creëren tussen binnen en buiten.

  • Alle slaapkamers rechtstreeks toegang hebben tot de tuin, wat zorgt voor veel licht, frisse lucht en een gevoel van vrijheid in elke ruimte.

  • De hoofdslaapkamer een eigen badkamer-ensuite heeft, die privacy combineert met elegantie en comfort.

  • De tuin uitnodigt tot ontspanning, met aangelegde terrassen, pergola en een privézwembad met zoutwaterfilter voor een luxe mediterrane sfeer.

  • Het ruime solarium van 55m² een absolute troef is, ideaal om de hele dag van de zon te genieten, te dineren in open lucht of ’s avonds te ontspannen met uitzicht over de golfbaan.

  • De woning hoogwaardige afwerkingen heeft, zoals een elektrische garagepoort, pré-installatie airconditioning en een doordachte indeling met afgesloten leefruimtes.

  • Elke woning beschikt over een eigen parkeerplaats op het perceel, wat extra gemak en veiligheid biedt.

  • De ligging in Valle del Este een uitzonderlijke balans biedt tussen rust, natuur en luxe, met de golfbaan, wellness en stranden van Vera Playa en Mojácar binnen handbereik.


GROEI EN TRENDS IN VERA: 

Jaar  Prijs per m² Jaarlijkse stijging 
2023 €1.453 -
2024 €1.776 +22.3%
2025 €2.222 +25.1%

Kenmerken:

Kenmerken van Vrijstaande villa met zwembad en solarium in Vera
Aantal slaapkamers 3
Aantal badkamers 2
Privaat zwembad Ja
Oppervlakte perceel rond het huis 236 m²
Bebouwde oppervlakte 98 m²
Bewoonbare oppervlakte 90 m²
Afstand naar het strand 0.75 km
Terras oppervlakte 64 m²
Private Tuin Ja
Poort Ja
Nabij Scholen Ja
Terras Ja
Fietsafstand van het strand Ja
Vloerverwarming badkamer Ja
Douche schermen Ja
Buitenkeuken Ja
Solarium Ja
Solarium oppervlakte in m2 50-60 m²
Pré installatie airco Ja
Elektrische rolluiken Ja
Led verlichting buiten Ja
Led verlichting binnen Ja
privé parkeerplaats Ja
Telefoon Data aansluiting Ja
Videofonie Ja
Inbouwkasten Ja
Elektrische poort Ja
Badkamer spiegels Ja
Alle keuken apparatuur volledig inbegrepen Ja
Barbecue Ja
Kookplaat Dampkap Magnetron & Oven Ja
Nabij kinder speeltuin Ja
Uitzicht tuin Ja
Golfresort afstand in km 0-2 km
Ziekenhuis afstand in km 5-10 km
Nabij Commercieel centrum Ja
Luchthaven Alicante afstand 50+ km
Luchthaven Murcia afstand 50+ km
Ontspanning ruimte buiten Ja
Hangend toilet Ja
Hangend badkamer meubel Ja
Uitzicht op het zwembad Ja
Sauna Ja
Volledig ingerichte keuken Ja
Dampkap Ja
Gepantserde toegangsdeur met veiligheidsslot Ja
Aerothermische boiler Ja
Gelijkvloers Ja
Dressing Ja
Pergola Ja
Energielabel B
Afgewerkte badkamer Ja

Meer info?


Beschikbare documenten

aura 2.jpeg

Document bij Vrijstaande villa met zwembad en solarium in Vera

download
aura 1.jpeg

Document bij Vrijstaande villa met zwembad en solarium in Vera

download

Ontdek wat we nog meer voor jou in petto hebben!

Foto van Gelijkvloerse villa met zwembad in San Javier
Gelijkvloerse villa met zwembad in San Javier

Project: Residentie Olmo - nieuwbouwvilla's in San Javier

Stad: San Javier-Murcia-Mar-Menor

3   1     71 m²   120 m²  

Foto van Villa met onderbouw in La Nucia
Villa met onderbouw in La Nucia

Project: Residentie Vila Natura in La Nucia

Stad: La Nucia

3   3     183 m²   48 m²  

Foto van Villa met zwembad in residentie Mar de Granada
Villa met zwembad in residentie Mar de Granada

Project: Coming soon: Mar de Granada - Pilar de la Horadada

Stad: Pilar de la Horadada - Alicante

3   2    

Foto van VISTAS DE BIGASTRO quad house kopen Bigastro
VISTAS DE BIGASTRO quad house kopen Bigastro

Project: Villas de Bigastro Costa Blanca Zuid met ruimte

Stad: Bigastro

3   2     142 m²   58 m²  

Foto van Nieuwbouw golfvilla Costa Cálida met solarium
Nieuwbouw golfvilla Costa Cálida met solarium

Project: Wonen op de golfbaan: villa in Hacienda del Álamo

Stad: Fuente Álamo de Murcia

2   2     80 m²   50 m²  

Foto van Nieuwbouwvilla Puerto de Mazarrón met solarium
Nieuwbouwvilla Puerto de Mazarrón met solarium

Project: Alondra Villa’s in Puerto de Mazarrón Spanje

Stad: Puerto de Mazarrón

3   2     88 m²   110 m²  

Foto van Instapklare villa met 5 slpk in Los Montesinos
Instapklare villa met 5 slpk in Los Montesinos

Project: Laguna Azul

Stad: Los Montesinos

3   3     116 m²   52 m²  

Foto van Villa kopen Mazarrón Country Club Costa Cálida
Villa kopen Mazarrón Country Club Costa Cálida

Project: LOS COLLADOS DEL COUNTRY Mazarrón Country Club

Stad: Mazarron

3   2     151 m²   94 m²  

Foto van Exclusieve resortvilla aan Costa Cálida
Exclusieve resortvilla aan Costa Cálida

Project: LAKE VIEW VILLAS Santa Rosalía villa kopen

Stad: Santa Rosalia

3   4     217 m²   77 m²  

Foto van Luxe villa met zwembad in Altea Hills
Luxe villa met zwembad in Altea Hills

Project: Luxe villa OASIS 005 met zwembad in Altea Hills

Stad: Altea Hills

4   3     496 m²   289 m²  

Foto van Villa Menorca Santa Rosalía Lake and Life Resort
Villa Menorca Santa Rosalía Lake and Life Resort

Project: Villa Menorca Santa Rosalía Lake and Life Resort

Stad: Santa Rosalia

3   3     229 m²   111 m²  

Foto van Residencial Carmen VI villa kopen San Javier
Residencial Carmen VI villa kopen San Javier

Project: Residencial Carmen VI nieuwbouw villa San Javier

Stad: Santiago de la Ribera

3   3     120 m²   120 m²  

Lees mee met onze nieuwste blogs!

Afbeelding bij Ontdek Comunidad Valenciana: 3 provincies, 1 droom
Ontdek Comunidad Valenciana: 3 provincies, 1 droom

Van Castellón tot Alicante: in de Comunidad Valenciana koop je met zekerheid en zon. Casas Kimpencio begeleidt je stap voor stap, transparant en persoonlijk.

...

Martine

Afbeelding bij Spanje als top pensioenland
Spanje als top pensioenland

Spanje behoort nu tot de top drie beste landen ter wereld om te wonen na je pensioen. Ontdek waarom zoveel Europeanen voor dit warme en zorgeloze leven kiezen.

...

Martine

Afbeelding bij Juridische aspecten bij kopen van huis in Spanje
Juridische aspecten bij kopen van huis in Spanje

Vakkundige leiding voor juridische stappen bij het kopen van een huis in Spanje, inclusief onderzoek naar eigendom, fiscale gevolgen en essentiële begeleiding door een gespecialiseerde Spaanse advocaat is sterk aan te raden!

...

Martine