Appartement met terras in Torrevieja
Project: Residentie Soprano in Torrevieja
Moderne nieuwbouwappartementen in centrum Torrevieja
Korte beschrijving:
APPARTEMENT - 2 SLAAPKAMERS MET 2 BADKAMERS - TERRAS
Deze woning is gelegen op een tussenverdieping en is voorzien van 2 slaapkamers met 2 badkamers. De woning is functioneel en lichtrijk afgewerkt, zodat jouw comfort centraal staat. De woning beschikt over een energielabel B.
De woning heeft een gemeenschappelijk zwembad op het dakterras met optioneel mogelijk om een berging op het dakterras te nemen. Verder is de woning gelegen op een topligging, midden in het centrum en op slechts 600 meter van het strand.
U bent nog niet aangemeld!
 Geef ons uw mening...
Vanaf: €227.900
Ref: KIMP-PROP-3960
                        
Uitgebreide beschrijving:
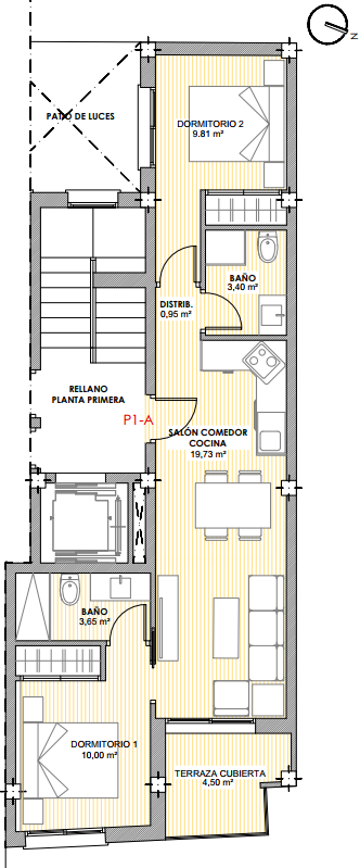
Deze woning is gelegen op een tussenverdieping en is voorzien van 2 slaapkamers met 2 badkamers. Bij binnenkomst betreedt je de leefruimte met de open, L-vormige keuken. De woonkamer heeft bovendien toegang tot het terras van 4,5m², via grote schuiframen. De keuken komt geleverd met de nodige apparaten.
Er zijn 2 slaapkamers met 2 badkamers voorzien. De slaapkamers zijn uitgerust met inbouwkasten, met hangrekken, lades en legplanken. De ene slaapkamer ligt aan de kant van het terras, de ander slaapkamer kijkt uit op de binnenpatio. De badkamer is uitgerust met een wastafel, douche, toilet en spiegel.
In de residentie is er een gemeenschappelijk zwembad op het dakterras gelegen. Hier geniet je van prachtige zichten over de stad! Er is een mogelijkheid om een berging aan te kopen op het dakterras, wat jouw comfort bevorderd.
Doorheen de woning wordt het lichtinval gemaximaliseerd, zodat jouw beleving optimaal is. Een topwoning dus!
Deze woning is gelegen in Torrevieja. Torrevieja, in het hart van de Costa Blanca, is een stad waar zee, cultuur en natuur op een bijzondere manier samenkomen. Op slechts 600 meter van Playa de los Locos geniet je van de voordelen van een rustige woonomgeving, terwijl het strand altijd binnen handbereik is. Deze ligging maakt het eenvoudig om op elk moment van de dag een wandeling langs de kust te maken, een duik te nemen of simpelweg te ontspannen in de zon, zonder volledig in de drukte van de boulevard te zitten.
De stad zelf heeft een energieke, internationale sfeer, met een mix van lokale tradities en invloeden van bewoners uit heel Europa. Torrevieja staat bekend om zijn zoutmeren, die in de avondzon vaak een roze gloed aannemen en een thuis vormen voor grote groepen flamingo’s. Deze natuurlijke lagunes zorgen bovendien voor een mild en aangenaam microklimaat, waardoor de winters zacht en de zomers goed te verdragen zijn. In het centrum vind je een breed aanbod aan winkels, restaurants, cafés en culturele evenementen, van openluchtconcerten tot gastronomische festivals.
Naast het strand en de stadse levendigheid biedt Torrevieja ook volop mogelijkheden om actief te zijn in de natuur. De lange kustpromenade nodigt uit tot wandelen en fietsen, terwijl de nabijgelegen natuurparken perfect zijn voor vogelspotten of rustige picknicks. Watersportliefhebbers hebben de keuze uit zeilen, kajakken, duiken en meer, allemaal op korte afstand. Dankzij de centrale ligging zijn ook omliggende plaatsen zoals Alicante, Orihuela Costa en Guardamar gemakkelijk te bereiken voor een dagje uit.
Torrevieja combineert het beste van twee werelden: de bruisende faciliteiten van een stad en de ontspanning van een kustgemeente. Hier kun je het hele jaar door genieten van een mediterraan buitenleven, met de zee als constante achtergrond en een gemeenschap die zowel levendig als gastvrij is.
Wat maar weinig mensen weten, is dat het gebied rond Playa de los Locos een van de meest beschutte kuststroken van Torrevieja is. Dankzij de natuurlijke vorm van de baai en de rotsformaties aan weerszijden blijft het water hier vaak kalmer dan op andere stranden in de omgeving. Zelfs op dagen met stevige wind of hogere golven kun je er vaak nog rustig zwemmen of peddelen. In de vroege ochtend, voordat het strand drukker wordt, zie je regelmatig locals hun dagelijkse baantjes trekken in zee — een traditie die al tientallen jaren deel uitmaakt van het ritme van deze buurt.
Daarnaast heeft dit deel van Torrevieja een bijna verborgen culinaire wereld, verscholen in kleine straatjes net achter de kust. Er zijn hier eetgelegenheden die geen reclame maken en waar geen uitgebreide toeristenmenukaarten te vinden zijn, maar waar je wél paella kunt eten zoals die thuis wordt gemaakt, of caldero met vis die dezelfde ochtend nog is gevangen. Op sommige avonden, vooral buiten het hoogseizoen, schuiven buren en vrienden aan bij lange tafels op het terras van deze kleine zaken, en wordt de maaltijd vergezeld door verhalen, muziek en de geur van zee. Het is een stukje authentiek Torrevieja dat veel bezoekers nooit te zien krijgen, maar dat voor wie hier woont of verblijft, van onschatbare waarde is.
Onze visie binnen Casas Kimpencio;
Bij Casas Kimpencio ben je niet zomaar iemand, wij willen een persoonlijke relatie aangaan. We behandelen jullie zoals we zelf behandeld willen worden, met de nodige betrokkenheid, precisie en details. Geen enkele vraag is ons te veel, we staan elke dag telefonisch voor jou klaar. Wij hebben de gedachte dat een huis kopen niet zomaar een huis kopen is, maar een nieuwe thuis kopen. Iedereen dient een eigen verhaal te krijgen, met verschillende hoofdstukken.
Wij willen helpen aan het Spaanse hoofdstuk, een hoofdstuk van een nieuwe thuis, vakantiewoning of een investering. En enkel met open, duidelijke communicatie geraken we er. Enkel zo vinden we jouw ideale woning gebaseerd op meerdere gesprekken. We helpen vanaf het begin tot aan de sleuteloverdracht, en ver daarbuiten.
Wij vinden deze woning in Torrevieja de ideale keuze voor wie op zoek is naar een compacte, maar stijlvolle woning dicht bij de zee. De open indeling, gecombineerd met het terras en de binnenpatio, biedt een uitstekende balans tussen binnen- en buitenruimte. De locatie, op slechts 600 meter van het strand, maakt het perfect voor wie van de kust en het levendige stadsleven wil genieten, terwijl de rust van de woonomgeving behouden blijft.
Woningen in residentie Soprano:
| Type woning | Aantal slaapkamers / badkamers | Bebouwde oppervlakte | Oppervlakte terras | Prijs | 
| Gelijkvloers appartement | 1/1 | 42m² | 6m² | €154.000 | 
| Appartement op tussenverdieping | 1/1 | 46m² | 6m² | €184.000 | 
| Appartement op tussenverdieping | 2/2 | 59m² | 4m² | €227.900 | 
| Penthouse | 2/2 | 59m² | 14m² | €302.600 | 
Kenmerken:
| Aantal slaapkamers | 2 | |
| Aantal badkamers | 2 | |
| Oppervlakte perceel rond het huis | 0 m² | |
| Bebouwde oppervlakte | 59 m² | |
| Bewoonbare oppervlakte | 53 m² | |
| Afstand naar het strand | 0.6 km | |
| Terras oppervlakte | 4 m² | |
| Gedeeld zwembad | Ja | |
| Nabij Scholen | Ja | |
| Nabij Commercieel centrum | Ja | |
| Nabij bushalte | Ja | |
| Terras | Ja | |
| Douche schermen | Ja | |
| Solarium | Gedeeld | |
| Pré installatie airco | Ja | |
| Led verlichting buiten | Ja | |
| Led verlichting binnen | Ja | |
| Telefoon Data aansluiting | Ja | |
| Videofonie | Ja | |
| Inbouwkasten | Ja | |
| Aero thermische warmtepomp | Ja | |
| Badkamer spiegels | Ja | |
| Alle keuken apparatuur volledig inbegrepen | Ja | |
| Nabij kinder speeltuin | Ja | |
| Berging | Optioneel | |
| Golfresort afstand in km | 20-25 km | |
| Ziekenhuis afstand in km | 5-10 km | |
| Luchthaven Alicante afstand | 50+ km | |
| Luchthaven Murcia afstand | 50+ km | |
| Gedeelde kosten | Ja | |
| Lift | Ja | |
| Ontspanning ruimte buiten | Ja | |
| Hangend toilet | Ja | |
| Hangend badkamer meubel | Ja | |
| Overloopzwembad | Ja | |
| Cameradeur met intercom terminal | Ja | |
| Badkamer meubel en spiegels | Ja | |
| Volledig ingerichte keuken | Ja | |
| Gepantserde toegangsdeur met veiligheidsslot | Ja | |
| Hoogwaardige afwerking | Ja | |
| Goede prijs-kwaliteit verhouding | Ja | |
| Aerothermische boiler | Ja | |
| Goed gebied voor rentabiliteit van huur | Ja | |
| Wandelafstand van het strand | Ja | |
| Energielabel | B | |
| Afgewerkte badkamer | Ja | |
| Gesloten urbanisatie | Ja | 
Meer info?
Beschikbare documenten
Ontdek wat we nog meer voor jou in petto hebben!
                        
            
            Villa Anisa in residentie La Marina Villas
Project: Residentie La Marina Villas in San Fulgencio
Stad: San Fulgencio
4   4     305 m²   210 m²  
                        
            
            Penthouse met solarium in residentie Oasis
Project: Residentie Oasis in Guardamar
Stad: Guardamar del segura- Alicante
3   2   93 m²   8 m²  
                        
            
            Bovenste bungalow in residentie Luisa
Project: Residentie Luisa in Ciudad Quesada
Stad: Ciudad Quesada
2   2   79 m²   10 m²  
                        
            
            Penthouse met solarium in residentie Jaya
Project: Residentie Jaya, appartementen op Font del Llop F2
Stad: Monforte del cid
2   2   147 m²   22 m²  
                        
            
            Moderne villa in residentie Palma Nova
Project: Coming soon: Residentie Palma Nova in Daya Nueva
Stad: Daya Nueva
3   2    
                        
            
            Moderne villa met zwembad in Julieta 5
Project: Villa's Julieta 5 in Ciudad Quesada
Stad: Ciudad Quesada
4   4     257 m²   126 m²  
                        
            
            Penthouse met solarium in Salisol
Project: Salisol Resort F2 in El Raso Guardamar
Stad: Guardamar del segura- Alicante
2   2   96 m²   21 m²  
                        
            
            EDIFICIO SAN ISODRO 19 - 3 slaapkamers-appartement
Project: EDIFICIO SAN ISODRO 19 - 2 moderne appartementen
Stad: Jacarilla
3   1   80 m²   6 m²  
                        
            
            Villa Cibeles in Ciudad Quesada
Project: Villas in Ciudad Quesada met zicht op de bergen
Stad: Ciudad Quesada
4   3     245 m²   95 m²  
                        
            
            Penthouse met terras in Sakura Beach
Project: Residentie Sakura Beach in Pilar de la Horadada
Stad: Pilar de la Horadada - Alicante
2   1   51 m²   16 m²  
                        
            
            Villa Leonor in Ciudad Quesada
Project: Villa's Leonor in Ciudad Quesada
Stad: Ciudad Quesada
3   2     140 m²   68 m²  
                        
            
            Villa Atenas-polideportivo-Dolores
Project: Villa Atenas-polideportivo-Dolores
Stad: Dolores
3   3     133 m²   29 m²  
Lees mee met onze nieuwste blogs!
                        
            
            De topredenen om een huis te kopen in Torrevieja
Ontdek Torrevieja: Jouw droomhuis aan de Costa Blanca Torrevieja, gelegen aan de zonovergoten Costa Blanca, combineert prachtig weer, adembenemende stranden en betaalbare woningen met een rijke cultuur en een bloeiende internationale gemeenschap.
Of je nu op zoek bent naar een vakantiehuis...
Martine
                        
            
            De 10 strandpersoonlijkheden in Spanje
Tijd voor zon, zee en Spaanse flair
Het is weer summertime of zoals ze hier zeggen de tiempo de verano! De zon schijnt, de zee roept en het strand wordt opnieuw het toneel waar iedereen zijn eigen zomerse kant laat zien. Van de eerste rijden vol parasols tot de zonnekloppers met rode ...
Martine
                        
            
            Torrevieja: topkeuze voor Belgen en Nederlanders
Waarom zoveel Belgen en Nederlanders kiezen voor een woning in Torrevieja
De favoriete kustplaats aan de Costa Blanca Zuid
Torrevieja, gelegen aan de prachtige Costa Blanca, is al jarenlang een van de populairste bestemmingen voor Belgische en Nederlandse woningkopers. En dat is niet ...
Martine
                         
                         
                         
                         
                         
                         
                         
                         
                         
                         
                         
                         
                         
                                                    
                                                         
                                                    
    
                                    Spanje: