Home Lopende projecten Alle Panden Over ons Ons team Ons kantoor Onze werkwijze Contacteer ons Blog Cookies

laatste kans

Hoekwoning in Marella Garden

 Project: Residentie Marella Garden appartementen in Rojales

Unieke woning in authentieke Spaanse stijl

Korte beschrijving:

HOEKWONING MET 3 SLAAPKAMERS EN 2 BADKAMERS - SOLARIUM - PARKEERPLAATS - LAATSTE KANS

Deze woning is verdeeld over 3 verdiepingen én heeft een privésolarium. Op elke verdieping is er heel wat buitenruimte voorzien zoals tuin, terrassen én dakterras. De woning is voorzien van een uitgeruste badkamer, aangelegde tuin, bioklimatologische pergola, ... Noem maar op! Je kan genieten van een ruim gemeenschappelijk zwembad met ligbedden en parasols. Het hele complex is afgewerkt in authentieke Spaanse / Arabische stijl, wat een luxueuze uitstraling geeft. 

LAATSTE KANS! Nog maar 1 woning beschikbaar! 

U bent nog niet aangemeld!

Na invullen van onderstaande gegevens wordt u aangemeld, indien er nog geen account bestaat kan deze aangemaakt worden!



 Geef ons uw mening...


J.W. 24/06/2025
Super tof!!
Totaalscore
Gemiddelde van 1 review

5 / 5


Uitgebreide beschrijving:

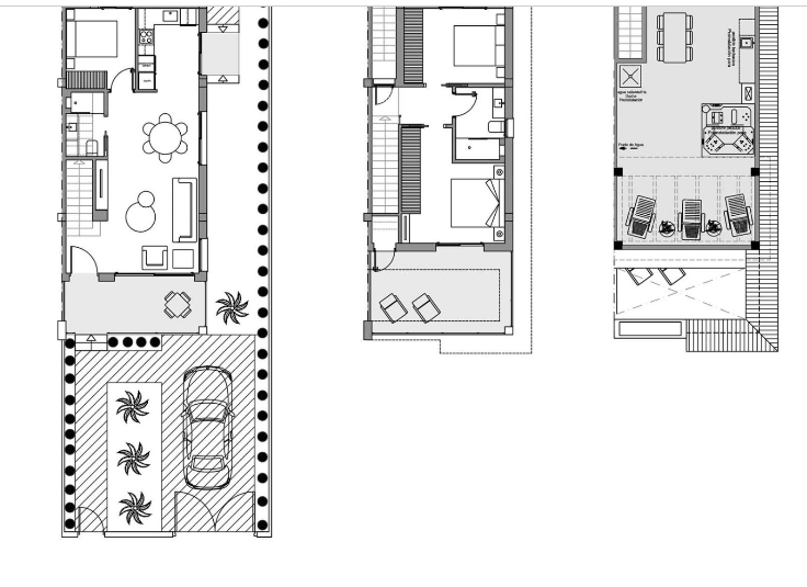
Deze woning is verdeeld over 3 verdiepingen. Je betreedt de woning via een voetgangersingang of de poort, waar je jouw wagen op het perceel kan parkeren. Er is een pré-installatie voorzien voor een elektrische poort. Tegen een meerprijs kan je dus genieten van een automatische poort met afstandsbediening. Op de parkeerplaats is er een pergola / carport voorzien, zodat jouw wagen niet oververhit zal raken. Er is een technische ruimte / opbergruimte aan de ingang van jouw woning. 

Er is een ruime leefruimte met open keuken voorzien. De keuken is pré-geïnstalleerd, zonder elektrische apparaten. De ruime leefruimte kijkt via grote schuiframen uit op jouw eigen terras van 22m², met aansluitend de tuin van minimum 100m². De tuin is voorzien van gras, er is een mogelijkheid tot beplanting en een irrigatie-systeem, tegen een meerprijs. Via de tuin is er een voetgangersingang voorzien met een poortje. Op de begane vloer is de eerste slaapkamer met aansluitend de badkamer gelegen. 

Op de eerste verdieping zijn de overige 2 slaapkamers en badkamer gelegen. Alle badkamers zijn uitgerust met toilet, douche, doucheschermen, wastafel, badkamermeubel, spiegel én vloerverwarming. De hoofdslaapkamer heeft een badkamer-ensuite. Alle slaapkamers zijn voorzien van inbouwkasten met hangrekken en lades. Beide slaapkamers op de eerste verdieping hebben een eigen balkon, bereikbaar via schuiframen. 

Via een buitentrap bereik je het solarium van 45m². Het solarium is volledig afgewerkt in anti-slip tegels. Op het solarium is er een pré-installatie van een buitenkeuken voorzien, met een spoelbak. Er is een mogelijkheid tegen een meerprijs om een privéjacuzzi te installeren op het solarium. Er is een pergola voorzien op het solarium, zo geniet je keer op keer van aangename temperaturen. Geniet van de zon de hele dag door op het dakterras!

Er is een ruim gemeenschappelijk zwembad voorzien met groene gebieden. Bij het zwembad zijn er ligbedden en parasols zodat je optimaal kan genieten van een dagje zonnekloppen. Het gehele complex is afgewerkt in de authentieke Spaanse / Arabische stijl, wat tropische sferen geeft. Kom helemaal tot rust in deze kwaliteitsvolle residentie. De residentie is perfect beveiligd, het gehele wooncomplex komt binnen via 1 centrale ingang, waar er beveiligingscamera's hangen. Hierdoor is jouw veiligheid optimaal verzekerd! 

Er is een mogelijkheid om een perfect afgewerkte woning te betreden, inclusief meubelen, elektrische apparaten, ...

Neem contact met ons op en wij bespreken welke 'pakketten' er mogelijk zijn! 

Extra troeven aan deze woning: 

  • Pré-installatie airconditioning
  • 2 zonnepanelen voor sanitair warm water
  • Elektrische rolluiken
  • Video-intercom

Deze woning is gelegen in Rojales.

Rojales, een charmant stadje in de provincie Alicante, biedt een prachtige combinatie van rust, cultuur en recreatie. Een van de grootste troeven van Rojales is de nabijheid van La Marquesa Golf, een golfbaan van hoge kwaliteit die op slechts twee minuten afstand ligt. Deze golfbaan, ingebed in een schilderachtig landschap, is ideaal voor zowel beginners als ervaren golfers die willen genieten van een ontspannen ronde golf in een serene omgeving. De baan heeft een uitdagend ontwerp met tal van waterpartijen en goed onderhouden greens, waardoor het een geliefde plek is onder golfliefhebbers in de regio.

Naast de uitstekende golfmogelijkheden ligt Rojales op slechts tien minuten rijden van enkele van de mooiste stranden aan de Costa Blanca. De nabijgelegen stranden van Guardamar del Segura en La Mata bieden uitgestrekte zandstranden met kristalhelder water, perfect voor een dagje zonnebaden, zwemmen of wandelen langs de kust. Deze stranden staan bekend om hun natuurlijke schoonheid en rustige sfeer, waardoor ze ideaal zijn voor gezinnen en strandliefhebbers die op zoek zijn naar ontspanning aan de Middellandse Zee.

Rojales zelf heeft een rijke geschiedenis en een levendige lokale cultuur. De stad staat bekend om haar charmante oude molens en de Cuevas del Rodeo, een reeks kunstzinnige grotwoningen die tegenwoordig dienst doen als ateliers en galerieën voor lokale kunstenaars. Deze grotten zijn een uniek kenmerk van de stad en bieden bezoekers een kijkje in het creatieve leven van de gemeenschap. Elke maand wordt er een kunstmarkt gehouden, waar je kunstwerken, ambachten en lokale producten kunt kopen, wat bijdraagt aan de culturele rijkdom van de stad.

Voor wie verder wil verkennen, biedt Rojales een uitstekende uitvalsbasis voor het ontdekken van andere toeristische bestemmingen in de regio. Torrevieja, een levendige badplaats met een breed scala aan winkels, restaurants en een bruisend nachtleven, ligt op slechts een korte rit. Hier vind je ook het indrukwekkende zoutmerenpark, waar je kunt genieten van wandelingen door het natuurgebied en de beroemde roze meren kunt bewonderen.

Orihuela Costa, met zijn uitgebreide winkelcentra zoals Zenia Boulevard en een breed scala aan eetgelegenheden, ligt eveneens op een korte afstand. Dit gebied biedt tal van mogelijkheden voor winkelen, dineren en entertainment, evenals prachtige stranden en kustpaden om te verkennen.

Natuurliefhebbers zullen de nabijheid van de Lagunas de La Mata y Torrevieja waarderen, een beschermd natuurgebied waar je kunt wandelen, vogels kunt spotten en kunt genieten van het rustige, ongerepte landschap. Dit natuurpark is een toevluchtsoord voor flora en fauna en biedt een rustige ontsnapping uit de dagelijkse drukte.

Rojales combineert de rust en charme van een traditioneel Spaans stadje met gemakkelijke toegang tot golf, stranden en een breed scala aan toeristische bestemmingen. De strategische ligging, samen met de vele recreatieve mogelijkheden in de omgeving, maakt Rojales een ideale plek voor een evenwichtige levensstijl waar ontspanning, cultuur en avontuur hand in hand gaan.


Kenmerken:

Aantal slaapkamers 3
Aantal badkamers 2
Oppervlakte perceel rond het huis 110 m²
Bebouwde oppervlakte 111 m²
Bewoonbare oppervlakte 95 m²
Afstand naar het strand 6 km
Terras oppervlakte 22 m²
Gedeeld zwembad Ja
Private Tuin Ja
Poort Ja
Nabij Scholen Ja
Nabij Commercieel centrum Ja
Terras Ja
Fietsafstand van het strand Ja
Vloerverwarming badkamer Ja
Douche schermen Ja
Buitenkeuken Ja
Jaccuzi Ja
Solarium Ja
Solarium oppervlakte in m2 40-50 m²
Pré installatie airco Ja
Elektrische rolluiken Ja
Led verlichting buiten Ja
Led verlichting binnen Ja
privé parkeerplaats Ja
Telefoon Data aansluiting Ja
Videofonie Ja
Inbouwkasten Ja
Aero thermische warmtepomp Ja
Elektrische poort Optional
Badkamer spiegels Ja
Pre installatie keuken Ja
Nabij kinder speeltuin Ja
Berging Ja
Gedeelde tuin Ja
Golfresort afstand in km 2-5 km
Ziekenhuis afstand in km 5-10 km
Luchthaven Alicante afstand 40-50 km
Luchthaven Murcia afstand 50+ km
Uitzicht tuin Ja
Ontspanning ruimte buiten Ja
Hangend toilet Ja
Hangend badkamer meubel Ja
Zonnepanelen Ja
Gepantserde toegangsdeur met veiligheidsslot Ja
Kunstgras Ja
Bioklimatologische pergola Ja
Hoogwaardige afwerking Ja
Goede prijs-kwaliteit verhouding Ja
Aerothermische boiler Ja
Luxe nieuwbouw Ja
Kijkwoning Ja
Pergola Ja
Energielabel B
Afgewerkte badkamer Ja
Gesloten urbanisatie Ja

Meer info?


Beschikbare documenten

Schermopname_27-8-2024_84920_www.redsp.net.jpeg

document-Schermopname_27-8-2024_84920_www.redsp.net.jpeg

download

Ontdek wat we nog meer te bieden hebben!

Penthouse nabij zee Playa de El Cura
Penthouse nabij zee Playa de El Cura

Project: ALTEA VI appartementen nabij zee in Torrevieja

Stad: Torrevieja-Alicante

2   2     86 m²   29 m²  

Instapklare villa Spanje met zwembad koop
Instapklare villa Spanje met zwembad koop

Project: Wonen in Vistabella Plaza Golf- Luxe & natuur

Stad: Orihuela-Alicante

2   2     73 m²   150 m²  

Penthouse bungalow Torrevieja en uitzicht zoutmeer
Penthouse bungalow Torrevieja en uitzicht zoutmeer

Project: Los Balcones de Vivi in Los Balcones Torrevieja

Stad: Torrevieja-Alicante

2   2     63 m²   33 m²  

Bungalow kopen Torrevieja 2 slpk groot terras
Bungalow kopen Torrevieja 2 slpk groot terras

Project: Los Balcones de Vivi in Los Balcones Torrevieja

Stad: Torrevieja-Alicante

2   2     63 m²   64 m²  

Investeren in villa Almoradi 4 slpk met extra’s
Investeren in villa Almoradi 4 slpk met extra’s

Project: Essence II-Las Heredades nabij Rojales-Alicante

Stad: Las Heredades

4   3     140 m²    

Appartement met ruim terras in Corallia Resort
Appartement met ruim terras in Corallia Resort

Project: Residentie Corallia in Punta Prima - F1

Stad: Punta Prima

3   2   109 m²   17 m²  

Gelijkvloers appartement met tuin resort El Raso
Gelijkvloers appartement met tuin resort El Raso

Project: Gemeubelde Appartementen El Raso Guardamar

Stad: Guardamar del segura- Alicante

2   2     65 m²   16 m²  

Luxe villa eerste lijn in Cabo de Palos
Luxe villa eerste lijn in Cabo de Palos

Project: Luxe villa's eerste lijn in Cabo de Palos

Stad: Cabo de Palos

4   3     280 m²   60 m²  

Ruim penthouse vlak bij strand Guardamar en zee
Ruim penthouse vlak bij strand Guardamar en zee

Project: Nieuwbouw appartementen in Guardamar del Segura

Stad: Guardamar del segura- Alicante

2   2     65 m²   50 m²  

Villa met zwembad en onderbouw in Rojales
Villa met zwembad en onderbouw in Rojales

Project: Villa Ciudad Quesada – Auro I met kelderoptie

Stad: Rojales- Alicante

4   3     279 m²    

Villa op een groot perceel met uitzicht op natuur
Villa op een groot perceel met uitzicht op natuur

Project: Herverkoop van villa op groot perceel nabij golf

Stad: Ciudad Quesada

4   3   300 m²  

Penthouse met terras in residentie Talan 1
Penthouse met terras in residentie Talan 1

Project: Appartementen Torrevieja met zwembad Talan 1

Stad: Torrevieja-Alicante

2   2     74 m²   7 m²  

Ontdek het laatste nieuws!

Bezienswaardigheden Alicante
Bezienswaardigheden Alicante

Alicante is een stad vol zon, geschiedenis en verborgen plekjes. In deze gids ontdek jij de mooiste bezienswaardigheden die jouw bezoek onvergetelijk maken.

...

Martine

Ons ontdekken
Ons ontdekken

Welkom bij Casas Kimpencio een plek waar persoonlijk contact en de behoeften van elke potentiële koper centraal staan! We zijn gepassioneerd over het luisteren naar jouw wensen en nemen graag de tijd om ze te begrijpen, zodat we jouw dromen efficiënt kunnen verwezenlijken. Als ...

Martine

De culinaire geschiedenis van Spanje
De culinaire geschiedenis van Spanje

Een culinaire reis door eeuwen smaak, traditie en zon. Van Romeinse wijn tot Moorse kruiden en moderne tapas. Ontdek hoe de Spaanse keuken de ziel van het land weerspiegelt.

...

Martine

square-box
Tine
Vragen over panden, projecten en onze content
Snel starten:

Hallo, ik ben Tine je kan bij mij terecht met al je vragen over panden, projecten en onze content. Ik antwoord alleen op basis van de beschikbare website-inhoud.