Geschakelde woning met onderbouw in Portman

 Project: Residentie Playa Bavaro in provincie Murcia

Nieuwbouwwoningen met uitzicht op zee in regio Murcia

Korte beschrijving:

GESCHAKELDE WONING MET ONDERBOUW – 4 NIVEAUS – SOLARIUM – PORTMÁN

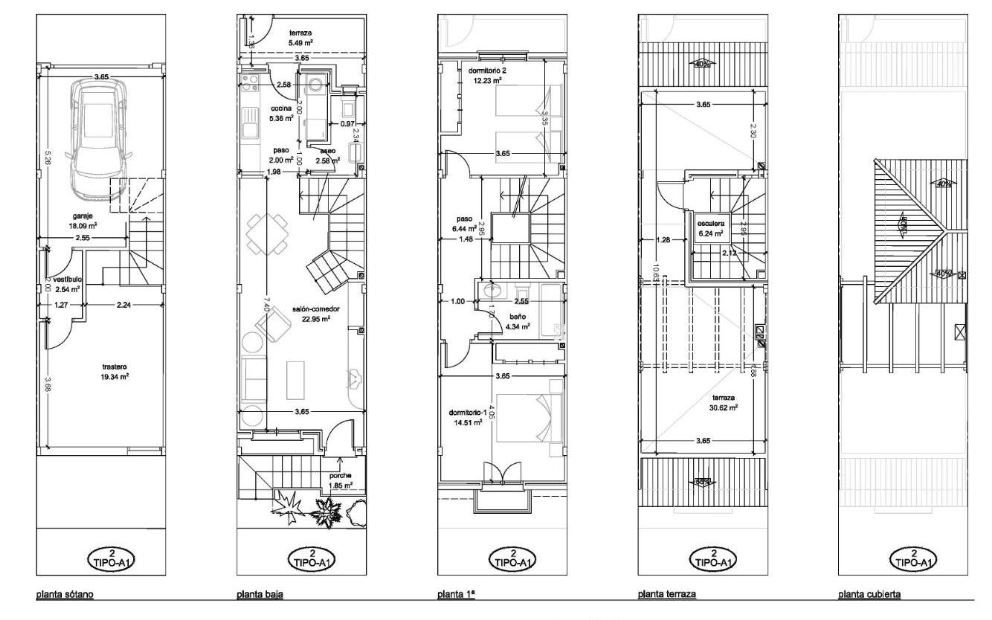
Deze geschakelde woning is verdeeld over vier verdiepingen en biedt een verrassend ruime indeling. In de onderbouw vind je een private garage van 18 m² en een aparte bergruimte van 20 m², ideaal voor wagen, opslag of hobbyruimte. Op de gelijkvloerse verdieping bevindt zich de woonkamer met een volledig afgesloten en uitgeruste keuken (oven, kookplaat, koelkast, vaatwasser, wasmachine en dampkap), aangevuld met een gastentoilet en een terras van 5 m² aansluitend aan de keuken.

Op de eerste verdieping liggen de twee slaapkamers, beide met rechtstreekse toegang naar buiten voor natuurlijke ventilatie en lichtinval. Ze delen een volledig afgewerkte badkamer met douche, wastafelmeubel, toilet en elektrische handdoekenverwarmer. De bovenste verdieping vormt het absolute pluspunt: een privé solarium van 30 m² waar je de hele dag door van zon en open zichten geniet.

Dankzij meerdere buitenruimtes, een doordachte indeling en energiezuinige technieken zoals aerothermie, dubbele beglazing en pré-installatie airconditioning, combineert deze woning comfort met functionaliteit. Een interessante opportuniteit voor wie ruimte, buitenleven en nabijheid van zee wil samenbrengen in één eigendom.

U bent nog niet aangemeld!

Na invullen van onderstaande gegevens wordt u aangemeld, indien er nog geen account bestaat kan deze aangemaakt worden!



 Geef ons uw mening...

 Momenteel nog geen reviews voor dit pand.

Uitgebreide beschrijving:

Deze woning is verdeeld over 4 verdiepingen en voorzien van 2 slaapkamers met 1 badkamer. We nemen even een wandeling doorheen de woning, zodat je volop kan wegdromen van de woning. In de onderste verdieping, is er een onderbouw gelegen. 

De onderbouw is verdeeld in een ruime garage van 18m² en een opbergruimte van 20m². Een verdieping hoger bereik je de gelijkvloerse verdieping voorzien van een ruime woonkamer en een uitgeruste keuken. De keuken is voorzien van een dampkap, een koelkast, oven, kookplaat, wasmachine en vaatwasser. De keuken is volledig afgesloten. Verder is er ook een gastentoilet gelegen met wastafel. 

Aan de keuken is er een terras gelegen van 5m². Nog een verdieping hoger is het slaapgedeelte. Daar zijn de 2 slaapkamers gelegen die een badkamer delen. De slaapkamers hebben allebei een rechtstreekse verbinding naarbuiten, waardoor de natuurlijke luchttoevoer verzekerd wordt. 

Elke slaapkamer is afgewerkt met inbouwkasten, met hangrekken, legplanken en lades. De badkamer is afgewerkt met een wastafel, bijpassend meubel, toilet, douche en elektrische handdoekenverwarmer. 

Nog een verdieping hoger, bereik je het solarium. Het solarium kent een oppervlakte van 30m². Hier kan je de hele dag door genieten van de zon. 

DUS CONCREET: 

  • 2 slaapkamers
  • 1 badkamer
  • Afgewerkte badkamer
  • Inbouwkasten 
  • Terrassen op meerdere verdiepingen 
  • Solarium 

De woning is voorzien van meerdere buitenruimtes. Zo zijn er meerdere terrassen en met kers op de taart het solarium van 30m². 

Verder is de geschakelde woning gelegen in residentie Playa Bavaro. Playa Bavaro is voorzien van volgende gemeenschappelijke voorzieningen; zwembad van 10 meter op 5 meter, chillzone in het zwembad, LED-verlichting, buitendouche. De gemeenschappelijke tuinen zijn afgewerkt met een irrigatiesysteem en verschillende planten, bloemen, bomen, ... 

TECHNISCHE KENMERKEN: 

  • Keramische tegels op het solarium
  • Thermische en akoestische isolatie
  • Beveiligde voordeur
  • Dubbele beglazing 
  • Aluminium rolluiken 
  • Mechanische ventilatie
  • Video intercom bij de ingang 
  • Sanitair warm water via aerothermisch systeem
  • Pré-installatie airconditioning 

Deze woning is gelegen in Portman. Portmán, gelegen aan de Costa Cálida in de regio Murcia, is een kleine en authentieke kustplaats met een rijke geschiedenis en een indrukwekkende natuurlijke omgeving. De stad ligt ingeklemd tussen de heuvels van de Sierra Minera en de Middellandse Zee, wat zorgt voor een uniek landschap met ruwe bergen en open zeezichten. Portmán ademt rust en traditie, ver weg van massatoerisme, en heeft een uitgesproken karakter dat gevormd werd door zeevaart en mijnbouw.

Het dorp zelf is compact en gemoedelijk, met een kleine haven, lokale cafés en restaurants waar verse vis centraal staat. Hier leeft men op het ritme van de zee en de seizoenen. De nabijheid van natuurgebieden en wandelroutes maakt Portmán aantrekkelijk voor wie houdt van buitenleven en stilte. Tegelijkertijd liggen grotere plaatsen zoals La Unión en Cartagena op korte afstand, wat zorgt voor extra voorzieningen en culturele mogelijkheden.

De kust rondom Portmán is bijzonder afwisselend. Naast kleine stranden vind je hier kliffen en baaien met helder water, ideaal voor wie houdt van snorkelen en wandelen langs de kust. De ligging aan de Costa Cálida zorgt voor een zacht klimaat met veel zonuren per jaar, waardoor het buitenleven hier een vanzelfsprekend onderdeel van de dag is.

Wat veel mensen niet weten, is dat Portmán ooit een van de belangrijkste mijnbouwgebieden van Spanje was. De sporen van dit industriële verleden zijn nog zichtbaar in het landschap en geven de omgeving een uniek historisch karakter. Er zijn plannen en projecten geweest om de baai te herstellen en haar natuurlijke vorm terug te geven, wat de toekomst van Portmán extra interessant maakt.

Daarnaast heeft Portmán een uitgesproken rustige sfeer buiten het zomerseizoen. Waar grotere kustplaatsen druk worden, blijft hier het dagelijkse leven eenvoudig en authentiek. Vooral bij zonsondergang, wanneer de zon achter de bergen zakt en het licht warm over de baai valt, toont Portmán zijn meest serene kant.

AFSTANDEN: 

  • Strand Portmán: ±1.600 m

  • Haven Portmán: ±300 m

  • Restaurants & cafés: ±200 m

  • Supermarkt: ±500 m

  • La Unión: ±8 km

  • Cartagena: ±20 km

  • Golfbanen (La Manga Club): ±10 km

  • Natuurgebied Calblanque: ±12 km

  • Ziekenhuis Cartagena: ±22 km

  • Luchthaven Murcia (Corvera): ±45 km

  • Luchthaven Alicante: ±120 km

Onze visie binnen Casas Kimpencio;

  • Bij Casas Kimpencio ben je niet zomaar iemand, wij willen een persoonlijke relatie aangaan.
  • We behandelen jullie zoals we zelf behandeld willen worden, met de nodige betrokkenheid, precisie en details.
  • Geen enkele vraag is ons te veel, we staan elke dag telefonisch voor jou klaar.
  • Wij hebben de gedachte dat een huis kopen niet zomaar een huis kopen is, maar een nieuwe thuis kopen.
  • Iedereen dient een eigen verhaal te krijgen, met verschillende hoofdstukken. 
  • Wij willen helpen aan het Spaanse hoofdstuk, een hoofdstuk van een nieuwe thuis, vakantiewoning of een investering.
  • En dit doen we met open, duidelijke communicatie  en daarmee geraken we er altijd, zo vinden we jouw ideale woning gebaseerd op meerdere gesprekken.
  • We helpen vanaf het begin tot aan de sleuteloverdracht, en ver daarbuiten. 

Wij vinden deze woning bijzonder omdat

  • Woning verdeeld over 4 volwaardige verdiepingen, waardoor wonen, slapen, opbergen en ontspannen elk hun eigen plek krijgen

  • Privé onderbouw met garage van 18 m² en extra bergruimte van 20 m², zelden gezien in deze prijsklasse en ideaal voor wagen, hobby of stockage

  • Afgesloten en volledig uitgeruste keuken, praktisch ingericht met oven, kookplaat, koelkast, vaatwasser en wasmachine

  • Terras aansluitend aan de keuken, perfect voor een ontbijt in de ochtendzon of extra verluchting tijdens het koken

  • 2 slaapkamers met rechtstreekse toegang naar buiten, wat zorgt voor natuurlijke ventilatie en een aangenaam lichtgevoel

  • Afgewerkte badkamer met elektrische handdoekenverwarmer, een comfortabel detail dat het verschil maakt

  • Solarium van 30 m² als absolute troef, een privézone waar je de hele dag geniet van zon en open zichten

  • Meerdere buitenruimtes verspreid over de woning, waardoor binnen en buiten moeiteloos in elkaar overlopen

  • Residentie Playa Bavaro met gemeenschappelijk zwembad (10 x 5 m), chillzone en verzorgde tuinen, een echte meerwaarde voor ontspanning

  • Gelegen in Portmán op 1600 meter van het strand en ±300 meter van de haven, waar rust, natuur en zee samenkomen

WONINGEN IN RESIDENTIE PLAYA BAVARO: 

Type woning  Aantal slaapkamers / badkamers Bebouwde oppervlakte  Buitenruimte in m² Prijs 
Geschakelde woning  2/1 143m² 37m² €198.000
Geschakelde woning  3/1 173m² 47m² €215.000

TRENDS EN GROEI IN PORTMAN: 

Jaar  Prijs per m² Jaarlijkse stijging 
2023 €1.285 -
2024 €1.396 +8.6%
2025 €1.548 +10.9%


Kenmerken:

Aantal slaapkamers 2
Aantal badkamers 1
Bebouwde oppervlakte 143 m²
Bewoonbare oppervlakte 76 m²
Afstand naar het strand 1.6 km
Terras oppervlakte 7 m²
Gedeeld zwembad Ja
Poort Ja
Nabij Scholen Ja
Terras Ja
Fietsafstand van het strand Ja
Douche schermen Ja
Solarium Ja
Solarium oppervlakte in m2 20-30 m²
Pré installatie airco Ja
Elektrische rolluiken Ja
Led verlichting buiten Ja
Led verlichting binnen Ja
privé parkeerplaats Ja
Ondergrondse parking Ja
Telefoon Data aansluiting Ja
Videofonie Ja
Inbouwkasten Ja
Badkamer spiegels Ja
Alle keuken apparatuur volledig inbegrepen Ja
Kookplaat Dampkap Magnetron & Oven Ja
Nabij kinder speeltuin Ja
Berging Ja
Kelder Ja
Gedeelde tuin Ja
Uitzicht tuin Ja
Golfresort afstand in km 2-5 km
Ziekenhuis afstand in km 10-20 km
Nabij Commercieel centrum Ja
Luchthaven Alicante afstand 50+ km
Luchthaven Murcia afstand 40-50 km
Uitzicht bergen Ja
Gedeelde kosten Ja
Ontspanning ruimte buiten Ja
Hangend toilet Ja
Hangend badkamer meubel Ja
Volledig ingerichte keuken Ja
Dampkap Ja
Gepantserde toegangsdeur met veiligheidsslot Ja
Hoogwaardige afwerking Ja
Goede prijs-kwaliteit verhouding Ja
Elektrische handdoekverwarmer Ja
Aerothermische boiler Ja
Aangelegde tuin met grind, gras en planten. Ja
Wandelafstand van het strand Ja
Extra verdieping ondergronds (basement) Ja
Energielabel B
Afgewerkte badkamer Ja
Gesloten urbanisatie Ja

Meer info?


Beschikbare documenten

grondplan 2-1.jpeg

document-grondplan 2-1.jpeg

download

Ontdek wat we nog meer voor jou in petto hebben!

Geschakelde woning met onderbouw in Portman
Geschakelde woning met onderbouw in Portman

Project: Residentie Playa Bavaro in provincie Murcia

Stad: Portman

3   1   173 m²   15 m²  

Bovenste bungalow met tuin in Alma de Salinas
Bovenste bungalow met tuin in Alma de Salinas

Project: Residentie Alma de Salinas - Fase 2

Stad: San Pedro del Pinatar - Mar-Menor

2   2   70 m²   6 m²  

Penthouse met terras én verhuurlicentie
Penthouse met terras én verhuurlicentie

Project: Residentie Playamar - toeristische appartementen

Stad: San Pedro del Pinatar - Mar-Menor

1   1   61 m²   8 m²  

Gelijkvloers appartement Spanje met tuin
Gelijkvloers appartement Spanje met tuin

Project: Residentie Natura in Torre-Pacheco

Stad: Torre-Pacheco - Murcia

3   2     85 m²   21 m²  

Villa model Deluxe in San Javier
Villa model Deluxe in San Javier

Project: Residentie Senda de los Flamencos

Stad: San Javier-Murcia-Mar-Menor

3   3     124 m²   91 m²  

Villa met solarium in het El Alba Roldan Resort
Villa met solarium in het El Alba Roldan Resort

Project: Geschakelde villa residencial cube in Roldan

Stad: Torre-Pacheco - Murcia

2   2     77 m²   70 m²  

Gelijkvloerse villa met zwembad in Altaona Golf
Gelijkvloerse villa met zwembad in Altaona Golf

Project: Residentie Oasis Altaona in Altaona Golf

Stad: Banos y Mendigo-Murcia

4   3     231 m²   57 m²  

Bovenste bungalow met solarium in San Javier
Bovenste bungalow met solarium in San Javier

Project: Residentie Villas Don Pedro 4 in San Javier

Stad: San Javier-Murcia-Mar-Menor

2   2   74 m²   17 m²  

Altos de San Pedro III: Moderne nieuwbouw villa's
Altos de San Pedro III: Moderne nieuwbouw villa's

Project: Altos de San Pedro III: Moderne nieuwbouw villa's

Stad: San Pedro del Pinatar - Mar-Menor

3   3     112 m²   25 m²  

Villa met zwembad in Torre Pacheco
Villa met zwembad in Torre Pacheco

Project: Melora El Jimenado gelijkvloers nabij golf & zee

Stad: Torre-Pacheco - Murcia

3   2     88 m²   92 m²  

Villa op ruim perceel met solarium én zeezicht
Villa op ruim perceel met solarium én zeezicht

Project: Residentie Taurus in Mazzaron

Stad: Puerto de Mazarrón

3   3   101 m²   39 m²  

Villa met zwembad op 800 meter van de zee
Villa met zwembad op 800 meter van de zee

Project: Residentie Villa Lo Lorenzo in Los Alcazares

Stad: Los Alcazares - Murcia - Mar Menor

3   3     150 m²   53 m²  

Lees mee met onze nieuwste blogs!

Advocaat in Spanje
Advocaat in Spanje

Ontdek waarom een Nederlandstalige advocaat in Spanje niet zomaar handig is, maar essentieel voor jouw gemoedsrust en zekerheid onder de zon.


...

Martine

Elektriciteitsprijzen in Spanje dalen weer!
Elektriciteitsprijzen in Spanje dalen weer!

Goed nieuws voor iedereen die van plan is om in Spanje te wonen of hier een (vakantie)woning heeft: de elektriciteitsprijzen zijn wéér gedaald! 

Op woensdag 14 mei 2025 betaal je gemiddeld €30,55 per megawattuur (MWh) om je apparaten aan te zetten - een flinke daling vergeleken met...

Max

Spanje vastgoed 2025: huren duurder, kopen loont
Spanje vastgoed 2025: huren duurder, kopen loont

De Spaanse huurmarkt staat zwaar onder druk.

In 2025 stegen de huurprijzen met 8,5% tot gemiddeld €14,7/m² per maand, vooral door een structureel tekort aan aanbod.

Steeds meer gezinnen en investeerders schakelen daarom over van huren naar kopen.

Tegelijk stijgen ook nieuw...

Martine

square-box