Moderne appartementen Torrevieja op toplocatie

Moderne nieuwbouwappartementen in het hart van Torrevieja

Beschrijving:

Ontdek moderne nieuwbouwappartementen in het hart van Torrevieja, op slechts 150 m van de zee en 500 m van Playa del Cura.

Dit nieuwe project biedt 1- en 2-slpk appartementen en luxe penthouses met privézwembad. Met uitgeruste keukens, vloerverwarming, terrassen en topafwerking geniet u van maximaal comfort.

Het complex beschikt over een zwembad, sauna en solarium. Gelegen nabij winkels, restaurants en het natuurpark La Mata. Perfect voor wonen, investeren of vakantie.

Moderne nieuwbouwappartementen in hartje Torrevieja

Wonen op 150 meter van de zee, met alles wat je nodig hebt op wandelafstand dat is precies wat dit nieuwe project in het centrum van Torrevieja biedt.

Je zit hier letterlijk tussen de boulevard, de natuurlijke zwembaden, Playa del Cura, gezellige cafés, restaurants, winkels en parken. Een plek waar stadscomfort en kustrust perfect samenkomen.

Stijlvolle appartementen met veel licht!

De appartementen beschikken over 1 of 2 slaapkamers, ruime terrassen en open leefruimtes die het natuurlijke licht binnenbrengen. De keukens zijn volledig uitgerust, de badkamers zijn afgewerkt met meubilair, doucheschermen en vloerverwarming.

Twee penthouses bieden zelfs een privéterras, barbecue én privézwembad.

Ontspannen wanneer jij dat wilt

Geniet van een gemeenschappelijk zwembad en sauna op de begane grond, en een zonnig dakterras om te relaxen in echte Mediterrane sfeer.

Een unieke omgeving om in te leven Torrevieja staat bekend om zijn zachte klimaat, prachtige kust en de beroemde roze en groene zoutmeren op 4 km afstand. Met wandelpaden, natuur, gezonde zeelucht en het hele jaar door zon is dit een plek waar je écht goed leeft. Dicht bij alles

  • Jachthaven Torrevieja – 1 km
  • Natuurpark La Mata – 4 km
  • Villamartin Golf – 8 km
  • Luchthaven Alicante – 45 km
  • Murcia Airport – 60 km

Leef de Mediterrane levensstijl

Dit project biedt moderne kwaliteit, een toplocatie en het heerlijke gevoel van wonen aan zee. Neem gerust contact op om een bezichtiging te plannen wij begeleiden je graag naar jouw nieuwe plek onder de Spaanse zon.




Welkom in het hart van Torrevieja waar wonen voelt als vakantie

Stel je voor: je stapt buiten en binnen 150 meter ruik je de zeelucht, hoor je de golven zachtjes ruisen, en zie je het zeewater glinsteren. Dit nieuwe woongebouw ligt werkelijk in het kloppende centrum van Torrevieja: op slechts enkele stappen van de boulevard, de winkels, restaurants en supermarkt, en op 500 meter van het zachte zand van Playa del Cura. Alles wat je nodig hebt, ligt binnen handbereik zonder ooit afstand te hoeven nemen van het comfort van de stad.

Moderne appartementen jouw eigen stukje mediterrane droom

Wij bieden stijlvolle appartementen met 1 of 2 slaapkamers, met 1 of 2 badkamers perfect zowel als vakantiewoning, tweede verblijf, als permanente thuis.

Sommige units zijn echte pareltjes: 2 penthouses met solarium, privézwembad en barbecue ideaal om zonnige dagen en warme mediterrane avonden ten volle te beleven.

Elk appartement is ontworpen met oog voor modern comfort en elegantie:

  • Open plattegrond, ruime terrassen, en lichte, open leefruimtes.
  • Geïntegreerde “Amerikaanse” keuken, volledig uitgerust met toestellen.
  • Badkamers afgewerkt met meubels, doucheschermen en vloerverwarming.
  • Verlichting inbegrepen
  • Pre-installatie voor airconditioning zodat je ’s zomers koel zit, ’s winters behaaglijk.

Gemeenschappelijke voorzieningen luxe en samen leven

Het gebouw biedt gemeenschappelijke ruimtes die je leven aangenaam en zorgeloos maken:

  • Een zwembad op de begane grond om af te koelen of te ontspannen.
  • Sauna voor wellness en rust.
  • Een dakterras/solarium om te zonnen, boeken te lezen of te genieten van het uitzicht.

Een woongebouw dat comfort, ontspanning én community combineert.

Waarom Torrevieja jouw ideale levensplek is ?

Natuur & rust binnen handbereik

Op slechts enkele kilometers ligt het prachtige Parque Natural de las Lagunas de La Mata y Torrevieja een beschermd gebied met zoutmeren die beroemd zijn om hun roze en groene kleuren. Die meren vormen een unieke habitat voor wilde flora en fauna, en je vindt er wandel- en fietsroutes, vogelobservatiepunten en panoramische uitzichtenen echt indrukwekkend zijn de meren er trekken flamingo’s en talloze andere vogelsoorten aan voor liefhebbers van natuur en rust is dit als wonen in een open lucht reservaat vlak bij de zee. 

Ideaal klimaat en gezond leven

Dankzij de speciale ligging tussen zoutmeren en de Middellandse Zee geniet de regio van een mild en stabiel microklimaat: milde winters, zachte zomers, en gemiddeld zo’n 18–20 °C per jaar met vele dagen zon.

De zoute lucht, de mediterrane bries en het milde weer worden geprezen voor hun positieve invloed op gezondheid: ademhaling, huid en algemeen welzijn. Ideaal dus voor wie wil bewegen, ontspannen én genieten van een gezonde levensstijl.

Strand, zee en kustleven  én stadscomfort

Torrevieja heeft een lange kustlijn met meerdere stranden schoon, goed toegankelijk, en uitnodigend voor elke dag van het jaar. Daarnaast is het stadsleven levendig en gevarieerd: winkels, markten, tapasbars, gezellige restaurants, culturele evenementen en een internationale gemeenschap van expats, wat zorgt voor een kosmopolitisch en gastvrij gevoel.

Comfort en voorzieningen die er toe doen

Voorzieningen zoals gezondheidszorg, supermarkten, restaurants, recreatie en connectiviteit zijn zeer goed in Torrevieja wat het wonen hier niet enkel aangenaam maakt, maar ook praktisch, veilig en toekomstgericht.

Leef jouw mediterrane droom en word onderdeel van dit uitzonderlijke woonproject Stel je jouw ochtend voor: ontbijt op het terras met uitzicht op de stad of de groene omgeving, daarna een wandeling naar het strand of naar de natuurparken, ontspannen in het zwembad of solarium, ’s avonds tapas in een tapasbar op een steenworp van je deur… Dat is het leven dat wij je aanbieden. Dit is jouw kans om een moderne woning te kopen in een van de meest gewilde kustplaatsen aan de Costa Blanca een plek waar comfort, natuur, rust én levendigheid samenkomen. Grijp deze unieke kans. Neem vandaag nog contact met ons op en wij begeleiden je stap voor stap naar jouw nieuwe droomwoning onder de Spaanse zon.

Waarom Casas Kimpencio het project Zoa10 las-piscinas-naturales aanraad

1. Romantisch & warm ideaal voor koppels, pensionado’s en levensgenieters

Wakker worden met de geur van de zee, de zon die door de gordijnen valt en de belofte van een nieuwe, rustige Mediterrane dag. Hier, in hartje Torrevieja, ligt een nieuwbouwproject dat voelt als thuiskomen vanaf de eerste minuut. Op slechts 150 meter van de azuurblauwe natuurzwembaden en 500 meter van Playa del Cura, woon je in een omgeving waar je élke dag dat typische vakantiegevoel ervaart. Slenter naar de boulevard, neem een koffie met uitzicht op de zee, geniet van de zachte wintertemperaturen van 18–20°C en voel hoe je levenskwaliteit omhoogschiet. Dit project biedt moderne appartementen met 1 of 2 slaapkamers, allemaal afgewerkt met hoogwaardige materialen, vloerverwarming in de badkamers, uitgeruste keukens en terrassen waar je ’s ochtends kan ontbijten of ’s avonds kan genieten van een glas wijn. Op het dak wacht een zonnig solarium, op de begane grond een zwembad en sauna ideaal om te ontspannen en tot rust te komen. En dat alles op wandelafstand van winkels, restaurants, parken en het prachtige natuurpark van de roze zoutmeren. Dit is wonen zoals je altijd al droomde: warm, rustig, zorgeloos. Welkom thuis aan de Costa Blanca.

2. Modern en stedelijk voor de actieve, eigentijdse koper

Hou je van een levendige stad én van de zee?

Dan is dit nieuwbouwproject precies wat jij zoekt. In het dynamische centrum van Torrevieja vind je deze moderne appartementen, ontworpen voor comfort, efficiëntie en een vlotte levensstijl. Stap buiten en je staat meteen tussen de boetieks, supermarkten, tapasbars en lokale marktjes. Binnen 3 minuten sta je aan de zee en binnen 5 minuten op Playa del Cura. De appartementen zelf zijn strak, licht en slim ingedeeld. Denk aan open keukens met toestellen, moderne badkamers met vloerverwarming, terrassen voor extra leefruimte en penthouses met solarium en privé zwembad. De gemeenschappelijke ruimtes sauna, rooftop-solarium en zwembad maken dit gebouw uniek in zijn categorie. Alles is ontworpen voor een lifestyle die vlot, zorgeloos en tegelijk luxueus aanvoelt. Met het natuurpark La Mata op maar 4 km, de jachthaven op 1 km en golfresorts op 8 km, is dit de perfecte thuisbasis voor mensen die houden van bewegen, ontdekken en genieten. Dit project is de perfecte mix van urban living en seaside luxury.

3. Investeringsgericht  ideaal voor klanten die rendement zoeken

Een locatie die zichzelf verkoopt. Een nieuwbouwproject met hoge afwerkingsgraad. En een stad die 12 maanden per jaar toeristen aantrekt. Dit gebouw in hartje Torrevieja is een uitzonderlijke kans voor investeerders die kiezen voor zekerheid, rendement en waardestijging. Waarom dit project zo sterk scoort als investering?

  • Toplocatie: 150 m van de zee, 500 m van Playa del Cura, midden in het centrum.
  • Hoge verhuurpotentie: Torrevieja heeft een uitzonderlijk hoge vraag naar vakantieverhuur én overwintering.
  • Nieuwbouw = lage kosten: energiezuinig, onderhoudsarm, modern en aantrekkelijk voor huurders.
  • Gemeenschappelijke luxe: zwembad, sauna, solarium, penthouses met privézwembad absolute toppers voor verhuur.
  • Internationale hotspot: een van de meest gezochte steden van de Costa Blanca door Belgen, Nederlanders, Scandinaviërs, Fransen en Britten.
  • Klimaatvoordeel: bewezen gezondheidsvoordelen door het microklimaat tussen de zoutmeren.
  • De appartementen (1 of 2 slaapkamers) zijn direct instapklaar, volledig uitgerust, en ideaal om zowel korte als lange termijn verhuur te combineren.
  • Voor investeerders die zoeken naar veiligheid, liquiditeit en hoge bezettingsgraad is dit project een absolute topkans.

Verzeker uzelf van een moderne woning in een van de meest gewilde kuststeden aan de Costa Blanca. Neem vandaag nog contact met ons op om een bezichtiging in te plannen en uw plek in dit uitstekende nieuwe project te reserveren.

eze residentie is gelegen in Torrevieja, Playa de El Cura. Torrevieja, gelegen aan de zuidelijke Costa Blanca, is een bruisende kuststad waar de mediterrane sfeer en het ontspannen leven samensmelten. In het bijzonder heeft Playa del Cura, een van de bekendste en meest geliefde stranden van de stad, een unieke aantrekkingskracht. De wijk rondom dit strand ademt een levendige, authentieke sfeer, met een prachtige boulevard die direct langs de zee loopt. Hier hoor je het zachte ruisen van de golven, ruik je de geur van zout en zie je elke avond opnieuw hoe de zon rood en goud wegzakt achter de horizon – een dagelijks ritueel dat nooit verveelt.

Rond Playa del Cura vind je een perfecte mix van stadsleven en kustgevoel. De boulevard is gevuld met terrassen, cafés, ijssalons en restaurants waar je kunt genieten van verse vis, tapas en typische gerechten uit de regio. Het strand zelf heeft fijn zand en helder water, en dankzij de beschermde ligging is het een populaire plek voor zowel zwemmen als ontspannen. De levendigheid van de omgeving geeft het een bijzondere dynamiek: overdag een plek vol strandplezier en ’s avonds een warme, mediterrane ontmoetingsplek met muziek, lampjes en families die flaneren langs de promenade.

Hoewel Playa del Cura een van de centrale punten van Torrevieja is, ligt de natuur nooit ver weg. Op een korte wandeling bevinden zich de beroemde zoutmeren van Torrevieja en La Mata, waar de roze gloed van het water en de aanwezigheid van flamingo’s een uniek landschap vormen. Dit natuurgebied creëert ook het gezonde microklimaat waar de stad zo bekend om staat. Tegelijkertijd ben je dichtbij alle voorzieningen die het leven comfortabel maken: supermarkten, winkels, markten, sportlocaties en de sfeervolle haven liggen allemaal binnen handbereik.

Wat veel mensen niet weten, is dat Playa del Cura ooit een kleine visserszone was waar boten in de avond aan wal trokken. Restanten van dat verleden zie je nog steeds in de vorm van oude foto’s, monumenten en verhalen van de lokale bevolking. Vooral in de vroege ochtend, wanneer de boulevard nog stil is en de eerste lichtstralen het water raken, voel je die historische ziel van de plek – eenvoudig, puur en onmiskenbaar mediterraan.

Daarnaast heeft de omgeving van Playa del Cura een bijzondere charme tijdens lokale feestdagen. De avondmarkten, muziekoptredens en langs de kust wandelende processies brengen een warme en levendige energie die typisch is voor Torrevieja. Het is een plek waar strand, cultuur en het ontspannen ritme van de kust samenkomen, en waar de zee niet alleen een uitzicht vormt, maar een belangrijk onderdeel van het dagelijkse leven.

AFSTANDEN: 

  • Strand: 250m
  • Jachthaven en haven van Torrevieja: 2km 
  • Winkelcentrum Habaneras: 3km 
  • Golfbanen: 7km - 10km 
  • Luchthaven van Alicante: 45km 

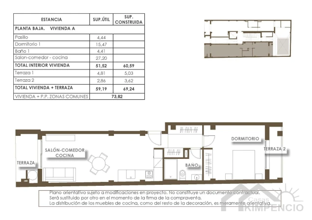
WONINGEN IN RESIDENTIE ANTONELLA: 

Type woning  Aantal slaapkamers / badkamers Terras in m² Bebouwde oppervlakte  Prijs
Gelijkvloers appartement  1/1 5m² 50m² €214.000
Gelijkvloers appartement  2/2 32m² 73m² €268.000
Appartement op tussenverdieping  1/1 4m² 34m² €198.000
Appartement op tussenverdieping 2/2 19m² 63m² €287.000
Penthouse 2/2 76m² 62m² €538.000

GROEI EN TRENDS IN TORREVIEJA: 

Jaar  Prijs per m² Jaarlijkse stijging 
2023 €1.807 -
2024 €2.067 +14.4%
2025 €2.262 +9.4%

Ontdek meer van onze panden in deze regio!

Investeren in villa Almoradi 4 slpk met extra’s
Investeren in villa Almoradi 4 slpk met extra’s

Project: Essence II-Las Heredades nabij Rojales-Alicante

Stad: Las Heredades

4   3     140 m²    

Villa kopen in Mutxamel Bonalba Green
Villa kopen in Mutxamel Bonalba Green

Project: Bonalba Green in Mutxamel met zeezicht

Stad: Mutxamel- Alicante

4   3     273 m²   56 m²  

ALHAMA NATURE RESORT penthouse kopen Murcia
ALHAMA NATURE RESORT penthouse kopen Murcia

Project: Condado De Alhama Bungalows Front Line golf

Stad: Alhama de Murcia

2   2   89 m²    

Investeren in villa Hacienda del Alamo golf resort
Investeren in villa Hacienda del Alamo golf resort

Project: Vrijstaande villas in Hacienda del Álamo Golf

Stad: Hacienda del Álamo Golf Resort-Roldan

3   2     114 m²    

Hoek villa kopen in SIERRA VERDE Finestrat?
Hoek villa kopen in SIERRA VERDE Finestrat?

Project: Investeren in SIERRA VERDE villa nabij Benidorm

Stad: Finestrat-Benidorm

3   3     143 m²   24 m²  

Studio met verhuurlicentie in Finestrat
Studio met verhuurlicentie in Finestrat

Project: Appartement met verhuurlicentie Costa Blanca

Stad: Finestrat-Benidorm

0   1     36 m²   1 m²  

Appartement met ruim terras in Corallia Resort
Appartement met ruim terras in Corallia Resort

Project: Residentie Corallia in Punta Prima - F1

Stad: Punta Prima

3   2   109 m²   17 m²  

Penthouse met solarium - Velapi Golf blok 3
Penthouse met solarium - Velapi Golf blok 3

Project: Velapi Golf appartementen - blok 3

Stad: Los Alcazares

2   2   88 m²   18 m²  

Villa in residentie Mar Alboran - coming soon
Villa in residentie Mar Alboran - coming soon

Project: Villa Mar Alborán Lo Romero Golf - F2

Stad: San Pedro del Pinatar - Mar-Menor

3   2     130 m²   196 m²  

DUNAS DE VERA appartement kopen Vera Playa
DUNAS DE VERA appartement kopen Vera Playa

Project: Toeristisch appartement met privéstrand Vera

Stad: Vera- regio Costa Almeria Andalusië

2   1     55 m²   29 m²  

Toeristisch appartement met terras en zwembad
Toeristisch appartement met terras en zwembad

Project: Toeristische appartementen Karibe Heritage Resort

Stad: Lo Pagán aan de Mar Menor

2   2   82 m²   13 m²  

Gelijkvloers appartement met tuin resort El Raso
Gelijkvloers appartement met tuin resort El Raso

Project: Gemeubelde Appartementen El Raso Guardamar

Stad: Guardamar del segura- Alicante

2   2     65 m²   16 m²  

Meer lezen over ons?

Casas Kimpencio specialist vastgoed Spanje!
Casas Kimpencio specialist vastgoed Spanje!

Casas Kimpencio Vastgoed Spanje groeit uit tot dé referentie voor wie een huis wil kopen in Spanje

Huis kopen in Spanje met Casas Kimpencio Nederlandstalige makelaar


...

Martine

Administratief medewerker vastgoed Spanje gezocht
Administratief medewerker vastgoed Spanje gezocht

Droom jij van werken onder de Spaanse zon én deel uitmaken van een ambitieus vastgoedteam aan de Costa Blanca?

Bij Casas Kimpencio zoeken we een administratieve topper die structuur brengt, klanten professioneel opvolgt en mee wil bouwen aan een groeiend succesverhaal.

Jij wordt de...

Martine

Horizon Resort II gelanceerd23/04/2026
Horizon Resort II gelanceerd23/04/2026

Nieuwe fase gelanceerd van Horizon Resort II in San Miguel de Salinas, een modern bungalowproject waar rust, ruimte en buitenleven centraal staan. Kies tussen een woning met tuin of solarium en geniet van een zorgeloze levensstijl dicht bij zee, golf en natuur.

...

Martine

square-box
Tine
Vragen over panden, projecten en onze content
Snel starten:

Hallo, ik ben Tine je kan bij mij terecht met al je vragen over panden, projecten en onze content. Ik antwoord alleen op basis van de beschikbare website-inhoud.