Home Lopende projecten Alle Panden Over ons Ons team Ons kantoor Onze werkwijze Contacteer ons Blog Cookies

laatste kans

Santa Rosalia Lake And Life Resort luxe investering!

 Project: Levansur Home V Santa Rosalía Lake & Life Resort

Privéresort luxe voorzieningen en een exclusieve levensstijl

Korte beschrijving:

Uitzonderlijke Laatste kans: Luxe gelijkvloers appartement in Santa Rosalia

Grijp deze unieke kans om te investeren in een exclusief resort met uitstekende verhuurmogelijkheden!

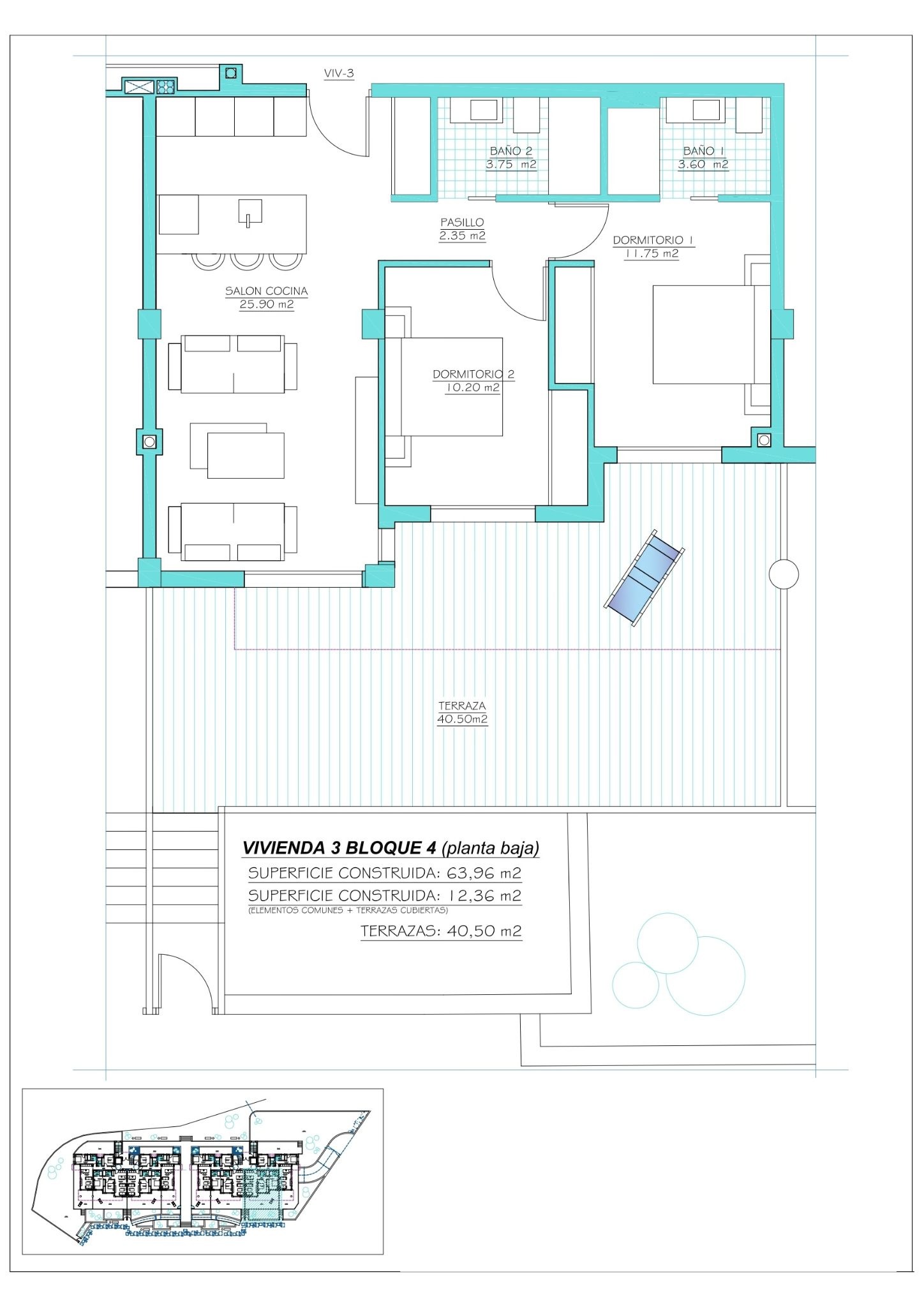
Dit prachtige gelijkvloerse appartement beschikt over 2 ruime slaapkamers, 2 stijlvolle badkamers, en een privétuin van 40m² met een privézwembad van 30 m², meubilair en airconditioning bij de prijs inbegrepen heeft.Met een bebouwde oppervlakte van 64m² biedt deze woning alles wat je nodig hebt voor luxe en comfort. Geniet van het buitenleven op je royale terras, omgeven door de resortfaciliteiten zoals een zwembad en prachtig aangelegde tuinen.

Santa Rosalia is de ideale plek om te wonen of te investeren, en met de hoge verhuurmogelijkheden is dit appartement een slimme keuze voor wie rendement zal combineren met een duurzame levensstijl.

Deze oppurtuniteit kans zal snel uitverkocht zijn—profiteer nu en maak van dit luxe appartement jouw nieuwe thuis of investering!


U bent nog niet aangemeld!

Na invullen van onderstaande gegevens wordt u aangemeld, indien er nog geen account bestaat kan deze aangemaakt worden!



 Geef ons uw mening...

 Momenteel nog geen reviews voor dit pand.

Uitgebreide beschrijving:

Nieuwbouw Residentieel in Privé-Resort in de Provincie Murcia

Ontdek luxe nieuwbouwappartementen in een privé-gated resort in Murcia. Met een eigentijds ontwerp en hoogwaardige voorzieningen bieden deze 60 woningen een modern en comfortabel leven. Geniet van gemeenschappelijke zwembaden, een verwarmd zwembad en ruime terrassen met een zomerkeuken op de penthouses. Gelegen in een groen paradijs met 24-uurs beveiliging, biedt het resort een exclusieve levensstijl dicht bij het strand en de stad.

Ervaar het moderne wonen in stijl met dit nieuwbouw wooncomplex bestaande uit 60 appartementen verdeeld over 4 blokken. Met terrassen op de begane grond, eerste en tweede verdieping, gemeenschappelijk zwembad, verwarmd zwembad en solarium op de penthouses, biedt dit residentiële project een perfecte balans tussen luxe en comfort, ontworpen om elk uur van de zon te benutten.

Inclusieve Voorzieningen:

-Volledig ingerichte keukens met hoogwaardige apparatuur.

-LED-verlichting voor een moderne sfeer binnen en buiten.

-Solarium met zomerkeuken met pre-installatie voor elektrische apparaten.

-Gemotoriseerde rolluiken in slaapkamers voor privacy.

-Volledig ingerichte badkamers met toilet, badmeubel, spiegel, douche met regeneffect en schermpanelen.

-Verwarmde vloeren in badkamers voor extra comfort.

-Pre-installatie voor airconditioning 

-Pre-installatie van oplaadpunt voor elektrische voertuigen.

-Gemeenschappelijk zwembad, verwarmd zwembad

-parkeerplaats en berging in de kelder.

-Groene Luxe Omgeving: omgeven door een weelderig groen gebied van 126.000 m2. Het resort biedt wandel- en fietspaden, sportfaciliteiten, paddle- en tennisbanen, een minigolfbaan, tuinen, hondenparken, recreatiegebieden, en een clubhuis.

-privé-gated resort met 24-uurs beveiliging

Het kloppende hart van het resort is een kristalhelder kunstmatig meer van bijna 17.000 m2, daarnaast door witte zandstranden en palmbomen.

-Strategische Ligging: Ideaal gelegen op minder dan 4 km van het strand en de stad Los Alcázares, biedt het resort diverse watersportmogelijkheden. Omringd door golfbanen en met de stad Cartagena op minder dan 15 minuten rijden en de luchthaven van Murcia op 22 km, brengt dit project een scala aan culturele, stijlvolle en sportieve mogelijkheden binnen handbereik.


Herontdek het goede leven in Murcia - waar luxe en natuur samenkomen in perfecte harmonie.


Kenmerken:

Aantal slaapkamers 2
Aantal badkamers 2
Privaat zwembad Ja
Oppervlakte perceel rond het huis 0 m²
Bebouwde oppervlakte 63.96 m²
Bewoonbare oppervlakte 63.96 m²
Afstand naar het strand 4 km
Terras oppervlakte 40.50 m²
Gedeeld zwembad Ja
Poort Ja
Nabij Scholen Ja
Buitenkeuken Ja
Terras Ja
Vloerverwarming badkamer Ja
Douche schermen Ja
Verwarmd zwembad Ja
Pré installatie airco Ja
Elektrische rolluiken Ja
Led verlichting buiten Ja
privé parkeerplaats Ja
Ondergrondse parking Ja
Telefoon Data aansluiting Ja
Videofonie Ja
Inbouwkasten Ja
Aero thermische warmtepomp Ja
Pre installatie elektrisch laadpunt Ja
Badkamer spiegels Ja
Alle keuken apparatuur volledig inbegrepen Ja
Barbecue Ja
Sportvelden Ja
Petanque Ja
Padel Terrein Ja
Nabij kinder speeltuin Ja
Buiten fitness Ja
Fitness ruimte Ja
Berging Ja
Gedeelde tuin Ja
Private Tuin Ja
Oriëntatie Zuid
Golfresort afstand in km 10-15 km
Ziekenhuis afstand in km 10-20 km
Nabij Commercieel centrum Ja
Luchthaven Alicante afstand 50+ km
Luchthaven Murcia afstand 20-30 km
Uitzicht tuin Ja
Uitzicht bergen Ja
Verhuur dienst ter plaatse Ja
Gedeelde kosten Ja
Lift Ja
Ontspanning ruimte buiten Ja
Ontspanning ruimte binnen Ja
Hangend toilet Ja
Hangend badkamer meubel Ja
Zonnepanelen Ja
Uitzicht op het zwembad Ja
Spa center Ja
Security glas met uv filter Ja
Security 24/24 Ja
Volledig ingerichte keuken Ja
Gepantserde toegangsdeur met veiligheidsslot Ja
Kunstgras Ja
Fietsafstand van het strand Ja
Grote ramen van vloer tot plafond Ja
Hoogwaardige afwerking Ja
Goede prijs-kwaliteit verhouding Ja
Aerothermische boiler Ja
Gelijkvloers Ja
Gelijkvloers met tuin Ja
Bungalow Ja
Luxe nieuwbouw Ja
Extra grote ramen uitkijkend op tuin en zwembad Ja
Aangelegde tuin met grind, gras en planten. Ja
e-bike oplaadstation Ja
Kijkwoning Ja
Goed gebied voor rentabiliteit van huur Ja
Automatische irrigatie in de tuin. Ja
Fietsberging Ja
Social club Ja
Energielabel A
Afgewerkte badkamer Ja
Gesloten urbanisatie Ja

Meer info?


Beschikbare documenten

BLOQUE 4-3.jpg

document-BLOQUE 4-3.jpg

download

Ontdek en droom mee met het nieuswte van de markt

Penthouse nabij zee Playa de El Cura
Penthouse nabij zee Playa de El Cura

Project: ALTEA VI appartementen nabij zee in Torrevieja

Stad: Torrevieja-Alicante

2   2     86 m²   29 m²  

Gelijkvloers appartement tuin in residentie Njoy
Gelijkvloers appartement tuin in residentie Njoy

Project: COMING SOON njoy eerste lijn villa's Villajoyosa

Stad: Villajoyosa-Benidorm

2   1   50 m²   25 m²  

Instapklare villa Spanje met zwembad koop
Instapklare villa Spanje met zwembad koop

Project: Wonen in Vistabella Plaza Golf- Luxe & natuur

Stad: Orihuela-Alicante

2   2     73 m²   150 m²  

Villas San Mariano villa kopen Torre Pacheco?
Villas San Mariano villa kopen Torre Pacheco?

Project: Villas San Mariano villa Torre Pacheco kopen?

Stad: Torre-Pacheco - Murcia

3   2     84 m²   149 m²  

Penthouse bungalow Torrevieja en uitzicht zoutmeer
Penthouse bungalow Torrevieja en uitzicht zoutmeer

Project: Los Balcones de Vivi in Los Balcones Torrevieja

Stad: Torrevieja-Alicante

2   2     63 m²   33 m²  

Bungalow kopen Torrevieja 2 slpk groot terras
Bungalow kopen Torrevieja 2 slpk groot terras

Project: Los Balcones de Vivi in Los Balcones Torrevieja

Stad: Torrevieja-Alicante

2   2     63 m²   64 m²  

Investeren in villa Almoradi 4 slpk met extra’s
Investeren in villa Almoradi 4 slpk met extra’s

Project: Essence II-Las Heredades nabij Rojales-Alicante

Stad: Las Heredades

4   3     140 m²    

Villa kopen in Mutxamel Bonalba Green
Villa kopen in Mutxamel Bonalba Green

Project: Bonalba Green in Mutxamel met zeezicht

Stad: Mutxamel- Alicante

4   3     273 m²   56 m²  

ALHAMA NATURE RESORT penthouse kopen Murcia
ALHAMA NATURE RESORT penthouse kopen Murcia

Project: Condado De Alhama Bungalows Front Line golf

Stad: Alhama de Murcia

2   2   89 m²    

Modern Appartement eerste verdiep Finestrat
Modern Appartement eerste verdiep Finestrat

Project: Moderne appartementen met terras in Finestrat

Stad: Finestrat-Benidorm

3   2     116 m²   19 m²  

Investeren in villa Hacienda del Alamo golf resort
Investeren in villa Hacienda del Alamo golf resort

Project: Vrijstaande villas in Hacienda del Álamo Golf

Stad: Hacienda del Álamo Golf Resort-Roldan

3   2     114 m²    

Hoek villa kopen in SIERRA VERDE Finestrat?
Hoek villa kopen in SIERRA VERDE Finestrat?

Project: Investeren in SIERRA VERDE villa nabij Benidorm

Stad: Finestrat-Benidorm

3   3     143 m²   24 m²  

Lees geamuseerd onze nieuwtjes mee...

Nieuwbouw vs bestaande woning Spanje kiezen
Nieuwbouw vs bestaande woning Spanje kiezen

Nieuwbouw of bestaande woning kopen in Spanje lijkt een eenvoudige keuze… tot je er écht induikt.

Want wat op het eerste zicht goedkoper lijkt, kan op lange termijn duurder uitvallen. En wat duurder lijkt, kan net de slimste investering zijn.

Bij Casas Kimpencio zien we dagelij...

Martine

Casas Kimpencio specialist vastgoed Spanje!
Casas Kimpencio specialist vastgoed Spanje!

Casas Kimpencio Vastgoed Spanje groeit uit tot dé referentie voor wie een huis wil kopen in Spanje

Huis kopen in Spanje met Casas Kimpencio Nederlandstalige makelaar


...

Martine

Vliegschow Los Alcázares beleven in Spanje
Vliegschow Los Alcázares beleven in Spanje

Het spektakel van de vliegfeesten, de unieke ligging aan de Mar Menor en de aantrekkelijke vastgoedkansen in de regio. 

De vliegfeesten in Los Alcázares zijn een uniek spektakel boven de Mar Menor, met internationale airshows, historische roots en een levendige sfeer.

Wat wei...

Martine

square-box
Tine
Vragen over panden, projecten en onze content
Snel starten:

Hallo, ik ben Tine je kan bij mij terecht met al je vragen over panden, projecten en onze content. Ik antwoord alleen op basis van de beschikbare website-inhoud.