Home Lopende projecten Alle Panden Over ons Ons team Ons kantoor Onze werkwijze Contacteer ons Blog Cookies

Appartement met terras in residentie La Sunrise

 Project: Residentie La Sunrise in Los Alcazares

Nieuwbouw wooncomplex met veel voorzieningen op toplocatie

Korte beschrijving:

APPARTEMENT – 3 SLAAPKAMERS – GROOT TERRAS & PRIVÉ PARKING – LOS ALCÁZARES

Dit appartement combineert het comfort van een woning met de voordelen van een moderne residentie. Alle leefruimtes bevinden zich op één niveau, wat zorgt voor comfortabel en praktisch wonen zonder trappen.

Binnenin beschikt het appartement over een open leefruimte met keuken, drie volwaardige slaapkamers en twee badkamers. De hoofdslaapkamer is ingericht als master suite met inloopdressing en badkamer-ensuite, terwijl de overige slaapkamers beschikken over ingebouwde kasten en een gedeelde badkamer. Grote schuiframen verbinden de woonkamer rechtstreeks met het terras, waardoor binnen en buiten naadloos in elkaar overvloeien.

De buitenruimte is zonder twijfel een van de grootste troeven: een aangelegd terras van 20m². In combinatie met het gemeenschappelijk zwembad, de rustige residentie en de ligging nabij zee en golf, is dit appartement ideaal als vaste woonst, tweede verblijf of waardevaste investering aan de Costa Cálida.

U bent nog niet aangemeld!

Na invullen van onderstaande gegevens wordt u aangemeld, indien er nog geen account bestaat kan deze aangemaakt worden!



 Geef ons uw mening...

 Momenteel nog geen reviews voor dit pand.

Uitgebreide beschrijving:

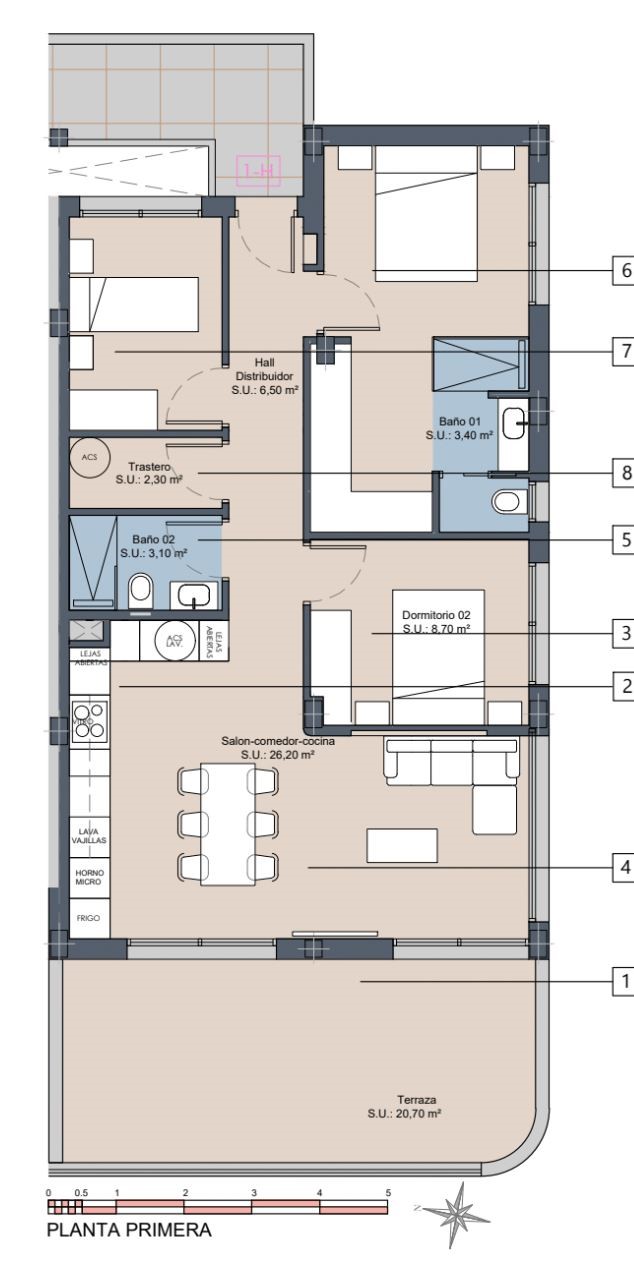
Dit appartement is gelegen op een tussenverdieping en voorzien van 3 slaapkamers met 2 badkamers. We nemen even een wandeling doorheen de woning, zodat je helemaal mee bent met de inrichting. Via de beveiligde voordeur kom je terecht in de lange inkomhal. 

Deze inkomhal loopt uit op de woonkamer met open keuken. De keuken heeft een L-vorm en is voorzien van een kookplaat en dampkap. De woonkamer kijkt via grote schuiframen uit op jouw aangelegd terras van 20m². 

Verder is er ook nog een berging voorzien in dit appartement. In deze berging is de aerothermische boiler gelegen. Dit appartement is voorzien van 3 slaapkamers met 2 badkamers. De hoofdslaapkamer heeft een inloopdressing en een badkamer-ensuite. 

De andere twee slaapkamers delen een badkamer. Elke slaapkamer heeft inbouwkasten met hangrekken, legplanken en lades. De badkamers zijn dan weer volledig uitgerust met een wastafel, bijpassend meubel, douche, toilet, spiegel, ... 

DUS CONCREET: 

  • 3 slaapkamers
  • 2 badkamers
  • Volledig uitgeruste badkamers
  • Berging 
  • Keuken met kookplaat en dampkap

Deze woning is gelegen op een tussenverdieping, waardoor deze geniet van heel wat buitenruimte. Er is een ruim terras voorzien van 20m², aansluitend aan de woonkamer. 

Elke woning is voorzien van een eigen parkeerplaats, zodat parkeren nooit een zorg zal zijn! 

Dit appartement maakt onderdeel uit van residentie La Sunrise, derde fase. Deze residentie is voorzien van een gemeenschappelijk zwembad, met een ligweide rondom. Zo kan je optimaal ontspannen. Sommige blokken hebben een lift doorheen het gebouw, zodat toegankelijkheid verzekerd is. In de gemeenschappelijke tuin, is er een luxe-pergola voorzien voor een ideaal rustplekje. 

TECHNISCHE KENMERKEN: 

  • Dubbele beglazing 
  • Pré-installatie airconditioning 
  • Aerothermisch systeem voor sanitair warm water
  • Elektrische rolluiken in de slaapkamers
  • LED-verlichting, zowel binnen als buiten

Deze woning is gelegen in Los Alcazares. Los Alcázares, gelegen aan de Mar Menor, is een charmante kustplaats waar rust, zee en een actief buitenleven samenkomen. In de omgeving nabij La Serena Golf geniet je van een open en groene setting, met brede zichten en een ontspannen sfeer. De stranden langs de Mar Menor zijn kalm, ondiep en warm, wat zorgt voor een aangenaam dagelijks ritme dat het hele jaar door behouden blijft.

De ligging nabij de golfbaan geeft deze zone een extra rustige en verzorgde uitstraling. Waterpartijen, palmbomen en open landschappen bepalen het straatbeeld, terwijl het centrum van Los Alcázares vlot bereikbaar blijft. Winkels, restaurants, markten en voorzieningen liggen op korte afstand, waardoor alles praktisch en toegankelijk blijft zonder drukte.

Los Alcázares heeft een sterk lokaal karakter behouden. De boulevard leeft op tijdens de avonduren, terwijl overdag de zee en het strand centraal staan. Dankzij de vlakke omgeving is fietsen en wandelen hier bijzonder aangenaam. Watersport, golf en natuur vullen elkaar perfect aan, wat deze regio veelzijdig en evenwichtig maakt.

Wat veel mensen niet weten, is dat deze omgeving historisch werd gewaardeerd om haar gezonde leefklimaat. De combinatie van zee, zout en zachte wind zorgt voor zuivere lucht en aangename temperaturen, zelfs tijdens warme maanden. Vroege ochtenden langs de Mar Menor zijn opvallend stil en kalm, een zeldzame kwaliteit aan de kust.

Daarnaast heeft het gebied rond La Serena Golf een open, bijna resortachtige uitstraling zonder massaal te worden. Lage bebouwing en veel groen zorgen ervoor dat het landschap zichtbaar blijft. Vooral bij zonsondergang ontstaat er een serene sfeer waarbij golfbaan, zee en lucht samenkomen in zachte kleuren.

AFSTANDEN: 

  • Strand Mar Menor: ±800 m

  • La Serena Golf: ±300 m

  • Centrum Los Alcázares: ±1,5 km

  • Restaurants & bars: ±700 m

  • Supermarkt: ±900 m

  • Roda Golf: ±5 km

  • Winkelcentrum Dos Mares: ±10 km

  • Ziekenhuis Los Arcos: ±9 km

  • Cartagena: ±25 km

  • Murcia stad: ±40 km

  • Luchthaven Murcia (Corvera): ±35 km

  • Luchthaven Alicante: ±85 km

Onze visie binnen Casas Kimpencio;

  • Bij Casas Kimpencio ben je niet zomaar iemand, wij willen een persoonlijke relatie aangaan.
  • We behandelen jullie zoals we zelf behandeld willen worden, met de nodige betrokkenheid, precisie en details.
  • Geen enkele vraag is ons te veel, we staan elke dag telefonisch voor jou klaar.
  • Wij hebben de gedachte dat een huis kopen niet zomaar een huis kopen is, maar een nieuwe thuis kopen.
  • Iedereen dient een eigen verhaal te krijgen, met verschillende hoofdstukken. 
  • Wij willen helpen aan het Spaanse hoofdstuk, een hoofdstuk van een nieuwe thuis, vakantiewoning of een investering.
  • En dit doen we met open, duidelijke communicatie  en daarmee geraken we er altijd, zo vinden we jouw ideale woning gebaseerd op meerdere gesprekken.
  • We helpen vanaf het begin tot aan de sleuteloverdracht, en ver daarbuiten. 

Wij vinden deze woning bijzonder omdat;

  • Eigen parkeerplaats op via elektrische toegangspoort maakt parkeren eenvoudig

  • Drie volwaardige slaapkamers geven flexibiliteit voor gezin, gasten of thuiswerk, zonder aan leefcomfort in te boeten

  • Hoofdslaapkamer met inloopdressing en badkamer-ensuite creëert een echte master suite met hotelgevoel

  • Open leefruimte met grote schuiframen laat binnen en buiten naadloos in elkaar overlopen en versterkt het ruimtelijk gevoel

  • Zeer royale totale buitenruimte met terras

  • Aangelegd terras van 20m² aansluitend aan de woonkamer vormt het natuurlijke verlengstuk van het dagelijkse leefleven

  • Praktische berging met aerothermische boiler houdt techniek netjes uit het zicht en verhoogt het wooncomfort

  • Elektrische rolluiken in de slaapkamers en LED-verlichting binnen en buiten versterken veiligheid, comfort en afwerkingsniveau

  • Residentie met gemeenschappelijk zwembad, ligweide en luxe pergola combineert privacy thuis met resortgevoel

  • Ligging nabij La Serena Golf en de Mar Menor biedt een unieke mix van rust, groen, zee en actieve ontspanning

WONINGEN BINNEN RESIDENTIE LA SUNRISE FASE 3:

Type woning  Aantal slaapkamers / badkamers  Bebouwde oppervlakte  Buitenruimte in m² Prijs 
Gelijkvloers appartement 3/2  81m² 121m² €339.900
Appartement met terras 2/2 67m² 13m² €279.900
Appartement met terras 3/2 81m² 20m² €319.900
Penthouse met solarium 2/2 67m² 69m² €339.900
Penthouse met solarium  3/2 85m² 91m² €399.900

GROEI EN TRENDS IN LOS ALCAZARES:

Jaar  Prijs per m² Jaarlijkse stijging 
2023 €2.246 -
2024 €2.610 +16.2%
2025 €2.977 +14.1%


Kenmerken:

Aantal slaapkamers 3
Aantal badkamers 2
Bebouwde oppervlakte 81 m²
Bewoonbare oppervlakte 75 m²
Afstand naar het strand 0.5 km
Terras oppervlakte 20 m²
Gedeeld zwembad Ja
Poort Ja
Nabij Scholen Ja
Nabij Commercieel centrum Ja
Nabij bushalte Ja
Terras Ja
Fietsafstand van het strand Ja
Douche schermen Ja
Pré installatie airco Ja
Elektrische rolluiken Ja
Led verlichting buiten Ja
Led verlichting binnen Ja
privé parkeerplaats Ja
Telefoon Data aansluiting Ja
Videofonie Ja
Inbouwkasten Ja
Aero thermische warmtepomp Ja
Elektrische poort Ja
Badkamer spiegels Ja
Pre installatie keuken Ja
Nabij kinder speeltuin Ja
Berging Ja
Gedeelde tuin Ja
Uitzicht tuin Ja
Op golfterrein Ja
Golfresort afstand in km 0-2 km
Ziekenhuis afstand in km 10-20 km
Luchthaven Alicante afstand 50+ km
Luchthaven Murcia afstand 40-50 km
Uitzicht bergen Ja
Gedeelde kosten Ja
Lift Ja
Ontspanning ruimte buiten Ja
Hangend toilet Ja
Hangend badkamer meubel Ja
Uitzicht op het zwembad Ja
Dampkap Ja
Gepantserde toegangsdeur met veiligheidsslot Ja
Hoogwaardige afwerking Ja
Aerothermische boiler Ja
Dressing Ja
Goed gebied voor rentabiliteit van huur Ja
Wandelafstand van het strand Ja
Energielabel B
Afgewerkte badkamer Ja
Gesloten urbanisatie Ja

Meer info?


Beschikbare documenten

tussen 3-2.jpeg

document-tussen 3-2.jpeg

download

Ontdek wat we nog meer voor jou in petto hebben!

Studio met verhuurlicentie in Finestrat
Studio met verhuurlicentie in Finestrat

Project: Appartement met verhuurlicentie Costa Blanca

Stad: Finestrat-Benidorm

0   1     36 m²   1 m²  

Appartement met ruim terras in Corallia Resort
Appartement met ruim terras in Corallia Resort

Project: Residentie Corallia in Punta Prima - F1

Stad: Punta Prima

3   2   109 m²   17 m²  

Penthouse met solarium - Velapi Golf blok 3
Penthouse met solarium - Velapi Golf blok 3

Project: Velapi Golf appartementen - blok 3

Stad: Los Alcazares

2   2   88 m²   18 m²  

DUNAS DE VERA appartement kopen Vera Playa
DUNAS DE VERA appartement kopen Vera Playa

Project: Toeristisch appartement met privéstrand Vera

Stad: Vera- regio Costa Almeria Andalusië

2   1     55 m²   29 m²  

Toeristisch appartement met terras en zwembad
Toeristisch appartement met terras en zwembad

Project: Toeristische appartementen Karibe Heritage Resort

Stad: Lo Pagán aan de Mar Menor

2   2   82 m²   13 m²  

Gelijkvloers appartement met tuin resort El Raso
Gelijkvloers appartement met tuin resort El Raso

Project: Gemeubelde Appartementen El Raso Guardamar

Stad: Guardamar del segura- Alicante

2   2     65 m²   16 m²  

Penthouse met groot terras La Nucía
Penthouse met groot terras La Nucía

Project: Investeren in modern project aan Costa Blanca

Stad: La Nucia

2   2     73 m²   113 m²  

Appartement kopen in Los Alcázares ?
Appartement kopen in Los Alcázares ?

Project: Luxe appartementen – La Serena Breeze 3

Stad: Los Alcazares - Murcia - Mar Menor

2   2     73 m²   15 m²  

Gelijkvloers appartement met tuin aan Serena Golf
Gelijkvloers appartement met tuin aan Serena Golf

Project: Serena View I -Appartementen in la serena golf

Stad: Los Alcazares

2   2     76 m²   60 m²  

Ruim toeristisch appartement in Vera Playa
Ruim toeristisch appartement in Vera Playa

Project: Toeristisch vastgoed Spanje investering Vera Playa

Stad: Vera- regio Costa Almeria Andalusië

3   2     93 m²   12 m²  

Opbrengst-appartement in Aguilas
Opbrengst-appartement in Aguilas

Project: Investeren in appartementen vlak bij zee Águilas

Stad: Aguilas

2   1     61 m²   6 m²  

Ruim penthouse vlak bij strand Guardamar en zee
Ruim penthouse vlak bij strand Guardamar en zee

Project: Nieuwbouw appartementen in Guardamar del Segura

Stad: Guardamar del segura- Alicante

2   2     65 m²   50 m²  

Lees mee met onze nieuwste blogs!

La Serena Golf Los Alcázares
La Serena Golf Los Alcázares

La Serena Golf Los Alcázares: Een paradijs voor golfliefhebbers en watersporters. La Serena Golf Los Alcázares, gelegen aan de prachtige Mar Menor in de regio Murcia, is een must-visit bestemming voor zowel golfliefhebbers als watersporters. Dit charmante stadje aan de Mar Menor verspreide trad...

Martine

Huis kopen in Spanje : 7 tips
Huis kopen in Spanje : 7 tips

Een huis kopen in Spanje is een droom die werkelijkheid kan worden als je goed voorbereid bent. In deze blog deelt Casas Kimpencio zeven gouden tips voor een zorgeloze aankoop, van het reserveringscontract en NIE-nummer tot het kiezen van de juiste regio en begeleiding. 

...

Martine

Arbeidskalender Spanje 2026 en lange weekenden
Arbeidskalender Spanje 2026 en lange weekenden

De Spaanse arbeidskalender voor 2026 is bekend en biedt goed nieuws voor wie waarde hecht aan vrije tijd, lange weekenden en een gezonde werk-privébalans. Door de ma...

Juliette

square-box
Tine
Vragen over panden, projecten en onze content
Snel starten:

Hallo, ik ben Tine je kan bij mij terecht met al je vragen over panden, projecten en onze content. Ik antwoord alleen op basis van de beschikbare website-inhoud.