Home Lopende projecten Alle Panden Over ons Ons team Ons kantoor Onze werkwijze Contacteer ons Blog Cookies

Nieuwbouwwoning kopen in Pinoso Costa Blanca?

 Project: Vrijstaande villa met zwembad Costa Blanca-Pinoso

Nieuwbouwwoning op een groot landelijk perceel in Pinoso

Korte beschrijving:

Moderne nieuwbouwwoning op een groot rustiek perceel in Pinoso.

Ontdek deze stijlvolle nieuwbouwwoning op een ruim rustiek perceel van 10.700 m2 aan de rand van Pinoso, Alicante.

Deze moderne woning is ontworpen voor mensen die op zoek zijn naar privacy, rust en een nauwe band met de natuur, en combineert eigentijdse architectuur met de charme van het Spaanse platteland.

  •  1. Is dit perceel legaal om op te bouwen?

Ja. De woning wordt gebouwd door een erkende promotor waar wij een nauwe samenwerking mee hebben en op een rustiek perceel van 10.700 m², volledig volgens de geldende bouw- en vergunningsregels in de regio Pinoso.

  • 2. Kan ik de woning aanpassen aan mijn wensen?

Absoluut. De indeling, afwerking en materialen kunnen aangepast worden aan jouw budget en stijl. Je kiest zelf o.a. vloeren, keuken, badkamers en extra’s.

  • 3. Is deze woning geschikt voor permanente of vakantie woning?

Ja. Dankzij de gelijkvloerse indeling, airconditioning, moderne isolatie en alle voorzieningen in Pinoso is deze woning perfect voor vast wonen, overwinteren of vakantiegebruik.

  • 4. Hoe ver ligt Pinoso van de kust en de luchthaven?

Pinoso ligt in het rustige binnenland van de Costa Blanca, op ongeveer 50 minuten van Alicante luchthaven 55 minuten van de stranden Ideaal voor wie rust zoekt maar toch vlot bereikbaar wil blijven.

  • 5. Is Pinoso interessant voor Belgen en Nederlanders?

Zeker. Pinoso is populair bij Belgen en Nederlanders die kiezen voor ruimte, privacy en een authentiek Spaans dorpsleven, mét alle nodige voorzieningen dichtbij.

  • 6. Wat is inbegrepen in de prijs?

De prijs omvat o.a.:

  • Moderne nieuwbouwwoning
  • Privézwembad Ingerichte keuken met toestellen
  • Airconditioning
  • Overdekte parkeerplaats
  • Groot rustiek perceel
  • Extra opties zijn mogelijk op aanvraag.
  • 7. Begeleiden Casas Kimpencio het volledige aankoopproces?

Ja. Casas Kimpencio begeleidt je van A tot Z: van reservatie en bouwopvolging tot notaris, juridische checks en sleuteloverdracht en volledig in het Nederlands.

  • 8. Kan ik de woning bezichtigen of een bouwlocatie bezoeken?

Ja. We organiseren persoonlijke bezichtigingen en terreinbezoeken in Pinoso, eventueel gecombineerd met andere woningen die bij jouw wensen passen.

  • 9. Is deze woning interessant als investering?

Vooral geschikt voor eigen gebruik, overwinteren of langetermijnwaarde in een populaire regio.

  • 10. Mag ik deze woning verhuren?

Langetermijnverhuur is mogelijk. Toeristische verhuur hangt af van vergunningen en regio.

  • 11. Is vastgoed in het binnenland waardevast?

Ja, grote percelen en privacy worden steeds schaarser en gewilder.

  • 12. Zijn er extra kosten bij aankoop?

Reken op 14% aankoopkosten bovenop de woningprijs.

Twijfel je of dit bij jou past?

Stuur ons je wensen en wij bekijken persoonlijk of deze woning de juiste match is.


U bent nog niet aangemeld!

Na invullen van onderstaande gegevens wordt u aangemeld, indien er nog geen account bestaat kan deze aangemaakt worden!



 Geef ons uw mening...

 Momenteel nog geen reviews voor dit pand.

Uitgebreide beschrijving:

Modern comfort en pure rust op een toplocatie in Pinoso.

Droomt je van ruimte, privacy en natuur, zonder in te boeten op comfort? Deze stijlvolle gelijkvloerse nieuwbouwvilla op een indrukwekkend rustiek perceel van 10.700 m² biedt je het beste van twee werelden: modern wonen in een oase van rust, vlak bij het charmante Pinoso.

Omringd door wijngaarden, amandel- en olijfboomgaarden geniet je hier elke dag van stilte, open zichten en een authentieke Spaanse sfeer. Dit is de ideale plek voor wie wil ontsnappen aan de drukte en tegelijk dichtbij alle voorzieningen wil blijven.

Al vanop ruime afstand door deze landelijke streek zie je jouw ruime gelijkvloerse villa met privézwembad.

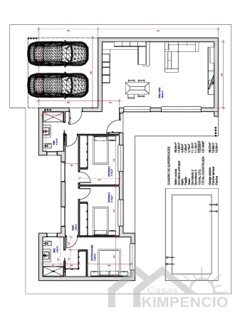
De villa is gelijkvloers en beschikt over 3 slaapkamers en 2 badkamers, waarvan één en suite. Wat opvalt is de open indeling en die volgt een L-vormig ontwerp, waardoor de woonruimte gescheiden is van de slaapvertrekken voor extra comfort en privacy.

De leefruimte heeft hoge plafonds die het gevoel van ruimte versterken en het interieur met natuurlijk licht overspoelen. Je merkte het zeker al van binnenuit, buiten kan je genieten van een privéterras en een zwembad, perfect om te ontspannen en te entertainen onder de mediterrane zon.

De woning beschikt ook over een overdekte parkeerplaats voor twee auto's, allemaal gelegen op een groot rustiek perceel dat eindeloze mogelijkheden biedt voor tuinieren, recreatie of gewoon om te genieten van het eindeloze uitzicht op de vlaktes rondom Pinoso.

Deze promotor bouwt jouw moderne voorzieningen en met hoogwaardige afwerking; afgestemd op jouw budget en keuzes.

Deze nieuwbouwwoning is uitgerust met airconditioning voor comfort het hele jaar door. De keuken is volledig ingericht en voorzien van apparatuur, waardoor het een functionele en elegante ruimte is voor het dagelijks leven.

Het moderne ontwerp, gecombineerd met hoogwaardige materialen, zorgt voor een comfortabele en onderhoudsvriendelijke woning, ideaal voor permanent wonen of als vakantiehuis op het platteland.

Deze moderne nieuwbouwwoning in Pinoso biedt de perfecte balans tussen hedendaags comfort en een rustig leven op het platteland.

Wonen met licht, ruimte en comfort;

De villa is ontworpen met een slimme L-vormige indeling, waarbij leef- en slaapgedeelte mooi van elkaar gescheiden zijn.

Je beschikt over:

  • 3 slaapkamers
  • 2 badkamers, waarvan één en suite
  • Een ruime, open woon- en eetkamer met hoge plafonds
  • Een volledig ingerichte moderne keuken met toestellen

Dankzij de grote raampartijen baadt de woning in natuurlijk licht en loopt binnen naadloos over in buiten. Buitenleven zoals het bedoeld is Hier speelt het leven zich evenzeer buiten als binnen af.

  • Privézwembad met zonneterras
  • Ruim aangelegd terras om te ontspannen of gasten te ontvangen
  • Overdekte parkeerplaats voor 2 wagens
  • Een perceel van 10.700 m² met eindeloze mogelijkheden: tuin, boomgaard, hobbyruimte of gewoon pure rust en privacy.

Dit is buitenleven onder de mediterrane zon, elke dag opnieuw.

Uitrusting & comfort; de woning is gebouwd met oog voor kwaliteit en gebruiksgemak:

  • Airconditioning voor comfort het hele jaar door
  • Volledig ingerichte designkeuken met toestellen
  • Moderne badkamers met hoogwaardige afwerking
  • Onderhoudsvriendelijke materialen
  • Nieuwbouw volgens hedendaagse bouwnormen Instapklaar genieten, zonder zorgen.

Ligging rustig landelijk gelegen, maar verrassend goed verbonden:

De woning ligt net buiten het stadje Pinoso, een charmant dorpje in het binnenland met minder dan 8000 inwoners. Pinoso staat bekend om zijn ontspannen levensritme en authentieke Spaanse sfeer en biedt een breed scala aan voorzieningen, waaronder bars, restaurants, winkels, een 24-uurs medisch centrum, tandartsen, basisscholen en middelbare scholen, een theater en een modern sportcomplex met buitenzwembaden, tennisbanen, voetbalvelden en een fitnessruimte.

Een authentieke Spaanse levensstijl omgeven door natuur betekent genieten van een traditionele landelijke levensstijl met bijna geen verkeer, open landschappen en een sterk gemeenschapsgevoel.

In februari komt het omliggende platteland tot leven met bloeiende amandelbomen, wat een spectaculair natuurspektakel oplevert.

Handige afstanden

  • Centrum Pinoso ca. 3 km
  • Alicante stad ca. 55 km
  • Stranden Costa Blanca ca. 50 km
  • Luchthaven Alicante op 60 km
  • Dicht bij de regio Murcia voor extra voorzieningen en bereikbaarheid.
  • In Pinoso zelf vindt u: restaurants, winkels, scholen, tandartsen, een 24-uurs medisch centrum, sportfaciliteiten en een sterke lokale gemeenschap.

Groei en trends in deze regio:


Jaar Prijs per m² Jaarlijkse stijging
2023 1.350 €
2024 1.554 € (afgeleid)
+ 15.1 %
2025 1.780 € (nov 2025)
+ 14.6 %


Onze visie: waarom kiezen voor deze woning én deze promotor?

Wij geloven dat een woning méér moet zijn dan vier muren.

Deze promotor staat bekend om:

  • Zorgvuldige keuze van unieke percelen met rust en uitzicht
  • Focus op kwaliteit, licht en leefruimte
  • Woningen die perfect passen in hun natuurlijke omgeving
  • Ideale balans tussen modern comfort en mediterrane charme

Dit is geen standaard project, maar een thuis voor mensen die bewust kiezen voor ruimte, natuur en levenskwaliteit. Deze wordt gebouwd op een rustic plot net buiten Pinoso. We begeleiden je gedurende het hele proces: van aankoop over het bouwen tot de afwerking en nazorg.

Wil je weten of deze woning bij jou past?

Neem vandaag nog contact met ons op voor plannen, prijzen en beschikbaarheid. Wij denken graag persoonlijk met je mee!

Pinoso

Staat bekend vooral bij Nederlanders en Belgen en om zijn wijngaarden en wijnproductie, en een bezoek aan een van de lokale wijnhuizen is een must voor wijnliefhebbers.

De Bodega Cooperativa de Pinoso biedt rondleidingen en proeverijen, waarbij bezoekers meer te weten kunnen komen over het productieproces en kunnen genieten van de hoogwaardige wijnen die in de regio worden geproduceerd.

Natuurliefhebbers zullen genieten van de nabijheid van de Sierra del Carche, een natuurpark dat uitstekende wandel- en fietsmogelijkheden biedt.

Dit berggebied biedt spectaculaire uitzichten, diverse flora en fauna, en is een ideale plek voor outdooractiviteiten en het verkennen van de natuurlijke schoonheid van de regio.

Hoewel Pinoso zelf een rustige en vredige stad is, biedt de locatie gemakkelijke toegang tot verschillende toeristische bestemmingen in de omgeving.

Op slechts een korte rit ligt de stad Jumilla, die beroemd is om haar wijnen en historische kastelen.

Jumilla heeft een rijke geschiedenis die teruggaat tot de Romeinse tijd en biedt tal van culturele bezienswaardigheden en evenementen, waaronder het jaarlijkse wijnfestival.

Een andere interessante bestemming in de buurt is de stad Alicante, die ongeveer een uur rijden van Pinoso ligt.

Alicante

Biedt een levendige kustlijn, prachtige stranden en een breed scala aan culturele bezienswaardigheden, zoals het kasteel van Santa Bárbara, het Archeologisch Museum van Alicante en de sfeervolle oude binnenstad. De stad biedt ook uitgebreide winkelmogelijkheden en een bruisend nachtleven.

Elche,

Een stad beroemd om haar palmbossen die op de werelderfgoedlijst van UNESCO staan, ligt ook binnen handbereik.

Elche biedt een rijk cultureel erfgoed met bezienswaardigheden zoals de Basiliek van Santa Maria, het Paleis van Altamira en het archeologisch museum.

Het jaarlijkse middeleeuwse feest, het Misteri d'Elx, trekt bezoekers van over de hele wereld en biedt een unieke culturele ervaring.

Neem vandaag nog contact met ons op voor meer informatie of om een bezichtiging te regelen en zet de eerste stap naar uw nieuwe huis op het Spaanse platteland.

Of je nu op zoek bent naar een permanente woonst, een vakantiehuis of een investering in levenskwaliteit; deze villa in Pinoso biedt rust, ruimte en modern comfort in één uitzonderlijk geheel. Een plek waar je ’s ochtends wakker wordt met uitzicht op het landschap en ’s avonds de stilte hoort


Kenmerken:

Aantal slaapkamers 3
Aantal badkamers 2
Privaat zwembad Ja
Oppervlakte perceel rond het huis 10700 m²
Bebouwde oppervlakte 127 m²
Bewoonbare oppervlakte 103 m²
Afstand naar het strand 50 km
Terras oppervlakte 20 m²
Private Tuin Ja
Poort Ja
Nabij Scholen Ja
Terras Ja
Douche schermen Ja
Jaccuzi Optioneel
Pré installatie airco Ja
privé parkeerplaats Ja
Garage Ja
Telefoon Data aansluiting Ja
Videofonie Ja
Inbouwkasten Ja
Aero thermische warmtepomp Ja
Badkamer spiegels Ja
Volledig bemeubeld Nee
Alle keuken apparatuur volledig inbegrepen Ja
Nabij kinder speeltuin Ja
Kelder Nee
Uitzicht tuin Ja
Oriëntatie Zuid-oost
Golfresort afstand in km 10-15 km
Ziekenhuis afstand in km 0-5 km
Luchthaven Alicante afstand 50+ km
Luchthaven Murcia afstand 50+ km
Uitzicht bergen Ja
Hangend toilet Ja
Hangend badkamer meubel Ja
Uitzicht op het zwembad Ja
Security glas met uv filter Ja
Volledig ingerichte keuken Ja
Gepantserde toegangsdeur met veiligheidsslot Ja
Kranen met waterbesparing Ja
Grote ramen van vloer tot plafond Ja
Hoogwaardige afwerking Ja
Beschikbaarheid op maat gemaakte ontwerpen Ja
Goede prijs-kwaliteit verhouding Ja
Aerothermische boiler Ja
Hoge plafonds Ja
Meubelpakket Optioneel
Gelijkvloers Ja
Gelijkvloers met tuin Ja
Bouwgrond en villa op maat Ja
Villa bouwen op maat Ja
Bouwgrond en nieuw te bouwen villa Ja
Luxe nieuwbouw Ja
Extra grote ramen uitkijkend op tuin en zwembad Ja
Aangelegde tuin met grind, gras en planten. Ja
Bouwtermijn na contract 18 maand Ja
Goed gebied voor rentabiliteit van huur Ja
Deuren met magnetische sluiting Ja
Energielabel A
Afgewerkte badkamer Ja

Meer info?


Beschikbare documenten

property-4725-8-pic.webp

document-property-4725-8-pic.webp

download

Ontdek ook deze kansen

Hoek villa kopen in SIERRA VERDE Finestrat?
Hoek villa kopen in SIERRA VERDE Finestrat?

Project: Investeren in SIERRA VERDE villa nabij Benidorm

Stad: Finestrat-Benidorm

3   3     143 m²   24 m²  

Studio met verhuurlicentie in Finestrat
Studio met verhuurlicentie in Finestrat

Project: Appartement met verhuurlicentie Costa Blanca

Stad: Finestrat-Benidorm

0   1     36 m²   1 m²  

Appartement met ruim terras in Corallia Resort
Appartement met ruim terras in Corallia Resort

Project: Residentie Corallia in Punta Prima - F1

Stad: Punta Prima

3   2   109 m²   17 m²  

Penthouse met solarium - Velapi Golf blok 3
Penthouse met solarium - Velapi Golf blok 3

Project: Velapi Golf appartementen - blok 3

Stad: Los Alcazares

2   2   88 m²   18 m²  

Villa in residentie Mar Alboran - coming soon
Villa in residentie Mar Alboran - coming soon

Project: Villa Mar Alborán Lo Romero Golf - F2

Stad: San Pedro del Pinatar - Mar-Menor

3   2     130 m²   196 m²  

DUNAS DE VERA appartement kopen Vera Playa
DUNAS DE VERA appartement kopen Vera Playa

Project: Toeristisch appartement met privéstrand Vera

Stad: Vera- regio Costa Almeria Andalusië

2   1     55 m²   29 m²  

Toeristisch appartement met terras en zwembad
Toeristisch appartement met terras en zwembad

Project: Toeristische appartementen Karibe Heritage Resort

Stad: Lo Pagán aan de Mar Menor

2   2   82 m²   13 m²  

Gelijkvloers appartement met tuin resort El Raso
Gelijkvloers appartement met tuin resort El Raso

Project: Gemeubelde Appartementen El Raso Guardamar

Stad: Guardamar del segura- Alicante

2   2     65 m²   16 m²  

Penthouse met groot terras La Nucía
Penthouse met groot terras La Nucía

Project: Investeren in modern project aan Costa Blanca

Stad: La Nucia

2   2     73 m²   113 m²  

Luxe villa met magnifiek zeezicht - model Irati
Luxe villa met magnifiek zeezicht - model Irati

Project: Luxe villa’s te koop in Benissa – Racó de Galeno

Stad: Benissa

4   4     770 m²   160 m²  

Villa met prachtig bergzicht in residentie Airen
Villa met prachtig bergzicht in residentie Airen

Project: Airen: eco-vriendelijke luxe villa's in Llíber

Stad: Llíber

3   2     432.76 m²    

Villa Bianca luxe wonen met zeezicht in Cumbre
Villa Bianca luxe wonen met zeezicht in Cumbre

Project: Magnolias Design in Cumbres Del Sol Benitachell

Stad: Benitachell- Alicante

3   3     160 m²  

Lees hier de nieuwste weetjes

Administratief medewerker vastgoed Spanje gezocht
Administratief medewerker vastgoed Spanje gezocht

Droom jij van werken onder de Spaanse zon én deel uitmaken van een ambitieus vastgoedteam aan de Costa Blanca?

Bij Casas Kimpencio zoeken we een administratieve topper die structuur brengt, klanten professioneel opvolgt en mee wil bouwen aan een groeiend succesverhaal.

Jij wordt de...

Martine

Horizon Resort II gelanceerd23/04/2026
Horizon Resort II gelanceerd23/04/2026

Nieuwe fase gelanceerd van Horizon Resort II in San Miguel de Salinas, een modern bungalowproject waar rust, ruimte en buitenleven centraal staan. Kies tussen een woning met tuin of solarium en geniet van een zorgeloze levensstijl dicht bij zee, golf en natuur.

...

Martine

Koningsdag Spanje: Feest aan de Costa Blanca
Koningsdag Spanje: Feest aan de Costa Blanca

Koningsdag 2026 in Spanje

Waar vieren Belgen en Nederlanders het feest aan de Costa Blanca?

Vier Koningsdag 2026 in Spanje en ontdek waarom zoveel Belgen en Nederlanders kiezen voor de Costa Blanca.

Van grote festivals in steden zoals Valencia en Barcelona tot gezellige lokale...

Martine

square-box
Tine
Vragen over panden, projecten en onze content
Snel starten:

Hallo, ik ben Tine je kan bij mij terecht met al je vragen over panden, projecten en onze content. Ik antwoord alleen op basis van de beschikbare website-inhoud.