Luxe 2-slaapkamer bungalow in Algorfa, nabij golf, stranden
Project: Exclusieve bungalows in La Finca Golf - Oasis Golf
Exclusieve nieuwbouwbungalows in La Finca Golf, Algorfa
Korte beschrijving:
GELIJKLVOERSE WONING - 2 SLAAPKAMERS MET 2 BADKAMERS - TERRAS - PARKEERPLAATS - TUIN
Deze woning is gelegen op de gelijkvloerse verdieping en is voorzien van 2 slaapkamers met 2 badkamers. Elke slaapkamer heeft toegang via grote schuiframen tot het terras van maar liefst 27m². Elke woning heeft toegang tot de gemeenschappelijke voorzieningen zoals het zwembad, kinderzwembad, petanquebaan, kinderspeeltuin, buitenfitness en minigolf.
Elke woning heeft een parkeerplaats toegewezen in de urbanisatie.
Denk je aan een tweede woning, een investering of een luxe verblijf onder de Spaanse zon?
Dit is het moment om actie te ondernemen. Wacht niet langer, spring mee op deze trein en verzeker jezelf van jouw plekje in Oasis Golf La Finca.
Grijp deze kans en maak je droom van een eigendom aan de Costa Blanca werkelijkheid, met alle voordelen van een vroege investering.
Deze moderne gelijkvloerse bungalow in het prestigieuze La Finca Golfresort enorme luxe en comfort in een prachtige natuurlijke omgeving.
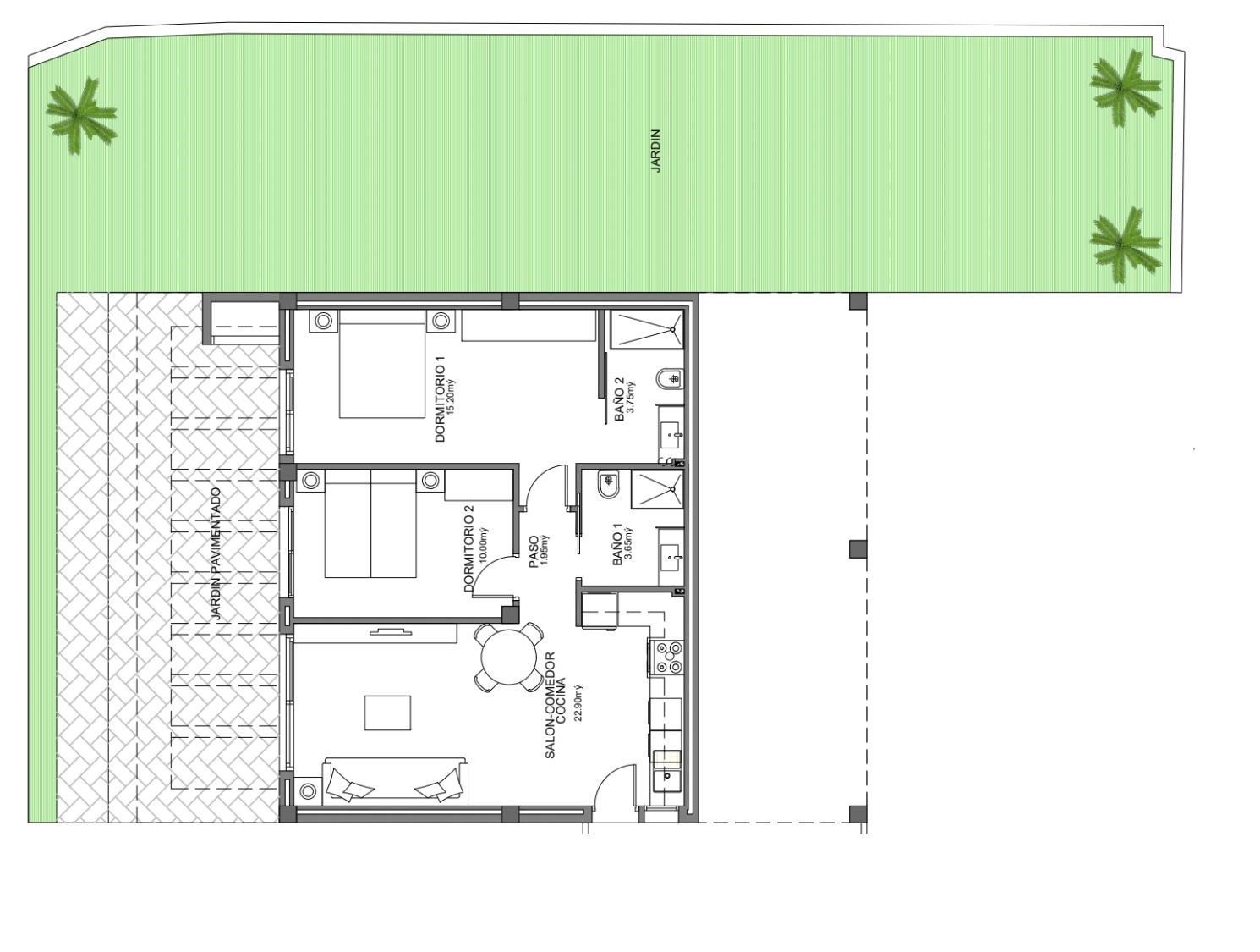
Met een ruime woonoppervlakte van 67 m² en een terras van 27 m² en een extra tuin van 108m², biedt deze woning alle ruimte om te genieten van het mediterrane leven.
Perfect voor wie op zoek is naar een rustige en stijlvolle woning nabij golfbanen, stranden en lokale voorzieningen.
Hier geniet je van een zonovergoten terras en het comfort van een goede doordachte indeling, midden in het hart van de Costa Blanca!
U bent nog niet aangemeld!
 Geef ons uw mening...
Vanaf: €270.000
Ref: KIMP-PROP-2682
Uitgebreide beschrijving:
Deze woning is een gelijkvloerse verdieping met 2 slaapkamers & 2 badkamers. Er is een ruime leefruimte voorzien met open keuken. De keuken is geïnstalleerd met kasten en afzuigkap. De badkamers zijn allen afgewerkt met alle nodige details.
Exclusieve nieuwbouwbungalows in La Finca Golf, Algorfa Ontdek de luxe van La Finca Golf
Welkom bij een nieuwbouwproject dat luxe wordt gedefinieerd in La Finca Golf, gelegen in het charmante Algorfa aan de Costa Blanca.
In deze exclusieve gemeenschap vind je 40 stijlvolle bungalows, ontworpen om het beste van elegantie en comfort samen te brengen.
Kies voor een woning op de begane grond met een privétuin, of geniet van een panoramisch uitzicht op de golfbaan vanaf je eigen solarium in een bovenverdieping-woning.
Met opties voor 2 of 3 slaapkamers, biedt dit project een ideale setting om volop te genieten van het mediteraanse klimaat.
Geniet van een leven vol luxe en ontspanning in Oasis Golf La Finca
Bewoners van Oasis Golf La Finca worden omgeven door uitstekende voorzieningen voor een ultieme leefervaring.
Het prachtige gemeenschappelijke zwembad, met speciale gebieden voor kinderen en volwassenen, perfect voor ontspanning of sociale bijeenkomsten
Daarnaast zijn er tal van voorzieningen voor een actief en gezond leven. Een leven in de open lucht nodig je uit om in beweging te blijven met een fitnessruimte terwijl je geniet van het prachtige uitzicht.
Ook zijn er petanquebanen en een minigolfbaan, zodat alle jongeren zich kunnen vermaken.
Voor gezinnen zijn de ruime groene zones en veilige speelruimtes voor kinderen perfect om de kleintjes te laten spelen, terwijl ouders kunnen genieten van de rust en schoonheid van de omgeving.
Alles in Oasis Golf La Finca is zorgvuldig ontworpen met oog voor detail.
Van hoogwaardige afwerkingen in de woningen tot de gemeenschappelijke ruimtes die luxe en comfort uitstralen – elke hoek van deze gemeenschap nodigt uit om te genieten. Hier evaar je dagelijks de luxe van een resort gecombineerd met de warmte van een thuis.
Hoogwaardige, instapklare woningen voor onmiddellijk genot
Elke bungalow in dit prestigieuze project wordt volledig gemeubileerd geleverd, zodat je zonder enig gedoe kunt intrekken en direct kunt beginnen met genieten van je nieuwe levensstijl.
De woningen zijn uitgerust met eersteklas apparatuur en zijn voorzien van een efficiënt airconditioningsysteem dat via leidingen door de hele woning loopt. Dit betekent een comfortabele binnentemperatuur, het ganse seizoen.
De aluminium ramen zijn voorzien van thermische isolatie, waardoor je het hele jaar door kunt genieten van een comfortabel binnenklimaat
De badkamers zijn ontworpen met het oog op luxe en comfort. Elk detail is zorgvuldig gekozen, van de glazen doucheschermen die een moderne uitstraling bieden tot de grote spiegels die een gevoel van ruimte creëren. Daarnaast zijn er op maat gemaakte kasten voor praktisch gemak
Een verlichtingspakket van hoge kwaliteit maakt deel uit van elke woning, met verlichting die zowel functioneel als sfeervol is. Dit verlichtingspakket brengt elke ruimte tot leven, waardoor je bungalow niet alleen praktisch maar ook stijlvol aanvoelt
Met deze bungalows stap je binnen in een instapklare woning die comfort, elegantie en hoogwaardige afwerking verdeelt. Je voelt je meteen thuis en kunt direct genieten van alles wat deze woning te bieden heeft.
Toplocatie: Rust en bereikbaarheid in La Finca Golf, Algorfa
La Finca Golf biedt de perfecte mix van privacy en bereikbaarheid. Je zit op slechts enkele minuten van het centrum van Algorfa, de bruisende stranden van Torrevieja en de luchthaven van Alicante. Dankzij deze centrale ligging ben je altijd dichtbij de natuur, levendige stranden en lokale voorzieningen.
In de buurt vind je ook het winkelcentrum La Zenia Boulevard, Playa Flamenca en andere beroemde golfbanen zoals Villamartín.
De ideale locatie van La Finca Golf ligt op slechts 4 km van het stadscentrum van Algorfa, 15 km van de levendige kustplaats Torrevieja en 45 km van de internationale luchthaven van Alicante, waardoor het handig is voor zowel de lokale bevolking als internationale bewoners.
Hier woon je in het hart van de Costa Blanca, omringd door de eindeloze schoonheid van Spanje. Geniet van zon, zee en gezonde lucht – een overvloedige levensstijl die de natuur grais geeft in Spanje
Ervaar het beste van de Costa Blanca
Grijp deze unieke kans om eigenaar te worden in een exclusieve gemeenschap die luxe en gemak perfect samenbrengt in een van de meest populaire regio's van de Costa Blanca!
Dit project in La Finca Golf, Algorfa, biedt je de ultieme kans om een investering in kwaliteit te doen – ideaal als hoofdverblijf of als luxe vakantiewoning.
Wacht niet langer en ontdek de ruime mogelijkheden die deze woning te bieden heeft.
Plan vandaag nog je bezichtigingreis met Casas Kimpencio en zet de eerste stap naarhet bezitten van je droomhuis in La Finca Golf, Algorfa.
Kenmerken:
Aantal slaapkamers | 2 | |
Aantal badkamers | 2 | |
Volledige airco installatie | Ja | |
Led verlichting buiten | Ja | |
Led verlichting binnen | Ja | |
privé parkeerplaats | Ja | |
Telefoon Data aansluiting | Ja | |
Videofonie | Ja | |
Inbouwkasten | Ja | |
Aero thermische warmtepomp | Ja | |
Douche schermen | Ja | |
Poort | Ja | |
Badkamer spiegels | Ja | |
Terras | Ja | |
Privaat zwembad | Ja | |
Gedeeld zwembad | Ja | |
Volledig bemeubeld | Ja | |
Alle keuken apparatuur volledig inbegrepen | Ja | |
Nabij kinder speeltuin | Ja | |
Buiten fitness | Ja | |
Berging | Ja | |
Gedeelde tuin | Ja | |
Private Tuin | Ja | |
Badkamer spiegels met verlichting | Ja | |
Golfresort afstand in km | 0-2 km | |
Ziekenhuis afstand in km | 5-10 km | |
Nabij Commercieel centrum | Ja | |
Luchthaven Alicante afstand | 30-40 km | |
Uitzicht tuin | Ja | |
Uitzicht bergen | Ja | |
Ontspanning ruimte buiten | Ja | |
Oppervlakte perceel rond het huis | 0 m² | |
Bebouwde oppervlakte | 67 m² | |
Bewoonbare oppervlakte | 60 m² | |
Afstand naar het strand | 14 km | |
Terras oppervlakte | 27 m² | |
Nabij Scholen | Ja | |
Nabij bushalte | Ja | |
Hangend toilet | Ja | |
Hangend badkamer meubel | Ja | |
Op golfterrein | Ja | |
Cameradeur met intercom terminal | Ja | |
Security glas met uv filter | Ja | |
Badkamer meubel en spiegels | Ja | |
Security 24/24 | Ja | |
Volledig ingerichte keuken | Ja | |
Gepantserde toegangsdeur met veiligheidsslot | Ja | |
Kranen met waterbesparing | Ja | |
Grote ramen van vloer tot plafond | Ja | |
Fietsafstand van het strand | Ja | |
Hoogwaardige afwerking | Ja | |
Goede prijs-kwaliteit verhouding | Ja | |
Aerothermische boiler | Ja | |
Hoge plafonds | Ja | |
Gelijkvloers | Ja | |
Gelijkvloers met tuin | Ja | |
Bungalow | Ja | |
Luxe nieuwbouw | Ja | |
Extra grote ramen uitkijkend op tuin en zwembad | Ja | |
Aangelegde tuin met grind, gras en planten. | Ja | |
Kijkwoning | Ja | |
Goed gebied voor rentabiliteit van huur | Ja | |
Meubelpakket | Ja | |
Deuren met magnetische sluiting | Ja | |
Wandelafstand van het strand | Ja | |
Fietsberging | Ja | |
Social club | Ja | |
Energielabel | A | |
Afgewerkte badkamer | Ja | |
Gesloten urbanisatie | Ja |
Meer info?
Casas Kimpencio: Jouw Spaanse droom in handbereik

Natura Park IV - Luxe villa in Oasis, La Marina
Project: Natura Park Fase 4 - Luxe villa's in La Marina
Stad: La Marina- Alicante
3   2     90 m²   90 m²  

Bovenste bungalow met solarium
Project: Residentie Victor Manuel 2 in Pilar de la Horadada
Stad: Pilar de la Horadada - Alicante
3   2   90 m²   15 m²  

Villa op ruim perceel met zwembad én solarium
Project: Residentie Castrum - ruime villa's in Dolores
Stad: Dolores
3   2     183 m²   85 m²  

Lola-Formentera De Segura
Project: Lola-Formentera De Segura
Stad: Formentera del segura
3   2     157 m²   135 m²  

Luxe nieuwbouw villa's in Benijófar
Project: Luxe nieuwbouw villa's in Benijófar, Costa Blanca
Stad: Benijófar-Alicante
3   3     138 m²   97 m²  

Villa in Benijofar met onderbouw en solarium
Project: Residentie villas Benijofar
Stad: Benijófar-Alicante
3   3     141 m²   31 m²  

Prachtige losstaande villa op groot perceel
Project: Residentie Numa 3 in Ciudad Quesada
Stad: Ciudad Quesada
3   3     258 m²   20 m²  

Halfvrijstaande woning met privézwembad
Project: Residentie Orquidea in charmant stadje Almoradi
Stad: Almoradi
3   3     134 m²   20 m²  

Halfvrijstaande woning in Gran Alacant Fase 2
Project: Bahia Gran Alacant Adosados Fase 2
Stad: Gran Alacant
3   2   96 m²   33 m²  

Halfvrijstaande woning in Natura El Pinet
Project: Residentie Natura El Pinet M17 in La Marina
Stad: La Marina- Alicante
3   3   98 m²   90 m²  

Bungalow op de bovenste verdieping in Torrevieja
Project: Residentie Nature views 2
Stad: Torrevieja-Alicante
2   2   78 m²   20 m²  

AN Home Appartement in Torrevieja
Project: AN Home appartementen vlakbij zee in Torrevieja
Stad: Torrevieja-Alicante
1   1     55 m²   8 m²  
Lees geamuseerd onze nieuwtjes mee...

Top 12 overwinterplekken Costa de Almería
Ontdek de top 12 beste plekken om te overwinteren aan de Costa de Almería.
Tips voor Belgen & Nederlanders: zon, rust, stranden en verborgen parels zoals Mar de Pulpí en San Juan de los Terreros.
Stel je voor: een zachte winterzon, kilometerslange stranden en het ontspannen ...
Martine

Feestdagen Spanje 2025-2006
In 2026 telt Spanje 14 officiële feestdagen, met vier gunstig vallende dagen voor lange weekenden, zoals 1 mei, 3 april (Goede Vrijdag), 12-13 oktober en 25 december.
Sommige regionale feestdagen zoals San José of Santiago Apóstol verschillen per regio.
Vooral het lange weekend r...
Martine

Rotondes in Spanje: nieuwe tijden op komst
Een Spaanse rotonde is eigenlijk een slim soort gelijkvloers knooppunt, bedacht om het verkeer vlotter en veiliger te laten verlopen.
Het idee is simpel: minder kruispunten van rijrichtingen, dus minder kans op ongelukken. Maar eerlijk is eerlijk dat werkt niet altijd even goed.
Zek...
Martine