laatste kans

Gelijkvloers appartement in Serena Garden

 Project: Residentie Serena Garden in Rojales

Nieuwbouwappartement in authentieke Spaanse stijl

Korte beschrijving:

NIEUWBOUWAPPARTEMENTEN IN SERENA GARDEN - GELIJKVLOERS - 2 SLAAPKAMERS EN 2 BADKAMERS - PARKEERPLAATS - ZWEMBAD

Deze woning is voorzien van 2 slaapkamers met 2 badkamers. De woning is op kwaliteitsvolle manier gebouwd met hoogwaardige materialen. De woning heeft volledig afgewerkte badkamers, opbergruimte, inbouwkasten, ... Je kan genieten van een ruim gemeenschappelijk zwembad met ligbedden en parasols. Het hele complex is afgewerkt in authentieke Spaanse / Arabische stijl, wat een luxueuze uitstraling geeft. 

U bent nog niet aangemeld!

Na invullen van onderstaande gegevens wordt u aangemeld, indien er nog geen account bestaat kan deze aangemaakt worden!



 Geef ons uw mening...

 Momenteel nog geen reviews voor dit pand.

Uitgebreide beschrijving:

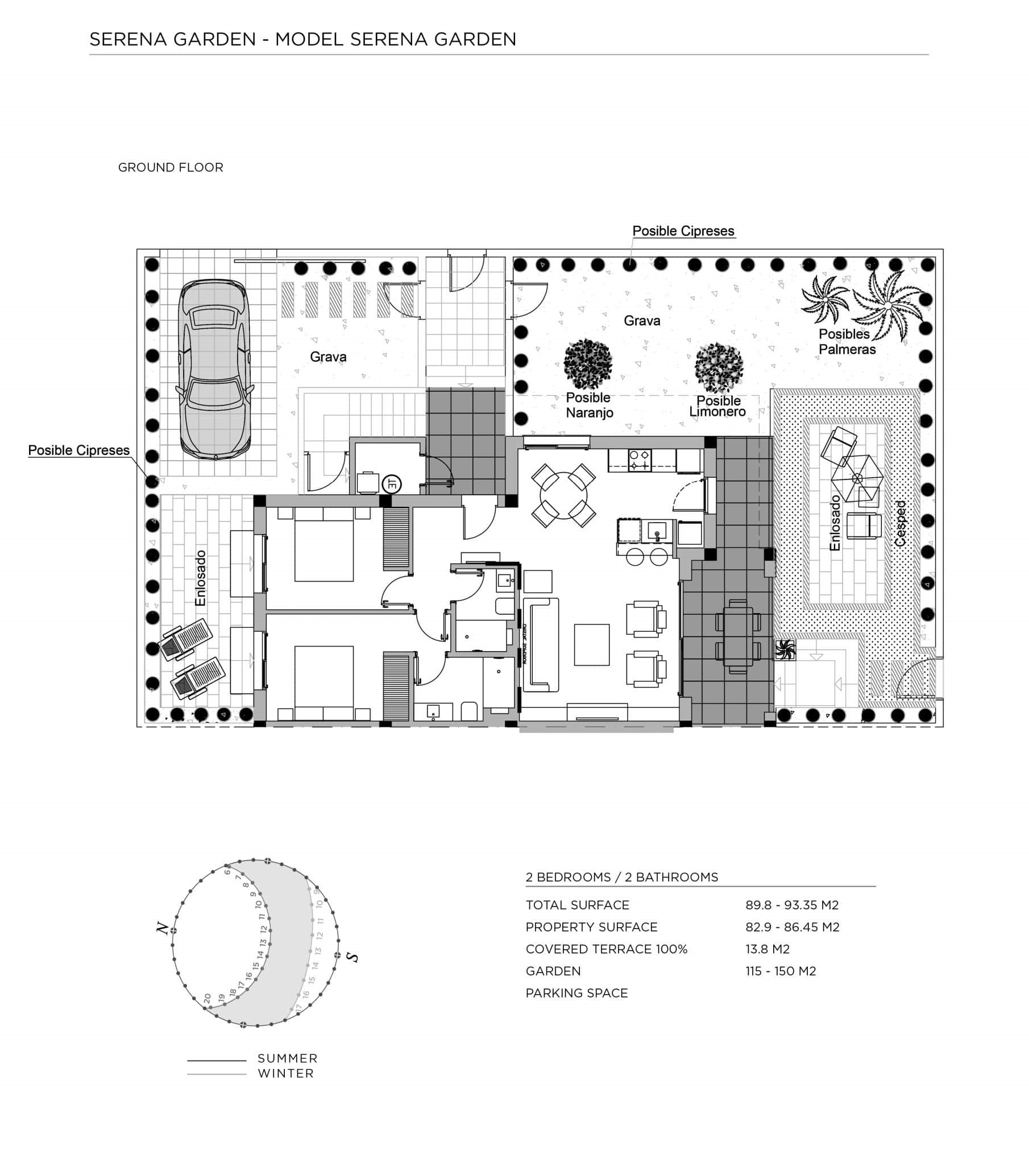
Dit appartement is gelegen op de gelijkvloerse verdieping en heeft 2 slaapkamers met 2 badkamers. Er zijn 2 ingangen om de woning te bereiken, de voetgangersingang en de ingang voor jouw wagen. Op het perceel is er een parkeerplaats voor jouw wagen voorzien, met pré-installatie van een elektrische poort. Tegen een meerprijs kan je genieten van een automatische poort met afstandsbediening. 

Er is een ruime leefruimte met open keuken voorzien. De keuken kent een pré-installatie, zonder elektrische apparaten. Vanuit de woonkamer kijk je via grote schuiframen uit op jouw eigen tuin van minimum 115m². De tuin kijkt uit op het gemeenschappelijk zwembad. Rondom de woning zijn er tal van terrassen aangelegd, met bioklimatologische pergola's. 

Er zijn 2 slaapkamers met 2 badkamers. De hoofdslaapkamer heeft een badkamer-ensuite. Elke badkamer is uitgerust met een toilet, spiegel, badkamermeubel, wastafel, douche, doucheschermen én vloerverwarming. Alle slaapkamers zijn voorzien van inbouwkasten met hangrekken en lades. 

Rondom de hele woning is de buitenruimte perfect afgewerkt. Er is een ruim terras voorzien in anti-slip tegels alsook een aangelegde tuin met gras. Optioneel kan je kiezen voor beplantingen en een irrigatie-systeem. Aansluitend aan de woonkamer is er een terras voorzien met bioklimatologische pergola, zo geniet je keer op keer van aangename temperaturen. Langs de woning is er een opbergruimte / technische ruimte voorzien. 

Er is een ruim gemeenschappelijk zwembad voorzien met groene gebieden. Bij het zwembad zijn er ligbedden en parasols zodat je optimaal kan genieten van een dagje zonnekloppen. Het gehele complex is afgewerkt in de authentieke Spaanse / Arabische stijl, wat tropische sferen geeft. Kom helemaal tot rust in deze kwaliteitsvolle residentie. De residentie is perfect beveiligd, het gehele wooncomplex komt binnen via 1 centrale ingang, waar er beveiligingscamera's hangen. Hierdoor is jouw veiligheid optimaal verzekerd! 

Er is een mogelijkheid om een perfect afgewerkte woning te betreden, inclusief meubelen, elektrische apparaten, ... Neem contact met ons op en wij bespreken welke 'pakketten' er mogelijk zijn! 

Extra troeven aan deze woning: 

  • Pré-installatie airconditioning
  • 2 zonnepanelen voor sanitair warm water
  • Elektrische rolluiken
  • Video-intercom

Deze woning is gelegen in Rojales. Rojales, een charmant stadje in de provincie Alicante, biedt een prachtige combinatie van rust, cultuur en recreatie. Een van de grootste troeven van Rojales is de nabijheid van La Marquesa Golf, een golfbaan van hoge kwaliteit die op slechts twee minuten afstand ligt. Deze golfbaan, ingebed in een schilderachtig landschap, is ideaal voor zowel beginners als ervaren golfers die willen genieten van een ontspannen ronde golf in een serene omgeving. De baan heeft een uitdagend ontwerp met tal van waterpartijen en goed onderhouden greens, waardoor het een geliefde plek is onder golfliefhebbers in de regio.

Naast de uitstekende golfmogelijkheden ligt Rojales op slechts tien minuten rijden van enkele van de mooiste stranden aan de Costa Blanca. De nabijgelegen stranden van Guardamar del Segura en La Mata bieden uitgestrekte zandstranden met kristalhelder water, perfect voor een dagje zonnebaden, zwemmen of wandelen langs de kust. Deze stranden staan bekend om hun natuurlijke schoonheid en rustige sfeer, waardoor ze ideaal zijn voor gezinnen en strandliefhebbers die op zoek zijn naar ontspanning aan de Middellandse Zee.

Rojales zelf heeft een rijke geschiedenis en een levendige lokale cultuur. De stad staat bekend om haar charmante oude molens en de Cuevas del Rodeo, een reeks kunstzinnige grotwoningen die tegenwoordig dienst doen als ateliers en galerieën voor lokale kunstenaars. Deze grotten zijn een uniek kenmerk van de stad en bieden bezoekers een kijkje in het creatieve leven van de gemeenschap. Elke maand wordt er een kunstmarkt gehouden, waar je kunstwerken, ambachten en lokale producten kunt kopen, wat bijdraagt aan de culturele rijkdom van de stad.

Voor wie verder wil verkennen, biedt Rojales een uitstekende uitvalsbasis voor het ontdekken van andere toeristische bestemmingen in de regio. Torrevieja, een levendige badplaats met een breed scala aan winkels, restaurants en een bruisend nachtleven, ligt op slechts een korte rit. Hier vind je ook het indrukwekkende zoutmerenpark, waar je kunt genieten van wandelingen door het natuurgebied en de beroemde roze meren kunt bewonderen.

Orihuela Costa, met zijn uitgebreide winkelcentra zoals Zenia Boulevard en een breed scala aan eetgelegenheden, ligt eveneens op een korte afstand. Dit gebied biedt tal van mogelijkheden voor winkelen, dineren en entertainment, evenals prachtige stranden en kustpaden om te verkennen.

Natuurliefhebbers zullen de nabijheid van de Lagunas de La Mata y Torrevieja waarderen, een beschermd natuurgebied waar je kunt wandelen, vogels kunt spotten en kunt genieten van het rustige, ongerepte landschap. Dit natuurpark is een toevluchtsoord voor flora en fauna en biedt een rustige ontsnapping uit de dagelijkse drukte.

Rojales combineert de rust en charme van een traditioneel Spaans stadje met gemakkelijke toegang tot golf, stranden en een breed scala aan toeristische bestemmingen. De strategische ligging, samen met de vele recreatieve mogelijkheden in de omgeving, maakt Rojales een ideale plek voor een evenwichtige levensstijl waar ontspanning, cultuur en avontuur hand in hand gaan.


Kenmerken:

Aantal slaapkamers 2
Aantal badkamers 2
Oppervlakte perceel rond het huis 150 m²
Bebouwde oppervlakte 89 m²
Bewoonbare oppervlakte 79 m²
Afstand naar het strand 6 km
Terras oppervlakte 14 m²
Gedeeld zwembad Ja
Private Tuin Ja
Poort Ja
Nabij Scholen Ja
Nabij Commercieel centrum Ja
Terras Ja
Fietsafstand van het strand Ja
Vloerverwarming badkamer Ja
Douche schermen Ja
Pré installatie airco Ja
Elektrische rolluiken Ja
Led verlichting buiten Ja
Led verlichting binnen Ja
privé parkeerplaats Ja
Telefoon Data aansluiting Ja
Videofonie Ja
Inbouwkasten Ja
Elektrische poort Optional
Badkamer spiegels Ja
Pre installatie keuken Ja
Nabij kinder speeltuin Ja
Gedeelde tuin Ja
Golfresort afstand in km 2-5 km
Ziekenhuis afstand in km 0-5 km
Luchthaven Alicante afstand 40-50 km
Luchthaven Murcia afstand 50+ km
Uitzicht tuin Ja
Ontspanning ruimte buiten Ja
Hangend toilet Ja
Hangend badkamer meubel Ja
Gepantserde toegangsdeur met veiligheidsslot Ja
Hoogwaardige afwerking Ja
Goede prijs-kwaliteit verhouding Ja
Aerothermische boiler Ja
Gelijkvloers Ja
Gelijkvloers met tuin Ja
Luxe nieuwbouw Ja
Kijkwoning Ja
Automatische irrigatie in de tuin. Ja
Energielabel B
Afgewerkte badkamer Ja
Gesloten urbanisatie Ja

Meer info?


Beschikbare documenten

Schermopname_27-8-2024_85138_www.redsp.net.jpeg

document-Schermopname_27-8-2024_85138_www.redsp.net.jpeg

download
56d09993-2c07-425a-b998-843c4a1060a7.jpeg

document-56d09993-2c07-425a-b998-843c4a1060a7.jpeg

download

Ontdek wat we nog meer te bieden hebben!

Nieuwbouw appartement Costa Blanca dichtbij zee
Nieuwbouw appartement Costa Blanca dichtbij zee

Project: Mykonos y Santorini villa's - San Fulgencio

Stad: San Fulgencio

3   2     93 m²   8 m²  

Appartement Spanje met zwembad en 2 slaapkamers
Appartement Spanje met zwembad en 2 slaapkamers

Project: Residentie Oasis in Guardamar

Stad: Guardamar del segura- Alicante

2   2     72 m²   8 m²  

Nieuwbouw Javea Living Costa Blanca en 23m² terras
Nieuwbouw Javea Living Costa Blanca en 23m² terras

Project: Boutique appartementen in Jávea vlakbij strand

Stad: Javéa

3   2     101 m²   23 m²  

Penthouse met terras én verhuurlicentie
Penthouse met terras én verhuurlicentie

Project: Residentie Playamar - toeristische appartementen

Stad: San Pedro del Pinatar - Mar-Menor

1   1   61 m²   8 m²  

Residentie Larrosa 43: woning nabij Guardamar
Residentie Larrosa 43: woning nabij Guardamar

Project: Residentie Larrosa 43: betaalbaar in San Fulgencio

Stad: San Fulgencio

2   2     80 m²   6 m²  

Penthouse met solarium in Costa Blanca
Penthouse met solarium in Costa Blanca

Project: Penthouse Benejúzar Boutique wonen Costa Blanca

Stad: Benejúzar

3   3     56 m²   12 m²  

Gelijkvloers appartement Spanje met tuin
Gelijkvloers appartement Spanje met tuin

Project: Residentie Natura in Torre-Pacheco

Stad: Torre-Pacheco - Murcia

3   2     85 m²   21 m²  

Sun and City gelijkvloers appartement Torrevieja
Sun and City gelijkvloers appartement Torrevieja

Project: Sun and City Torrevieja

Stad: Torrevieja-Alicante

2   2     77 m²   10 m²  

Penthouse met terras in residentie Vistalago
Penthouse met terras in residentie Vistalago

Project: Residentie Vistalago in San Miguel de Salinas

Stad: Wonen in San Miguel: rust en zon aan zee

2   2   65 m²   5 m²  

Penthouse met terras in residentie Talan 2
Penthouse met terras in residentie Talan 2

Project: Residentie Talan 2 in Torrevieja

Stad: Torrevieja-Alicante

2   2   76 m²   16 m²  

Villa met zwembad in residentie Gomera Star
Villa met zwembad in residentie Gomera Star

Project: Residentie Gomera Star in Torrevieja

Stad: Torrevieja-Alicante

3   3   115 m²   31 m²  

Herverkoop: appartement met 2 slaapkamers
Herverkoop: appartement met 2 slaapkamers

Project: Residentie Skandinavia IV in Torrevieja

Stad: Torrevieja-Alicante

2   2   60 m²   5.25 m²  

Ontdek het laatste nieuws!

Ontdek de rijke spaanse geschiedenis
Ontdek de rijke spaanse geschiedenis

Spanje, een land doordrenkt van geschiedenis en cultuur, heeft een unieke aantrekkingskracht op mensen over de hele wereld. Van de Middeleeuwen tot het moderne tijdperk heeft Spanje een opmerkelijke transformatie doorgemaakt. In deze blog duiken we in de boeiende geschiedenis van Spanje en ontdek...

Martine

De Belgische makelaar aan de Costa Blanca
De Belgische makelaar aan de Costa Blanca

Je wilt kopen in Spanje zonder zorgen. Bij Casas Kimpencio praat je in jouw taal en krijg je heldere uitleg bij elke stap. We zijn een Belgisch team dat in Spanje woont, de regio kent en jouw belangen verdedigt. Van selectie en bezichtiging tot notaris en nazorg. Zo wordt jouw droom aan de Costa ...

Martine

Pensioenhervorming in Spanje
Pensioenhervorming in Spanje

Ontdek hoe Spanje zijn pensioenen vernieuwt en waarom gepensioneerden vandaag meer zekerheid en koopkracht voelen dankzij de hervormingen en indexaties. 

...

Martine

square-box