Home Lopende projecten Alle Panden Over ons Ons team Ons kantoor Onze werkwijze Contacteer ons Blog Cookies

Palatino - Luxe villa met 3 slaapkamers in Aspe!

 Project: VILLAS DUO ROMA op maat te bouwen villa's in Aspe

Moderne villa op royaal perceel met privézwembad

Korte beschrijving:

PALATINO - VILLAS DUO ROMA ASPE

Nieuwbouwvilla met 3 slaapkamers en 2 badkamers op riant perceel in Aspe

Ben je op zoek naar een vrijstaande woning met ruimte, rust en alle comfort? De Palatino is een van de zorgvuldig ontworpen villa-modellen die je kunt kiezen om te bouwen op een rustiek perceel in de gemeente Aspe. Elk perceel is meer dan 10.000 m², waarvan ongeveer 2.500 m² wordt omheind voor optimale privacy.

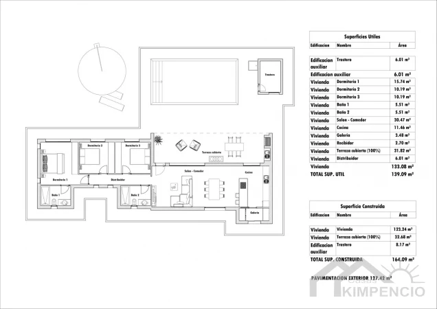
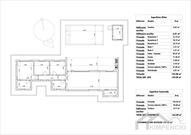
Met een bebouwde oppervlakte van 164 m², biedt de Palatino een moderne indeling met 3 slaapkamers en 2 badkamers, een open keuken, ruime leefruimte, berging, veranda en een privézwembad van 8x4 meter.

Deze woning wordt volledig nieuw gebouwd, op het perceel van jouw keuze. Het project wordt in eigen beheer uitgevoerd en de oplevering vindt plaats binnen ca. 12 maanden na vergunning.

De belangrijkste kenmerken van dit woningmodel:

  • 3 slaapkamers / 2 badkamers
  • bebouwde oppervlakte: 164 m²
  • Vrijstaande villa op >10.000 m² grond
  • Privézwembad van 8x4 en terras
  • Luxueuze keuken, moderne badkamers en inbouwkasten
  • Pre-installatie airconditioning

De perceelprijs start vanaf €77.500, afhankelijk van ligging en beschikbaarheid. Kies jouw ideale locatie en laat de Palatino bouwen naar jouw smaak - rust, ruimte en uitzicht inbegrepen.

Op zoek naar een plek waar je nog écht kunt genieten van stilte, natuur en vrijheid? Het Palatino model is jouw kans voor een nieuw leven onder de zon. Vraag vandaag nog info aan of plan een bezichtiging!

Wij helpen je graag bij het vinden van jouw droomhuis!

U bent nog niet aangemeld!

Na invullen van onderstaande gegevens wordt u aangemeld, indien er nog geen account bestaat kan deze aangemaakt worden!



 Geef ons uw mening...

 Momenteel nog geen reviews voor dit pand.

Uitgebreide beschrijving:

Nieuwbouwwoningen in Aspe, Alicante

Wonen in rust, ruimte en natuur - volledig op maat gebouwd op ruime percelen.

Met trots presenteren wij een bijzonder nieuwbouwproject in het hart van de provincie Alicante: ruime villa’s op royale rustieke percelen in de gemeente Aspe, een charmant en authentiek Spaans dorp op slechts 30 minuten van zee. Deze woningen bieden een unieke kans voor wie op zoek is naar rust, natuur en privacy, zonder in te leveren op comfort en bereikbaarheid.

Dit project biedt verschillende woningmodellen met keuze uit 3 of 4 slaapkamers, gebouwd op één of twee verdiepingen, met een structuur op maat of in prefab betonplaten. Alles wordt naar wens samengesteld: zowel het woningtype als het perceel zijn aanpasbaar aan jouw voorkeuren en budget. De prijs wordt dan ook bepaald op basis van het gekozen model én het perceel, met als richtprijs een grondstuk van €77.500 (de definitieve prijs hangt af van je perceelkeuze).

Waarom kiezen voor dit project in Aspe?

Elke villa wordt gebouwd op een rustiek perceel van meer dan 13.000 m², waarvan circa 2.500 m² wordt omheind en ingericht. Zo geniet je van volop privacy, ruimte en mogelijkheden tot tuinieren, dieren houden of gewoon ontspannen in de natuur. De woningen worden voorzien van een open keuken met woonkamer, volledig ingerichte badkamers, inbouwkasten, privézwembad (8x4 meter), veranda, berging en buitenparkeerplaats. Pre-installatie voor airconditioning is standaard inbegrepen.

De belangrijkste kenmerken: 

  • Keuze uit meerdere woningmodellen: 3 of 4 slaapkamers
  • Complete en luxe badkamers voorzien van alle sanitair
  • Moderne keuken met luxueuze afwerking
  • Gelijkvloers of met verdieping - volledig op maat
  • Woning op rustiek perceel van >10.000 m² (±2.500 m² omheind)
  • Privézwembad en ruime veranda inbegrepen
  • Berging en buitenparkeerplaats
  • Pre-installatie airconditioning

De beschikbare modellen/villa's op een rijtje: 

Villa Model Oppervlakte (m²) Slaap-
kamers
Bad-
kamers
Gestempeld Beton (m²)
CRISTAL-3 189,78 m² 3 3 136 m²
CRISTAL PLUS-4 248,95 m² 4 3 129 m²
PALATINO 164,09 m² 3 2 128 m²
PLAZA ESPAÑA 190,04 m² 3 2 136 m²
STONE-3 188,32 m² 3 3 132 m²
STONE PLUS-4 223,71 m² 4 3 126 m²


Waarom Aspe?

Aspe is een typisch Spaans dorp, geliefd om zijn authentieke sfeer, gastvrije gemeenschap en alle voorzieningen die je nodig hebt voor het dagelijks leven. Supermarkten, scholen, horeca en medische zorg bevinden zich op korte afstand. Gelegen op slechts 9 km van Elche, 25 km van de stranden van de Costa Blanca en circa 20 km van de luchthaven van Alicante, biedt Aspe de perfecte balans tussen rust en bereikbaarheid. De omliggende natuur is ideaal voor wandel- en fietsliefhebbers en nodigt uit tot een gezond buitenleven onder de zon.

Of je nu op zoek bent naar een permanente woning, een tweede verblijf in de natuur of een waardevaste investering met veel potentieel, dit project in Aspe is het ontdekken meer dan waard.

Interesse? Neem vandaag nog contact op voor meer informatie of plan een bezichtiging in! Ontdek hoe jouw droomhuis is Aspe werkelijkheid wordt!


Kenmerken:

Aantal slaapkamers 3
Aantal badkamers 2
Privaat zwembad Ja
Oppervlakte perceel rond het huis 13172 m²
Bebouwde oppervlakte 164 m²
Bewoonbare oppervlakte 139 m²
Afstand naar het strand 40 km
Terras oppervlakte 32 m²
Private Tuin Ja
Poort Ja
Nabij Scholen Ja
Terras Ja
Douche schermen Ja
Buitenkeuken Ja
Jaccuzi Ja
Nabij bushalte Ja
Pré installatie airco Ja
Led verlichting buiten Ja
Led verlichting binnen Ja
privé parkeerplaats Ja
Telefoon Data aansluiting Ja
Videofonie Ja
Inbouwkasten Ja
Aero thermische warmtepomp Ja
Badkamer spiegels Ja
Berging Ja
Uitzicht tuin Ja
Domotica Ja
Golfresort afstand in km 5-10 km
Ziekenhuis afstand in km 5-10 km
Nabij Commercieel centrum Ja
Luchthaven Alicante afstand 20-30 km
Luchthaven Murcia afstand 50+ km
Uitzicht bergen Ja
Ontspanning ruimte buiten Ja
Hangend toilet Ja
Hangend badkamer meubel Ja
Security glas met uv filter Ja
Dampkap Ja
Gepantserde toegangsdeur met veiligheidsslot Ja
Grote ramen van vloer tot plafond Ja
Hoogwaardige afwerking Ja
Goede prijs-kwaliteit verhouding Ja
Aerothermische boiler Ja
Hoge plafonds Ja
Meubelpakket Optioneel
Bouwgrond en nieuw te bouwen villa Ja
Luxe nieuwbouw Ja
Extra grote ramen uitkijkend op tuin en zwembad Ja
Kijkwoning Ja
Goed gebied voor rentabiliteit van huur Ja
Energielabel A
Afgewerkte badkamer Ja
Bouwtermijn na contract 12 maand Ja

Meer info?


Beschikbare documenten

1.webp

document-1.webp

download
2.webp

document-2.webp

download
3.webp

document-3.webp

download

Ontdek ook de andere panden op onze website!

Penthouse nabij zee Playa de El Cura
Penthouse nabij zee Playa de El Cura

Project: ALTEA VI appartementen nabij zee in Torrevieja

Stad: Torrevieja-Alicante

2   2     86 m²   29 m²  

Gelijkvloers appartement tuin in residentie Njoy
Gelijkvloers appartement tuin in residentie Njoy

Project: COMING SOON njoy eerste lijn villa's Villajoyosa

Stad: Villajoyosa-Benidorm

2   1   50 m²   25 m²  

Instapklare villa Spanje met zwembad koop
Instapklare villa Spanje met zwembad koop

Project: Wonen in Vistabella Plaza Golf- Luxe & natuur

Stad: Orihuela-Alicante

2   2     73 m²   150 m²  

Villas San Mariano villa kopen Torre Pacheco?
Villas San Mariano villa kopen Torre Pacheco?

Project: Villas San Mariano villa Torre Pacheco kopen?

Stad: Torre-Pacheco - Murcia

3   2     84 m²   149 m²  

Penthouse bungalow Torrevieja en uitzicht zoutmeer
Penthouse bungalow Torrevieja en uitzicht zoutmeer

Project: Los Balcones de Vivi in Los Balcones Torrevieja

Stad: Torrevieja-Alicante

2   2     63 m²   33 m²  

Bungalow kopen Torrevieja 2 slpk groot terras
Bungalow kopen Torrevieja 2 slpk groot terras

Project: Los Balcones de Vivi in Los Balcones Torrevieja

Stad: Torrevieja-Alicante

2   2     63 m²   64 m²  

Investeren in villa Almoradi 4 slpk met extra’s
Investeren in villa Almoradi 4 slpk met extra’s

Project: Essence II-Las Heredades nabij Rojales-Alicante

Stad: Las Heredades

4   3     140 m²    

Villa kopen in Mutxamel Bonalba Green
Villa kopen in Mutxamel Bonalba Green

Project: Bonalba Green in Mutxamel met zeezicht

Stad: Mutxamel- Alicante

4   3     273 m²   56 m²  

ALHAMA NATURE RESORT penthouse kopen Murcia
ALHAMA NATURE RESORT penthouse kopen Murcia

Project: Condado De Alhama Bungalows Front Line golf

Stad: Alhama de Murcia

2   2   89 m²    

Modern Appartement eerste verdiep Finestrat
Modern Appartement eerste verdiep Finestrat

Project: Moderne appartementen met terras in Finestrat

Stad: Finestrat-Benidorm

3   2     116 m²   19 m²  

Investeren in villa Hacienda del Alamo golf resort
Investeren in villa Hacienda del Alamo golf resort

Project: Vrijstaande villas in Hacienda del Álamo Golf

Stad: Hacienda del Álamo Golf Resort-Roldan

3   2     114 m²    

Hoek villa kopen in SIERRA VERDE Finestrat?
Hoek villa kopen in SIERRA VERDE Finestrat?

Project: Investeren in SIERRA VERDE villa nabij Benidorm

Stad: Finestrat-Benidorm

3   3     143 m²   24 m²  

Leer Spanje nóg beter kennen via onze blogs!

Nieuwbouw vs bestaande woning Spanje kiezen
Nieuwbouw vs bestaande woning Spanje kiezen

Nieuwbouw of bestaande woning kopen in Spanje lijkt een eenvoudige keuze… tot je er écht induikt.

Want wat op het eerste zicht goedkoper lijkt, kan op lange termijn duurder uitvallen. En wat duurder lijkt, kan net de slimste investering zijn.

Bij Casas Kimpencio zien we dagelij...

Martine

Casas Kimpencio specialist vastgoed Spanje!
Casas Kimpencio specialist vastgoed Spanje!

Casas Kimpencio Vastgoed Spanje groeit uit tot dé referentie voor wie een huis wil kopen in Spanje

Huis kopen in Spanje met Casas Kimpencio Nederlandstalige makelaar


...

Martine

Vliegschow Los Alcázares beleven in Spanje
Vliegschow Los Alcázares beleven in Spanje

Het spektakel van de vliegfeesten, de unieke ligging aan de Mar Menor en de aantrekkelijke vastgoedkansen in de regio. 

De vliegfeesten in Los Alcázares zijn een uniek spektakel boven de Mar Menor, met internationale airshows, historische roots en een levendige sfeer.

Wat wei...

Martine

square-box
Tine
Vragen over panden, projecten en onze content
Snel starten:

Hallo, ik ben Tine je kan bij mij terecht met al je vragen over panden, projecten en onze content. Ik antwoord alleen op basis van de beschikbare website-inhoud.