Home Lopende projecten Alle Panden Over ons Ons team Ons kantoor Onze werkwijze Contacteer ons Blog Cookies

Penthouse met solarium in Sunrise Beach

 Project: Residentie Sunrise Beach in El Campello

Nieuwbouwappartementen op 200 meter van het strand

Korte beschrijving:

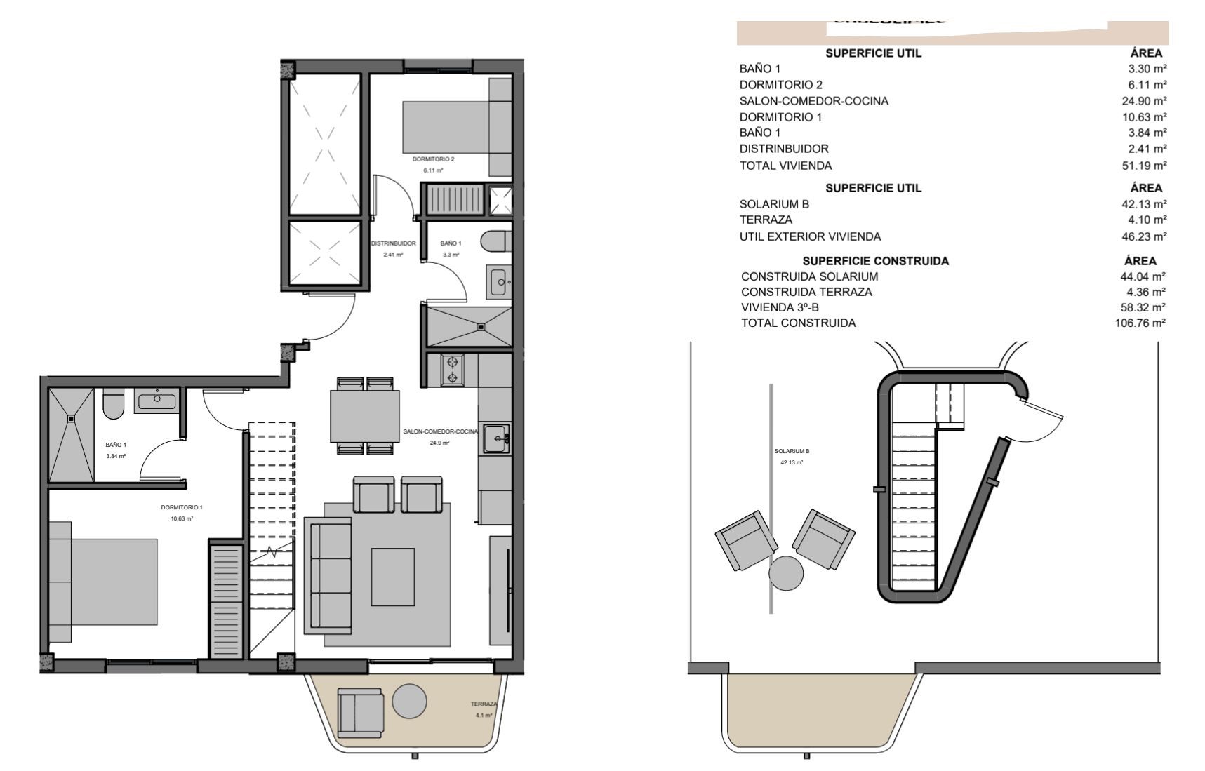
PENTHOUSE – 2 SLAAPKAMERS – TERRAS VAN 4M² + SOLARIUM VAN 42M² – EL CAMPELLO

Dit appartement combineert het comfort van een woning met het gemak van een appartement en valt meteen op door zijn uitzonderlijke buitenruimte. Via de gemeenschappelijke trappenhal kom je binnen in een doordacht ingedeelde woning waar eetruimte, L-vormige keuken en woonkamer logisch in elkaar overlopen. Grote schuiframen zorgen voor veel lichtinval en geven directe toegang tot het aangelegde terras, waardoor binnen en buiten één geheel vormen.

De woning beschikt over twee volwaardige slaapkamers en twee badkamers. De hoofdslaapkamer heeft een badkamer-ensuite, wat zorgt voor een aangenaam hotelgevoel. De andere slaapkamer heeft ook een eigen badkamer, maar geen ensuite. Inbouwkasten en afgewerkte badkamers maken het geheel instapklaar en praktisch voor dagelijks gebruik.

Een absolute troef is de totale buitenruimte van maar liefst 4 m², een verdieping hoger is jouw privésolarium te vinden van 42m². In combinatie met het gemeenschappelijk zoutwaterzwembad, de ondergrondse parkeerplaats met berging en de ligging op wandelafstand van zee en promenade, biedt dit appartement een zeldzame mix van ruimte, comfort en kustbeleving in El Campello.

U bent nog niet aangemeld!

Na invullen van onderstaande gegevens wordt u aangemeld, indien er nog geen account bestaat kan deze aangemaakt worden!



 Geef ons uw mening...

 Momenteel nog geen reviews voor dit pand.

Uitgebreide beschrijving:

Dit appartement is gelegen op de bovenste verdieping en voorzien van 2 slaapkamers met 2 badkamers. We nemen even een wandeling doorheen de woning. Het betreden via de woning gebeurt via de gemeenschappelijke trappenhal. Via de beveiligde voordeur kom je terecht in de eetruimte. 

De eetruimte mondt uit in de L-vormige keuken. De keuken is voorzien van onder- en bovenkasten en volgende elektrische toestellen; koelkast, inductiekookplaat, dampkap, wasmachine, vaatwas. Deze apparaten zijn allemaal van het merk Bosch of gelijkaardig. 

De keuken staat op zijn beurt dan weer rechtstreeks in verbinding met de woonkamer. Deze woonkamer heeft via grote schuiframen rechtstreekse toegang tot het balkon. Deze woning is voorzien van 2 slaapkamers met 2 badkamers. 

De hoofdslaapkamer is te bereiken via de eetruimte. Daar is de hoofdslaapkamer met badkamer-ensuite gelegen. Elke slaapkamer is voorzien van inbouwkasten met hangrekken, legplanken en lades. 

De andere slaapkamer heeft ook een eigen badkamer, maar geen ensuite. De badkamers zijn uitgerust met een wastafel, bijpassend meubel, toilet en douche. 

DUS CONCREET: 

  • 2 slaapkamers
  • 2 badkamers
  • Uitgeruste keuken met toestellen 
  • Afgewerkte badkamer 
  • Terras van 4m²
  • Solarium van 42m²

Deze woning is gelegen op de bovenste verdieping. Er is een balkon van 4m² voorzien, aansluitend aan de woonkamer. Nog een verdieping hoger, is jouw privésolarium gelegen van 42m². Op het dakterras kan je de hele dag door genieten van de zon én prachtige zichten. Deze woning is voorzien van een ondergrondse parkeerplaats met berging. 

Dit appartement is gelegen in residentie Sunrise Beach, met tal van gemeenschappelijke voorzieningen. Allereerst is er een gemeenschappelijk zwembad voorzien dat onderhouden wordt door zoutwater. Dit is aangenamer voor de huid om in te zwemmen. Rondom het zwembad is er een ruime ligweide voorzien om optimaal in te kunnen ontspannen. 

In het gebouw zijn er 2 liften voorzien met een capaciteit voor 6 personen, hierdoor is toegankelijkheid en bereikbaarheid verzekerd, ook op de oudere dag. 

TECHNISCHE KENMERKEN: 

  • Elektrische rolluiken ( niet in de keuken en badkamers ) 
  • Dubbele beglazing 
  • Volledige airconditioning 
  • Verwarming / verkoeling via warmtepomp
  • Sanitair warm water via aerothermisch systeem
  • Verlichting op het terras

Deze woning is gelegen in El Campello. El Campello, gelegen aan de noordelijke Costa Blanca, is een aantrekkelijke kustplaats die traditie, zee en modern comfort moeiteloos combineert. Op slechts 200 meter van het strand leef je hier met de Middellandse Zee altijd dichtbij. El Campello staat bekend om zijn lange promenade, brede stranden en aangename, open sfeer. Het dorp heeft zijn authentieke karakter weten te behouden, terwijl het tegelijk alle voorzieningen biedt van een volwaardige kuststad. Het dagelijkse leven speelt zich af tussen zee, terrasjes en rustige wandelingen langs het water.

Het centrum van El Campello is levendig maar overzichtelijk. Je vindt er lokale winkels, restaurants, cafés en markten die het hele jaar door geopend zijn. De tramverbinding langs de kust is een grote troef en verbindt El Campello rechtstreeks met Alicante en Benidorm, waardoor mobiliteit eenvoudig blijft zonder afhankelijk te zijn van de auto. De jachthaven en vissershaven geven het dorp een maritieme uitstraling en herinneren aan de sterke band met de zee.

De stranden van El Campello zijn gevarieerd en natuurlijk, met zowel lange zandstranden als kleinere baaien met helder water. Dankzij het milde klimaat en de zuivere zeelucht is het hier het hele jaar aangenaam vertoeven. Ook het binnenland ligt vlakbij, met wandelroutes, heuvels en open landschappen die zorgen voor afwisseling en rust.

Wat veel mensen niet weten, is dat El Campello een rijke geschiedenis heeft die teruggaat tot de Iberische en Romeinse tijd. Net buiten het centrum liggen archeologische zones en oude wachttorens die ooit dienden ter verdediging tegen piraten. Deze historische lagen geven de omgeving extra diepgang en karakter.

Daarnaast heeft El Campello een opvallend evenwicht tussen levendigheid en rust. Buiten het hoogseizoen blijft het dorp actief, maar zonder de drukte van grotere badplaatsen. Vooral ’s avonds, wanneer de zon ondergaat en de promenade zich vult met zacht licht en gesprekken, toont El Campello zijn meest authentieke en ontspannen kant.

AFSTANDEN: 

  • Strand: ±200 m

  • Promenade El Campello: ±200 m

  • Restaurants & bars: ±300 m

  • Supermarkt: ±400 m

  • Centrum El Campello: ±500 m

  • Jachthaven: ±800 m

  • Alicante centrum: ±12 km

  • Winkelcentrum (Alicante): ±10 km

  • Ziekenhuis: ±10 km

  • Golfbanen: ±15 km

  • Luchthaven Alicante: ±25 km

Onze visie binnen Casas Kimpencio;

  • Bij Casas Kimpencio ben je niet zomaar iemand, wij willen een persoonlijke relatie aangaan.
  • We behandelen jullie zoals we zelf behandeld willen worden, met de nodige betrokkenheid, precisie en details.
  • Geen enkele vraag is ons te veel, we staan elke dag telefonisch voor jou klaar.
  • Wij hebben de gedachte dat een huis kopen niet zomaar een huis kopen is, maar een nieuwe thuis kopen.
  • Iedereen dient een eigen verhaal te krijgen, met verschillende hoofdstukken. 
  • Wij willen helpen aan het Spaanse hoofdstuk, een hoofdstuk van een nieuwe thuis, vakantiewoning of een investering.
  • En dit doen we met open, duidelijke communicatie  en daarmee geraken we er altijd, zo vinden we jouw ideale woning gebaseerd op meerdere gesprekken.
  • We helpen vanaf het begin tot aan de sleuteloverdracht, en ver daarbuiten. 

Wij vinden deze woning bijzonder omdat;

  • Totale buitenruimte van maar liefst 4m² + solarium van 42m² ideaal voor loungen, dineren en ontspannen

  • Slimme indeling met centrale eetruimte creëert een natuurlijke flow tussen keuken, woonkamer en buitenruimte

  • L-vormige keuken met kwaliteitsvolle Bosch-toestellen biedt veel werkruimte en maakt koken praktisch én gezellig

  • Woonkamer met grote schuiframen naar het terras laat binnen en buiten perfect in elkaar overvloeien

  • Hoofdslaapkamer met badkamer-ensuite geeft een echt privé- en hotelgevoel

  • Twee volwaardige slaapkamers maken de woning perfect voor gezinnen, gasten of een combinatie van wonen en werken

  • Twee volledig afgewerkte badkamers verhogen het dagelijks comfort en de gebruiksvriendelijkheid

  • Ondergrondse parkeerplaats met privéberging inbegrepen zorgt voor zorgeloos parkeren en extra opbergruimte

  • Gemeenschappelijk zoutwaterzwembad biedt een aangenamere zwemervaring en een echt resortgevoel

  • Ruime ligweide rond het zwembad nodigt uit tot ontspanning zonder drukte

  • Twee liften in het gebouw garanderen comfort, toegankelijkheid en toekomstgericht wonen

  • Volledige airconditioning met warmtepomp zorgt voor energiezuinig comfort in elk seizoen

  • Topligging op wandelafstand van zee, promenade en centrum van El Campello combineert strandgevoel met dagelijkse voorzieningen

WONINGEN BINNEN RESIDENTIE SUNRISE BEACH: 

Type woning  Aantal slaapkamers / badkamers  Bebouwde oppervlakte  Buitenruimte in m² Prijs 
Gelijkvloers appartemnet  3/2 83m² 117m² €535.000
Appartement met terras  2/2 61m² 4m² €355.000
Appartement met terras  3/2 74m² 7m² €400.000
Penthouse met solarium  2/2 58m² 48m² €460.000
Penthouse met solarium 3/271m²74m²€600.000

GROEI EN TRENDS IN EL CAMPELLO: 

Jaar  Prijs per m² Jaarlijkse stijging 
2023 €2.222 -
2024 €2.491 +12.1%
2025 €2.836 +13.9%


Kenmerken:

Aantal slaapkamers 2
Aantal badkamers 2
Bebouwde oppervlakte 58 m²
Bewoonbare oppervlakte 51 m²
Afstand naar het strand 0.2 km
Terras oppervlakte 4 m²
Gedeeld zwembad Ja
Poort Ja
Nabij Scholen Ja
Nabij Commercieel centrum Ja
Terras Ja
Fietsafstand van het strand Ja
Douche schermen Ja
Solarium Ja
Solarium oppervlakte in m2 40-50 m²
Volledige airco installatie Ja
Elektrische rolluiken Ja
Led verlichting buiten Ja
Led verlichting binnen Ja
Zeezicht Ja
privé parkeerplaats Ja
Ondergrondse parking Ja
Telefoon Data aansluiting Ja
Videofonie Ja
Inbouwkasten Ja
Aero thermische warmtepomp Ja
Elektrische poort Ja
Badkamer spiegels Ja
Alle keuken apparatuur volledig inbegrepen Ja
Kookplaat Dampkap Magnetron & Oven Ja
Nabij kinder speeltuin Ja
Berging Ja
Gedeelde tuin Ja
Uitzicht tuin Ja
Golfresort afstand in km 5-10 km
Ziekenhuis afstand in km 10-20 km
Luchthaven Alicante afstand 20-30 km
Luchthaven Murcia afstand 50+ km
Gedeelde kosten Ja
Lift Ja
Ontspanning ruimte buiten Ja
Hangend toilet Ja
Hangend badkamer meubel Ja
Volledig ingerichte keuken Ja
Dampkap Ja
Gepantserde toegangsdeur met veiligheidsslot Ja
Hoogwaardige afwerking Ja
Aerothermische boiler Ja
Penthouse Ja
Luxe nieuwbouw Ja
Goed gebied voor rentabiliteit van huur Ja
Wandelafstand van het strand Ja
Energielabel B
Afgewerkte badkamer Ja

Meer info?


Beschikbare documenten

penthouse 2-2.jpeg

document-penthouse 2-2.jpeg

download

Ontdek wat we nog meer voor jou in petto hebben!

Studio met verhuurlicentie in Finestrat
Studio met verhuurlicentie in Finestrat

Project: Appartement met verhuurlicentie Costa Blanca

Stad: Finestrat-Benidorm

0   1     36 m²   1 m²  

Appartement met ruim terras in Corallia Resort
Appartement met ruim terras in Corallia Resort

Project: Residentie Corallia in Punta Prima - F1

Stad: Punta Prima

3   2   109 m²   17 m²  

Penthouse met solarium - Velapi Golf blok 3
Penthouse met solarium - Velapi Golf blok 3

Project: Velapi Golf appartementen - blok 3

Stad: Los Alcazares

2   2   88 m²   18 m²  

DUNAS DE VERA appartement kopen Vera Playa
DUNAS DE VERA appartement kopen Vera Playa

Project: Toeristisch appartement met privéstrand Vera

Stad: Vera- regio Costa Almeria Andalusië

2   1     55 m²   29 m²  

Toeristisch appartement met terras en zwembad
Toeristisch appartement met terras en zwembad

Project: Toeristische appartementen Karibe Heritage Resort

Stad: Lo Pagán aan de Mar Menor

2   2   82 m²   13 m²  

Gelijkvloers appartement met tuin resort El Raso
Gelijkvloers appartement met tuin resort El Raso

Project: Gemeubelde Appartementen El Raso Guardamar

Stad: Guardamar del segura- Alicante

2   2     65 m²   16 m²  

Penthouse met groot terras La Nucía
Penthouse met groot terras La Nucía

Project: Investeren in modern project aan Costa Blanca

Stad: La Nucia

2   2     73 m²   113 m²  

Appartement kopen in Los Alcázares ?
Appartement kopen in Los Alcázares ?

Project: Luxe appartementen – La Serena Breeze 3

Stad: Los Alcazares - Murcia - Mar Menor

2   2     73 m²   15 m²  

Gelijkvloers appartement met tuin aan Serena Golf
Gelijkvloers appartement met tuin aan Serena Golf

Project: Serena View I -Appartementen in la serena golf

Stad: Los Alcazares

2   2     76 m²   60 m²  

Ruim toeristisch appartement in Vera Playa
Ruim toeristisch appartement in Vera Playa

Project: Toeristisch vastgoed Spanje investering Vera Playa

Stad: Vera- regio Costa Almeria Andalusië

3   2     93 m²   12 m²  

Opbrengst-appartement in Aguilas
Opbrengst-appartement in Aguilas

Project: Investeren in appartementen vlak bij zee Águilas

Stad: Aguilas

2   1     61 m²   6 m²  

Ruim penthouse vlak bij strand Guardamar en zee
Ruim penthouse vlak bij strand Guardamar en zee

Project: Nieuwbouw appartementen in Guardamar del Segura

Stad: Guardamar del segura- Alicante

2   2     65 m²   50 m²  

Lees mee met onze nieuwste blogs!

De mooiste autoroute in Spanje van oost naar west
De mooiste autoroute in Spanje van oost naar west

Je begint aan de Middellandse Zee en rijdt dwars door het hart van Spanje. Onderweg ontdek je bergen, valleien, middeleeuwse dorpen en diepe kloven. Elke bocht toont een nieuw uitzicht dat je even stil laat worden. Deze route van oost naar west laat je Spanje voelen zoals het echt is.

...

Martine

Driekoningen en kersttradities in Spanje
Driekoningen en kersttradities in Spanje

Wie in Spanje woont of er langere tijd verblijft, merkt al snel dat Driekoningen (Día de los Reyes Magos) minstens zo belangrijk is als Kerstmis. Op 6 januari draa...

Juliette

Valor Catastral en belastingen in Spanje
Valor Catastral en belastingen in Spanje

Alles over het Kadastraal Inkomen (Valor Catastral) in Spanje – Belasting, Berekening & Voorbeelden

Alles wat je moet weten over het kadastraal inkomen in Spanje. Het kopen van een woning in Spanje is een droom voor velen.

Maar net als in België en Nederland moet je als eigena...

Martine

square-box
Tine
Vragen over panden, projecten en onze content
Snel starten:

Hallo, ik ben Tine je kan bij mij terecht met al je vragen over panden, projecten en onze content. Ik antwoord alleen op basis van de beschikbare website-inhoud.