Home Lopende projecten Alle Panden Over ons Ons team Ons kantoor Onze werkwijze Contacteer ons Blog Cookies

Luxe woningen in Aspe: Geniet van moderne voorzieningen

 Project: Zelf bouwen villa op groot plot in Aspe Alicante

En adembenemende uitzichten in deze betoverende omgeving!

Korte beschrijving:

Welkom in het betoverende Aspe, waar de charme van het Spaanse platteland tot leven komt in deze prachtige nieuwe villa's.

Deze gelijkvloerse parels rusten op een weids perceel van maar liefst 10.548 m2, waarvan 2.500 m2 omheind is, waardoor je geniet van een oase van rust en ruimte.

Met 3 slaapkamers en 2 badkamers bieden ze alle comfort en luxe die je zoekt, terwijl de rustieke omgeving je omarmt met zijn serene schoonheid.

Stap binnen in de ruime en lichte leefruimte, waar een open keuken met zithoek uitnodigt tot gezellig samenzijn. Inbouwkasten bieden voldoende opbergruimte, terwijl grote ramen uitkijken op de weelderige tuin en het privézwembad, een waar toevluchtsoord voor verfrissing en ontspanning.

Met een eigen parkeerplaats is het gemakkelijk om te genieten van het rustige Spaanse leven, omringd door de majestueuze bergen die dit gebied sieren.

U bent nog niet aangemeld!

Na invullen van onderstaande gegevens wordt u aangemeld, indien er nog geen account bestaat kan deze aangemaakt worden!



 Geef ons uw mening...

 Momenteel nog geen reviews voor dit pand.

Uitgebreide beschrijving:

Welkom in het betoverende Fontana di Trevi-model, waar hedendaagse elegantie en verfijning samenkomen in een architectonisch meesterwerk

Het zal je betoveren vanaf het moment dat je binnenstapt. Dit unieke model omarmt moderne esthetiek met zijn omgekeerd plat dak, een kenmerk dat niet alleen een eigentijds tintje toevoegt, maar ook een statement maakt van verfijning en innovatie. De strakke lijnen en naadloze afwerking zorgen voor een verbluffend visueel effect, terwijl het niet-begaanbare ontwerp een gevoel van exclusiviteit en privacy creëert.

De gevel, prachtig gecombineerd met natuursteen metselwerk, vormt een adembenemend contrast dat de aandacht trekt en een blijvende indruk achterlaat.

Elk detail is zorgvuldig overwogen om een harmonieus geheel te creëren dat uw huis tot een echte blikvanger maakt.

Stap binnen en ontdek de weelderige keuken, compleet met een centraal eiland dat het middelpunt vormt van de ruimte. Hier wordt koken een kunstvorm, terwijl het centrale eiland een ontmoetingsplaats wordt voor familie en vrienden.

Met zijn moderne ontwerp en hoogwaardige afwerking is deze keuken een droom die uitkomt voor elke kookliefhebber. Laat je betoveren door het Fontana di Trevi-model en ervaar de perfecte fusie van luxe en verfijning. Hier wacht een leven vol schoonheid en comfort op je, waar elk detail is ontworpen om je te inspireren en te verwonderen. 

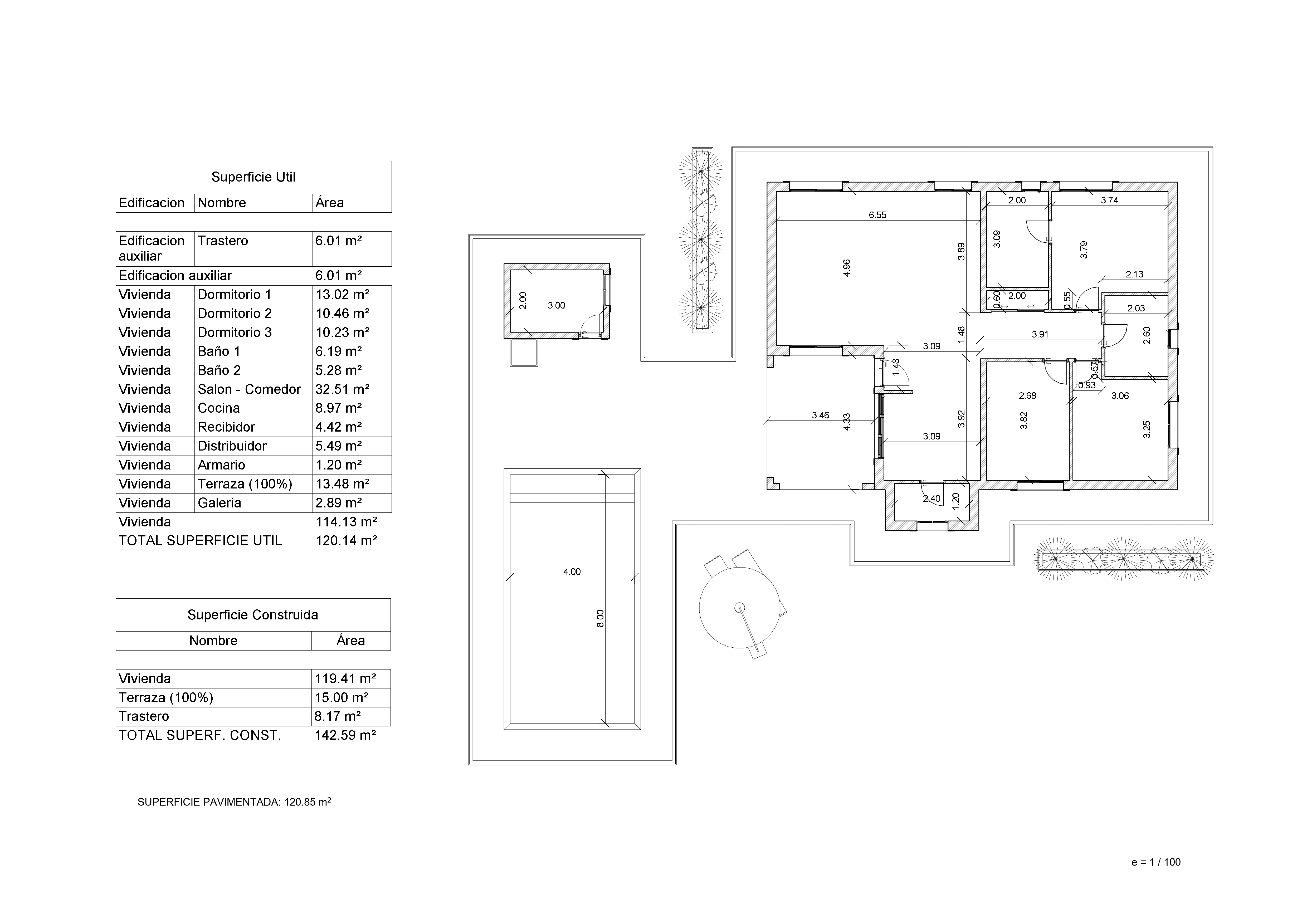
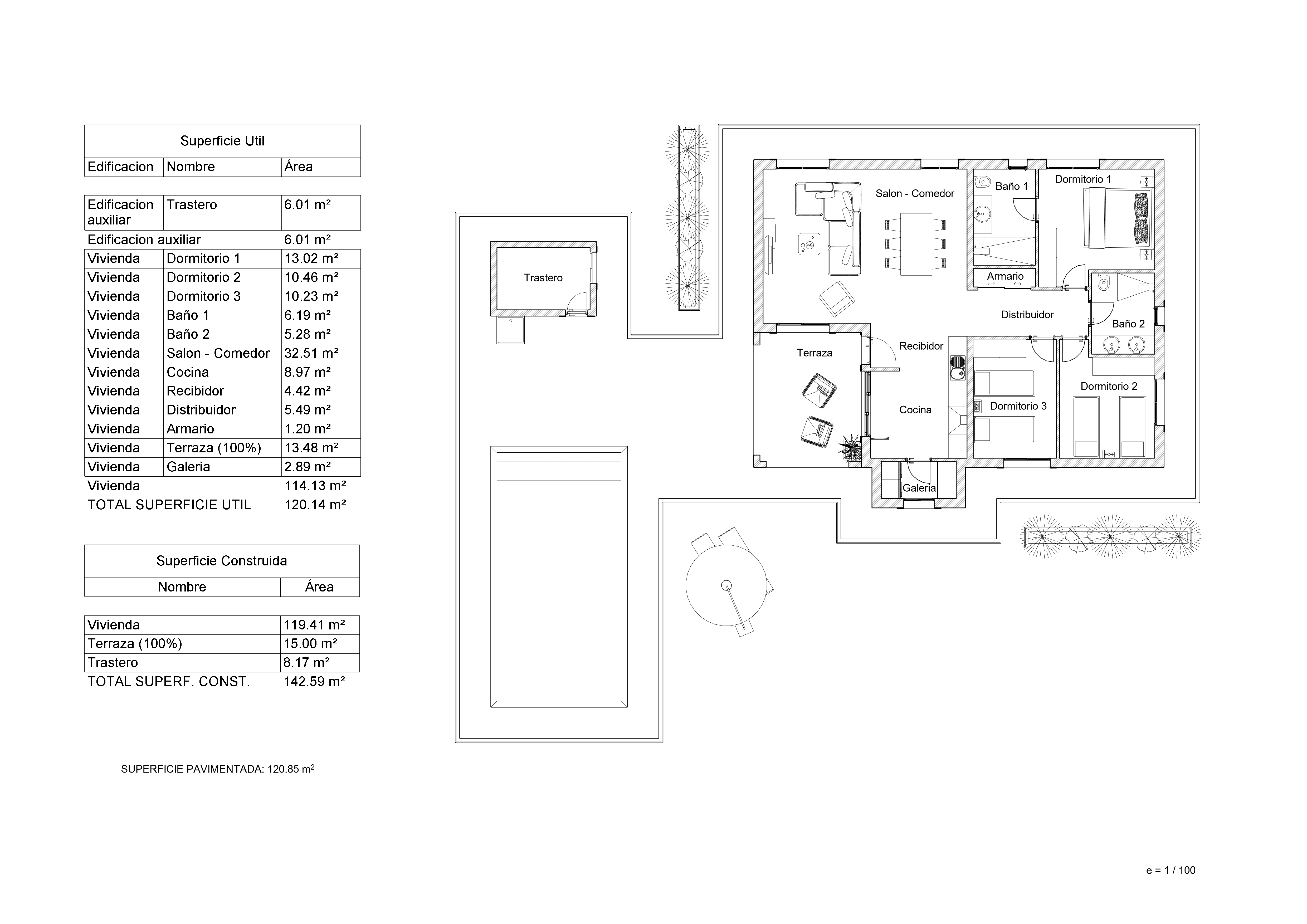
Hieronder vind je een aangenaam overzicht van de specificaties van woningmodel COLISEO – een moderne villa met 3 slaapkamers en 2 badkamers:

Fundering en constructie

  • Geïsoleerde voetstallen met verbindingsbalken
  • Versterkte betonnen constructie volgens de actuele normen

Gevel

  • Afwerking met wit of kleur naar keuze (monocouche pleisterwerk)
  • Muren opgebouwd uit thermoklei bakstenen (14 cm) met een EPS-geïsoleerde holte (4 cm) en een afwerklaag van 8 cm baksteen met cementpleister

Dak

Vierzijdig zadeldak met traditionele dakpannen

Exterieur (Carpentry)

  • Versterkte toegangdeur met veiligheidssluiting en anti-leverage scharnieren
  • Zwarte aluminium kozijnen met thermische onderbreking, Climalit beglazing, en vensterbanken in Capri kalksteen (of vergelijkbaar)

Interieur (Carpentry)

Witte, gelakte binnendeuren met bijpassende lijstafwerking en stalen handgrepenIngebouwde kledingkasten tot aan het plafond met elegante afwerking en geïntegreerde opbergoplossingen

Scheidingswanden

Interne wanden vervaardigd uit 8 cm bakstenen, afgewerkt met gipspleister

Vloer- en wandafwerking

  • Keuze uit vloeropties in porselein steenkolven, aangepast aan jouw wensen
  • Antislip vloer voor overdekte terrassen
  • Perimeter van de villa afgewerkt met bedrukt beton

Badkamers

  • Vloer- en wandafwerking in premium keramische tegels
  • Sanitaire voorzieningen in wit vitrified porselein
  • Douches voorzien van vaste glazen panelen (1 meter)
  • Chrome enkele hendelkranen en stijlvolle, ingebouwde wastafelmeubels (80 cm in de hoofd- en 60 cm in de gastentoiletten)

Keuken

  • Volledig uitgeruste keuken met kasten tot aan het plafond
  • Werkblad in Silestone (of vergelijkbaar) met ruimte voor kookplaat, eiland en voorgeïnstalleerde ruimte voor een afzuigkap
  • Roestvrijstalen gootsteen en enkele kranen
  • Frontmuur afgewerkt met premium keramische tegels, met opties voor verdere personalisatie

Plafonds en afwerking

  • Verticale en horizontale oppervlakken afgewerkt met een matte witte, plastic verf
  • Valse plafonds in gipskarton, met verwijderbare panelen in badkamers voor toegang tot installaties

Elektriciteit, TV en Telefoon

  • Hoogwaardige lage spanningsinstallatie met premium schakelaars en stopcontacten
  • TV- en data-aansluitpunten in slaapkamers, woonkamer en pergola
  • Video-intercom met beeldscherm en vooraf geïnstalleerde leidingen voor extra verlichting

Klimaatbeheersing en warm water

  • Vooraf geïnstalleerde airconditioning (warm/koud pomp) via luchtafvoersystemen in woon- en slaapkamer
  • Elektrische boiler van 100 liter voor warm water
  • Vooraf geïnstalleerde schoorsteen voor rookafvoer in de woonkamer

Duurzame energie

  • Voorbereiding voor fotovoltaïsche zonnepanelen op het dakterras voor zelfconsumptie
  • Ventilatie Vertical ventilatiesysteem met geïntegreerde roosters voor een optimale energie-efficiëntie

Afvalwaterbeheer

Afvalwaterafvoer via een 3.000-liter septic tank

Perceelsomheining

  • Automatische schuifpoort (4,00 m x 2,20 m) met motor
  • Voorgevel met twee gabionmuren (elk 2,50 m x 2,20 m)
  • Geïntegreerde brievenbus in de voetgangerspoort
  • Ongeveer 2.500 m² omheining met gegalvaniseerd maasnet (1,75 m hoog)
  • Twee waterpunten op het perceel

Zwembad

  • Zwembad van 8,00 m x 4,00 m, afgewerkt met mozaïektegels en een witte rand, voorzien van 2 LED-verlichting
  • Opslagruimte voor de zwembadpomp (2,00 m x 3,00 m) met metalen toegang, raam en buitendouche
  • Afwerking van de zwembadomheining met bedrukt beton
  • Optioneel: Kunstgrasoppervlak van ca. 15 m²

Energieprestatie

Verbeterde bouwoplossingen zorgen voor een optimale energieclassificatie

Dit uitgebreide specificatieblad van model COLISEO biedt je een duidelijk beeld van een zorgvuldig ontworpen en kwalitatief hoogwaardige woning, ideaal voor wie op zoek is naar moderne luxe en efficiëntie in een zelf bouw project.Heb je vragen of wil je meer informatie? Wij staan graag voor je klaar!

Aspe is een ideale locatie voor wie droomt van een villa in een authentieke, rustige omgeving met een echte Spaanse sfeer.

Hier zijn enkele redenen waarom het kopen van een villa in Aspe een slimme investering en levensstijlkeuze is:

1. Authentieke Spaanse levensstijl met cultuur en traditie:

  • Aspe ademt de traditionele Spaanse cultuur, met gezellige pleinen, lokale festivals en een warme gemeenschap. Het is de perfecte plek om te genieten van authentieke gastronomie, ambachtelijke producten en lokale tradities.
  • Rust en ontspanning: De omgeving van Aspe biedt een rustige, landelijke ambiance. Het is ideaal voor wie even wil ontsnappen aan de hectiek van grote steden.

2. Betaalbare vastgoedprijzen

  • Goede Waarde: In vergelijking met de prijzige vastgoedmarkten in grote steden en populaire kustgebieden, biedt Aspe aantrekkelijke prijzen voor villa’s. Dit maakt het een interessante optie voor zowel starters als investeerders.
  • Potentieel voor waardestijging: Met de groeiende interesse in minder bekende, authentieke Spaanse dorpen, is er een potentieel voor waardestijging op de lange termijn.

3. Natuurlijke schoonheid en ligging

  • Prachtige Landschappen: Omringd door groene heuvels en pittoreske uitzichten, biedt Aspe een natuurrijke omgeving die uitnodigt tot outdoor activiteiten, wandelen en fietsen.
  • Goede Bereikbaarheid: Ondanks de landelijke setting is Aspe goed bereikbaar. Nabijgelegen snelwegen en steden zoals Murcia zorgen voor gemakkelijke verbindingen, terwijl de rust van het platteland behouden blijft.

4. Toekomstperspectieven en leefkwaliteit

  • Vooruitstrevende gemeenschap: De lokale bevolking en de overheid investeren in de ontwikkeling van de regio, wat resulteert in verbeterde infrastructuur en diensten. Dit maakt Aspe aantrekkelijk voor zowel permanente bewoners als vakantiegangers.
  • Zelfvoorzienende levensstijl: Met lokale voorzieningen zoals winkels, scholen en gezondheidszorg, maar toch de ruimte en rust van het platteland, geniet je van een ideale balans tussen comfort en sereniteit.

5. Investeringsmogelijkheden marktgroei:

De vraag naar vastgoed in authentieke en minder toeristische gebieden groeit. Dit biedt kansen voor toekomstige waardestijging en een stabiele investering.

Lifestyle en recreatie: Voor huizenkopers die niet alleen een woning zoeken, maar ook willen genieten van een levensstijl met ruimte voor ontspanning, natuur en cultuur, biedt Aspe een unieke combinatie.

Kortom, een villa kopen in Aspe betekent kiezen voor een rustige, authentieke Spaanse levensstijl in een prachtige natuurlijke omgeving, met aantrekkelijke vastgoedprijzen en een veelbelovende toekomst. Het is de perfecte plek voor wie zowel van rust als van cultuur houdt, en die waarde hecht aan kwaliteit en levensplezier.

Heb je interesse of wil je meer weten? Wij helpen je graag verder!



Kenmerken:

Aantal slaapkamers 3
Aantal badkamers 2
Privaat zwembad Ja
Oppervlakte perceel rond het huis 10548 m²
Bebouwde oppervlakte 146 m²
Bewoonbare oppervlakte 120 m²
Afstand naar het strand 40 km
Terras oppervlakte 20 m²
Private Tuin Ja
Poort Ja
Nabij Commercieel centrum Ja
Terras Ja
Vloerverwarming badkamer Ja
Douche schermen Ja
Buitenkeuken Ja
Jaccuzi Ja
Pré installatie airco Ja
privé parkeerplaats Ja
Parking in urbanisatie Ja
Garage Ja
Telefoon Data aansluiting Ja
Videofonie Ja
Inbouwkasten Ja
Aero thermische warmtepomp Ja
Elektrische poort Ja
Elektrisch laadpunt Otioneel
Badkamer spiegels Ja
Volledig bemeubeld Nee
Alle keuken apparatuur volledig inbegrepen Nee
Pre installatie keuken Ja
Berging Ja
Alarmsysteem Ja
Oriëntatie Zuid
Golfresort afstand in km 10-15 km
Ziekenhuis afstand in km 10-20 km
Luchthaven Alicante afstand 40-50 km
Luchthaven Murcia afstand 30-40 km
Uitzicht tuin Ja
Uitzicht bergen Ja
Ontspanning ruimte buiten Ja
Pre installatie warmtepomp zwembad Optioneel
Hangend toilet Ja
Hangend badkamer meubel Ja
Pré installatie zonnepanelen Ja
Uitzicht op het zwembad Ja
Security glas met uv filter Ja
Security 24/24 Ja
Volledig ingerichte keuken Ja
Gepantserde toegangsdeur met veiligheidsslot Ja
Kunstgras Ja
Kranen met waterbesparing Ja
Grote ramen van vloer tot plafond Ja
Hoogwaardige afwerking Ja
Beschikbaarheid op maat gemaakte ontwerpen Ja
Goede prijs-kwaliteit verhouding Ja
Aerothermische boiler Ja
Hoge plafonds Ja
Meubelpakket Optioneel
Gelijkvloers Ja
Gelijkvloers met tuin Ja
Villa bouwen op maat Ja
Bouwgrond en nieuw te bouwen villa Ja
Luxe nieuwbouw Ja
Extra grote ramen uitkijkend op tuin en zwembad Ja
Aangelegde tuin met grind, gras en planten. Ja
Kijkwoning Ja
Bouwtermijn na contract 18 maand Ja
Goed gebied voor rentabiliteit van huur Ja
Fietsberging Ja
Energielabel B
Afgewerkte badkamer Ja
Bouwtermijn na contract 12 maand Ja

Meer info?


Beschikbare documenten

property-1654-20-pic.webp

document-property-1654-20-pic.webp

download
property-1654-19-pic.webp

document-property-1654-19-pic.webp

download
Valla y fachada.jpg

document-Valla y fachada.jpg

download
COLISEO TRES DORMITORIOS - Plano - E_01 - 3D_01.jpg

document-COLISEO TRES DORMITORIOS - Plano - E_01 - 3D_01.jpg

download
COLISEO TRES DORMITORIOS - Plano - E_02 - 3D_02.jpg

document-COLISEO TRES DORMITORIOS - Plano - E_02 - 3D_02.jpg

download
COLISEO TRES DORMITORIOS - Plano - E_03 - 3D_03.jpg

document-COLISEO TRES DORMITORIOS - Plano - E_03 - 3D_03.jpg

download
COLISEO TRES DORMITORIOS - Plano - E_04 - VISTA 3D_01.jpg

document-COLISEO TRES DORMITORIOS - Plano - E_04 - VISTA 3D_01.jpg

download
COLISEO TRES DORMITORIOS - Plano - E_06 - VISTA 3D_03.jpg

document-COLISEO TRES DORMITORIOS - Plano - E_06 - VISTA 3D_03.jpg

download
COLISEO TRES DORMITORIOS - Plano - E_07 - VISTA 3D_04.jpg

document-COLISEO TRES DORMITORIOS - Plano - E_07 - VISTA 3D_04.jpg

download
COLISEO TRES DORMITORIOS - Plano - E_08 - DISTRIBUCION.jpg

document-COLISEO TRES DORMITORIOS - Plano - E_08 - DISTRIBUCION.jpg

download
COLISEO TRES DORMITORIOS - Plano - E_09 - COTAS.jpg

document-COLISEO TRES DORMITORIOS - Plano - E_09 - COTAS.jpg

download
COLISEO TRES DORMITORIOS - Plano - E_10 - PLANTA VENTA2.jpg

document-COLISEO TRES DORMITORIOS - Plano - E_10 - PLANTA VENTA2.jpg

download

Ontdek waarom Nederlanders in Pinoso willen zijn..

Penthouse nabij zee Playa de El Cura
Penthouse nabij zee Playa de El Cura

Project: ALTEA VI appartementen nabij zee in Torrevieja

Stad: Torrevieja-Alicante

2   2     86 m²   29 m²  

Gelijkvloers appartement tuin in residentie Njoy
Gelijkvloers appartement tuin in residentie Njoy

Project: COMING SOON njoy eerste lijn villa's Villajoyosa

Stad: Villajoyosa-Benidorm

2   1   50 m²   25 m²  

Instapklare villa Spanje met zwembad koop
Instapklare villa Spanje met zwembad koop

Project: Wonen in Vistabella Plaza Golf- Luxe & natuur

Stad: Orihuela-Alicante

2   2     73 m²   150 m²  

Villas San Mariano villa kopen Torre Pacheco?
Villas San Mariano villa kopen Torre Pacheco?

Project: Villas San Mariano villa Torre Pacheco kopen?

Stad: Torre-Pacheco - Murcia

3   2     84 m²   149 m²  

Penthouse bungalow Torrevieja en uitzicht zoutmeer
Penthouse bungalow Torrevieja en uitzicht zoutmeer

Project: Los Balcones de Vivi in Los Balcones Torrevieja

Stad: Torrevieja-Alicante

2   2     63 m²   33 m²  

Bungalow kopen Torrevieja 2 slpk groot terras
Bungalow kopen Torrevieja 2 slpk groot terras

Project: Los Balcones de Vivi in Los Balcones Torrevieja

Stad: Torrevieja-Alicante

2   2     63 m²   64 m²  

Investeren in villa Almoradi 4 slpk met extra’s
Investeren in villa Almoradi 4 slpk met extra’s

Project: Essence II-Las Heredades nabij Rojales-Alicante

Stad: Las Heredades

4   3     140 m²    

Villa kopen in Mutxamel Bonalba Green
Villa kopen in Mutxamel Bonalba Green

Project: Bonalba Green in Mutxamel met zeezicht

Stad: Mutxamel- Alicante

4   3     273 m²   56 m²  

ALHAMA NATURE RESORT penthouse kopen Murcia
ALHAMA NATURE RESORT penthouse kopen Murcia

Project: Condado De Alhama Bungalows Front Line golf

Stad: Alhama de Murcia

2   2   89 m²    

Modern Appartement eerste verdiep Finestrat
Modern Appartement eerste verdiep Finestrat

Project: Moderne appartementen met terras in Finestrat

Stad: Finestrat-Benidorm

3   2     116 m²   19 m²  

Investeren in villa Hacienda del Alamo golf resort
Investeren in villa Hacienda del Alamo golf resort

Project: Vrijstaande villas in Hacienda del Álamo Golf

Stad: Hacienda del Álamo Golf Resort-Roldan

3   2     114 m²    

Hoek villa kopen in SIERRA VERDE Finestrat?
Hoek villa kopen in SIERRA VERDE Finestrat?

Project: Investeren in SIERRA VERDE villa nabij Benidorm

Stad: Finestrat-Benidorm

3   3     143 m²   24 m²  

Lees geamuseerd onze nieuwtje en tips mee....

Nieuwbouw vs bestaande woning Spanje kiezen
Nieuwbouw vs bestaande woning Spanje kiezen

Nieuwbouw of bestaande woning kopen in Spanje lijkt een eenvoudige keuze… tot je er écht induikt.

Want wat op het eerste zicht goedkoper lijkt, kan op lange termijn duurder uitvallen. En wat duurder lijkt, kan net de slimste investering zijn.

Bij Casas Kimpencio zien we dagelij...

Martine

Casas Kimpencio specialist vastgoed Spanje!
Casas Kimpencio specialist vastgoed Spanje!

Casas Kimpencio Vastgoed Spanje groeit uit tot dé referentie voor wie een huis wil kopen in Spanje

Huis kopen in Spanje met Casas Kimpencio Nederlandstalige makelaar


...

Martine

Vliegschow Los Alcázares beleven in Spanje
Vliegschow Los Alcázares beleven in Spanje

Het spektakel van de vliegfeesten, de unieke ligging aan de Mar Menor en de aantrekkelijke vastgoedkansen in de regio. 

De vliegfeesten in Los Alcázares zijn een uniek spektakel boven de Mar Menor, met internationale airshows, historische roots en een levendige sfeer.

Wat wei...

Martine

square-box
Tine
Vragen over panden, projecten en onze content
Snel starten:

Hallo, ik ben Tine je kan bij mij terecht met al je vragen over panden, projecten en onze content. Ik antwoord alleen op basis van de beschikbare website-inhoud.