Home Lopende projecten Alle Panden Over ons Ons team Ons kantoor Onze werkwijze Contacteer ons Blog Cookies

Gelijkvloers appartement in residentie Sunset Village

 Project: Sunset village appartementen in Torrevieja!

Moderne nieuwbouwappartementen van hoge kwaliteit

Korte beschrijving:

SUNSET VILLAGE – GELIJKVLOERS APPARTEMENT MET GROTE TUIN – TORREVIEJA

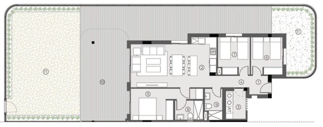
Dit gelijkvloers appartement beschikt over 3 slaapkamers en 2 badkamers en biedt een uitzonderlijk ruime woonbeleving dankzij de royale buitenruimtes. Bij het betreden van de woning kom je via de inkomhal in de open leefruimte met keuken, afgewerkt met onder- en bovenkasten en een geïntegreerde dampkap. Grote schuiframen zorgen voor veel lichtinval en geven directe toegang tot het terras en de tuin. Aansluitend aan de inkomhal bevindt zich een aparte wasruimte met aerothermische boiler en aansluitingen voor wasmachine en droogkast.

De woning is praktisch ingedeeld met drie volwaardige slaapkamers, allemaal voorzien van inbouwkasten. De hoofdslaapkamer beschikt over een badkamer-ensuite, terwijl de twee andere slaapkamers een tweede badkamer delen. Beide badkamers zijn uitgerust met douche, wastafel met meubel en toilet, en standaard voorzien van vloerverwarming voor extra comfort.

Buiten geniet je van maar liefst 148 m² buitenruimte, bestaande uit een aangelegd terras van 31 m² en een groene tuin rondom van 117 m². Als bewoner van Sunset Village heb je bovendien toegang tot uitgebreide gemeenschappelijke voorzieningen zoals zwembaden voor volwassenen en kinderen, wellness met sauna, fitness, padelterreinen, wandelpaden en groene zones. Een privéparkeerplaats en berging in de ondergrondse parking zijn inbegrepen, wat dit appartement tot een complete en comfortabele woonoplossing maakt in Torrevieja.

U bent nog niet aangemeld!

Na invullen van onderstaande gegevens wordt u aangemeld, indien er nog geen account bestaat kan deze aangemaakt worden!



 Geef ons uw mening...

 Momenteel nog geen reviews voor dit pand.

Uitgebreide beschrijving:

Deze woning is gelegen op de gelijkvloerse verdieping en is voorzien van 3 slaapkamers met 2 badkamers. We nemen even een wandeling doorheen de woning. Bij het betreden van de woning kom je terecht in de inkomhal, die uitkomt in de ruime leefruimte. De ruime leefruimte kent een open keuken, voorzien van onder- en bovenkasten én een geïntegreerde dampkap. 

Optioneel kan je de overige elektrische toestellen bijkopen, in een voordelig pakket. In dat pakket zitten volgende toestellen; keramische kookplaat, oven, magnetron, koelkast, vaatwasser, wasmachine en droogmachine. De woonkamer kijkt via grote schuiframen uit op de tuin, met terras. Verder is er bij de ingang, nog een ruime wasruimte gelegen. In deze wasruimte is de aerothermische boiler gelegen én de aansluitingen voor wasmachine / droogmachine. 

Deze woning is voorzien van 3 slaapkamers met 2 badkamers. De slaapkamers zijn allen voorzien van inbouwkasten met hangrekken, legplanken en lades. De hoofdslaapkamer heeft een badkamer-ensuite, de tweede én derde slaapkamer delen een badkamer. 

Beide badkamers zijn voorzien van een douche ( zonder doucheschermen ), wastafel met bijpassend meubel, toilet, ... Bovendien is elke badkamer voorzien van vloerverwarming, wat optimaal is om met een aangename temperatuur jou klaar te maken. 

DUS CONCREET: 

  • 3 slaapkamers
  • 2 badkamers
  • Wasruimte
  • Open keuken met kookeiland
  • Ruime woonkamer 
  • Afgewerkte badkamers

Deze woning is gelegen op de gelijkvloerse verdieping, waardoor je geniet van uitzonderlijk veel buitenruimte. De buitenruimte kent een oppervlakte van totaal 148m². Aansluitend aan de woonkamer is er een aangelegd terras gelegen van 31m². Verder, is er een groene zone rondom de woning van in totaal 117m².

Dit appartement is gelegen in residentie Sunset Village. Deze residentie is een klepper van formaat, en hierdoor geniet je van uitzonderlijk veel gemeenschappelijke voorzieningen. We geven een opsomming van de gemeenschappelijke voorzieningen; 

  • Afgewerkt landschap met prachtige vegetatie
  • Zwembad voor volwassenen én kinderen
  • Padel-terreinen 
  • Speeltuin 
  • Volledig uitgeruste fitness voor bewoners
  • Wellness met sauna 
  • Fietsenparking 
  • Buitenfitness
  • LED-verlichting in de gemeenschappelijke voorzieningen
  • Aangelegde wandelpaden 

Elke woning heeft een toegewezen parkeerplaats én berging in de gemeenschappelijke parking.

TECHNISCHE KENMERKEN: 

  • Porseleinen vloer
  • Anti-slip vloer op terras
  • Aluminium rolluiken ( optie voor elektrisch ) 
  • Dubbele beglazing
  • Beveiligde voordeur
  • Aerothermisch systeem voor sanitair warm water
  • Warmtepomp
  • Pré-installatie airconditioning 
  • Mechanische ventilatie
  • Zonnepanelen voor gemeenschappelijke voorzieningen
  • Lift doorheen het gehele gebouw ( parking tot penthouse )
  • Pré-installatie laadpunt elektrische wagen

Deze woning is gelegen in Torrevieja. Torrevieja, en meer specifiek de wijk La Hoya, is een rustige en aangename omgeving binnen deze levendige kuststad aan de Costa Blanca. La Hoya ligt iets landinwaarts, maar nog steeds dicht bij zee, waardoor je hier profiteert van een kalme woonomgeving gecombineerd met alle voordelen van het stadsleven. De wijk wordt gekenmerkt door brede straten, groenvoorzieningen en een ontspannen sfeer, ideaal voor wie comfort en rust zoekt zonder afgelegen te wonen.

Torrevieja zelf staat bekend om haar mediterrane levensstijl, uitgestrekte stranden en levendige boulevards. Binnen enkele minuten bereik je stranden zoals Playa del Cura, Playa de los Locos en Playa de la Mata, waar goudkleurig zand en helder water samenkomen. De stad biedt een uitgebreid aanbod aan winkels, restaurants, markten en culturele activiteiten. Dankzij het milde klimaat en meer dan 300 dagen zon per jaar speelt het leven zich hier grotendeels buiten af.

La Hoya heeft een strategische ligging binnen Torrevieja. Grote supermarkten, sportcentra, scholen en medische voorzieningen bevinden zich in de directe omgeving. Ook de bekende zoutmeren van Torrevieja en La Mata liggen vlakbij en zorgen voor een gezond microklimaat en prachtige natuur om te wandelen of fietsen. De combinatie van stedelijk gemak en natuurlijke rust maakt deze wijk bijzonder aantrekkelijk.

Wat veel mensen niet weten, is dat La Hoya een van de wijken is waar je het dagelijkse lokale leven van Torrevieja het best ervaart. Hier geen massatoerisme, maar buren die elkaar kennen, rustige avonden en kleine cafés waar vaste klanten elkaar ontmoeten. Vooral in de vroege ochtend hangt er een aangename stilte, doorbroken door het geluid van vogels en een zachte zeebries.

Daarnaast ligt La Hoya gunstig voor wie graag mobiel is. Dankzij de snelle aansluiting op de N-332 en AP-7 ben je vlot onderweg naar omliggende steden zoals Guardamar, Orihuela Costa en Alicante. Hierdoor voelt wonen in La Hoya als een perfecte balans tussen bereikbaarheid, rust en het typische mediterrane leven dat Torrevieja zo geliefd maakt.

AFSTANDEN: 

  • Strand: ca. 1,5 km

  • Centrum Torrevieja: ca. 2 km

  • Supermarkten en winkels: ca. 500 m

  • Zoutmeren La Mata en Torrevieja: ca. 2 km

  • Ziekenhuis van Torrevieja: ca. 4 km

  • Golfbanen: ca. 10–15 km

  • Luchthaven Alicante: ca. 40 km

  • Luchthaven Murcia: ca. 55 km

Onze visie binnen Casas Kimpencio;

  • Bij Casas Kimpencio ben je niet zomaar iemand, wij willen een persoonlijke relatie aangaan.
  • We behandelen jullie zoals we zelf behandeld willen worden, met de nodige betrokkenheid, precisie en details.
  • Geen enkele vraag is ons te veel, we staan elke dag telefonisch voor jou klaar.
  • Wij hebben de gedachte dat een huis kopen niet zomaar een huis kopen is, maar een nieuwe thuis kopen.
  • Iedereen dient een eigen verhaal te krijgen, met verschillende hoofdstukken. 
  • Wij willen helpen aan het Spaanse hoofdstuk, een hoofdstuk van een nieuwe thuis, vakantiewoning of een investering.
  • En dit doen we met open, duidelijke communicatie  en daarmee geraken we er altijd, zo vinden we jouw ideale woning gebaseerd op meerdere gesprekken.
  • We helpen vanaf het begin tot aan de sleuteloverdracht, en ver daarbuiten. 

Wij vinden deze woning bijzonder omdat; 

  • Royale buitenruimte van 148 m²
    Een zeldzame combinatie van een ruim terras én een groene tuin rondom, waardoor je het gevoel hebt in een villa te wonen in plaats van een appartement.

  • Gelijkvloerse leefervaring zonder inkijk
    Volledig op één niveau wonen met directe toegang tot buiten, ideaal voor wie comfort, privacy en toegankelijkheid wil combineren.

  • Doordachte indeling met echte privacyzones
    De slaapkamers liggen slim gescheiden van de leefruimte, waardoor rust en comfort gegarandeerd zijn, ook bij gasten of verhuur.

  • Badkamers met vloerverwarming als standaard
    Geen koude ochtenden meer: elke badkamer is voorzien van vloerverwarming voor een luxueus en comfortabel dagelijks gebruik.

  • Grote schuiframen die binnen en buiten verbinden
    De leefruimte vloeit naadloos over in het terras en de tuin, wat zorgt voor een uitzonderlijk ruimtelijk gevoel en veel licht.

  • Aparte wasruimte met aerothermisch systeem
    Praktisch én toekomstgericht: technische installaties netjes weggewerkt zonder in te boeten op leefcomfort.

  • Residentie met resort-allure, geen standaard project
    Sunset Village biedt wellness, fitness, padel, zwembaden en groene wandelzones – wonen voelt hier als permanent vakantieverblijf.

  • Ondergrondse parking met berging inbegrepen
    Veilig parkeren en extra opslagruimte, rechtstreeks bereikbaar met lift tot aan je woning.

  • Energie-efficiënt en klaar voor de toekomst
    Aerothermie, warmtepomp, pre-installatie airconditioning en laadpunt maken dit een slimme en duurzame investering.

GROEI EN TRENDS IN TORREVIEJA: 

Jaar  Prijs per m² Jaarlijkse stijging 
2023 €2.099 -
2024 €2.326 +10.8%
2025 €2.577 +10.7%


Kenmerken:

Aantal slaapkamers 3
Aantal badkamers 2
Oppervlakte perceel rond het huis 117 m²
Bebouwde oppervlakte 84 m²
Bewoonbare oppervlakte 74 m²
Afstand naar het strand 3.5 km
Terras oppervlakte 31 m²
Gedeeld zwembad Ja
Private Tuin Ja
Poort Ja
Nabij Scholen Ja
Nabij kinder speeltuin Ja
Nabij Commercieel centrum Ja
Nabij bushalte Ja
Terras Ja
Fietsafstand van het strand Ja
Vloerverwarming badkamer Ja
Jaccuzi Ja
Pré installatie airco Ja
Elektrische rolluiken Ja
Led verlichting buiten Ja
Led verlichting binnen Ja
privé parkeerplaats Ja
Ondergrondse parking Ja
Telefoon Data aansluiting Ja
Videofonie Ja
Inbouwkasten Ja
Aero thermische warmtepomp Ja
Elektrische poort Ja
Pre installatie elektrisch laadpunt Ja
Badkamer spiegels Ja
Pre installatie keuken Ja
Sportvelden Ja
Padel Terrein Ja
Buiten fitness Ja
Fitness ruimte Ja
Berging Ja
Gedeelde tuin Ja
Uitzicht tuin Ja
Golfresort afstand in km 15-20 km
Ziekenhuis afstand in km 0-5 km
Luchthaven Alicante afstand 40-50 km
Luchthaven Murcia afstand 50+ km
Lift Ja
Ontspanning ruimte buiten Ja
Ontspanning ruimte binnen Ja
Hangend toilet Ja
Hangend badkamer meubel Ja
Zonnepanelen Ja
Uitzicht op het zwembad Ja
Gepantserde toegangsdeur met veiligheidsslot Ja
Hoogwaardige afwerking Ja
Goede prijs-kwaliteit verhouding Ja
Aerothermische boiler Ja
Gelijkvloers Ja
Gelijkvloers met tuin Ja
Fietsberging Ja
Energielabel B
Afgewerkte badkamer Ja
Gesloten urbanisatie Ja

Meer info?


Beschikbare documenten

gelijkvloers 3-2.jpeg

document-gelijkvloers 3-2.jpeg

download

Ontdek wat we nog meer voor jou in petto hebben!

Penthouse nabij zee Playa de El Cura
Penthouse nabij zee Playa de El Cura

Project: ALTEA VI appartementen nabij zee in Torrevieja

Stad: Torrevieja-Alicante

2   2     86 m²   29 m²  

Gelijkvloers appartement tuin in residentie Njoy
Gelijkvloers appartement tuin in residentie Njoy

Project: COMING SOON njoy eerste lijn villa's Villajoyosa

Stad: Villajoyosa-Benidorm

2   1   50 m²   25 m²  

Modern Appartement eerste verdiep Finestrat
Modern Appartement eerste verdiep Finestrat

Project: Moderne appartementen met terras in Finestrat

Stad: Finestrat-Benidorm

3   2     116 m²   19 m²  

Studio met verhuurlicentie in Finestrat
Studio met verhuurlicentie in Finestrat

Project: Appartement met verhuurlicentie Costa Blanca

Stad: Finestrat-Benidorm

0   1     36 m²   1 m²  

Appartement met ruim terras in Corallia Resort
Appartement met ruim terras in Corallia Resort

Project: Residentie Corallia in Punta Prima - F1

Stad: Punta Prima

3   2   109 m²   17 m²  

Penthouse met solarium - Velapi Golf blok 3
Penthouse met solarium - Velapi Golf blok 3

Project: Velapi Golf appartementen - blok 3

Stad: Los Alcazares

2   2   88 m²   18 m²  

DUNAS DE VERA appartement kopen Vera Playa
DUNAS DE VERA appartement kopen Vera Playa

Project: Toeristisch appartement met privéstrand Vera

Stad: Vera- regio Costa Almeria Andalusië

2   1     55 m²   29 m²  

Toeristisch appartement met terras en zwembad
Toeristisch appartement met terras en zwembad

Project: Toeristische appartementen Karibe Heritage Resort

Stad: Lo Pagán aan de Mar Menor

2   2   82 m²   13 m²  

Gelijkvloers appartement met tuin resort El Raso
Gelijkvloers appartement met tuin resort El Raso

Project: Gemeubelde Appartementen El Raso Guardamar

Stad: Guardamar del segura- Alicante

2   2     65 m²   16 m²  

Penthouse met groot terras La Nucía
Penthouse met groot terras La Nucía

Project: Investeren in modern project aan Costa Blanca

Stad: La Nucia

2   2     73 m²   113 m²  

Appartement kopen in Los Alcázares ?
Appartement kopen in Los Alcázares ?

Project: Luxe appartementen – La Serena Breeze 3

Stad: Los Alcazares - Murcia - Mar Menor

2   2     73 m²   15 m²  

Gelijkvloers appartement met tuin aan Serena Golf
Gelijkvloers appartement met tuin aan Serena Golf

Project: Serena View I -Appartementen in la serena golf

Stad: Los Alcazares

2   2     76 m²   60 m²  

Lees mee met onze nieuwste blogs!

Ontdek Comunidad Valenciana: 3 provincies, 1 droom
Ontdek Comunidad Valenciana: 3 provincies, 1 droom

Van Castellón tot Alicante: in de Comunidad Valenciana koop je met zekerheid en zon. Casas Kimpencio begeleidt je stap voor stap, transparant en persoonlijk.

...

Martine

De stoeltjes op Alicante boulevard zijn terug!
De stoeltjes op Alicante boulevard zijn terug!

Alicante plaatst opnieuw de geliefde houten stoeltjes op haar mooiste promenade. Een kleine verandering met een grote betekenis.

...

Martine

Zorgloos off-plan kopen in Spanje
Zorgloos off-plan kopen in Spanje

Een woning kopen in Spanje nog vóór hij gebouwd is?

Wat een avontuur! Off plan kopen geeft jou de mogelijkheid om je droomhuis precies zo te creëren zoals jij het wilt. Van een moderne architectuur en slimme energiezuinige oplossingen tot een vleugje luxe die je bij bestaande woningen n...

Martine

square-box
Tine
Vragen over panden, projecten en onze content
Snel starten:

Hallo, ik ben Tine je kan bij mij terecht met al je vragen over panden, projecten en onze content. Ik antwoord alleen op basis van de beschikbare website-inhoud.