Home Lopende projecten Alle Panden Over ons Ons team Ons kantoor Onze werkwijze Contacteer ons Blog Cookies

Gelijkvloers toeristisch appartement in res. Oasis Laguna

 Project: Res. Oasis Laguna: toeristische appartementen - F3

Gloednieuwe residentie van toeristische appartementen

Korte beschrijving:

GELIJKVLOERS APPARTEMENT – 3 SLAAPKAMERS – 2 TUINEN – OASIS LAGUNA

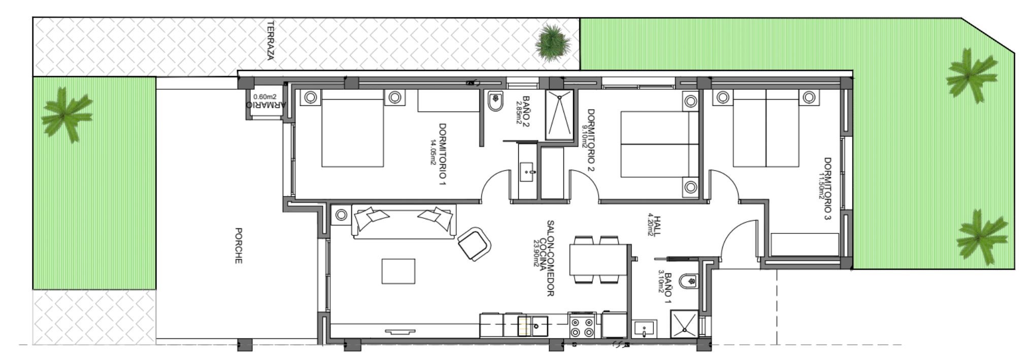
Ontdek dit instapklare gelijkvloers appartement in Oasis Laguna, ideaal als investering of zorgeloze tweede verblijfplaats. De woning beschikt over 3 slaapkamers en 2 badkamers, met een praktische indeling waarbij de inkomhal uitkomt op de open leefruimte met volledig uitgeruste keuken. De keuken is voorzien van alle elektrische toestellen en de volledige woning wordt gemeubeld verkocht, inclusief bedlinnen en decoratie. De hoofdslaapkamer heeft toegang tot de voortuin en beschikt over een badkamer-ensuite, terwijl de tweede en derde slaapkamer een badkamer delen.

De leefruimte met keuken (24 m²) geeft toegang tot de eerste tuin, die uitkijkt op de gemeenschappelijke zones. Aan de achterzijde bevindt zich een tweede tuin, bereikbaar via de algemene ingang. Samen bieden beide tuinen 55 m² aan buitenruimte, inclusief een handige berging met aerothermische boiler. Dankzij de twee ingangen en de logische opbouw geniet dit appartement van optimale privacy en gebruiksgemak.

De residentie beschikt over uitzonderlijke voorzieningen die dit appartement uitermate geschikt maken voor toeristisch gebruik: een groot buitenzwembad, kinderbad, jacuzzi, binnenzwembad, sauna, minigolf, speeltuin, buitenfitness, petanquebaan en vergaderzaal. De woning heeft een ondergrondse parkeerplaats met berging en airconditioning via kanalen. Bovendien maakt het toeristisch verhuurmodel een gegarandeerde netto-opbrengst mogelijk, ondersteund door professionele verhuur, schoonmaak en administratie.

U bent nog niet aangemeld!

Na invullen van onderstaande gegevens wordt u aangemeld, indien er nog geen account bestaat kan deze aangemaakt worden!



 Geef ons uw mening...

 Momenteel nog geen reviews voor dit pand.

Uitgebreide beschrijving:

Welkom in jouw investeringskans aan de zuidelijke Costa Blanca! Met veel plezier stellen wij dit gelijkvloers appartement voor, gelegen in Oasis Laguna. Het appartement is gelegen op de begane vloer en voorzien van 3 slaapkamers met 2 badkamers. We nemen even een wandeling doorheen deze woning, zodat jij een duidelijk beeld kan hebben hoe deze in elkaar zit. 

De woning heeft 2 ingangen; de ingang via de algemene ingang én de ingang via het gemeenschappelijk gebied. We nemen de gebruikelijk ingang, via de algemene ingang. Bij het betreden van de woning kom je terecht in de inkomhal.

Verder komt de inkomhal uit op de leefruimte met open keuken. De leefruimte met keuken hebben een oppervlakte van 24m². Aangezien deze woning gericht is voor toeristische appartementen, is de volledige keuken afgewerkt met elektrische toestellen. De woning is volledig instapklaar, inclusief de meubelen. 

Aansluitend aan de woonkamer, is de eerste tuin gelegen. Deze woning heeft 2 tuinen, aan weerszijden van de woning. We noemen het een voor-tuin en achter-tuin. De voortuin kijkt uit op de gemeenschappelijke gebieden, de achtertuin ligt via de algemene ingang van jouw woning. 

Daarnaast is deze woning voorzien van 3 slaapkamers met 2 badkamers. De hoofdslaapkamer heeft rechtstreekse toegang tot de eerste tuin. Elke slaapkamer is voorzien van inbouwkasten met hangrekken, legplanken en lades. De tweede en derde slaapkamer delen een badkamer. 

De hoofdslaapkamer heeft een badkamer-ensuite. De voortuin en achtertuin hebben samen een oppervlakte van 55m². In de voortuin is er een berging gelegen met een aerothermische boiler. 

DUS CONCREET: 

  • 3 slaapkamers
  • 2 badkamers
  • Uitgeruste keuken met toestellen 
  • Tuin van 55m²
  • 2 tuinen 
  • Open leefruimte 

Deze woning is gelegen in Oasis Laguna. De gemeenschappelijke gebieden zijn afgewerkt met prachtige groene zones. Er is een groot gemeenschappelijk zwembad, kinderzwembad én een buitendouche. Verder is er ook een petanquebaan, speeltuin, buitenfitness en mini-golf. In de residentie is er ook een vergaderzaal gelegen. Verder is er ook nog een binnenzwembad, jacuzzi en een sauna voor gemeenschappelijk gebruik. 

Elke woning heeft een ondergrondse parkeerplaats met berging. Deze parking is te bereiken via een gemeenschappelijke oprit met automatische poorten. De poort kan geopend worden via een afstandsbediening. 

TECHNISCHE KENMERKEN: 

  • Anti-slip keramische tegels
  • Dubbele beglazing met argon gas
  • Elektrische rolluiken 
  • Veiligheidsdeur
  • Inbouwkasten met LED-verlichting 
  • Inclusief meubelen 
  • Inclusief bedovertrekken 
  • Inclusief elektrische toestellen 
  • Video-intercom 
  • Brievenbussen bij de centrale ingang 
  • Airconditioning via kanalen

TOERISTISCHE APPARTEMENTEN 

Deze appartementen zijn bedoeld voor toeristische doeleinden, zodat jouw rendement gegarandeerd wordt. Aangezien het geen gewoon gebruik is, zijn er een aantal regels aan verbonden. We sommen de belangrijkste regels op voor deze appartementen. 

REGELS EN RECHTEN VAN DE EIGENAAR: 

  • Verplichte toewijzing van het appartement aan het toeristisch verhuurbureau
  • Beperkt persoonlijk gebruik; je mag jouw appartement 4 maanden per jaar persoonlijk gebruiken, maar maximum 2 weken in de maanden juli en augustus. Tijdens jouw persoonlijk gebruik ben jij verantwoordelijk voor de schoonmaakkosten, hervulkosten én herstellingen tijdens jouw verblijf
  • Je bent verantwoordelijk voor de nodige belastingen en toeslagen te betalen
  • Je moet ook de gemeenschappelijke kosten én de nutsvoorzieningen dekken. Deze worden gedekt door de inkomsten van de woning, maar indien je niet voldoende inkomsten zou hebben moet jij deze persoonlijk dekken
  • Jij moet ook de opstal- en de inboedel- verzekeringen afsluiten
  • Je mag het appartement enkel gebruiken voor toeristisch vakantieverhuur
  • Indien je de woning wilt verkopen, moet de nieuwe eigenaar zich ook aan deze regels houden
  • Je verkrijgt gegarandeerd de netto-winst van de woning
  • Je hebt volledige toegang tot het platform van de vakantiewoning; met boekingen, gedetailleerde inkomsten én uitgaven 
  • Je kan / mag deelnemen aan de algemene vergaderingen 

VERPLICHTINGEN EN RECHTEN VAN DE VERHUURMAATSCHAPPIJ 

  • Het verhuurbedrijf zal het appartement volledig verhuren 
  • De maatschappij staat in voor de marketing van jouw appartement 
  • Het bedrijf neemt de schoonmaakkosten, het beddengoed, en er is een receptie voor check-in / check-out
  • Het bedrijf zal het appartement schoonmaken én noodzakelijke herstellingen uitvoeren 
  • Het bedrijf bepaalt de verhuurprijzen en past deze aan naargelang welk seizoen we ons in bevinden 
  • Het bedrijf sluit een aansprakelijkheidsverzekering af voor de exploitatie
  • Het bedrijf betaalt de maandelijkse netto opbrengst uit aan de eigenaar
  • Het bedrijf verantwoord alle afgetrokken kosten via facturen of rekeningen 

BETALINGSMODEL 

  • Het bedrijf betaalt de netto-winst uit maximaal 20 dagen na het beëindigen van de maand 
  • Als eigenaar moet je maandelijks een factuur sturen naar het verhuurbedrijf 

BESLUIT

  • Als eigenaar verbindt je jou om minimaal 10 jaar het appartement beschikbaar te stellen voor toeristisch verhuur
  • Het verhuurbedrijf kent zichzelf een commissie toe van 20% om alle kosten te dekken 
  • Wat overblijft na de aftrek van alle kosten, dat wordt in netto-winst uitgekeerd aan de eigenaar 

VOORBEELDEN VAN HYPOTHETISCHE VERHURINGEN 

VERHUUR VIA EEN PORTAALSITE 

€1.000 Huurprijs betaald door de huurder 
- €90.91 Aftrek van 10% belasting op toeristisch verhuur
- €100Aftrek van schoonmaakkosten, beddengoed, en handdoekenservice 
- €150Aftrek van commissie voor boekingen ( 15% )
- €200Aftrek van commissie voor Oasis Laguna ( 20% ) 
DUS €459.09De factuur die de eigenaar naar het bedrijf opstuurt met BTW 
DUS €362.68De factuur die de eigenaar naar het bedrijf opstuurt zonder BTW 

VERHUUR RECHTSTREEKS VIA DE OASIS LAGUNA SITE

€1.000 Huurprijs betaald door de huurder 
- €90.91 Aftrek van 10% belasting op toeristisch verhuur
- €100Aftrek van schoonmaakkosten, beddengoed, en handdoekenservice 
- €200Aftrek van commissie voor Oasis Laguna ( 20% ) 
DUS €629.1De factuur die de eigenaar naar het bedrijf opstuurt met BTW 
DUS €496.99De factuur die de eigenaar naar het bedrijf opstuurt zonder BTW 

Deze woning is gelegen in El Raso, Guardamar. El Raso, onderdeel van Guardamar del Segura, ligt aan de rand van een uniek natuurgebied en vormt een perfecte combinatie van rust, ruimte en nabijheid van de Middellandse Zee. Het gebied wordt omringd door pijnboombossen, duinen en open landschappen die zorgen voor een ontspannen mediterrane sfeer. Slechts enkele minuten verderop vind je de uitgestrekte zandstranden van Guardamar, bekend om hun natuurlijke schoonheid en helder water. El Raso is ontworpen als een rustige residentiële wijk met brede straten, moderne voorzieningen en een open karakter dat uitnodigt tot wandelen, fietsen en genieten van het buitenleven.

Het dagelijkse leven in El Raso is aangenaam en overzichtelijk. In het commerciële centrum van de wijk vind je restaurants, bars, supermarkten en kleine winkels, allemaal met een vriendelijke en toegankelijke sfeer. De nabijheid van Guardamar zelf zorgt voor extra voorzieningen zoals markten, sportfaciliteiten, winkels en mediterrane eetgelegenheden. Bovendien ligt het prachtige natuurpark Parque Alfonso XIII op korte afstand, een beschermde groene long waar houten wandelpaden je meevoeren door dennenbossen, duinen en langs de riviermonding.

Wat deze omgeving bijzonder maakt, is de balans tussen natuur en comfort. Het hele jaar geniet je hier van het zachte klimaat, frisse zeelucht en de geur van pijnbomen. Toch ben je ook dicht bij levendige plekken zoals Torrevieja, La Mata en Quesada, waardoor El Raso een perfecte uitvalsbasis vormt voor wie zowel rust als activiteit zoekt. Het rustige tempo van het leven, gecombineerd met de nabijheid van zoveel prachtige stranden en natuurgebieden, maakt de wijk aantrekkelijk voor wie mediterrane kwaliteit zoekt zonder drukte.

Weinig mensen weten dat het gebied rond El Raso ooit werd gebruikt als landbouwgrond waar citrusbomen en kruiden werden geteeld. De vruchtbare grond en het milde klimaat zorgden ervoor dat dit gebied generaties lang een belangrijke rol speelde voor de lokale gemeenschap. Vandaag leeft die geschiedenis voort in de markten en kleine boerenbedrijven rondom de wijk.

Daarnaast heeft El Raso een charmante, bijna verborgen traditie: in het voorjaar, wanneer de sinaasappelbomen in bloei staan, vult de omgeving zich met de zoete geur van azahar. Op stille avonden kun je deze geur tot aan de randen van de wijk ruiken - een natuurlijke luxe die je alleen op plekken vindt waar natuur en bewoning zo harmonieus samenkomen.

AFSTANDEN: 

  • Luchthaven Alicante: 35 minuten

  • Strand van Guardamar: 5–7 minuten

  • Centrum Guardamar: 8 minuten

  • Natuurpark Parque Alfonso XIII: 5 minuten

  • Supermarkten en restaurants (El Raso): 1–3 minuten

  • Ziekenhuis Torrevieja: 15 minuten

  • La Mata: 10 minuten

  • Torrevieja centrum: 15 minuten

Onze visie binnen Casas Kimpencio;

  • Bij Casas Kimpencio ben je niet zomaar iemand, wij willen een persoonlijke relatie aangaan.
  • We behandelen jullie zoals we zelf behandeld willen worden, met de nodige betrokkenheid, precisie en details.
  • Geen enkele vraag is ons te veel, we staan elke dag telefonisch voor jou klaar.
  • Wij hebben de gedachte dat een huis kopen niet zomaar een huis kopen is, maar een nieuwe thuis kopen.
  • Iedereen dient een eigen verhaal te krijgen, met verschillende hoofdstukken. 
  • Wij willen helpen aan het Spaanse hoofdstuk, een hoofdstuk van een nieuwe thuis, vakantiewoning of een investering.
  • En dit doen we met open, duidelijke communicatie  en daarmee geraken we er altijd, zo vinden we jouw ideale woning gebaseerd op meerdere gesprekken.
  • We helpen vanaf het begin tot aan de sleuteloverdracht, en ver daarbuiten. 

Wij vinden deze woning bijzonder omdat;

  • Gelijkvloers appartement met een praktische indeling, waarbij inkomhal, leefruimte en keuken logisch in elkaar overlopen en meteen een helder, open gevoel geven.

  • Volledig uitgeruste keuken met toestellen, perfect voor toeristische verhuur, netjes geïntegreerd in de leefruimte van 24m² voor een optimaal gebruik van ruimte.

  • Twee tuinen, een voor-tuin aan de gemeenschappelijke zone en een achter-tuin aan de privé-ingang, samen 55m² buitenruimte om van te genieten.

  • Instapklaar en volledig gemeubeld, inclusief decoratie, bedlinnen, elektrische toestellen en meubilair, ideaal als je een zorgeloze investering zoekt.

  • Drie slaapkamers met inbouwkasten, waaronder een hoofdslaapkamer met rechtstreekse toegang tot de tuin voor maximale privacy en comfort.

  • Twee badkamers, waarvan één ensuite, beide afgewerkt met moderne materialen en ontworpen voor intensief gebruik in toeristisch verhuur.

  • Ondergrondse parkeerplaats met berging, bereikbaar via automatische poort, zodat jouw wagen altijd veilig en beschut staat.

  • Uitgebreide gemeenschappelijke voorzieningen zoals een groot zwembad, kinderbad, jacuzzi, sauna, binnenspa, petanque, speeltuin, buitenfitness, minigolf en vergaderzaal.

  • Toeristisch verhuurconcept met gegarandeerde netto-opbrengst, inclusief professionele marketing, schoonmaak, onderhoud en boekingssysteem.

  • Zeer sterke ligging in El Raso, vlak bij Guardamar, stranden, natuurgebied, winkels en restaurants, waardoor dit pand een uitzonderlijk verhuurrendement biedt.

  • Airconditioning via kanalen, elektrische rolluiken, dubbele beglazing met argon, veiligheidsdeur en LED-verlichte inbouwkasten, wat zorgt voor kwaliteit, comfort en duurzaamheid.

WONINGEN IN OASIS LAGUNA 

Type woning  Aantal slaapkamers / badkamers  Buitenruimte in m² Bebouwde oppervlakte  Prijs 
Gelijkvloers appartement  3/2 55 + 20 m² 81m² €251.000
Gelijkvloers appartement  2/2 43 + 20 m² 64m² €228.000
Appartement op tussenverdieping  2/2 20m² 64m² €222.000
Appartement op tussenverdieping  3/2 20m² 81m² €241.000

GROEI EN TRENDS IN EL RASO, GUARDAMAR: 

Jaar  Prijs per m² Jaarlijkse stijging 
2023 €2.151 -
2024 €2.384 +10.9%
2025 €2.647 +11.1%


Kenmerken:

Aantal slaapkamers 3
Aantal badkamers 2
Oppervlakte perceel rond het huis 55 m²
Bebouwde oppervlakte 103 m²
Bewoonbare oppervlakte 81 m²
Afstand naar het strand 3.5 km
Terras oppervlakte 20 m²
Gedeeld zwembad Ja
Private Tuin Ja
Poort Ja
Volledig bemeubeld Ja
Nabij Scholen Ja
Nabij Commercieel centrum Ja
Terras Ja
Fietsafstand van het strand Ja
Uitzicht zoutmeren Ja
Douche schermen Ja
Buitenkeuken Ja
Jaccuzi Ja
Volledige airco installatie Ja
Elektrische rolluiken Ja
Led verlichting buiten Ja
Led verlichting binnen Ja
Ondergrondse parking Ja
Telefoon Data aansluiting Ja
Videofonie Ja
Inbouwkasten Ja
Aero thermische warmtepomp Ja
Badkamer spiegels Ja
Alle keuken apparatuur volledig inbegrepen Ja
Sportvelden Ja
Petanque Ja
Padel Terrein Ja
Nabij kinder speeltuin Ja
Buiten fitness Ja
Fitness ruimte Ja
Berging Ja
Gedeelde tuin Ja
Golfresort afstand in km 2-5 km
Ziekenhuis afstand in km 5-10 km
Luchthaven Alicante afstand 30-40 km
Uitzicht tuin Ja
Verhuur dienst ter plaatse Ja
Ontspanning ruimte buiten Ja
Ontspanning ruimte binnen Ja
Hangend toilet Ja
Hangend badkamer meubel Ja
Spa center Ja
Security glas met uv filter Ja
Volledig ingerichte keuken Ja
Gepantserde toegangsdeur met veiligheidsslot Ja
Kunstgras Ja
Grote ramen van vloer tot plafond Ja
Hoogwaardige afwerking Ja
Aerothermische boiler Ja
Hoge plafonds Ja
Gelijkvloers met tuin Ja
Luxe nieuwbouw Ja
Extra grote ramen uitkijkend op tuin en zwembad Ja
Aangelegde tuin met grind, gras en planten. Ja
Kijkwoning Ja
Goed gebied voor rentabiliteit van huur Ja
Fietsberging Ja
Social club Ja
Energielabel A
Afgewerkte badkamer Ja
Gesloten urbanisatie Ja
Huurlicentie Ja

Meer info?


Beschikbare documenten

gelijkvloers 3-2.jpeg

document-gelijkvloers 3-2.jpeg

download

Ontdek wat we nog meer voor jou in petto hebben!

Studio met verhuurlicentie in Finestrat
Studio met verhuurlicentie in Finestrat

Project: Appartement met verhuurlicentie Costa Blanca

Stad: Finestrat-Benidorm

0   1     36 m²   1 m²  

Appartement met ruim terras in Corallia Resort
Appartement met ruim terras in Corallia Resort

Project: Residentie Corallia in Punta Prima - F1

Stad: Punta Prima

3   2   109 m²   17 m²  

Penthouse met solarium - Velapi Golf blok 3
Penthouse met solarium - Velapi Golf blok 3

Project: Velapi Golf appartementen - blok 3

Stad: Los Alcazares

2   2   88 m²   18 m²  

DUNAS DE VERA appartement kopen Vera Playa
DUNAS DE VERA appartement kopen Vera Playa

Project: Toeristisch appartement met privéstrand Vera

Stad: Vera- regio Costa Almeria Andalusië

2   1     55 m²   29 m²  

Toeristisch appartement met terras en zwembad
Toeristisch appartement met terras en zwembad

Project: Toeristische appartementen Karibe Heritage Resort

Stad: Lo Pagán aan de Mar Menor

2   2   82 m²   13 m²  

Gelijkvloers appartement met tuin resort El Raso
Gelijkvloers appartement met tuin resort El Raso

Project: Gemeubelde Appartementen El Raso Guardamar

Stad: Guardamar del segura- Alicante

2   2     65 m²   16 m²  

Penthouse met groot terras La Nucía
Penthouse met groot terras La Nucía

Project: Investeren in modern project aan Costa Blanca

Stad: La Nucia

2   2     73 m²   113 m²  

Appartement kopen in Los Alcázares ?
Appartement kopen in Los Alcázares ?

Project: Luxe appartementen – La Serena Breeze 3

Stad: Los Alcazares - Murcia - Mar Menor

2   2     73 m²   15 m²  

Gelijkvloers appartement met tuin aan Serena Golf
Gelijkvloers appartement met tuin aan Serena Golf

Project: Serena View I -Appartementen in la serena golf

Stad: Los Alcazares

2   2     76 m²   60 m²  

Ruim toeristisch appartement in Vera Playa
Ruim toeristisch appartement in Vera Playa

Project: Toeristisch vastgoed Spanje investering Vera Playa

Stad: Vera- regio Costa Almeria Andalusië

3   2     93 m²   12 m²  

Opbrengst-appartement in Aguilas
Opbrengst-appartement in Aguilas

Project: Investeren in appartementen vlak bij zee Águilas

Stad: Aguilas

2   1     61 m²   6 m²  

Ruim penthouse vlak bij strand Guardamar en zee
Ruim penthouse vlak bij strand Guardamar en zee

Project: Nieuwbouw appartementen in Guardamar del Segura

Stad: Guardamar del segura- Alicante

2   2     65 m²   50 m²  

Lees mee met onze nieuwste blogs!

Meerwaardebelasting in Spanje
Meerwaardebelasting in Spanje

Wanneer je jouw woning in Spanje verkoopt, verdwijnt de zon niet uit je verhaal, maar er duikt wel één belangrijke term op: de meerwaardebelasting. Ontdek hier in mensentaal hoe die werkt, wie ze betaalt en hoe je ze slim kunt beperken.

...

Martine

Welke Spaanse kustgebieden onder water in 2050?
Welke Spaanse kustgebieden onder water in 2050?

Nasa hield een wetenschappelijke studie met betrekking tot de stijging van de zeespiegel. Ook de Europese Commissie hield eerder zo een regionale studie, waaruit bleek dat Spanje 1 van de zwaarst getroffen regio's zal zijn. We geven een overzicht van de voorspelde zeespiegelstijgingen én geven o...

Juliette

Vier een warme kerst aan zee: tradities en charme
Vier een warme kerst aan zee: tradities en charme

Beleef een magische kerst aan de Spaanse kust

De feestdagen aan de Costa Blanca, Costa Cálida en Costa Almería combineren mediterrane charme met de warmte van lokale tradities.

Geniet van betoverende kerstmarkten, schitterende verlichting en heerlijke Spaanse gerechten terwijl...

Martine

square-box
Tine
Vragen over panden, projecten en onze content
Snel starten:

Hallo, ik ben Tine je kan bij mij terecht met al je vragen over panden, projecten en onze content. Ik antwoord alleen op basis van de beschikbare website-inhoud.