Home Lopende projecten Alle Panden Over ons Ons team Ons kantoor Onze werkwijze Contacteer ons Blog Cookies

laatste kans

Villa Isora luxe wonen met zeezicht in Cumbre

 Project: Magnolias Design in Cumbres Del Sol Benitachell

NIEUW GEBOUWDE LUXE VILLA IN CUMBRE DEL SOL

Korte beschrijving:

LUXE VILLA - 3 SLAAPKAMERS - ONDERBOUW - RIANT PERCEEL - CUMBRE DEL SOL 

Ontdek deze uitzonderlijk ruime villa, verdeeld over drie verdiepingen en gebouwd tegen een heuvel, waardoor je geniet van een unieke indeling en adembenemende zeezichten. De woning beschikt over 3 slaapkamers, elk met een eigen badkamer, en een royale leefruimte met open keuken uitgerust met hoogwaardige Miele-toestellen. De combinatie van ruimte, licht en zicht maakt van deze villa een echte eyecatcher.

Deze woning biedt tal van extra troeven zoals een polyvalente onderbouw die volledig naar eigen wens ingericht kan worden en een indrukwekkende buitenruimte op een perceel van 817m². Hier geniet je van een groot zwembad, meerdere terrassen, ideaal voor lange avonden in alle comfort. Dankzij de hoogwaardige afwerking en technieken zoals domotica, vloerverwarming, zonnepanelen en airzone-klimaatregeling is deze villa volledig futureproof.

De woning is gelegen in Cumbre del Sol, een exclusieve woonomgeving tussen Moraira en Jávea. Hier geniet je van rust, privacy en panoramische uitzichten over de Middellandse Zee, terwijl voorzieningen zoals restaurants, sportfaciliteiten en een internationale school zich op korte afstand bevinden. Een ideale combinatie van luxe, natuur en bereikbaarheid.

U bent nog niet aangemeld!

Na invullen van onderstaande gegevens wordt u aangemeld, indien er nog geen account bestaat kan deze aangemaakt worden!



 Geef ons uw mening...

 Momenteel nog geen reviews voor dit pand.

Uitgebreide beschrijving:

Deze luxe villa is voorzien van alles wat je maar kan wensen, verdeeld over 3 verdiepingen. Geniet van maar liefst 3 slaapkamers met 3 badkamers. De villa is gebouwd tegen een heuvel, waardoor je niet alleen geniet van een dynamische indeling maar ook van prachtige zeezichten. De luxe villa is verdeeld over verschillende verdiepingen, maar geen zorgen, je beweegt je zorgeloos via de ruime trappenhallen. 

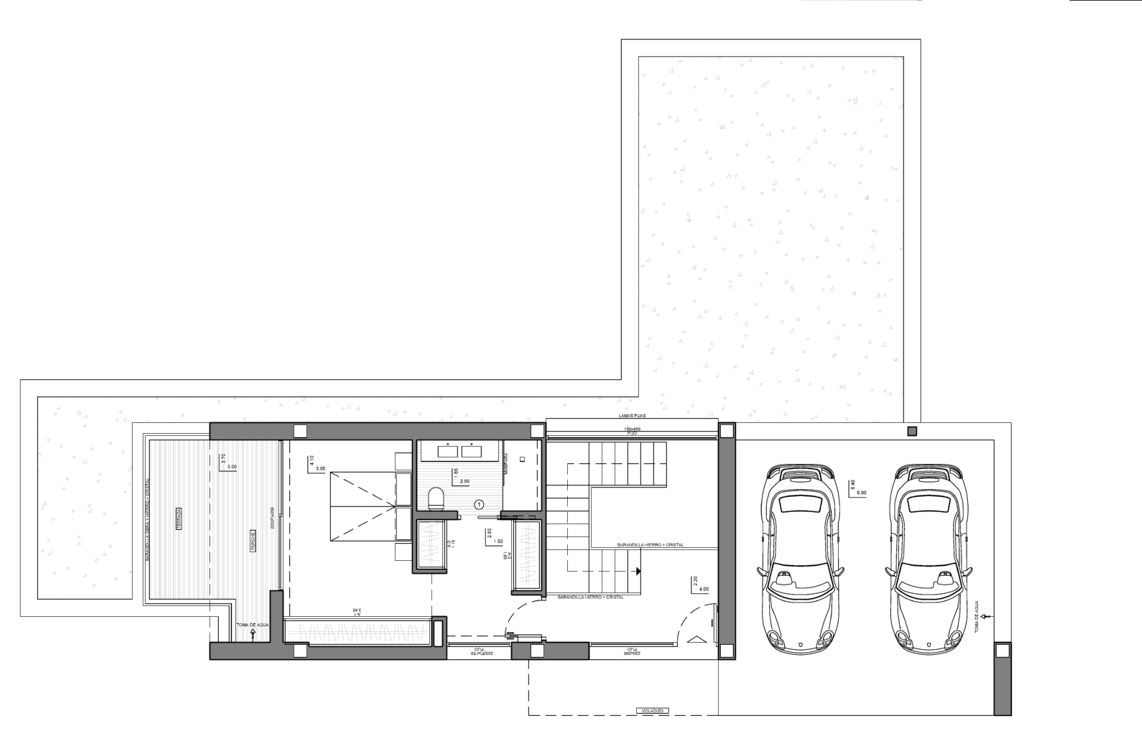
Logischergewijs, verlopen we de verdiepingen van beneden naar boven. Op de onderste verdieping, is er een kwalitatieve onderbouw voorzien. Deze onderbouw is in te richten naar jouw wensen, denk maar aan een binnenfitness, cinemazaal, ... Rondom deze onderbouw is er een aangelegd terras zodat de binnenruimte met de buitenruimte wordt verbonden. De binnenruimte heeft een oppervlakte van 56m², terwijl het terras een oppervlakte van 13m² kent. 

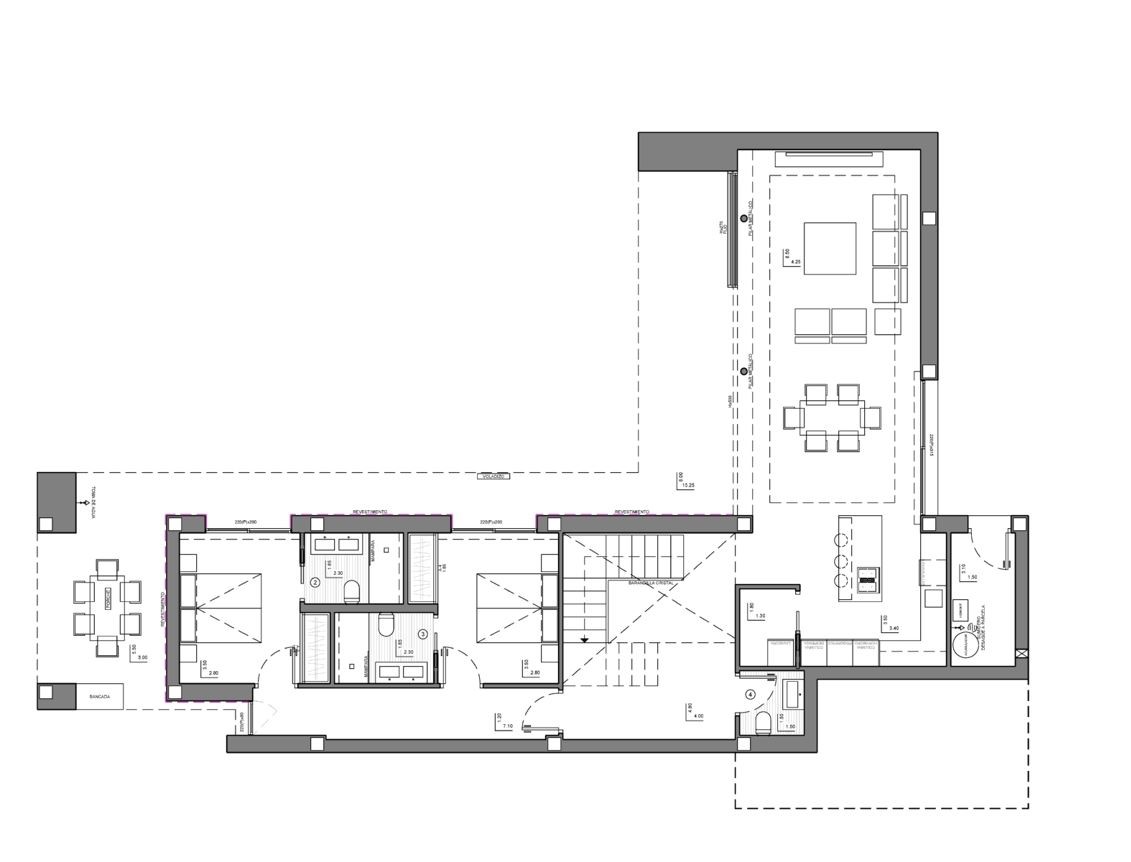
Een verdieping hoger is de begane vloer gelegen, met een prachtige tuin. In de gelijkvloerse verdieping is de ruime leefruimte met open keuken, het hart van deze verdieping. De keuken is uitgerust met volgende toestellen; koelkast, kookplaat, oven, magnetron, dampkap, waterverzachter en vaatwasser. Alle toestellen zijn van het merk Miele, of gelijkaardig. 

Nabij de keuken, is er een ruime inloopberging gelegen. Verder is er ook nog een gastentoilet met wastafel voorzien. Op de begane vloer zijn de eerste 2 slaapkamers gelegen met elk een eigen badkamer-ensuite. Elke badkamer-ensuite heeft een dubbele wastafel, hangtoilet, douche, toilet, spiegel, bidet, ... én kwaliteitsvolle inbouwkasten. 

Op de begane vloer zijn er nog 2 inpandige bergingen gelegen, een berging bij de keuken én een technische berging. 

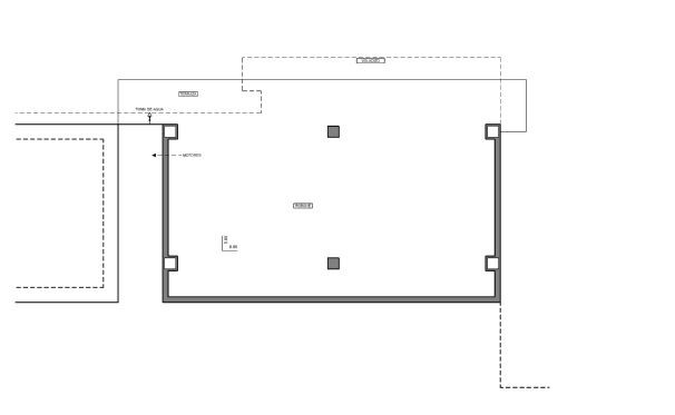
Via de trappenhal bereik je de eerste verdieping. Op deze verdieping, is ook de beveiligde voordeur gelegen, dus eigenlijk is deze verdieping gelegen op straatniveau. Er zijn maar liefst 2 parkeerplaatsen voorzien.

Op deze verdieping is de hoofdslaapkamer gelegen. Deze is voorzien van een kwaliteitsvolle dressing. De badkamer bereik je via de inloopdressing, een echt hotelgevoel dus! Verder kijkt je slaapkamer uit én heeft rechtstreekse toegang tot jouw eigen privébalkon. 

DUS CONCREET: 

  • 3 slaapkamers
  • 3 badkamers
  • Gastentoilet 
  • Onderbouw
  • Ruime terrassen
  • Uitgeruste keuken met toestellen 
  • 2 bergingen 
  • 2 parkeerplaatsen 

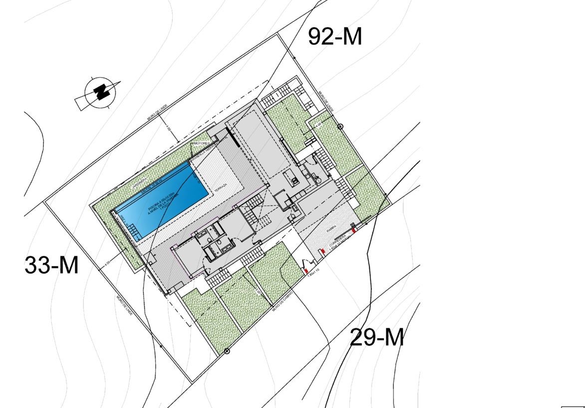
Deze woning is gelegen op een plot van 817m². De tuin is voorzien van een irrigatiesysteem, zodat jouw bloemen en planten altijd in volle bloei zijn. 

In de tuin geniet je van afkoeling met het prachtig zwembad van 4 meter op 10 meter. De tuin kijkt uit op een andere azuurblauwe bron; de Middellandse Zee. Het zwembad komt geleverd met een buitendouche. 

TECHNISCHE KENMERKEN: 

  • Topstructuur met kwalitatieve materialen
  • Elektrische rolluiken 
  • Dubbele beglazing en zonweringsglas
  • Inbouwkasten met hangrekken, legplanken en lades
  • Porseleinen vloeren 
  • Alarmsysteem
  • Binnen- en buitenverlichting 
  • Vloerverwarming doorheen de gehele woning 
  • Airconditioning in de zomer
  • Warmtepomp voor vloerverwarming in de winter en airconditioning in de zomer
  • Airzone; temperatuur regelbaar per kamer, via een centrale thermostaat of een applicatie 
  • Uitstekende ventilatie
  • Domotica systeem via iPads
  • Speaker doorheen de woning 
  • Zonnepanelen
  • Laadpunt voor elektrische wagen 

Deze villa is gelegen in Cumbre del Sol. Cumbre del Sol is een exclusieve woonomgeving aan de noordelijke Costa Blanca, gelegen tussen de kustplaatsen Moraira en Jávea. Het gebied ligt op een verhoogd plateau boven de Middellandse Zee en staat bekend om zijn spectaculaire panorama’s over de kustlijn en het omliggende berglandschap. Dankzij deze unieke ligging geniet je hier van open zichten, frisse zeelucht en een rustige, residentiële sfeer die sterk verschilt van de drukkere kustplaatsen.

De urbanisatie is zorgvuldig ontwikkeld met brede wegen, veel groen en verschillende woonzones die harmonieus in het landschap zijn geïntegreerd. In de directe omgeving vind je voorzieningen zoals restaurants, sportfaciliteiten, een internationale school en kleine commerciële centra. Het gebied is populair bij mensen die bewust kiezen voor ruimte, privacy en natuur, terwijl kustplaatsen zoals Moraira en Jávea op korte afstand liggen voor extra voorzieningen, stranden en jachthavens.

Een van de grote troeven van Cumbre del Sol is de indrukwekkende natuur rondom het gebied. De kliffen en baaien langs de kust behoren tot de mooiste van de regio. Wandelroutes langs de kustlijn bieden spectaculaire uitzichten over zee, terwijl kleine verborgen baaien uitnodigen tot zwemmen en snorkelen. Dankzij het milde klimaat en de open ligging is het hier het hele jaar door aangenaam vertoeven.

Wat veel mensen niet weten, is dat Cumbre del Sol een van de plekken aan de Costa Blanca is waar de zonsopgang het meest indrukwekkend is. Door de oostelijke ligging boven de zee zie je de zon letterlijk uit het water opkomen, wat zorgt voor spectaculaire lichtmomenten in de vroege ochtend.

Daarnaast heeft het gebied een opvallend rustige en exclusieve uitstraling. Door de lage bebouwingsdichtheid en de natuurlijke integratie in het landschap blijft het uitzicht behouden en overheerst een gevoel van ruimte. Vooral in de avond, wanneer de zon ondergaat achter de bergen en de zee zacht oplicht, toont Cumbre del Sol zijn meest serene kant.

AFSTANDEN: 

  • Cala Moraig strand: ±2 km

  • Restaurants & cafés: ±1 km

  • Supermarkt: ±2 km

  • Moraira centrum: ±8 km

  • Jávea centrum: ±10 km

  • Golfbanen: ±10–15 km

  • Internationale school: ±1 km

  • Ziekenhuis Dénia: ±20 km

  • Benidorm: ±40 km

  • Luchthaven Alicante: ±95 km

  • Luchthaven Valencia: ±110 km

Onze visie binnen Casas Kimpencio;

  • Bij Casas Kimpencio ben je niet zomaar iemand, wij willen een persoonlijke relatie aangaan.
  • We behandelen jullie zoals we zelf behandeld willen worden, met de nodige betrokkenheid, precisie en details.
  • Geen enkele vraag is ons te veel, we staan elke dag telefonisch voor jou klaar.
  • Wij hebben de gedachte dat een huis kopen niet zomaar een huis kopen is, maar een nieuwe thuis kopen.
  • Iedereen dient een eigen verhaal te krijgen, met verschillende hoofdstukken. 
  • Wij willen helpen aan het Spaanse hoofdstuk, een hoofdstuk van een nieuwe thuis, vakantiewoning of een investering.
  • En dit doen we met open, duidelijke communicatie  en daarmee geraken we er altijd, zo vinden we jouw ideale woning gebaseerd op meerdere gesprekken.
  • We helpen vanaf het begin tot aan de sleuteloverdracht, en ver daarbuiten. 

Wij vinden deze woning bijzonder omdat;

  • Architecturale villa gebouwd tegen de heuvel, waardoor elke verdieping geniet van indrukwekkende zeezichten

  • Onderbouw van 56 m² volledig naar eigen wens in te richten, perfect voor fitnessruimte, cinema of gastenverblijf

  • Gigantische leefruimte met open keuken en Miele-toestellen, een luxueuze centrale plek voor koken, tafelen en ontspannen

  • Master suite met dressing en en-suite badkamer, een private hotelervaring binnen je eigen woning

  • Twee extra slaapkamers met elk een eigen badkamer, ideaal voor gasten of familie

  • Perceel van 817 m² met panoramisch zeezicht, uitzonderlijke ruimte en privacy in een exclusieve omgeving

  • Zwembad met buitendouche en uitzicht op de Middellandse Zee, een spectaculaire plek om te ontspannen

  • Buitenkeuken met barbecue en aangelegde tuin met irrigatiesysteem, perfect voor lange mediterrane avonden

  • Hoogtechnologisch comfort, met domotica, vloerverwarming, airzone-klimaatregeling en geïntegreerde speakers

  • Dakterras met parkeerplaatsen en laadpunt voor elektrische wagen, praktisch en volledig toekomstgericht


GROEI EN TRENDS IN CUMBRE DEL SOL: 

Jaar  Prijs per m² Jaarlijkse stijging 
2023 €3.214 -
2024 €3.586 +11.6%
2025 €4.032 +12.4%


Kenmerken:

Aantal slaapkamers 3
Aantal badkamers 3
Privaat zwembad Ja
Oppervlakte perceel rond het huis 817 m²
Bewoonbare oppervlakte 515 m²
Afstand naar het strand 1 km
Terras oppervlakte 160 m²
Private Tuin Ja
Poort Ja
Nabij Scholen Ja
Douche schermen Ja
Volledige airco installatie Ja
Elektrische rolluiken Ja
Led verlichting buiten Ja
Led verlichting binnen Ja
Zeezicht Ja
privé parkeerplaats Ja
Telefoon Data aansluiting Ja
Videofonie Ja
Inbouwkasten Ja
Elektrische poort Ja
Elektrisch laadpunt Ja
Badkamer spiegels Ja
Alle keuken apparatuur volledig inbegrepen Ja
Kookplaat Dampkap Magnetron & Oven Ja
Nabij kinder speeltuin Ja
Berging Ja
Kelder Ja
Domotica Ja
Golfresort afstand in km 5-10 km
Ziekenhuis afstand in km 5-10 km
Luchthaven Alicante afstand 50+ km
Ontspanning ruimte buiten Ja
Hangend toilet Ja
Hangend badkamer meubel Ja
Uitzicht op het zwembad Ja
Overloopzwembad Ja
Volledig ingerichte keuken Ja
Dampkap Ja
Gepantserde toegangsdeur met veiligheidsslot Ja
Grote ramen van vloer tot plafond Ja
Hoogwaardige afwerking Ja
Aerothermische boiler Ja
Luxe nieuwbouw Ja
Dressing Ja
Extra verdieping ondergronds (basement) Ja
Energielabel A
Afgewerkte badkamer Ja

Meer info?


Beschikbare documenten

eerste verdieping.jpeg

document-eerste verdieping.jpeg

download
gelijkvloers.jpeg

document-gelijkvloers.jpeg

download
onderbouw.jpeg

document-onderbouw.jpeg

download
perceel.jpeg

document-perceel.jpeg

download

Ontdek wat we nog meer voor jou in petto hebben!

Villa Bianca luxe wonen met zeezicht in Cumbre
Villa Bianca luxe wonen met zeezicht in Cumbre

Project: Magnolias Design in Cumbres Del Sol Benitachell

Stad: Benitachell- Alicante

3   3     160 m²  

Luxe villa met zeezicht op ruim perceel - Horizont
Luxe villa met zeezicht op ruim perceel - Horizont

Project: Residentie Jazmines in Cumbre del Sol: luxe villas

Stad: Cumbre Del Sol

3   3    

El Alba Mediterranean Resort – Alba in Roldán:
El Alba Mediterranean Resort – Alba in Roldán:

Project: Villa ARENA in Alba Medeterian resort

Stad: Roldan

2   2     77 m²   13 m²  

Villa in residentie Arena in El Alba Resort
Villa in residentie Arena in El Alba Resort

Project: Residentie El alba villa Arena in Torre Pacheco

Stad: Torre-Pacheco - Murcia

2   2     100 m²   50 m²  

El Alba: Jouw slimme investering in Costa Cálida
El Alba: Jouw slimme investering in Costa Cálida

Project: Residencial universo homes in Resort El Alba

Stad: Torre-Pacheco - Murcia

2   2     81 m²   73 m²  

Villa Los Alcázares golf met zwembad Costa Cálida
Villa Los Alcázares golf met zwembad Costa Cálida

Project: Villa’s met verhuurlicentie – La Serena Breeze 3

Stad: Los Alcazares - Murcia - Mar Menor

3   2     101 m²   40 m²  

Villa met zwembad en onderbouw in Rojales
Villa met zwembad en onderbouw in Rojales

Project: Villa Ciudad Quesada – Auro I met kelderoptie

Stad: Rojales- Alicante

4   3     279 m²    

Villa op een groot perceel met uitzicht op natuur
Villa op een groot perceel met uitzicht op natuur

Project: Herverkoop van villa op groot perceel nabij golf

Stad: Ciudad Quesada

4   3   300 m²  

Villa met zwembad in residentie Olea
Villa met zwembad in residentie Olea

Project: Residentie Olea in Corvera Hills Golf

Stad: Corvera

4   2   143 m²   87 m²    

Halfvrijstaande woning in residentie Aneas
Halfvrijstaande woning in residentie Aneas

Project: Residentie Aneas in Corvera Hills Golf

Stad: Corvera

3   3   117 m²   69 m²  

Villa met zwembad Las Filipinas Orihuela Costa
Villa met zwembad Las Filipinas Orihuela Costa

Project: Villa's met zwembad Las Filipinas Orihuela Costa

Stad: Orihuela Costa-Alicante

3   2     140 m²   36 m²  

Villa ALTEA Santa Rosalía Lake and Life Resort
Villa ALTEA Santa Rosalía Lake and Life Resort

Project: Frontline Villa's in Santa Rosalía Resort

Stad: Torre-Pacheco - Murcia

3   3     321 m²   146 m²  

Lees geamuseerd onze laatste nieuwtjes mee..

Administratief medewerker vastgoed Spanje gezocht
Administratief medewerker vastgoed Spanje gezocht

Droom jij van werken onder de Spaanse zon én deel uitmaken van een ambitieus vastgoedteam aan de Costa Blanca?

Bij Casas Kimpencio zoeken we een administratieve topper die structuur brengt, klanten professioneel opvolgt en mee wil bouwen aan een groeiend succesverhaal.

Jij wordt de...

Martine

Koningsdag Spanje: Feest aan de Costa Blanca
Koningsdag Spanje: Feest aan de Costa Blanca

Koningsdag 2026 in Spanje

Waar vieren Belgen en Nederlanders het feest aan de Costa Blanca?

Vier Koningsdag 2026 in Spanje en ontdek waarom zoveel Belgen en Nederlanders kiezen voor de Costa Blanca.

Van grote festivals in steden zoals Valencia en Barcelona tot gezellige lokale...

Martine

Nederlanders kopen meer huizen in Spanje
Nederlanders kopen meer huizen in Spanje

In 2025 kochten buitenlanders 69.690 woningen in Spanje, iets minder dan in 2024.


...

Martine

square-box
Tine
Vragen over panden, projecten en onze content
Snel starten:

Hallo, ik ben Tine je kan bij mij terecht met al je vragen over panden, projecten en onze content. Ik antwoord alleen op basis van de beschikbare website-inhoud.